Дизайн студии 25 – интерьер с балконом, выбираем мебель для маленькой комнаты с одним окном и двумя
Дизайн студии 25 кв м: фото интерьеров реальных квартир
Наверх Перепланировки- Каталог домов
- Квартира
- Спальня
- Кухня
- Столовая
- Гостиная
- Ванная комната, санузел
- Прихожая
- Детская
- Мансарда
- Маленькие комнаты
- Рабочее место
- Гардеробная
- Библиотека
- Декорирование
- Мебель
- Аксессуары
- Загородный дом
- Ландшафт
- Системы хранения
- Коридор
- Уборка
- Фундамент
- Кровля
- Стены
- Окна
- Двери и перегородки
- Потолок
- Балконы и лоджии
- Внутренние конструкции
www.ivd.ru
Дизайн квартиры студии 25 кв. м. в современных стилях оформления
Одним из самых востребованных видов недвижимого имущества являются квартиры студии. Они популярны среди молодежи. За небольшие деньги молодые люди, семьи без детей могут приобрести комфортное, просторное жилье. Такие квартиры представляют собой целостное пространство, неограниченное дополнительными стенами. Сделать небольшое жилище 25 кв. м функциональным, практичным не так просто. Для этого необходимо применять современные способы зонирования, советы профессиональных дизайнеров. Самые полезные рекомендации можно найти в данной публикации.

Квартира-студия площадью в 25 квадратов, конечно не хоромы, но жить здесь можно вполне комфортно
Важные нюансы
Первым шагом при обустройстве квартиры студии является создание проекта интерьера.

Дизайн-проект позволит увидеть будущий интерьер до начала ремонта
Важно. Предварительно созданный план значительно улучшит качество ремонта, сократит время, необходимое на его завершение.

На схеме с размера будет проще разместить мебель
При создании проекта нужно обязательно располагать определенными техническими бумагами. Технический план покажет, где размещены основные коммуникации. Раздобыть его можно в ЖЭК(е). На основании такого плана можно выстроить подробный проект на листке обычной бумаги. В нем нужно указать точное расположение розеток, коммуникаций, разметить положение мебели, зон интерьера.
Зонируем пространство правильно
В идеале дизайн студии 25 кв м должен включать в себя несколько основных зон: кухню, рабочий уголок, прихожую, спальню, санитарную зону. Каждая из зон должна быть отделена от другой. Сделать это можно разными способами.

Зонирование с помощью стеклянной перегородки
Самые популярные подробнее рассмотрены в таблице:
| Способ зонирования | Особенности |
| Перегородка | Ее можно соорудить из стекла, кирпича, гипсокартона. Самым простым вариантом является именно гипсокартон. Возведение такой конструкции не требует получения специального разрешения, высоких материальных, физических затрат. |
| Мебель | Маленькое пространство лучше зонировать мебелью открытого типа. Идеально подойдет сквозной стеллаж. Он отделит зоны, вместит в себя определенные вещи, не займет много места. |
| Ширма | Хороший способ отделения спальной зоны в ночное время суток. Днем ширму можно прятать. |
| Отделка | Отделить кухню от гостиной-спальни можно при помощи использования разных отделочных материалов, расцветок. На кухне лучше применять плитку, в жилой части помещения – обои, декоративную штукатурку, краску. |

Отделять спальную зону на время сна удобно ширмой, которую легко убрать днем
Открытая планировка: все за, против
Использование капитальных перегородок не всегда делает интерьер студии 25 квадратов привлекательным. Иногда такие конструкции слишком отягощают пространство. Сегодня в моде открытая планировка. Она позволяет сделать ремонт с минимальными затратами, реализовать множество оригинальных идей, эффективно использовать квадратуру.

Открытая планировка будет идеальным решением в квартире холостяка
Открытая планировка идеально подходит одиноким людям, молодой семье без детей. В квартире студии достаточно обустроить только кухню, спальню для комфортного проживания. Количество, вид зон будут зависеть только от особенностей образа жизни хозяев.

Проблему уединения можно решить с помощью раздвижной перегородки
Существенным недостатком открытой планировки является практически полное отсутствие возможности уединиться. Если в квартире студии живет несколько людей, такая необходимость обязательно будет появляться. Решить эту проблему можно покупкой передвижной японской ширмы. Она стоит недорого, легко поместится в большом шкафу-купе, на балконе.
Второй ярус – рациональное решение при нехватке пространства
Если дизайн квартиры студии 25 кв м разрабатывается для молодой семьи с ребенком, нужно обязательно позаботиться о правильном обустройстве комнаты для малыша. Выкроить место при обычных условиях вряд ли получится. В этом случае рациональным решением будет возведение второго яруса.

Устроить более-менее полноценный второй ярус возможно при высоте потолка выше 3,5 метров
Преимущества такого решения очевидны:
- Расширение полезной площади.
- Возможность обустроить отдельную комнату малышу (это необходимо при достижении малышом возраста четырех лет).
- Экономия. За небольшие деньги можно получить двухкомнатную квартиру. Это отличное решение для молодой семьи на первое время.
- Оригинальность интерьера – двухъярусные квартиры студии выглядят всегда необычно.

Чаще всего наверху обустраивается спальня
Однако второй ярус имеет ряд недостатков. Для его возведения необходимо убедиться в безопасности постройки. Возвести второй ярус не всегда возможно. Также это требует больших материальных затрат. Но затраты гораздо ниже, нежели приобретение полноценной двухкомнатной квартиры.
Меблировка
Практичный, привлекательный дизайн квартиры-студии 25 кв м трудно представить без компактной, многофункциональной мебели. Мебельные конструкции, правильность их выбора играют огромную роль в оформлении маленькой квартиры.

Мебель-трансформер в различном исполнении здорово помогает экономить пространство
Полезные советы при подборе мебели для интерьера квартиры студии:
- Спальная зона должна быть оснащена трансформирующейся кроватью, раскладным диваном.
- Если предусмотрено место для приема гостей, его лучше оформлять мягкой мебелью с низкими спинками. Нескольких округлых пуфов, небольшого журнального столика на колесиках достаточно.
- Бытовую технику следует приобретать встроенного типа. Это существенно сэкономит место в кухонной зоне.
- Кухонный гарнитур должен быть небольшим, включать в себя только нужные элементы. Лишние шкафчики, полки лучше не покупать.
- Сделать дизайн квартиры студии 25 кв гармоничным позволит выбор мебели в едином стилевом направлении. Особенно это важно при открытой планировке жилища. Стиль должен быть максимально простым, незамысловатым.

Шкаф-купе может служить разделителем пространства
Квартира-студия в стиле лофт
Квартиры-студии часто выбирают молодые, одинокие люди, студенты. Им по душе будет функциональный, максимально простой, свежий дизайн студии 25 кв. Таким требованиям полностью отвечает стиль лофт:
- Светлые тона в отделке потолка. Идеальным решением станет покраска потолка белой краской. Также можно установить белый глянцевый натяжной потолок. Он визуально сделает помещение выше, даст возможность обустроить дополнительную подсветку.

Оформить потолок в стиле лофт можно с помощью металлической сетки, натянутой между деревянными балками
- Кирпичная кладка. Имитацией кирпичной кладки можно оформить одну из стен.

Кирпич будет хорошо смотреться и в основании барной стойки
- Простая мебель правильных форм. Мебель может иметь стеклянные, металлические элементы. Она должны быть компактной, не иметь слишком ярких деталей.

Обеденная зона с простыми стульями и небольшим круглым столом
- Незамаскированные коммуникации. Трубы, газовую колонку, батарею можно не прятать в мебели, не маскировать гипсокартонным коробом.

Открытая проводка на потолке добавляет стильности
- Применение камня, дерева в интерьере. Натуральные материалы безопасны для здоровья, выглядят дорого, долго сохраняют свой привлекательный внешний вид.

На полу уложены специально состаренные доски
Использование скандинавского стиля
Лаконичный дизайн квартиры студии выйдет при использовании скандинавского стиля. Данное интерьерное решение подойдет людям среднего возраста. Это строгий, сдержанный стиль. Ему характерно обилие белого цвета в отделке. Белым делают потолок, декоративный карниз, иногда стены. Дабы потолок не сливался со стенами, их можно украсить небольшим орнаментом. Сантехнический узел можно оформить более ярко, использовав лазурный, зеленый цвета.

Чисто белый цвет, типичный для северного стиля оформления интерьера, дарит ощущение простора и свободы

Деревянные элементы дополняют стиль и создают настроение
В скандинавском стиле должно быть много дерева. Дерево нужно выбирать светлого цвета. Им оформляют столешницу на кухне, дверные проемы, столовую зону. Мягкая мебель квартиры-студии должна быть тоже светлой, иметь простую форму. Отлично впишется в пространство раскладной диван молочного оттенка. Ночью он будет выполнять роль кровати, днем – гостевого дивана.

Две лампы на проводах выделяют обеденную зону

Прихожая выполнена в менее марких темных тонах
Декоративных элементов в интерьере должно быть немного. Можно ограничиться несколькими картинами, красивой вазой с живыми цветами. Важным моментом является вопрос освещения пространства. В скандинавском стиле его должно быть много. Для освещения следует использовать встраиваемые споты, обычные лампы, точечные светильники, встроенные в мебель, потолочную конструкцию.
Стиль минимализм
Элегантный дизайн квартиры студии 25 квадратных метров можно получить при использовании стиля минимализм. Выбрав этот стиль, обязательно прислушайтесь к следующим рекомендациям:
- Цветовая палитра интерьера должна состоять из белых, серых оттенков. Светлая гамма даст возможность визуально увеличить пространство.
- Обои лучше заменить краской. Краски бывают разных оттенков, их легко нанести на стены самостоятельно. Самым главным условием использования краски является абсолютно ровная поверхность. Стены нужно будет предварительно выровнять.
- Минималистичный дизайн квартиры студии 25 кв подчеркнет дубовый паркет. Его лучше устанавливать в спальной зоне. В прихожей, на кухне желательно использовать более практичное покрытие. Хорошо подойдет напольная плитка.
- Освещенность пространства должна быть отличной. Одной потолочной люстрой точно не обойтись. Осветительные приборы должны размещаться над всеми рабочими, обеденными поверхностями.
Пример оформления комфортного интерьера

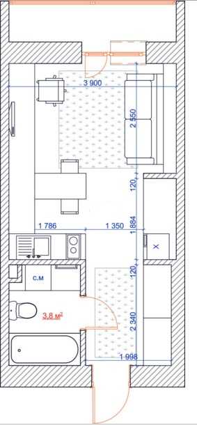
План квартиры и расстановка мебели

Кухню от гостиной отделяет небольшая перегородка из стеклоблоков

Минимальное количество мебели – только самое необходимое

Интерьер выдержан в спокойном сером оттенке

Акценты желтого цвета удачно разбавляют монотонный интерьер
Видеообзор квартиры-студии площадью в 25 квадратов
Фото практичных интерьеров
dizainvfoto.ru
Дизайн студии 25 кв. м. [60+ фото] планировки, идеи зонирования
Планировка квартиры-студии 25 квадратов
В проектировке дизайна данной студии, особенно важно как можно детальнее продумать проект, составить технический план и выполнить чертеж. Также обязательно учитывают схему, по которой располагаются батареи, вентиляционные шахты, центральный стояк и прочее.
Так как, в подобном едином помещении предполагается размещение сразу нескольких функциональных зон, каждая из них должна быть организованна правильно и не мешать одна другой. Наиболее простой планировкой для обустройства отличается квадратная квартира-студия. В ней особенно можно поэкспериментировать в отделке и меблировке.
Абсолютно другого подхода требует пространство прямоугольной и вытянутой формы. При оформлении, здесь нужно продумать все до мелочей, например, использовать декор, в виде зеркал, фотообоев или 3д картин для визуального увеличения площади, чтобы комната не смотрелась слишком узко.

На фото вариант планировки квартиры-студии 25 кв. м., выполненной в светлых тонах.


Как зонировать 25 кв. м.?
В качестве зонирующих элементов применяют различные перегородки из гипсокартона или дерева, которые могут отличаться любой высотой и одновременно выполнять роль книжных полок или места, где располагают стильные аксессуары, размещают технику и прочее.
Также определенные участки отделяют с помощью штор, балдахинов, мебельных предметов или используют разную конфигурацию и фактуру потолка, например, в виде глянцевого и матового натяжного полотна. Не менее популярным является разграничение пространства освещением, разнотипной стеновой отделкой или перепадом уровня пола.


Правила обустройства маленькой студии
Несколько рекомендаций:
- Особое внимание в малогабаритном помещении следует уделить мебели. Она должна обладать максимальной эффективностью и функциональностью, что поспособствует повышению эргономики всего пространства. Оптимальным вариантом станут мебельные элементы, изготовленные под заказ, они особенно идеально впишутся в интерьер студии, учитывая все ее особенности и конфигурации.
- При наличии балкона или лоджии, отличным решением будет объединить их с квартирой и тем самым добиться реального увеличения полезной площади.
- В небольшой квартире важно грамотно продумать естественное и искусственное освещение, чтобы в комнате было комфортно находиться.
- Цветовая палитра должна преобладать в более светлых и пастельных тонах.
- В дизайне данной студии не желательно использовать слишком много мелкого декора, который загромождает помещение.


Спальное место
Для обеспечения комфортного отдыха и сна, данную зону часто отделяют с помощью ширмы, занавески, стеллажа или более мобильной и легкой перегородки, например в виде раздвижных дверей, которые не стесняют пространство и не препятствуют проникновению света.

На фото спальная зона в дизайне квартиры-студии 25 кв. м., оформленная перегородкой в виде занавесок.


Кровать, не всегда может представлять собой капитальную конструкцию. Здесь вполне уместно применение обычного раскладного дивана или кровати-трансформера. При наличии высокого потолка возможно возведение второго яруса, на котором будет располагаться спальное место. Двухуровневая квартира-студия имеет особенно интересный дизайн и предоставляет существенную экономию места.

На фото дизайн квартиры-студии 25 кв. м. с кроватью, расположенной на втором ярусе.
Дизайн кухни в квартире-студии
В обустройстве кухонной зоны, тщательно продумывают всю необходимую технику, так как она требует дополнительного места. Также важно грамотное распределение рабочей поверхности, чтобы на ней свободно размещались различные приборы и оставалось место для приготовления пищи. В некоторых случаях для экономии пространства применяют варочную поверхность с двумя конфорками, а духовку заменяют мини-печью или аэрогрилем.

На фото оформление кухонной зоны в интерьере современной студии 25 кв. м.


Лучше если кухонный гарнитур, будет иметь навесные шкафы до потолка, таким образом получится значительно увеличить систему хранения. При оформлении барной стойки, более рационально использовать конструкцию, имеющую сплошное основание, которое дополняют различными полками или ящиками.



Фото детской зоны для семьи с ребенком
В квартире-студии для семьи с ребенком, зонирование является крайне необходимым. Детский уголок должен располагаться в зоне с окном, чтобы предоставить максимальное количество естественного освещения. Пространство можно обособить с помощью балдахина, открытого или закрытого стеллажа, одновременно выполняющего роль перегородки и системы хранения. В дизайне уместно применение ярких, красочных элементов и фантазийного декора.



На фото дизайн квартиры-студии 25 квадратных метров с детским уголком, оборудованным в нише.

Рабочее место в студии
Чаще всего рабочую зону располагают в углу, устанавливают письменный или компьютерный стол, стул и несколько небольших полок или шкафчиков. Еще одним практичным вариантом является шкаф, совмещенный со столом. Данный мини-кабинет отделяют небольшой перегородкой для создания уединенной атмосферы или применяют оттеночное оформление, отличающееся от других функциональных зон.


Фото ванной комнаты и туалета
В 25-ти метровой квартире-студии, для совмещенного санузла подбирают очень компактную и малогабаритную сантехнику. Например, используют душевую кабинку, которая может не иметь поддона или обладать складными перегородками.
В случае установки ванны, обращают внимание на угловые, сидячие или асимметричные модели, а унитаз оборудуют инсталляцией, так как, такая конструкция визуально смотрится менее громоздко. В отделке в основном преобладают более светлые оттенки, зеркальные и глянцевые поверхности.

На фото интерьер небольшого совмещенного санузла в дизайне квартиры-студии 25 кв. м.


Здесь также важно продумать системы хранения для необходимых вещей, таких как, полотенца, косметика и разные средства гигиены. Санузел обустраивают угловыми или вмонтированными в стену полками, узкими шкафчиками или небольшими тумбами, размещенными под умывальником. Даже в оформлении такого маленького помещения, приветствуется творческий подход, комнату можно дополнить различными акцентами и аксессуарами, в виде цветных мыльниц, дозаторов или стаканчиков для щеток. Особого уюта обстановке добавит мягкий коврик, а большое зеркало, зрительно увеличит площадь.

На фото санузел, выполненный в светлых оттенках в интерьере 25-ти метровой квартиры-студии.
Оформление коридора и прихожей
Используя качественные и красивые отделочные материалы, получается придать прихожей комфортности и гостеприимности. Например, более гармонично интерьер выглядит в светлых оттенках, его также дополняют высокими шкафами, стеллажами или мебелью, имеющую стеклянный, глянцевый или зеркальный фасад. Таким образом, коридор наполняется светом, воздухом и визуально смотрится гораздо просторнее. Здесь особенно уместна установка стеклянных бра или светильников, сквозных витражей или различной подсветки.



На фото вариант оформления прихожей в дизайне квартиры-студии 25 кв. м.
Фото студии 25 м2 с балконом
Если квартира-студия 25 кв. м. имеет балкон или лоджию, при совмещении получается добиться дополнительной площади, которую можно обустроить односпальной или полутораспальной кроватью, рабочим кабинетом, гардеробной или зоной отдыха. Визуально увеличить пространство поможет панорамная дверь и идентичная отделка.

На фото дизайн квартиры-студии 25 кв. м. с остекленным балконом, оформленным панорамной раздвижной дверью


Также на лоджии вполне возможно размещение кухонного гарнитура, холодильника или барной стойки, придающей дизайну особой стильности.


Как расставить мебель в студии?
Небольшую студию в хрущевке, можно обставить невысокой и менее объемной мебелью, которая должна не слишком контрастировать с отделкой стен. При использовании ярких мебельных предметов, создается ощущение загруженности пространства.

На фото расстановка мебели в дизайне квартиры-студии 25 кв. м. на мансарде.


В дизайне квартиры квадратной формы, меблировка располагается ровно по периметру, а в прямоугольном помещении сдвигается к одной стене. В данном случае свободная стенка, оборудуется навесными полками или прочими системами хранения.

На фото мебель, размещенная вдоль одной стены в дизайне кваритры-студии 25 кв. м.
Идеи студий с двумя окнами
Квартира-студия 25 кв. м. с двумя окнами, является очень удачным вариантом, имеющим много естественного освещения. Окна, размещенные на одной стене, предоставляют естественное и гармоничное разделение помещения на две функциональные зоны.
Например, если возле одного оконного проема установлен кухонный гарнитур, а рядом с другим располагается спальный или гостиный сектор, можно отказаться от использования дополнительных перегородок. Отличным решением будет поставить изголовье кровати у окна, сделать подоконник прикроватной тумбой или обустроить вокруг проема шкафчики и полки.



На фото дизайн квартиры-студии 25 квадратных метров с окном и полуэркером.
Дизайн интерьера в различных стилях
Стиль минимализм считается наиболее подходящим для оформления небольших студий. Данное направление отличается использованием не более трех оттенков белой, серой и коричневой гаммы. Мебель здесь, обладает максимально простой формой, в обивке применяется однотонный текстиль.
Скандинавский интерьер предполагает достаточно светлые цвета, особенно в настенной и напольной отделке. Мебельные элементы, выполняются из натуральной древесины, обшивка имеет различные узоры и орнаменты. Дизайн дополняют постерами, картинами с изображениями северных пейзажей или животных, а также украшают обстановку живыми растениями.

На фото зонирование с перегородкой из металла в дизайне студии 25 кв. м., выполненной в стиле лофт.


Индустриальный лофт характеризуется кирпичной кладкой, деревянной отделкой и достаточно широкой цветовой гаммой от белых до темно-коричневых и графитовых оттенков.
Стиль прованс предполагает наличие цветочного принта, белую, бежевую или другую светлую облицовку стен, мебель в пастельных лавандовых, мятных, фиолетовых или голубых колерах. Французская стилистика часто предполагает перегородки и другие конструкции, имеющие перекрещенные рейки, которые хорошо пропускают свет, не загромождают пространство и поэтому особенно гармонично вписываются в небольшое помещение.

На фото интерьер квартиры-студии 25 кв. м. в скандинавском стиле.


Фотогалерея
Дизайн квартиры-студии 25 кв. м. с учетом всех технических нюансов, позволяет добиться уникального помещения, отличающегося самым различным лаконичным или впечатляющим и модным интерьером.
design-homes.ru
Дизайн квартиры студии 25 кв. м. Фото-проекты молодых дизайнеров
Как подобрать дизайн квартиры студии 25 кв. м. так, чтобы ваше небольшое жилище стало современным, стильным, привлекательным, функциональным и комфортным?
В последнее время в России становиться все более популярной такая разновидность недвижимости, как квартиры студии. Основная концепция этого жилья – свобода, отсутствие стереотипов, простота, удобство и комфорт. Квартиры, состоящие из одного целостного пространства, больше всего подходят для молодежи, холостяков, семейных пар без детей и просто творческих, современных и динамичных людей.
Проект квартиры студии в 25 кв. м. требует тщательной и продуманной разработки. Главная задача – сделать это помещение не только стильным, современным и красивым, но и удобным, практичным и функциональным.
Несколько советов по обустройству небольшой квартиры-студии в 25 кв.м.
Выбираем стиль
Оформление любого жилища начинается с выбора общей стилистики интерьера. Маленькие квартиры-студии не рекомендуется оформлять в классическом стиле, поскольку это стилевое направление требует простора, высоких потолков, целостного восприятия «издалека», чего такая небольшая площадь не может себе позволить.
Лаконичность и современная эстетичная простота – самый оптимальный вариант для ограниченного пространства квартиры студии в 25 кв.м. Лофт, скандинавский стиль, минимализм – такое оформление поможет грамотно использовать каждый квадратный сантиметр полезной площади, создать ощущение простора и свободы. Минимум мебельных конструкций, максимум функционала – это то, что нужно такому типу жилья.
Для декоративной отделки небольшого пространства лучше всего использовать светлые тона, это поможет зрительно расширить площадь квартиры, добавит чистоты, воздуха и света в интерьер.
Избегайте крупных рисунков, темных цветов, фактурных отделочных материалов.
Используйте зеркала. Это излюбленный прием визуального расширения пространства у дизайнеров. Грамотно расположенный шкаф-купе с зеркальной поверхностью или размещенное в правильном месте зеркало значительно расширят вашу квартиру студию визуально.
Шторы на окнах должны пропускать максимальное количество солнечного света. Чтобы интерьер, выполненный исключительно в светлой цветовой гамме получил свой «характер», используйте яркие, броские акценты, декоративные элементы, аксессуары.
Грамотно зонируем пространство
Целостное пространство небольшой квартиры студии должно быть разграничено на определенные функциональные участки. Как правило, это:
- зона прихожей;
- участок для приема гостей;
- кухня-столовая;
- место для отдыха и сна;
- рабочий уголок;
- санитарный узел.
И все это на 25 кв м пространства? Да. Минимум массивной мебели, встроенная бытовая техника, максимум эргономики, профессиональный подход к зонированию.
- Гостевая зона – это, как правило, центр интерьерной композиции. Она должна быть удобной, свободной, не загроможденной массивными мебельными конструкциями.
- Кухня, она же столовая, в идеале максимально эргономичный и функциональный участок квартиры студии.
- Рабочую зону удобнее всего разместить в одном из свободных углов квартиры. Для оборудования этого участка понадобится небольшой, но удобный рабочий (компьютерный) стол, стул и полочки для хранения необходимых предметов и вещей.
- Часть пространства для отдыха и сна можно отделить ширмой, перегородкой из гипсокартона, мебелью – главное чтобы эта зона была уютной и в некотором роде обособленной.
- Санитарный узел не должен бросаться в глаза.
Меблируем небольшую квартиру студию
Мебельные конструкции играют большую роль в оформлении любого жилища. Небольшая квартира студия в 25 кв м должна быть меблирована с максимальной эргономичностью.
Для спального места лучше всего использовать диван или раскладную (мебель-трансформер) кровать, которую, к примеру, легко спрятать в шкаф.
В зоне для приема гостей должна располагаться легкая мебель, с низкими спинками, мягкими элементами, округлыми формами.
Кухонное пространство требует встроенной бытовой техники, в первую очередь функционального, практичного и эргономичного дизайна мебельных конструкций.
Во всех функциональных зонах должен быть выдержан единый стиль мебели, это очень важно сделать для того, чтобы не нарушить общность стилевого оформления, целостность пространства и не создать ощущение захламленности помещения.
Примеры оформления небольшой квартиры студии в 25 кв. м.
Фото-проект№1. Свежий, молодежный дизайн небольшой квартиры-студии
Квартира студия, традиционно для небольших помещений, выполнена в светлых тонах. Индивидуальности помещению придают яркие акценты, гармонично вписывающиеся в общий концепт стиля.
На достаточно небольшой площади гармонично разместились: небольшая кухня, рабочее пространство, шкаф для хранения вещей, просторная прихожая и удобное спальное место. Дизайнер Евгения Сараева.







Фото-проект№2. Теплый, объемный и комфортный дизайн квартиры студии
Каждый элемент интерьера этой квартиры-студии дышит теплом и комфортом. Спокойная энергия натуральных цветов и оттенков умиротворяет, а яркий, оригинальный акцент в виде сказочной картины во всю стену делает помещение более чем оригинальным. Фактура всех материалов отделки приятная на ощупь, к каждому предмету в квартире хочется прикоснуться. Комфорт и уют в этом жилище на наивысшем уровне. Студия дизайна Ar-ka, г. Москва.






Фото-проект№3. Дизайн функциональной, современной и уютной квартиры-студии
Эта квартира светлая, ультрасовременная, функциональная и оригинальная. Яркие лимонные акценты навевают задорное настроение. В жилище присутствуют все самые необходимые функциональные участки. Кухонное пространство и гостевая зона четко разделены с помощью шторы. Дизайн помещения «дышит» натуральностью, молодостью и оптимизмом.
Грамотно продуманный дизайн квартиры студии 25 кв. м. с учетом всех предпочтений и пожеланий хозяина жилья сделает такое небольшое жилище не только современным, стильным и привлекательным, но и комфортным, практичным, удобным и функциональным. Дизайн-студия «Гарадиз».









harthaus.ru
Дизайн интерьера квартиры-студии 25 кв. м: стили, функциональные зоны, зонирования, обстановка функциональных зон, оформление кухни

Несмотря на то, что из-за кризиса цены на жилье несколько упали, приобрести просторную квартиру позволить себе может далеко не каждый. Именно поэтому молодые семьи выбирают такой модный нынче формат недвижимости, как студия.

Она представляет собой все ту же, городскую квартиру, имеющую полностью свободную планировку. То есть, абсолютно изолированы от остального пространства лишь ванная комната и туалет (которые часто представляют собой объединенный санузел).

В остальном же никаких межкомнатных стен и перегородок не предусмотрено.
Насколько комфортен такой формат жилья?

Если грамотно разработать дизайн интерьер квартиры-студии 25 кв. м, то она будет полностью соответствовать современным стандартам, а также сможет обеспечить максимальное удобство для проживания молодой семьи.
Дизайнерские стили и оформление квартиры-студии 25 кв. м
Разрабатывая дизайн квартиры-студии 25 кв. м, в первую очередь необходимо определиться с выбором стиля.

Для небольших квартир, к которым относится рассматриваемая нами жилплощадь, лучше подбирать одно из следующих направлений:

- Хай-тек. Идеальный выбор, который сделает интерьер квартиры-студии 25 кв. м по настоящему стильным, комфортным и современным. В отделке и обстановке такого жилища должны использоваться металл, стекло и высокопрочные современные материалы. Характерные черты данного стиля – оригинальное сочетание черного и белого тонов, преобладание блестящих глянцевых поверхностей и эргономичная мебель, занимающая минимум пространства, но отлично справляющаяся с возложенными на нее функциями.
- Японский стиль. Он больше подходит для больших пространств, однако некоторые его черты можно использовать, разрабатывая дизайн квартиры-студии 25 кв. м своими руками. К ним относятся, к примеру, применение подиума вместо стандартного спального места, изготовление под заказ эргономичных систем хранения, а также установка переносных перегородок и ширм, обеспечивающих эффективное зонирование.
- Скандинавский стиль. Он разработан как будто специально для небольших студий. Все дело в том, что данное направление предполагает использование светлых тонов мебели и отделки, которые визуально увеличивают свободное пространство, установку раскладной или даже трансформирующейся мебели и максимальную простоту каждого элемента интерьера.



Выбор стиля оформления студии мы оставляем за вами и предлагаем ориентироваться как на свои вкусовые предпочтения, так и на особенности конкретного жилища.

Основные функциональные зоны небольшой квартиры-студии
Главный этап создания красивого и функционального дизайна студии – это зонирование.

Как мы уже упоминали, это жилье имеет полностью свободную планировку и исключает использование громоздких перегородок и стен.

Однако в любом случае необходимо выделить в нем следующие основные зоны:

- Прихожая с полкой и крючками для одежды или небольшим шкафом-купе.
- Зона для приготовления и приема пищи. Кухню вполне можно объединить с гостиной – это позволит общаться с близкими людьми во время готовки и сделать данный процесс значительно более увлекательным.
- Гостиная. Ее центральными элементами могут быть телевизор или камин. Именно вокруг них устанавливаются мягкие кресла и диваны, позволяющие устраивать комфортные посиделки с семьей или друзьями.
- Кабинет. Фрилансерам, а также тем, кто берет часть работы на дом, будет очень сложно обойтись без этой зоны. Она должна оформляться и обставляться таким образом, чтобы давать возможность сконцентрироваться на своих обязанностях и исключать любые отвлекающие факторы. В рабочем кабинете можно также оборудовать небольшой уголок для отдыха, установив кофейный столик и мягкое кресло;
- Спальня. Ее лучше всего максимально изолировать, чтобы обеспечить комфортный отдых. Для этой цели в скандинавском стиле используются модульные перегородки, а в японском – удобные переносные ширмы, украшенные оригинальными изображениями на восточный манер.
- Ванная. Как мы уже говорили, санузел в студия чаще всего является объединенным и изолированным от остальных помещений. Если вам не хватает простора, можно заменить ванну на душевую кабину, а вместо унитаза и биде использовать современные инсталляции.






Главной целью зонирования является удовлетворение потребностей каждого члена семьи в личном пространстве и создание пусть небольших, но функциональных уголков для тех или иных занятий.

Разумеется, в маленькой квартире придется чем-то жертвовать, поэтому нужно тщательно продумать данный момент.

Варианты перегородок для зонирования пространства
Познакомившись с фото дизайна интерьера квартиры-студии 25 кв м, вы сразу же заметите, что для разделения помещения на зоны никто не возводит массивные кирпичные стены.

Отличной альтернативой для них являются различные типы перегородок, подробно описанные ниже:

- Балдахины или шторы. Они занимают совсем мало места, но больше подходят в квартирах-студиях, в которых живут представительницы прекрасного пола. Мужчины вряд ли будут возиться с текстильными изделиями, которые нужно еще и периодически стирать, приводить в идеальный порядок;
- Монолитные перегородки, для сооружения которых используется гипсокартон. Их лучше использовать для тех зон, которые требуется изолировать – спальни или рабочего кабинета;
- Фальш-перегородки. Они перекрывают разделяемое пространство лишь частично и могут иметь самую оригинальную форму. Для изготовления таких конструкций применяется либо все тот же гипсокартон, либо дерево;
- Мебель. Между зонами можно установить шкаф, мягкий диван, двухсторонний стеллаж или любую другую конструкцию. Лучше всего заказывать ее изготовление на заказ, чтобы точно угадать с размерами;
- Барная стойка. Идеально подходит для разделения кухни и столовой, а также гостиной.





Достаточно популярными являются и варианты визуального зонирования, для которого могут использоваться разные типы отделки стен, световые эффекты и плавные переходы между ними, подиумы, перепады уровня пола.

К этой же категории можно отнести эксперименты с натяжными полками, выполнение их в два или более уровней для выделения тех или иных зон.

Обстановка функциональных зон в интерьере квартиры-студии 25 кв.м.
После того, как вы выделите все перечисленные выше функциональные зоны, потребуется заняться грамотным подбором мебели и организацией освещения.

Этому этапу мы посвятим целый раздел статьи, так как он является одним из самых важных в разработке дизайна жилища.

Самое небольшое пространство лучше всего отводить под спальную зону, которая в обязательном порядке изолируется от гостиной с помощью перегородок или ширмы.

Здесь должно располагаться все необходимое для комфортного отдыха – двуспальная (или односпальная) кровать, прикроватные тумбочки, туалетный столик с зеркалом и комод для хранения постельных принадлежностей и одежды.

Чтобы сэкономить пространство, вы можете купить кровать со специальными ящиками и избавиться от старого комода.

Напротив, больше всего места многие отводят под гостиную.

Это не удивительно, так как именно в этом помещении вы сможете смотреть телевизор или собираться у камина для семейных либо дружеских посиделок.
В подавляющем большинстве случаев гостиная дополнительно разбивается на две функциональные зоны:

- Диванная группа. Именно она концентрируется вокруг центрального элемента, в роли которого используется телевизор или камин. В зависимости от конфигурации конкретного помещения можно использовать либо традиционный прямой, либо большой угловой диван. Дополняют группу удобные мягкие кресла или пуфы.
- Столовая зона. Если она выносится в гостиную, то важно знать одно правило – данное пространство должно располагаться на некотором удалении от диванной группы. Идеальный вариант – оставить между ними расстояние в 1-1,5 метра для удобного прохода. При желании столовую можно изолировать от гостиной с помощью мобильной или стационарной перегородки.


Оформление кухни в квартире-студии
Грамотный подход к дизайну рабочей зоны, предназначенной для приготовления пищи, дает возможность обеспечить максимальный комфорт проживания в квартире студии.

Лучше всего для этой цели обратиться к профессионалам, которые учтут все особенности вашего жилища, подготовят дизайн проект с учетом описанных ниже правил:

- В рабочей зоне кухни обязательно следует использовать вытяжку большой мощности, которая избавит вас от посторонних запахов в гостиной или спальне. Это устройство может быть встроенным или расположенным отдельно над газовой либо электрической плитой.
- Для максимальной безопасности лучше использовать электрические духовые шкафы или варочные панели. Все дело в том, что газовую плиту по действующим правилам вообще нельзя размещать в жилом помещении. Поэтому при объединении кухни с гостиной вам придется устанавливать изолирующие глухие перегородки или изделия из высокопрочного стекла.
- Уделите максимум внимания кухонному фартуку, который будет обеспечивать защиту стены и отделочных материалов от влаги и жира. Идеальные вариант – выбирать изделия, выполняемые из стекла или керамической плитки, так как они долговечны и чрезвычайно надежны в эксплуатации.
- Вместо громоздкой мебели на кухне квартиры-студии лучше использовать трансформирующиеся, складные или встроенные конструкции. То же самое относится и к бытовой технике – холодильнику, посудомоечной и стиральной (если нет места в ванной комнате) машинам. Для экономии свободного пространства можно заказать в специализированных компаниях изготовление систем хранения по индивидуальному заказу точно по предоставленным размерам.
- Идеально, если в квартире студии есть балкон или лоджия. Эти конструкции после соответствующего обустройства, включающего в себя остекление, утепление и отделку, можно использовать в качестве дополнительного кухонного пространства для размещения бытовой техники или систем хранения. Кроме того, на балкон можно вынести электрическую плиту и духовой шкаф.





Лоджия и балкон помогут вам расширить не только кухню, но и гостиную.

Мало того, на свободном пространстве таких конструкций вполне можно разместить спальню или небольшую детскую комнату, рабочий кабинет или библиотеку, эстетичный зимний сад.

Если вы хотите создать по-настоящему стильный дизайн, необходимо уделить максимум внимания декоративным элементам.

Они не только украсят помещение, но и помогут связать несколько отдельных зон в единое стилевое решение.

К примеру, цвета кухонного фартука могут частично повторяться в диванных подушках гостиной или в мебели, установленной в рабочей зоне.
comments powered by HyperCommentsileds.ru
2 вариации распределения зон (45 фото)
К составления дизайна маленькой квартиры нужно отнестись серьезно. Главная задача при разработке такого проекта — создать функциональное помещение на маленькой площади. Дизайн и интерьер студии 25 кв м должен быть зонированным и не загроможденным.
Грамотный план — залог успеха
Более века назад в Европе, а затем и во всем мире, созданные благодаря увлечениям архитектора Людвига Мис-Ван-Дер-Рое модернизмом в строительстве и дизайне появились необычные студии. Чтобы лучше понять, что из себя представляют такие квартиры, нужно представить помещение, в котором отсутствуют все стены. Отгороженной остается только ванная с туалетом.

Наглядный план дает возможность учесть технические особенности квартиры. Глядя на фото будущего интерьера можно определить расположение мебели исходя из места нахождения батарей, вентиляции прочих элементов.
Первый вариант
Рассмотрим дизайн и интерьер студии 25 кв м, в которой отделены только ванная и туалет. Все помещение находится на одном этаже.
Оформление помещения
Продумывать дизайн нужно начинать с цветового оформления. Маленькие студии площадью 25 кв м обычно имеют только одно окно. Света в помещение проникает мало. Если выбрать темные цвета в оформлении, то комната будет казаться мрачной. Зато светлые тона, наоборот, сделают квартиру визуально больше.
Важно! Можно добавлять в интерьер помещения яркие тона. Но лучше оформлять их в виде деталей или рисунков.

Еще один секрет зрительного увеличения маленькой квартиры закачается в использовании зеркал, а точнее одного полотна на всю высоту стены, установленного напротив окна. Отражающийся свет в студии, сделает ее воздушной. Еще одним интересным вариантом может быть использование зеркальных дверей шкафа-купе. Примеры такого оформления представлены на фото.

Зонирование
Итак, одна часть квартиры занята шкафом, а другая — зеркальным полотном. Для установки дивана остается одна стена. Именно здесь и стоит расположить зону отдыха. Учитывая площадь в 25 кв м, выбранная мебель должна не только вписываться в интерьер квартиры, но и быть функциональной. То есть нужно покупать диван-транформер с выдвижным ящиком. Такой атрибут не будет загромождать пространство квартиры и одновременно будет использоваться для хранения вещей.

Совет! Напротив дивана желательно на стене установить плазму, которая не будет занимать много места. Пример такого оформления представлены на фото.
Зону сна можно расположить на этом же диване. Для этого достаточно превратить трансформер в двухспальную кровать.
Рабочая или учебная зона
Место для работы можно расположить рядом с кроватью, вмонтировав стол в шкаф-купе. Такой вариант оформления комнаты ограждает жильцов от техники во время сна. Такой дизайн точно оценят любители фэн-шуя.

Кухня
Если площадь квартиры не превышает 25 кв м, то крохотная кухня должна быть функциональной.
Поэтому продумывать интерьер следует исходя из таких рекомендаций:
- раковину следует установить возле окна, чтобы во время мытья посуды любоваться пейзажем;
- сэкономить пространство студии можно, купив плиту-панель, чтобы вместо духовки внизу можно было использовать шкафчики для посуды;
- фасад мебели на кухне в студии лучше использовать глянцевый и светлый.
Примеры такого оформления представлены на фото.
Туалет и ванная
Квартиры площадью 25 кв м не располагает достаточным объемом. Вместить полноценную ванную в них проблематично. Поэтому лучше использовать душевую кабину, компактный унитаз и узкую раковину, оформленные в светлых или серых тонах, как это показано на фото.

Второй вариант
Рассмотрим дизайн и интерьер студии 25 кв м, расположенной на двух этажах. Спальная зона выведена на верхний уровень, а внизу находится объединенная кухня-гостиная.
Оптимизация помещения
Еще с давних люди привыкли проводить больше времени у очага, где готовится еда. В наше время поменялось много, но не эта привычка. Поэтому кухню можно совместить с любой комнатой, но лучше всего с гостиной. Тогда получится совместить примем пищи с приятным общением с друзьями и членам семьи.

Если комната размерами не блещет, то лучше создать многоуровневый дизайн, отделив спальную часть. Если есть возможность, то нужно убрать все перегородки в квартире. Если отдыху жильцов в комнате что-то мешает, то спальное место можно отделить прозрачной перегородкой. Примеры такого оформления представлены на фото.
Важно! Если БТИ не разрешает снос несущих конструкций, то придется продумывать дизайн и интерьер разъединенного помещения.

Распределение зон
Рабочая зона на кухне включает плиту для приготовления пищи, раковину, столешницу, шкафчики для хранения посуды, вытяжку, холодильник и бытовую технику. Зону кухни и гостиной может разделять обеденное место, выполненное в виде барной стойки. Для этих же целей можно использовать стол-трансформер, размеры которого модно будет менять в зависимости от количества людей. Примеры такого оформления представлены на фото.

Напротив должна располагаться зона отдыха, включающая темный диван, телевизор и прозрачный столик. Цветные акценты в данной зоне можно проставить торшерами, светильниками, рамой зеркала и картинами на стене. Рядом можно расположить компьютерный стол. При желании можно отделить рабочую зону ширмой.
Спальное место, которое будет находиться на втором ярусе, должно включать кроме удобной кровати небольшую тумбу и ночное освещении.
В отделке всех зон следует использовать разные материалы, но при этом они должны перекликаться по цвету или текстуре. Хорошо будет смотреться плитка на полу в кухне и ламинат в гостиной.
Еще один способ для зонирования пространства — создание перепадов потолка и пола. Гипсокартонный потолок может отделить кухню от гостиной, а чтобы с акцентировать внимание на деталях, следует использовать точечное освещение. А вот популярные в Европе напольные подиумы, не нашли спроса в России. Причина заключается в низких потолках и сложности монтажа.

Советы
Главный принцип, которым руководствуется разрабатывая дизайн и интерьер помещения — минимум мебели. В цветовой гамме должны преобладать спокойные пастельные тона. Яркие акценты можно делать цветными полушками или семейными фото на стене.

Необходимо выделить один цвет в оформлении всего помещения площадью 25 кв м. Например, оформить интерьер в желтом цвете и вставить отдельные акценты в виде черных аксессуаров.
Важно также правильно подобрать освещение. Вместо центрального потолочного лучше отдать предпочтение направленным светильникам. В активных участках следует использовать яркий свет, а в зоне отдыха — рассеянный и мягкий, поступающий от одного-двух бра. Это позволяет расставить акценты на ключевые детали.
Современный дизайн маленькой квартиры-студии 25 кв (2 видео)
Как можно оформить дизайн студии 25 кв (45 фото)
dekormyhome.ru
Дизайн студии 25 кв.м с балконом [Интерьер и планировка]

Стильный современный дизайн квартиры-студии 25 кв. метров
Квартира-студия площадью 25 кв. м – это, конечно не хоромы, но жить в такой вполне можно. Ресурсов для ремонта нужно не очень много, а вот смекалки и фантазии для правильного обустройства потребуется немало. К тому же дизайн следует продумывать особенно тщательно – важны отделка, аксессуары, мебель. Что ж, будем разбираться, что здесь и к чему.
Содержание:

Секрет удобства маленькой по площади квартиры – ее грамотное зонирование
Что представляет собой квартира-студия?
Стоит помнить, что подобное жилое пространство имеет массу особенностей. Первое – это единое пространство, которое следует грамотно и гармонично разделить на функциональные зоны. Второе – очень внимательно нужно отнестись к выбору вытяжки для кухни, она должна быть достаточно мощной. Третье – здесь нет явного деления на помещения при помощи стен, поэтому все нужно организовать за счет отделки.
Важно! Огромное преимущество студий в том, что они при своих незначительных габаритах дают ощущение определенного простора, воздушности.

Пример грамотно обустроенного пространства студии
Разделение на функциональные зоны
В любом жилом помещении нужно разделение на следующие зоны:
- Спальня. Место для сна желательно в определенной мере отделить от остальных участков. Приемов для этого множество. Чаще всего используется псевдоперегородка: например, установка шкафа или раздвижной перегородки.

- Кухня. Ее зачастую не отделяют. А для того чтобы избежать распространения запахов по всей квартире, следует выбрать достаточно мощную вытяжку.

- Прихожая. Как таковой ее нет – это просто участок помещения, где можно разуться и снять верхнюю одежду.

Также могут выделяться столовая, рабочее место, часть квартиры для отдыха. Но эти части могут быть совмещены с основными функциональными зонами.
Обратите внимание! Единственное помещение, которое отделено стенами, – это санузел. Он может быть совмещенным или раздельным. Первый вариант встречается чаще.
Квартира с балконом такого типа очень удобна, ведь при должном утеплении удастся успешно расширить полезное пространство. Даже встречаются проекты, при которых на дополнительную площадь выносят кухню или рабочее место.

Смело фантазируйте, ведь балконную площадь можно использовать на свое усмотрение
Собственно разграничение проводится при помощи правильной мебели. Примеры:
- Кухонный гарнитур с барной стойкой разграничит кухню с другим простором. Стойка – это место для принятия пищи, как минимум два человека за ней точно поместятся.
- Зона для отдыха отменно идентифицируется по телевизору и мягкой зоне. Оптимально размещать подобный диван по центру стены – такой прием позволяет плавно сделать переход к прихожей.
- Перегородки-ширмы или шкафы с полками без дверей. Еще один вариант – навесить легкую штору.
Расширение пространства за счет балкона
Как уже упоминалось, добавить простор достаточно небольшой студии можно при помощи балкона. Особенности обустройства помещения зависят от того, какую зону хозяева будут расширять.
Кухня
Если со стороны балкона размещена именно кухня, то его можно использовать как место для хранения бытовой техники. Например, вынести холодильник, микроволновку, мультиварку. Вполне органично будет выглядеть барная стойка, которую можно совместить с подоконником.
Важно! Сносить какие-либо участки стены радикально нельзя без дополнительного разрешения, поэтому с этим спешить не стоит.
Балкон также выступает определенным разделительным элементом. При этом не стоит переносить рабочие поверхности и место для готовки полностью в новоосвобожденное пространство. Оно хоть и есть, но достаточно небольшое, работать на кухне будет просто некомфортно. К тому же для перенесения коммуникаций нужно тянуть дополнительные трубы, а в случае с газовой плитой это невозможно.
Гостиная
Совершенно небольшую, но уютную комнатку для отдыха и приема гостей можно сделать на балконе. Оптимально – это совместить ее с уже существующим пространством. Для того чтобы вам и гостям там было комфортно, необходимо качественно утеплить балкон, поставить энергосберегающие стеклопакеты.
Совет! Отлично выглядит подиум. Он сделает данный дополнительный участок выше, а значит, теплее.

Подиум – эффектная «фишка» в интерьере квартиры
Для гармоничного вида следует выровнять поверхности: потолок, стены, пол. Следует позаботиться о качественной подсветке.
Рабочая зона
Это одно из помещений, которое не требует совмещения, и его можно обустроить обособлено. То есть рядом может быть хоть прихожая, хоть кухня и даже спальня. Места для рабочего стола, ПК или другого оборудования вполне достаточно.
Обратите внимание! На балконе достаточно удобно заниматься рукоделием, ведь тут много естественного света. Здесь можно обустроить рабочее место для школьника.
При установке оргтехники даже не нужно тянуть сюда электропроводку, вполне достаточно подключиться к переноске.

Отличное решение для дополнительной экономии жилого пространства
Стиль дизайна
В столь ограниченном пространстве даже с учетом балкона слишком разогнаться не получиться, поэтому следует учитывать определенные тонкости:
- По минимуму использовать мелкие аксессуары, украшения. Каждый квадратный сантиметр следует задействовать с пользой. Наличие подобных мелочей делает помещение загроможденным, замусоренным.

- В отделке, аксессуарах следует использовать только светлые тона и не допускать контрастных сочетаний. Единственный контраст, который допускается, – яркие, но светлые тона.

- По максимуму использовать встроенную мебель и современные функциональные решения. Имеются в виду раздвижные дверцы шкафов, встроенные полки, функциональные кровати, которые можно прятать за дверью шкафа.

Что касается конкретного направления дизайна, то оптимально использовать современные стили.
Второй ярус – оригинально и функционально
Случается, что хозяевам не везет с площадью, зато везет с высокими потолками. Если есть роскошь в 3 метра от пола до потолка, то можно обустроить второй ярус. Туда чаще всего выносится спальня, при этом первый ярус остается достаточно просторным.
Совет! В отдельных случаях на второй ярус удается вынести даже гардероб.
Обязательный элемент – это лестница, она может быть стационарной или приставной. Второй вариант лучше, ведь ее можно убрать в любое удобное время. Далеко не всегда нужен полноценный второй ярус, можно сделать подиум, а под ним вместительную систему хранения: шкафы, полки.
Мебель
Она должна быть определенного формата и функциональности, а именно:
- Шкафы и полки – достаточно вместительные, с раздвижными дверцами.
- Кухонный гарнитур. Лучше отказаться от большого стола, замените его барной стойкой, над ней размещаются полки.
- Мягкая мебель должна быть трансформером, ведь зона отдыха – она же чаще всего и спальня.
Вывод
Функциональное обустройство столь компактного пространства вполне реально. Конечно, для этого не всегда удается обойтись своими силами, поэтому не будет лишней помощь опытных дизайнеров.
happymodern.ru










