Дизайн проект образец – Пример рабочего дизайн-проекта.
Пример рабочего дизайн-проекта.
1. Обмерный план
2. План демонтажа и возведения новых перегородок (при необходимости делится на два плана: план демонтажа перегородок и план возведения новых перегородок)
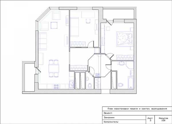
3. План расстановки мебели и оборудования
4. План размещения сантехнических приборов
5. План пола с указанием: отметки уровня пола, типа напольного покрытия, фото напольного покрытия и площади
6. План размещения теплого пола с привязкой регулятора
7. План устройства потолков и потолочных карнизов
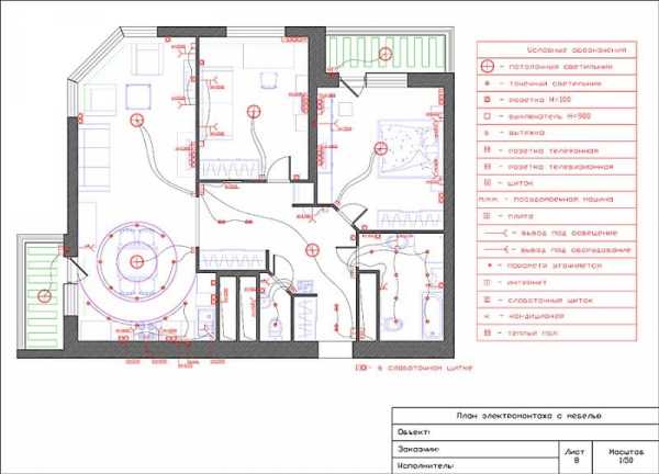
8. План размещения светильников, световых групп и выключателей
9. План размещения электрических розеток и электровыводов
10. План размещения дверей и дверных проемов
11. План размещения радиаторов с указанием технических характеристик
12. План размещения кондиционеров с технических характеристик
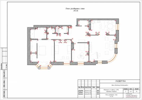
13. Развертки по стенам (количество чертежей зависит от специфики проекта)
14. Эскизная развертка кухонной мебели и оборудования
15. Ведомость рекомендуемого осветительного оборудования с указанием артикула, производителя, типа и мощности
16. Ведомость рекомендуемых сантехнических приборов с указанием типа, артикула и производителя
17. Ведомость заполнения дверных проемов с указанием наименования и производителя
18. Ведомость рекомендуемых отделочных материалов с указанием типа, артикула, производителя и площади
19. Ведомость с рекомендуемой мебелью
При необходимости разрабатывается:
20. Схема раскладки согласованной плитки
21. Узлы сложных и дизайнерских конструктивных решений
22. Чертежи и эскизы предметов индивидуального изготовления
23. Ведомость декора оконных проемов












































































artm.pro
Рабочий дизайн-проект квартиры
Дизайн-проект представляет собой комплект технической документации, который позволяет не только «увидеть» будущий интерьер, но и с высокой степенью точности определить (а также оптимизировать) предстоящие затраты на его реализацию.
Качественная проектная документация, как приложение к договору на выполнение ремонтно-строительных работ, является четким и обязательным руководством к действию для строительной группы. Таким образом точно определяется сам предмет договора, а заказчик избавлен от различных неожиданностей и необходимости давать указания и отвечать на вопросы строителей, неизбежно возникающие в ходе производства работ.
Пример технической документации из проекта квартиры (см. портфолио):
Пример материалов по визуализации интерьера, вошедших в состав проекта:
Гостевая комната
Детская комната
Кухня-гостиная при дневном освещении
Кухня-гостиная при вечернем освещении
Спальня со светлыми стенами
Спальня с темными стенами
Санузел малый
Санузел большой
Состав типового дизайн-проекта
- Общие данные.
- Пояснительная записка.
- Обмерный чертеж с привязкой инженерных коммуникаций.
План демонтажа перегородок и инженерных коммуникаций.- План возводимых перегородок с маркировкой оконных и дверных проемов.
- План помещения после перепланировки с размерами.
- План расстановки мебели и оборудования.
- План потолка с указанием типа используемого материала, отдельных узлов, высот и сечений.
- План размещения осветительных приборов, привязка монтажных гнезд.
- План выключателей с указаниемвключения групп светильников и привязка монтажных гнезд.
- План размещения электрических розеток и электровыводов с привязкой монтажных гнезд.
- План пола с указанием: отметки уровня пола, типа напольного покрытия, рисунка и размеров. Разрез конструкции пола с указанием слоев покрытия. Количество чертежей зависит от уровня сложности.
- План размещения электрического подогрева пола с привязкой регулятора.
- План размещения санитарно-технического оборудования с привязкой выпусков и приложением монтажных чертежей от производителя.
- Развертка стен с раскладкой плитки и указанием размеров, артикула, площади вабранного материала.
- Разрезы и развертка стен с декоративными элементами. Количество чертежей зависит от количества и уровня сложности декоративных элементов.
- Чертежи заказных изделий (выполняются в случае необходимости).
- Спецификация дверей с указанием размеров дверных проемов.
- Спецификация осветительного оборудования с указанием типов, мощности и др. специальных требований.
- Спецификация электромонтажной арматуры с указанием типа изделий и др. специальных требований.
- Спецификация электрооборудования (основные потребители).
Ведомость отделки.- 3D визуализация проекта. В эскизах на стадии проектирования отрисовываются только реальная мебель, оборудование и материалы.
КОНТАКТЫ в САНКТ-ПЕТЕРБУРГЕ:
г. Санкт-Петербург, проспект Римского-Корсакова, 45
КОНТАКТЫ в КРАСНОДАРЕ:
г. Краснодар, ул. Харьковская, 81/1 (81/6)
ПОЧТА: [email protected]
Видеоэкскурсия по объекту
Дизайн интерьеров
Подбор материалов, мебели и оборудования
Помощь и консультации:
Рубрики сайта
Полезная информация
Рекомендуем посмотреть интересную дизайнерскую мебель и светильники от:
Люстры и светильники
remont-sk.ru
Пример готового дизайн проекта
-

Ведомость чертежей основного комплекта
-

Обмерочный чертеж
-

План расстановки мебели
-

План демонтажа перегородок
-

План монтажа перегородок
-

План после перепланировки с привязками
-

План потолков с привязками
-

Узлы потолков
-

План размещения осветительных приборов и выключателей с мебелью
-

План размещения осветительных приборов с привязкой выпусков
-

Размещение выключателей с указанием групп включения светильников
-

План размещения электроточек и выводов с мебелью
-

Схема размещения электроточек и выводов с мебелью
-

План теплого пола
-

План напольных покрытий
-

Схема заполнения дверных проемов
-

Развертка стен и раскладка плитки в ванной
-

Развертка стен и раскладка плитки в гостевом санузле
-

Визуализация гостиной
-

Визуализация спальной комнаты
-

Визуализация коридора
-

Визуализация кухни
-

Визуализация ванной
-

Визуализация гостевого санузла
Хочешь такой же? Оставь заявку прямо сейчас!
Похожие работы
art-remont.ru
чертежная документация, визуализация, спецификация, пояснительная записка

Документация и оформление дизайн-проекта
Дизайн-проект отображает объёмно-планировочные решения объекта: цветовое решение, композицию, свет, расположение элементов декора и предметов интерьера. В дизайн-проект входит пакет документов: чертежная документация, визуализация, спецификация пояснительная записка. В зависимости от уровня сложности и объема, состав дизайн-проекта может быть разный, например, без пояснительной записки или спецификации. При заключении договора заказчик уточняет у дизайнера, какой перечень проектно-чертежной документации он включает.

Чертежная документация – пошаговая планировка проведения ремонтных работ дизайн-проекта. Разработка схем и чертежей производятся на основании замеров помещений. В чертежно-проектной документации обязательно должно указываться расположение электрических выводов, монтаж и демонтаж стеновых конструкций и перегородок, расположение сантехники, кладка плитки, расстановка мебели. Составляется план отделки полов и потолков с подобранными материалами, покрытиями и оборудованием, где предусматривается распределение приборов освещения, коллекторов и регуляторов (для системы теплый пол), учитываются нормативы мощности и количество светильников. В схеме открывания дверей указывается вид, направление, местоположение и размеры дверей в помещении. Развертка стен в чертежах дает возможность увидеть фронтальную проекцию стен всех помещений, что помогает распределить количество используемых материалов, составить разметку розеток, определить место для гипсокартонных конструкций и т.д.

Визуализация – реалистичное изображение помещения после ремонта, благодаря которому заказчик может представить интерьер будущего проекта, чаще всего предоставляется в нескольких вариациях. Детально отображает фактуру и цветовую гамму покрытий, расстановку мебели и предметов декора, освещения и позволяет внести корректировки.

Спецификация – точное описание технических характеристик объектов, предметов и закупочных материалов в проекте. Составляется дизайнером для правильного подбора отделочных материалов, покрытий, света и мебели, расчета их количества и примерной стоимости. На этапе поиска и выбора отделочных материалов, мебели, текстиля и элементов декора, дизайнер может сопровождать заказчика в поездках по салонам и магазинам.
Пояснительная записка — задает общую дизайн-концепцию и создает целостную композицию интерьера. Грамотно составленная пояснительная записка – полезная составляющая дизайн-проекта интерьера. Она несет вспомогательную функцию и передает в мельчайших подробностях функциональные, технические, декоративные решения проекта, что очень важно для клиента и бригады, выполняющей весь спектр работ, от планировки помещения до его декорирования.
Чертежи
1. План обмера помещения.

Показывает основные параметры всех помещений объекта (офиса, торгового центра, жилого дома, квартиры и т.д.) до перепланировки. В плане указываются основные характеристики: точные размеры всех комнат, высота потолков, параметры оконных и дверных проемов, включая схемы расположения канализации, электропровода, трубопровода, газопровода и т.д.
2. Планы по сносу и возведению стен.


Данные планы составляются одновременно, выделяются стеновые конструкции и перегородки, которые подлежат сносу и возведению в процессе ремонтных работ, важно проследить, чтобы документы не противоречили друг другу, так как от них зависит дальнейшая планировка всех помещений.
3. План помещения после перепланировки с обмерами.

Путем синхронизации двух планов по сносу и возведению стеновых конструкций и перегородок, выделяется окончательное расположение стен и перегородок во всех помещениях.
4. План помещения после перепланировки с обмерами и расстановкой мебели.

Определяет последующее расположение предметов интерьера и мебели в помещениях. В процессе составления необходимо предусмотреть все детально от местонахождения мебели до бытового оборудования и электроприборов, от этого зависит функциональность всех помещений.
5. План электромонтажных работ.

Согласовав план помещения после перепланировки с обмерами и расстановкой мебели, создается план по проведению и распределению электромонтажных работ, он включает установку и размещение электротехники, осветительных приборов, линий выключателей — прорисовывается разметка электросетей и розеток.
6. План электромонтажа с обмерами и расстановкой мебели.

Отображает расстановку мебели и электроприборов во всех помещениях, создается на основании наложения предыдущих документов: плана помещения после перепланировки с обмерами и расстановкой мебели и плана электромонтажных работ. Помогает определить, где можно разместить предметы интерьера и бытовую технику.
7. План напольных покрытий.

Показывает, в каких помещениях, какой тип покрытия будет использоваться, указывается начало направления раскладки, высота подиумов, размечаются стыковые элементы, рассчитывается площадь покрываемой поверхности.
8. План потолков.

Указывает на типы используемых материалов в разных помещениях, площадь и радиус покрываемых поверхностей. В документе рассчитывается, где и какие конструкции будут возводиться, начиная от световых карнизов до многоуровневых элементов.
9. План маяков разверток.

Помогает быстро сориентироваться в помещениях и развертках стен. Они обозначаются специальными номерами – маяками соответствующей развертки.
10. Развертка стен санузлов.

Учитывает типы покрытия, линии стыков и площадь покрываемой поверхности стен. Указывает на расположение объектов, предметов быта и мебели санузлов.
11. Развертка стен и раскладки плитки.
Позволяет увидеть на каких участках расположены элементы оборудования или встроенные конструкции. Указываются типы покрытий, отделка и направления раскладки этих покрытий. Также обозначаются следующие объекты: двери, ниши, арки элементы декора и т.д.
12. Экспликация.

Дает итоговое представление о параметрах всех помещений вследствие ремонта.
Комплект чертежной документации варьируется в зависимости от характеристик объекта, могут создаваться отдельные схемы и планы для сложных элементов помещений – вентиляционных систем, систем кондиционирования и отопления. Также отдельно могут рассматриваться сложные элементы помещения – ниши, арки, лестницы и прочее.
Визуализация
Подразумевает под собой реалистичное изображение дизайн-проекта в помещении во всех подробностях. Визуализация может быть выполнена в разных вариациях:

Эскиз от руки (акварель, карандаш, маркер и т.д.) – данная подача удобна для фиксации на бумаге пожеланий собеседника, внесения изменений «на ходу», отражает профессионализм дизайнера, каждый ракурс рисуется с нуля, сразу расставляются акценты интерьера.

Компьютерная 3D визуализация (фотореалистичная) – разработка занимает больше времени чем «ручная подача», предполагает серьезный пласт знаний в определенной программе, мощный компьютер и обширную базу элементов, т.к. нарисовать и передать определенную фактуру предметов на компьютере не так просто, но дает более реалистичное представление интерьера с разных ракурсов.

Коллажи и борды – считается наиболее информативным способом подачи, более тщательно и точно передает детали и компоновку, удобен для сравнения ценовых характеристик предлагаемых предметов и элементов декора.
Также существует смешанная техника – эскизы от руки форматируются и обрабатываются на компьютере и компонуются, например в коллаж.
Спецификации и ведомости
Ведомость – представляет собой набор характеристик и количество отделочных материалов для помещений и определяет их стоимость, закладывает основной бюджет под разработку дизайна интерьера. Составляется в соответствии с ГОСТом 21.101 (форма 1), чаще всего на этапе проектирования дизайн-проекта составляется в виде таблицы. Количество столбцов и граф диктуется наличием предметов и элементов декора интерьера, площадями помещений подлежащих отделке, которая высчитывается в соответствующей документации (планах, схемах, развертках).

Спецификация – общая ведомость по отделке и декорированию всех помещений. Является перечнем используемых чистовых материалов, покрытий, сантехники, мебели, бытовой техники, светильников и элементов декора. Включает в себя их точное количество, стоимость и рекомендации о местах приобретения. Дает полное представление предстоящих расходов для воплощения дизайн-проекта.
designbd.ru
Дизайн проект квартиры (пример) |
Дизайн проект квартиры (пример) |- Главная /
- Дизайн проект квартиры (пример)
Пример дизайн-проекта квартиры 200 кв.м
Ниже мы приведем пример стандартного Дизайн-проекта квартиры 200 кв.м
Дизайн проект интерьера квартиры состоит из трех этапов.
Планировочное решение, включающее в себя план возводимых перегородок, план расстановки мебели и план полов. Все планы выполняются в программе AutoCAD и предоставляются в электронном и печатном виде.
Трехмерная визуализация. Дает клиенту возможность увидеть реалистичные фото будущего интерьера. Также помогает строителям в деталях понять все особенности интерьера. 3D визуализация очень важна, т.к она решает многие строительные вопросы, возникающих в ходе строительных работ. Но самое главное! 3D визуализация позволит вам избежать ошибок и увидеть ваш интерьер еще до его исполнения! Вы сможете ощутить себя в нем. Наши архитекторы смогут провести для вас интерактивную прогулку по квартире, увидеть все ракурсы и подробности интерьера. Что отличает нашу дизайн студию — это то что мы сами делаем все 3D и вы имеете уникальную возможность вносить изменения в интерактиве! Наша технология работы также позволяет архитектору выехать с компьютером на объект и провести для вас консультацию на месте, создавая максимальный эффект присутствия.
Рабочая документация для строителей. Разрабатывается на основе уже выполненной и утвержденной клиентом 3D визуализации.
Рабочая документация включает в себя следующие планы:
- Составление документации с планом привязок потолка, его разрезов и сечений.
- Обозначение расположения приборов освещения.
- Привязка светильников.
- Размещение и привязка выключателей.
- Составление плана привязок и схем расположения розеток всех типов.
- Раскладка и схема расположения полов.
- Составление схем размещения теплых полов.
- Развертки стен.
- Разрезы основных конструкций.
БАЗОВЫЙ ДИЗАЙН ПРОЕКТ всего по 1350 руб за кв.м !
Ниже Вы сможете рассчитать стоимость ДИЗАЙН ПРОЕКТА Вашей квартиры или дома. Укажите площадь вашей квартиры и выберите те опции, которые Вам хотелось бы заказать. Наша дизайн студия гибко подходит к проектированию. Мы можем выполнить 3D визуализацию, только для необходимой площади.
Галерея работ
-

Дизайн интерьера пентхауса выполнен в ЖК на Староволынской. Этот дизайн интерьера очень необычен. Он сочетает в себе классику и современность и даже эко направление. Что самое необычное, что пентхаус занимает два этажа. Это объединение двух квартир. Отличительной чертой является балкон в форме ротонды с куполом, в нем расположилась обеденная группа.
Пентхаус на Староволынской
-

В данном проекте интерьер в стиле неоклассики. его особенность в использовании ярких акцентов. на сдержанном белом фоне стен выступают графичные формы мебели, для увеличения пространства используются зеркальные вставки. Эклектичные сочетания современных арт объектов с классическими формами карнизов и молдингов.
Проект частного дома 300 кв.м
-

Это квартира совмещает в себе прелесть загородной жизни в центре Москвы. Это жилой комплекс Capital house. Малоэтажное здание с частным садом. Проект выполнен с духе популярной неоклассики. Классические элементы на фоне современного интерьера. Необычность планировочного решения этого проекта заключается в наличие большого холла, объединенного с кухней — столовой.
Новое прочтение классики
-

В этом проекте нами выполнено все, начиная от архитектурного проекта гостевого дома, малых архитектурных форм, конструкции зимнего сада, индивидуально проработанной и выполненной мебели на заказ Итальянскими фабриками, до текстиля, авторских ковров и картин.
Проект в Доме в Новогорске
-

Это квартира в Жилом комплексе Capital House. Проект выполнен в современной минималистичной стилистике. Кухня фабрики Poliform Varenna Alea Стулья в гостиной Poliform Grace стол Poliform Concord.
Минимализм — как основа
-

Данный проект разработан для квартиры в ЖК премиум-класса «Парк Рублево» Этот комплекс расположен внутри парковой территории на берегу Москвы-реки. Красивые панорамные виды, естественное природное окружение, авторская архитектура. Данная квартира площадью 154 кв.м решена очень удачно.
Проект квартиры в «Парке Рублево»
-

Это проект на острове Крит. Потрясающие панорамные виды, захватывающие дух, открываются из окон, птицы парят над морем. Поэтому конечно лаконичный и конструктивный дизайн вписывается в окружающий ландшафт. Строгие геометрический формы, круглые плоскости, сочитающиеся с фасадам зданий.
Проект дома на острове Крит
-

Это проект на острове Крит. Потрясающие панорамные виды, захватывающие дух, открываются из окон, птицы парят над морем. Поэтому конечно лаконичный и конструктивный дизайн вписывается в окружающий ландшафт. Строгие геометрический формы, круглые плоскости, сочитающиеся с фасадам зданий.
Интерьер квартиры на острове Крит
-

Это проект на острове Крит. Потрясающие панорамные виды, захватывающие дух, открываются из окон, птицы парят над морем. Поэтому конечно лаконичный и конструктивный дизайн вписывается в окружающий ландшафт. Строгие геометрический формы, круглые плоскости, сочитающиеся с фасадам зданий.
ЖК Долина Сетунь 230 кв.м
ПОСМОТРЕТЬ ГАЛЕРЕЮ РАБОТ
Видеосюжеты с наших объектов
ПОСМОТРЕТЬ ВСЕ ВИДЕОСЮЖЕТЫ
Остались вопросы? Хотите сделать заказ?
Звоните нам в офис
+7 (916) 320-62-03, +7 (495) 761-37-36
Пишите письма по электронной почте:
[email protected]Прямые контакты менеджеров:
(только для консультаций клиентов и заключения договоров)
Закалата Мария:
+7 (916) 320-62-03
Липатников Максим:
+7 (916) 456-95-69
ЦеныКалькулятор стоимости
design-rise.ru
Примеры чертежей в составе дизайн-проекта квартиры – фото примеры и назначение
Чертежи дизайн-проекта: краткая характеристика и примеры
Планы, схемы, развертки и ведомости образуют документальную основу интерьерного проекта. Здесь содержатся данные, необходимые для реализации профессионального ремонта: размеры, площади, объемы.
В состав чертежей по дизайн-проекту входят обязательные документы и дополнительные (их дизайнер готовит по желанию заказчика).
Чертежи, необходимые для каждого проекта
В первую группу относят планировочные решения:
Здесь указаны точные размеры квартиры целиком и отдельных помещений (площадь, высота потолков), толщина внутренних монолитных стен, расположение кирпичных перегородок, точки подключения стояков отопления, место и высота подводки водоснабжения, ширина оконных проемов, перепад уровня пола, расстояние между стенами, перегородками и окнами относительно друг друга. Это основа для работ по перепланировке.
- План демонтажа
Входящие в дизайн-проект квартиры чертежи обозначают красным цветом перегородки, от которых придется избавиться. Приведены размеры сносимых и соседних участков. Перед началом работ все отметки и размеры проверяют еще раз на месте.
- План возведения перегородок
Здесь цветом выделяют местоположение возводимых кирпичных перегородок, их толщину. Собственным цветом обозначают перегородки из гипсокартона. Все размеры даны без учета чистовой отделки, за нулевую отметку по высоте принят уровень чернового пола. Рабочие чертежи дизайн-проекта интерьера по возведению перегородок могут быть дополнены ведомостью дверных проемов с указанием типа двери (распашная, сдвижная, одно- или двухстворчатая) и размеров прохода.
- План расстановки мебели и оборудования
На этом чертеже приведены места размещения предметов мебели (кроватей, диванов, кресел, туалетных и журнальных столиков, тумб, подвесных и встроенных шкафов), а также их точные размеры. Для санузла и кухни указаны габариты сантехники и варочного оборудования.
- Экспликация помещения
Это таблицы с перечнем помещений и их площадей. Дополняют основные планы и помогают лучше в них ориентироваться.
23.jpg
Вторую обязательную группу образуют рабочие чертежи дизайн-проекта, связанные с технологическими аспектами ремонта:
Здесь рисунком обозначены напольные покрытия с расшифровкой (мрамор, щитовой паркет, плитка). Помимо облицовочных материалов отмечены ковры с толщиной ворса. За нулевую отметку по высоте на плане принят уровень чистового пола после устройства стяжки.
- Разрез пола по уникальным участкам
Показаны сечения полов на местах стыков разных покрытий (к примеру, мрамора и паркета) или при устройстве теплого пола, с указанием высоты от уровня стяжки.
- План теплых полов
Включенные в дизайн-проект интерьера чертежи содержат схему размещения системы теплого пола на общем квартирном плане, обозначены площади этих фрагментов, их длина и ширина.
- План потолков
Цветом показаны разные потолочные покрытия (гипсокартон, влагостойкий гипсокартон, штукатурка, карнизы). За нулевую отметку по высоте здесь принят уровень верхней плиты перекрытия. Буквами обозначены места сечений для следующего чертежа.
- Разрез потолка по уникальным участкам
Внимание уделено стыкам между потолочным покрытием и стеной, соседним облицовочным материалом. В каждом случае отмечены ширина и высота металлического профиля, ГКЛ, гипсового карниза, место прокладки светодиодного шнура.
- План расположения осветительного оборудования
Это пример чертежей дизайн проекта, где на плане потолков указывают точки электровыводов и места размещения: люстр, подвесных и точечных светильников, бра, картинной и зеркальной подсветки, торшеров, настольных ламп, светодиодных лент.
- План распределения линий по выключателям
Здесь остаются условные обозначения светильников и показано, как и к какому типу переключателя они подсоединяются (одно- или двухклавишному).
- План размещения розеток, электровыводов, слаботочных сетей
Контрастным цветом выделены места силовых, влагозащищенных, акустических розеток, подключения телефона, видеодомофона, спутниковой и телевизионной антенны; стоят отметки о высоте монтажа.
- Принципиальная схема водоснабжения и канализации
Тремя цветами схематично показано подключение техники на кухне и в санузле (выполнить чертежи дизайн-проекта поручают проектировщикам). Реальную разводку труб производят в соответствии с проектом водоснабжения и канализации, техническими данными сантехнического оборудования.
- Привязка устройств систем вентиляции и кондиционирования
Как в предыдущем случае, здесь приводится принципиальная схема подключения. Сами работы производят по отдельно подготовленному проекту.
Перечень дополнительных чертежей дизайн-проекта
Включает варианты стилевых решений и подборки материалов.
Интерьерный стиль и подробности декоративной отделки определяют несколькими способами:
- коллажи – это двухмерное представление (общее и детализированное) о будущей обстановке квартиры на основе собранных в коллекцию иллюстраций, компьютерных или бумажных;
- развертки стен и декоративных элементов – фронтальная проекция четырех стен конкретного помещения с указанием размеров дверных и оконных проемов, высоты расположения полок, розеток, выключателей, светильников, панно, столешниц. Чертежи дизайн-проекта комнаты используют антропометрическую модель (фигуры взрослых мужчины и женщины), чтобы варианты размещения каждого предмета интерьера можно было соотнести с пропорциями человеческого тела;
- 3D визуализация – трехмерное моделирование пространства квартиры или дома по отдельным помещениям. Высокий уровень детализации дает возможность рассмотреть оформление любой зоны. Сюда же можно отнести создание видеоролика интерьера.
К дополнительным чертежам дизайн-проекта относят также ведомости по подбору отделочных материалов. Для каждого помещения расписан вид и площадь отделки для пола, потолка, плинтуса, стен. Такие же ведомости готовят по приборам освещения, предметам мебели, сантехнике.
Стоимость чертежей дизайн-проекта зависит от состава альбома с документацией, минимальный набор включает планировочные и технологические решения. Готовый дизайн-проект с чертежами поступает в работу инженерам, отделочникам, сантехникам. Грамотно составленные планы и схемы экономят время на закупку материалов, мебели, оборудования и сам ремонт.
Проектные документы в компании «ТопДом»
Наши специалисты подготовят обязательные и дополнительные чертежи по вашему проекту с учетом архитектурных и технических особенностей помещения, а также строительных норм и правил. Соблюдение требований ГОСТ особенно важно при демонтаже и возведении новых перегородок в многоквартирных домах.
С качественными чертежами интерьер получит мощный старт для его реализации в ремонте и отделке.
www.topdom.ru
Дизайн проект чертежи — Анастасия Евстифеева дизайнер интерьеров

Наш чертёж – залог вашего спокойствия
Воплотить в жизнь авторскую концепцию дизайна просто невозможно без создания всех необходимых чертежей. Разумеется, они не просто должны быть, важно правильно и со знанием дела подойди в их оформлению. Планируя ваш ремонт, дизайн-проект, составленный нашей командой обязательно будет включать в себя все необходимые чертежи. Специальное образование дизайнеров позволяет им создавать документацию, несущую исчерпывающую информацию.
Как только дело доходит до реализации проекта, то есть до самих ремонтно-отделочных работ, все чертежи передаются в руки прорабу. От их понимания командой строителей в полной мере зависит то, насколько точно будут реализован проект. Любое отклонение от намеченного дизайнером плана может повлечь за собой кучу проблем. Во-первых, весь ремонтный процесс значительно затянется. Во-вторых, клиент понесёт дополнительные затраты на устранение накладок. И, в-третьих, не проконтролировав процесс реализации, клиент и дизайнер элементарно получат помещение, не соответствующее их ожиданиям.
Сотрудничая с нашей опытной командой все эти проблемы вам не страшны. Созданные дизайнерами схемы, чертежи, планы и сметы легко читаются, и будут понятны каждому опытному прорабу. Составление чертежей никогда не проходит в один этап. Мы постоянно дополняем наши схемы, согласовывая определённые нюансы с заказчиком. И только достигнув полного согласия с вами, мы уверенно сможем завершить оформления чертежа или эскиза.
Многолетний опыт работы позволяет с точностью расписывать все составляющие схем, с указанием правильной экспликации. Наша цель – создать чёткий и доступный чертёж, который будет понятен как вам, так и тем, кто возьмётся реализовывать авторскую концепцию в жизнь. Документация создаётся с учётом всех государственных норм и требований, что гарантирует вам качественный и долговечный ремонт.
Для того, чтобы убедиться в техничности создаваемых чертежей, вы можете посмотреть приложенный пример дизайн-проекта. В его состав входят все типовые планы и схемы, обязательные к реализации во время ремонта. Основной пакет чертежей поможет заказчику убедиться как в своих идеях, так и в правильном видении их дизайнером.
svitova.com
































