Дизайн проект квартиры студии 30 кв м – планировка современного интерьера с одним окном и с балконом, как обустроить прямоугольную комнату
дизайн квартиры студии 30 кв.м. в современном стиле
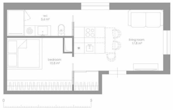
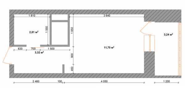
Перед нами стояла задача разместить на площади 30 кв. метров не только гостиную-кухню, традиционную для квартир-студий, но и отдельную спальню. Эту проблему мы решили, присоединив к жилой зоне балкон, что позволило выделить достаточно места для спальной комнаты.
При планировке мы разделили студию площадью 30 кв. метров на две зоны: гостиную, совмещенную с кухней, и спальню, получившуюся благодаря присоединенному к ней балкону.
Мы не пошли по привычному пути, когда кухонную зону делают смежной с санузлом. Вместо этого мы компактно расположили кухню вдоль одной из стен центральной комнаты, в результате чего зона гостиной выглядит более обособлено.
Санузел мы сделали совмещенным – это сэкономило место для стиральной машины. В прихожей нам удалось разместить большой и удобный шкаф-купе, оставив еще достаточно свободного пространства.
На фото представлена планировка нашей квартиры-студии 30 кв. м. – общий план, вид сверху.
Дизайн квартиры-студии 30 кв. м. выполнен в стиле минимализма, в интерьере активно использовалась кирпичная кладка. Бюджет заказчиков был ограничен, поэтому мы выбирали экономные и практичные материалы: напольный ламинат, для стен – покраска, недорогие обои и искусственный камень.
Дизайн гостиной достаточно лаконичен, так как в комнате площадью всего 13 кв. м. необходимо было разместить и кухню, и зону отдыха с диваном и обеденным столом. Для меблировки мы выбрали диван системы «аккордеон», легкие пластиковые стулья и минималистичный столик с металлическими ножками.
В интерьере мы применили отделку из красного декоративного кирпича, оформив им кухонный фартук и стену в зоне ТВ. Кирпичная кладка в сочетании с фотообоями в виде старинного почтового конверта придает дизайну изящный налет ретро-стиля.
Дизайн спальни продолжает общую эстетику интерьера квартиры-студии: светлая гамма оттеняется акцентной стеной из красного кирпича. Хотя площадь комнаты лишь 10 кв. метров, мы смогли поместить здесь двуспальную кровать, шкаф, небольшой комод и книжные полки, «утопив» их в стенной нише.
Благодаря окну во всю стену даже такая маленькая спальня выглядит легкой, объемной и светлой. Для того чтобы дневной свет попадал и в остальную часть квартиры, между спальней и гостиной мы установили раздвижную витражную конструкцию.
Основной декоративный акцент в прихожей – половая плитка с геометрическим орнаментом. Пестрая фактура напольного покрытия не только украшает интерьер, но и делает менее заметными следы от уличной обуви, которые неминуемо остаются в холле. Вместительный шкаф-купе со светлыми дверцами выполнен на заказ, потому идеально вписался в нишу. Стены облицованы практичным и недорогим белым кирпичом, делающим прихожую визуально просторней.
Ванная комната в квартире студии занимает всего 4 кв. метра. Тем не менее, она укомплектована всем необходимым: здесь есть душевая кабина, унитаз, раковина с подвесной тумбой, стиральная машина.
Для облицовки ванной использовалась недорогая керамическая плитка, интерьер оформлен в нежно-золотистой гамме. Роль акцента в дизайне играет мозаика с оригинальным узором, которой декорирована одна из стен.
denisserov.ru
Дизайн квартиры студии 30 кв. м. Фото проектов
Квартира студия – настоящая палочка-выручалочка для людей, которым надоело ютиться в каморках, походящие на жилище крота из мультфильма «Дюймовочка».
Инновационные разработки маэстро дизайнерского искусства позволяют до неузнаваемости изменить малогабаритную квартиру, при этом наполнив ее комфортом, уютом и гармонией.
Дивный дизайн квартиры студии 30 кв. м, наполненный простором, – «розовая» мечта, покинувшая волшебный мир грез, и воплотившаяся в реальность!
Превосходные идеи для дизайна квартиры студии 30 кв. м: подарок известных кутюрье интерьера!
Приступая к ремонту, хочется, чтобы жилище было не только удобным, но и прекрасным, с нотками шарма, грации, гармонии. Для воплощения смелых и ярких идей лучше воспользоваться услугами специалистов, но если таковой возможности нет, можно вдохновиться чудными идеями маэстро дизайнерского мира и воссоздать необычный интерьер самостоятельно. Представляем фото дизайна студий в 30 кв.м.
Проект №1. Фото. Тихая гавань
Инна Усубян студия “Decolabs”
Заветное желание каждого человека – испить исцеляющего бальзама из чудотворного источника, название которому «Дом».
Для приверженцев ритмичного образа жизни дизайнеры предлагают оформить интерьер в серых, белых тонах с ненавязчивыми вкраплениями черного и коричневого цветов. Оттенки невероятно популярны и часто используются дизайнерами. Так как несут спокойствие, умиротворение и расслабление.
К тому же выбранная палитра превосходно корректирует помещение, визуально расширяя границы. Серый цвет придает объемов, белый дарит свежесть, коричневый – тепло, черный – эффектность.
Приступая к разработке дизайна квартиры студии 30 кв.м., следует ответственно отнестись к выбору перегородок. Интересный вариант для разделения гостиной и кухни – фальшивая перегородка, она не утяжеляет обстановку и не съедает площадь. Спальню от гостиной можно разделить плотными шторами. Идея практична и романтична.
Каждая хозяйка мечтает о просторной и комфортной кухне. Дизайнеры советуют отдать предпочтение гарнитуру с многочисленными ящичками и шкафчиками, желательно в 2 яруса, чтобы спрятать всю бытовую технику: от посудомоечной машинки до миксера.
Экстравагантная, но невероятно практичная идея – вместо стандартного фартука воспользоваться грифельной доской, так как можно записывать понравившиеся рецепты, разные милости, послания.
Не стоит приобретать громоздкую мебель. Сегодня, производители предлагают конструкции, которые способны заменить многие вещи.
Пушистый палас, шторы, приборы освещения, картины, декоративные свечи – незаменимые помощники в оформлении интерьера мечты!







[urlspan][/urlspan]
Декор для интерьера. Фарфоровые фигурки котят
[affegg id=17]
Бра на стену. Огромный выбор в интернет – магазине
[affegg id=12]
Проект №2. Фото. Природная гармония
Сергей Петров компания “Home in the Woods”
Жители мегаполисов мечтают слиться с природой, насладиться ее божественными ароматами, чистотой и свежестью, а вместо этого получают заряд от промышленных отходов.
Чтобы в атмосфере жилища витали исцеляющие нотки свежести, чистоты и легкости, обратите внимание на природные материалы.
Стиль эко – удачный выбор успешных людей. Он сочетает натуральные цвета, формы, материалы и современные методы обработки.
Дизайн студии на фото, оформленный в стилевом направлении эко, просторный и светлый, словно сама матушка-природа пришла на помощь, и переделала все, ориентируясь на свои вкусы и предпочтения.
Для любителей легкой небрежности дизайнеры предлагают внести дерзкие нотки направления лофт.
Палитра дизайна должна максимально приближаться к природным цветам. Идеально на эту роль подойдут: белый, бежевый, коричневый и серый цвета.
Отделка стен и пола из ценных пород древесины в сочетании с натуральным облицовочным материалом мебели – превосходная композиция, которая пленит теплом, уютом и эффектностью.
Превосходно подойдет на роль «перегородки» между гостиной и кухней диван или мягкий уголок.
Спальню от гостиной отгораживать необязательно, а вот создать маленький холл можно благодаря стене с вмонтированным шкафом.
Предметов интерьера не должно быть много, достаточно кровати в спальне, дивана, журнального столика в гостиной, обеденного стола и гарнитура в кухне. Может для кого-то такой набор покажется скудным, но можно приукрасить интерьер оригинальным природным декором и квартира станет невероятно привлекательной и комфортной.






[urlspan][/urlspan]
Картины для украшения интерьера
[affegg id=2]
Шторы в квартиру
[affegg id=14]
Проект №3: свет и тепло в сладострастном танце!
Дизайнер Антон Гришин, г. Москва
Когда льют дожди, сопровождаемые верными спутниками – мрачностью и сыростью, хочется очутиться на острове, где солнце обнимет и приласкает теплыми лучами.
Можно оформить дизайн студии в скандинавском стиле. Смотрите фото далее.
Воссоздать солнечный интерьер просто. Следует отдать предпочтение белому цвету с легким, ненавязчивым вкраплением желтого тона.
Чтобы интерьер не казался скучным, мебель можно приобрести нежно-коричневого тона, а стену украсить яркой картиной. «Изюминка» стилевого направления – яркий свет. Поэтому нужно купить бра, торшеры, потолочные светильники.
Отделка стен и пола должна быть простой. Стены можно гладко отштукатурить и покрыть краской. Тонированный и выбеленный пол из досок привнесет в атмосферу жилища покой, умиротворение и комфорт. Для потолка не стоит использовать сложные многоуровневые конструкции. Он должен быть гладким и белоснежным.
Воспользуйтесь многофункциональными предметами интерьера, так как мебели должно быть минимум.
Декоративные подушки, пледы, коврики, вазы, картины и живые цветы придадут интерьеру домашности. Откажитесь от вычурных аксессуаров, они должны быть максимально простыми.
Интерьер квартиры в скандинавском стиле не позволит вам грустить.







[urlspan][/urlspan]
Проект №4. Фото. Вечное лето
Дизайнер Антон Гришин, г. Москва
Люди, мечтающие о круглогодичном лете, просто обязаны воссоздать его в стенах своего дома, дабы наслаждаться приятными воспоминаниями и чудесным настроением.
Стандартная планировка квартиры студии 30 кв.м. подразделяется на 4 зоны: спальня, гостиная, кухня и санузел. Но некоторые варианты состоят из гардеробной, спальни-гостиной, кухни и санузла.
С ролью перегородки между спальней и кухней легко справиться барная стойка.
Между оставшимися основными стенами можно обустроить гардероб.
Для летнего интерьера дизайнеры советуют воспользоваться белым, желтым, голубым и бежевым цветами. Можно выбрать более насыщенную гамму, но помните, атмосфера должна способствовать расслаблению. Обилие ярких красок может негативно сказаться на психоэмоциональном состоянии человека.
Превосходен в летнем интерьере облицовочный материал из ценных пород древесины. Он не только красив, но и необыкновенно ароматен. Прикасаясь к древесине можно ощутить величие леса и тепло, дарованное летним солнцем.
Мебель с голубой отделкой создаст иллюзию морской глади, а легкие, невесомые гардины, позволят наслаждаться дневным светом. Живые цветы помогут настроиться на позитивный лад, даря свежесть. А разнообразные источники искусственного света привнесут тепла и мягкости.
Дизайн квартиры студии 30 кв.м. может быть по настоящему волшебным, приложив немного усилий, жилище удивит очаровательной песней, которая проникнет в потаенные глубины сердца.









[urlspan][/urlspan]
harthaus.ru
Дизайн квартиры 30 кв. м.
Какой дизайн квартиры 30 кв. м. может быть сотворен? В особенности, если все метры находятся в однушке? Если маленькая у вас квартира, если остро стоит вопрос в том, чтобы жилье сделать функциональным, комфортным, то нет иного выхода, как стать профи в мире дизайна, или же у профессионалов заказать проект квартиры 30 кв. м.

Заказывая у профессионалов проект, специалисту нужно донести все предпочтения свои, пожелания, потому как жить потом в такой квартире вам, и нужно, чтобы вам было комфортно.

Кроме того, после, просмотрев дизайн, можно будет понять, нужна ли перепланировка квартиры 30 кв. м. для реализации проекта или же можно начинать ремонт с тем, что есть.

В стилистике современного интерьера небольшой однушки стиль хай-тек занимает важную нишу, потому как наблюдается гармония сочетания комфорта с инновациями.

Лаконичные формы, современная техника – это все позволяет создать эстетичное и практичное помещение, при этом затраты на ремонт квартиры 30 кв. м. минимальные.

Отделка помещения
Совсем маленькая квартира в 30 м2, и потому важна правильная и продуманная отделка. Поверхность стен однотонная.

Стены могут отделываться не только традиционно, путем окрашивания, но и новыми видами, например, стеклообоями. Часто используют жидкие обои, на флизелиновой основе, а также современную штукатурку, панели стеновые из пластика.

Зонирование выполняют перегородки из гипсокартона, закалённого стекла. Идеальное зонирование выполняется при помощи раздвижных ширм. Привычные нам шторы не используются, потому как вместо них роллеты.

Потолок выполняют белый, ровный, либо натяжной, либо же из гипсокартона. На пол кладется виниловая плитка.

Цвет оформления
Дизайн 1 комнатной квартиры 30 кв. м. лучше всего выполнять в контрастирующих между собой тонов, но при этом преобладает в паре светлый тон.

Если нужен фрагментарный акцент, используется броский тон, например, если интерьер однокомнатной квартиры 30 кв. м. выполнен в черно-белой гамме, допустимо использование пуфа-кресла, выполненного в ярко-лимонном оттенке.

Мебель
Мебель максимально функциональная, идеально дополнит интерьер студии в 30 м2. Оптимально, за счет совмещения комнаты с кухней, использовать шкаф-купе, что вместит все то, что не должно быть на глазах, чтобы не захламлялось пространство.

Кровать традиционная, массивный диван редко когда используются, в основном выполняется замена – раскладные аналоги – тахта, которая трансформируется из односпальной кровати в двуспальную, весьма просторную.
Также может быть использован так называемый гостевой диван, который уютно размещает в сложенном виде до трех человек.

Стол, столешница которого выполнена из каленного стекла, стулья из пластика не просто функциональный элемент, а и также прекрасное средство для зонирования.

Освещение
Стильный интерьер в основном зависит от правильного освещения. Кроме того, используются осветительные приборы и как фрагменты декора, например, если над какой-то частью помещения мини-потолок, то пространство визуально можно разделить на зоны, а если использовать лампы, что встроены в зеркальный потолок, то возможно таким образом получить дополнительное освещение.

Дизайн квартиры студии 30 кв. м. за счет правильного освещения легко может обладать рядом зрительных эффектов.

Декор
Квартира студия 30 кв. м. требует вдумчивого подбора декора, потому как «мелочи» создают ощущение загромождённости.

Панно на стене – зрительно придает высоты стенам, а подушки на диване смогут подчеркнуть стилистику мебели.

Новые формы, новые материалы ваз для цветов и фруктов создают в сочетании с техникой наиболее гармоничные композиции.

На специализированных дизайнерских сайтах очень большое количество фото дизайна квартиры 30 кв. м., и потому каждый сможет почерпнуть для себя какие-то идеи, доработать их и после воплотить задуманное в своем жилье.

Фото дизайна квартиры 30 кв. м.

























































datahomes.ru
Дизайн квартиры-студии [30 кв м]. Идеи для интерьера и планировка

Современная французская студия от Batiik Studio
В последнее время строители все чаще в многоквартирных домах создают студии. Они стали пользоваться большой популярностью: гораздо дешевле однокомнатного варианта, а возможностей для отделки и обустройства гораздо больше. Как правильно отделать такую квартиру – расскажем в нашей статье.
Квартиры-студии предпочитают люди, которые живут одни, без семьи и родителей. Им не требуются длинные столовые и огромные спальни. Все очень скромно. Кто-то скажет, что 30 квадратных метров – ничтожно мало, чтобы жить комфортно. Но это не так. Современные технологии и возможности могут сделать даже такую квартиру просторной и расположить все необходимое. Убедитесь сами!
Содержание:

Яркий дизайн квартиры-студии
Планировка
Как правило, планировка квартир такого типа достаточно свободная. Ванная комната и туалет часто совмещены в другой комнате и на общие квадратные метры не претендуют.
Важно! Форма такого помещения не бывает одинаковой и зависит от самого дома и проекта застройщика.
Если для вас принципиально, какая форма будет у этой комнаты, тогда придется искать подходящий вариант. Но спланировать пространство можно в любой комнате – квадратной, прямоугольной, вытянутой.

Студия прямоугольной формы
Если позволяет возможность, можно сделать «второй этаж» исключительно для сна и поставить туда кровать. Если в такой квартире будет жить один человек, то, скорее всего, это не потребуется. Также могут возникнуть сложности с утверждением планировки в БТИ. Если это не пугает, тогда строим второй этаж.
Разделение пространства
Преимущество студий заключается в том, что распланировать ее вы можете самостоятельно, как больше нравится. Единственная проблема возможна с кухней: трубы и канализацию не передвинешь.
Важно! Здесь не ставят перегородки и стены. Нужно лишь распределить на части и сделать их визуальное разграничение или акценты.
Площадь в 30 кв. м должна иметь место отдыха и сна, рабочую зону, кухню и пространство для приема гостей. Некоторые из них можно совместить.
- Например, если вы работаете исключительно за компьютером и вам не нужны большие столы для чертежей, то можно работать за обеденным столом, а ноутбук хранить на полке шкафа.
- Также можно купить раскладывающийся диван: днем он служит местом отдыха, ночью – как кровать. Не всем это покажется удобным, но современные предложения могут изменить это мнение.

Интересный вариант в современной стилистике
Разделить пространство можно следующими способами:
- Светом.
- Фактурой пола.
- Коврами.
- Декором на стенах или потолке.

Зонирование пространства с помощью разных уровней пола
На заметку! Разделение с помощью света предполагает использование интересных световых решений. Например, на гарнитуре у вас точечное освещение с помощью светодиодных ламп, а в гостиной большая люстра на потолке.
Применение фактур пола – самое простое решение. Его легко поменять, если захотите сделать ремонт. Часто для разделения пространства с помощью пола используют разные материалы. Например, на кухне плитка, в гостиной – паркет или ламинат. Также можно применить один вид материала, но контрастных цветов, а также при укладке расположить его поперек или по диагонали.

Ковры сделают атмосферу более уютной
На заметку! Добавление ковров – самый легкий способ. Захотели передвинуть диван, раз – и переложили ковер. Здесь все просто, а вариации ограничены лишь фантазией.
Наибольший эффект при разграничении имеют декоративные элементы на стенах и потолке. Причем они сразу акцентируют на себе внимание. Но к разделению такого типа нужно подходить очень тщательно. Главное – чтобы он гармонично вписывался в весь ансамбль. Чаще всего применяют несколько элементов.
Общий стиль квартиры-студии
Важное правило в разработке дизайна помещения такого типа – единство стиля. Нельзя делать классику на кухне и модерн в гостиной. Здесь одно помещение и важно соблюдать гармоничность
На заметку! Чаще всего этого достигают с помощью одного цвета. Или доминантного цвета с разными вставками. Если вы не любитель белых тонов и постоянной уборки, то можно выбрать другие решения.

Квартира в светлых пастельных тонах
Совет! Применяйте светлые тона в отделке. Она еще больше увеличит пространство, и будет больше «воздуха».
Очень удобен модерн или минимализм, простые оттенки и фактуры. Использование дерева в декоре добавит экологичность. Светлые тона, нейтральность – вот залог успеха в дизайне такого стиля.
Спальня
Сон – самый важный момент жизни человека. Отдыхать нужно с комфортом, ничто не должно мешать. Существует мнение, что в спальню может входить только ее хозяин, а посторонние лица даже не могут посмотреть на ваше ложе. В последнее время стало популярным «прятать» кровать. Возникает вопрос: как же спрятать двухместную «королеву» на площади в 30 кв. м? Очень просто. Для этого устанавливают глухие перегородки или невидимые двери.
На заметку! Очень удобно спрятать место отдыха в квартире прямоугольной и вытянутой формы. Здесь кровать можно расположит в конце. Или где-то в середине, закрыв дизайнерскими перегородками, которые будут выполнять не только эту роль.

Отличное совмещение спальни и зоны отдыха
Совет! Размещайте кровать как можно дальше от входной двери, чтобы сохранять тишину и покой.
Какую отделку использовать в спальне? Однозначного ответа этот вопрос нет, все зависит от вкуса владельца. Самыми удачными вариациями будут:
- модерн с минимумом декора;
- классика в мягких тонах;
- скандинавский стиль с натуральными материалами.

После сна кровать можно поднять наверх, и она будет незаметна
Спальня в квартире-студии будет совсем крошечной, здесь не получится расположить прикроватные тумбочки, шкаф и кучу другой мебели, поэтому стиль возможно создать с помощью ткани и стен.
- Модное направление в дизайне интерьера – фотообои. Природа, лес, нейтральные цвета – вот главные атрибуты такой отделки стен. Водопады, закаты солнца и буйство красок не позволят расслабиться в подобной спальне, поэтому не стоит их использовать.
Рабочая зона
Современному человеку чаще всего нужно место для работы или хотя бы там, где можно посидеть с ноутбуком, чтобы побродить по интернету. В планировке маленькой квартиры ее следует располагать у окна, чтобы было естественное освещение. Рабочая зона – это стол и стул, несколько полок для бумаг и книг, если они необходимы. Поэтому расположить небольшой стол не составит труда в любом уголке.

Компактный хоум-офис
Совет! Рабочее место делайте незаметным, ярких акцентов в нем быть не должно.

Рабочее пространство легко можно спрятать в шкаф, так же как и кровать в стене за диваном
Кухня и обеденная зона
Самое любимое в любой квартире – это место, где можно приготовить что-то вкусненькое и поесть. Кухонную зону лучше всего расположить ближе ко входу. Здесь удобно сразу же разместить гостей и выпить чаю. Дизайн кухни предполагает в первую очередь комфорт для владельца, а под рукой все необходимое. Как правило, в небольшом помещении это только кухонный гарнитур. Его необходимо сочетать со стилем всей квартиры и не особо выделяться.
Совет! Обозначить эту зону лучше всего на полу. А на краю поставить обеденный стол или барную стойку.

Маленькая практичная кухня
- Если вы выбрали классику, то барная стойка будет неуместна. Интересное решение – спрятать гарнитур в проход при вытянутой форме. В стиле лучше применить простую фактуру и однотонность. Выделяющим элементом может стать плитка в виде мозаики.
Современные производители предлагают использовать открытую часть между кухонным гарнитуром как место для «картин». Здесь применяют фототехнологии. Можно повесить ночной мегаполис и поле из ромашек. Часто используются изображения фруктов и кофе. Для зоны плиты можно разместить картину с инжиром.
Место приема гостей и отдыха
Основная часть студии – гостиная. Она задает тон всему помещению и является центральной. При отделке этой части желательно принять во внимание следующие советы:
- не загромождайте пространство;
- устанавливайте скрытые механизмы для установки шкафов;
- телевизор лучше повесить на стену. Никаких тумбочек и подставок;
- в центре лучше всего расположить уютный диван.
Дизайн квартиры-студии требует продумывания заранее. Это единое пространство, которое должно выглядеть гармонично и уютно. Хороший вариант предлагают современные материалы и модели, а технологии позволят сэкономить бюджет. В вашей квартире будет всегда стильно!
happymodern.ru
Дизайн квартиры-студии [80+ фото] планировки, зонирование
Особенности дизайна интерьера
Несколько оформительских нюансов:
- Для того, чтобы данная квартира-студия не выглядела загроможденной, при ее декорировании не следует использовать слишком много мелких деталей.
- Не рекомендуется применять большие мебельные элементы в темных тонах, так как это может поспособствовать созданию неуютной и давящей атмосферы.
- Между мебелью нужно оставлять свободное место в достаточном количестве, чтобы обеспечить открытый и доступный проход.
- При зонировании помещения, дизайн перегородок должен соответствовать общему интерьерному стилю.
Примеры планировок
Обустраивая квартиру-студию, в первую очередь нужно учесть ее размеры и общий план. Например, помещение квадратной формы, отличается более широкими возможностями и представляет собой идеальный вариант для ремонта. В данном пространстве кухонная зона занимает меньшую часть, а гостевое и спальное место практически половину студии.
Подборки планировок разной площади:

На фото вид сверху на квартиру-студию с планировкой квадратной формы.


Прямоугольная квартира обладает некоторыми трудностями при обустройстве, которые с легкостью решаются с помощью разнообразных перегородок и цветового оформления. Зрительно расширять вытянутое помещение и максимально приближать его к квадратной форме можно, за счет зеркальных поверхностей, светлой отделки стен или фотообоев, придать комнате легкости помогут всевозможные ширмы, нитяные шторы и качественное освещение.

На фото дизайн квартиры-студии с высокими потолками, оборудованный вторым ярусом.


В двухуровневой студии, второй этаж наиболее часто выделяют под спальное, рабочее место, гардеробную или различные системы хранения в виде тумбочек, комодов и прочего. Такая конструкция может иметь не только угловое расположение с дополнительными опорами в виде стен, но и размещаться по центру жилого пространства.
Массой возможностей обладает помещение неправильной формой или квартира с эркером, который добавляет комнате дополнительной площади и наделяет ее большим количеством света. Эркерный выступ может стать прекрасной зоной отдыха, рабочим местом или игровым пространством для ребенка.

На фото небольшая студия с нишей, оснащенной под сальное место.


Примеры интерьеров с окнами
В квартире-студии с одним окном, возле проема, чаще всего располагают спальную зону, а за ней кухню. Из-за минимального количества естественного света, кухонное пространство оборудуют интенсивным и качественным освещением.

На фото окна с панорамным остеклением в интерьере квартиры-студии.


Помещение с двумя или с тремя окнами, за счет большего проникновения солнечного света, визуально смотрится гораздо просторнее. В комнате с большими окнами, следует устанавливать мебельные предметы вдоль остальных стенок, чтобы не загораживать оконные проемы.

На фото дизайн квартиры-студии с одним окном, выполненный в эко-стиле.


Как обустроить квартиру?
При грамотном обустройстве квартиры-студии, в ней можно сформировать по-настоящему уютный и комфортный дизайн.
Как обставить мебелью?
Мебельные элементы должны отличаться высокой функциональностью и располагаться в соответствующих зонах. Мебель нужно устанавливать так, чтобы она не перекрывала проходы и не препятствовала передвижению по комнате.
Самым оптимальным решением для студии, являются трансформирующиеся конструкции или например, раскладной угловой диван и откидная кровать. При выборе данных моделей следует учитывать их размер в разобранном состоянии.
В качестве систем хранения лучше применять встроенные шкафы, помогающие значительно сэкономить площадь.



Отличным дизайнерским ходом, станет отделение кухонного пространства от остальной комнаты, за счет барной стойки. Такой элемент мебели, не только имеет очень стильный вид, но и представляет собой удобную обеденную зону, которую также можно оборудовать с помощью различных ящиков для посуды и прочего.

На фото расстановка мебели с барной стойкой в интерьере современной квартиры-студии.


Цветовая гамма
Гармоничнее всего дизайн студии выглядит в светлом исполнении с использованием спокойных белых, бежевых, молочных, кремовых и других пастельных оттенков. Таким образом получается зрительно увеличить помещение и наделить его большим уютом.
Для тех, кто предпочитает оформление в броских и насыщенных желтых, зеленых цветах или выбирает контрастные черно-белые или красно-белые сочетания, лучшим решением будет дополнить обстановку мебельными предметами в неброских тонах, чтобы общий ансамбль не смотрелся слишком пестро.

На фото дизайн квартиры-студии, выполненный в черно-белой цветовой гамме.


Достаточно выигрышным считается дизайн, выполненный в более темной расцветке, например, серой, темно-синей, черной или коричневой. Подобный интерьер обладает современным и даже немного футуристичным видом, но требует дополнения с помощью теплого освещения.


Шторы и другой текстиль
Из текстиля в квартире-студии, часто применяют шторы, для того, чтобы разграничивать помещение или украшать окна. Занавеси являются очень изящной интерьерной деталью, позволяющей визуально увеличить площадь жилого пространство и придать ему особой легкости. Например, максимального эффекта можно добиться с помощью светлых струящихся гардин, в виде невесомого тюля или органзы.
Для добавления комнате дополнительной высоты, лучше использовать полотна длиной от потолка до пола. Привычные занавески, также заменяют рулонными, римскими шторами или жалюзи. При выборе шторного ансамбля, важно его гармоничное сочетание с остальными интерьерными предметами, отделкой и меблировкой.

На фото тюлевые гардины белого цвета на окнах в дизайне квартиры-студии.


Идеи освещения
Свет играет практически самую главную роль в оформлении студии. Благодаря освещению и подсветке, возможна визуальная корректировка пространства и увеличение его площади. По расположению светильников и ламп, выделяют нижнее, среднее и верхнее освещение.

На фото вариант освещения в небольшой студии в восточном стиле.


Для малометражки, нижний уровень освещения используют крайне редко. В основном данное оформление применяют только для зрительного разграничения помещения. Желательно, чтобы светильники имели дизайн, сочетающийся с общей стилистикой окружающего интерьера.
Люстры чаще всего отличаются традиционным исполнением, представляют собой интересные прожекторы или галогеновые точечные светильники.

На фото дизайн квартиры-студии для молодого человека с верхним уровнем освещения.
Как выглядит в различных стилях?
Фотопримеры дизайна студии в популярных стилистических направлениях.
Лофт
Читайте также
Квартира-студия в стиле лофтДанный стиль отличается масштабностью, эклектичностью и свободой, что позволяет создать в квартире по-настоящему уникальный интерьер, передающий атмосферу чердака.

Скандинавский
Благодаря нордической стилистике, получается наделить обстановку любого помещения, характерной легкостью, естественностью и простотой.

На фото дизайн маленькой квартиры-студии 24 кв. м. в скандинавском стиле.
Студия в стиле хай-тек
Футуристичный хай-тек предпочитают в оформлении более просторных комнат. Такой стиль характеризуется идеально ровными поверхностями, геометрическими формами и окружающим дизайном, выполненным в белых или серых оттенках с яркими вкраплениями красного, оранжевого или желтого цвета.



Для зонирования выбирают перегородки из стекла или металла, в оформлении пола используют глянцевую ламинатную доску или крупную плитку, стены в основном покрывают краской, а потолочную плоскость, иногда декорируют металлизированными рейками.


В стиле прованс
В дизайне студии, французская стилистика будет особенно уместна. Подобное оформление представляет собой традиционный интерьер с сельскими нотками, украшенный с помощью разноцветных занавесок и множества декоративных украшений, таких как, интересные вышивки, узоры, рюши и прочее.

На фото интерьер студии, оформленный в стиле прованс.


Помещение в стиле прованс смотрится визуально объемнее и больше, такого эффекта позволяет добиться отделка в светлых тонах. Для стен здесь в основном предпочитают узорчатые обои в нежных лиловых, бежевых, молочных, розовых оттенках или покраску цвета морской волны, которая особенно гармонично комбинируется со светлыми мебельными предметами. Облицовка пола, представляет собой только натуральные материалы, например, в виде деревянного неокрашенного паркета под старину.


Средиземноморский стиль
Для средиземноморского дизайна уместна облицовка с помощью природных материалов или их удачной имитации. На полу в основном выложена керамическая плитка, натуральный или искусственный камень, деревянные доски или ламинат с шероховатой поверхностью.
Цветовая гамма, выполняется в белых, пронзительно бирюзовых, лазурных, голубых, кобальтовых, ярких желтых, светлых терракотовых, соломенных или нежно зеленых оттенках.
В качестве текстиля предпочитают легкие ткани и простые функциональные шторы.


Минимализм
Подобный минималистичный дизайн, станет идеальным решением для малогабаритной квартиры. Расцветка данного интерьера, включает в себя серые, молочные, бежевые и светло-коричневые колеры. Поверхность пола чаще всего отделывают кафелем, линолеумом или светлым деревом. Мебельные элементы в основном встроенные, а различный текстиль и диванная обивка, отличаются однотонным исполнением.



На фото малогабаритная квартира-студия, выполненная в стиле минимализм.
Классический
Актуальные в любые времена классика и неоклассика, очень гармонично вписываются в дизайн студии. Такие интерьеры сочетают в себе спокойную природную оттеночную гамму и строгие предметы мебели из натуральной древесины с лаконичным оформлением, в виде изящной резьбы, ковки и прочего декора.


Дизайн интерьера в студии
Варианты дизайнерского оформления квартиры-студии.
Кухонная зона в интерьере
В отличие от дизайна обычной квартиры, кухня в студии, должна максимально гармонично сочетаться с остальным жилым пространством. Для более аккуратного интерьера можно установить встроенную бытовую технику, например, духовой шкаф и варочную поверхность, или спрятать холодильник и посудомойку, за фасадом кухонного гарнитура. В качестве зонирования, иногда конструируют подиум, под который убирают все коммуникации.



На фото кухонная зона с белым угловым гарнитуром в дизайне квартиры-студии на мансарде.


Студия со спальней
При оформлении студии, в первую очередь рекомендуется определиться с размещением спального места и способом зонирования. Отличным вариантом станет установка кровати в отдельно выделенной нише, которую можно отделить, раздвижной перегородкой в виде купейных дверей, легкой или более тяжелой и плотной шторой.

На фото квартира-студия со спальной зоной с кроватью, расположенной в нише.


Зону для сна также желательно оборудовать качественной системой хранения. Например, встроенными бельевыми ящиками, полками, тумбой или компактным комодом.

Дизайн коридора
В основном, прихожая в квартире-студии, отличается достаточно небольшими размерами. В дизайне коридора наиболее уместна встраиваемая мебель, настенные вешалки и крючки, занимающие минимальную площадь. Если данное помещение, выполнено в более темных оттенках, его не желательно перегружать мебельными элементами в большом количестве.



С балконом
За счет балконного пространства, предоставляется отличная возможность расширения студии. На совмещенной утепленной лоджии с легкостью может разместиться кухня-столовая с подоконником, интегрированным в столешницу, рабочий кабинет, спальное место или зона отдыха.

На фото дизайн современной студии с большой лоджией с панорамным остеклением.


Рабочий кабинет
Достаточно удобным вариантом расположения рабочей зоны, считается угловое пространство, место возле окна или на объединенном балконе. Данный участок иногда выделяют с помощью отделки другого цвета или отгораживают стеллажом. В небольших комнатах для кабинета лучше устанавливать выдвижные конструкции или откидные столы, также возможно оборудование изолированного рабочего места в шкафу.


С детской для семьи с ребенком
Небольшая студия является прекрасным решением для семьи с ребенком. С помощью грамотной организации пространства, получается обустроить уютный детский уголок с определенным дизайном и отделить его от остального помещения за счет разнообразных перегородок.



Ванная комната
Санузел в квартире-студии, представляет собой достаточно маленькую комнату. Идеальным вариантом здесь станет установка душевой кабины, компактного унитаза и узкой раковины, вдоль стен. В случае более просторного помещение возможно размещение горизонтальной ванны.


Рекомендации по отделки студии
Основные советы по облицовке:
- Для стен в небольшой квартире, желательно подбирать облицовку, имеющую минимальный блеск. Таким образом дизайн не будет утомлять и раздражать глаз.
- Отличным решением станут обои с мелким принтом, которые также поспособствуют зрительному увеличению площади.
- Для потолка наиболее уместно использование гипсокартона или штукатурки. Из гкл получается сконструировать привлекательную многоуровневую потолочную конструкцию со встроенными светильниками для зонирования пространства.
- Не менее популярным считается установка натяжных потолков с матовой или глянцевой фактурой, придающей комнате визуального объема.
- В гостиной и зоне отдыха, пол можно оформить ковровым покрытием, ламинатом или паркетом, а для кухни более практичной станет отделка каменной или керамической плиткой.
Зонирование и перегородки
Самым оптимальным вариантом зонирования являются перегородки, которые могут отличаться разделительной функцией, представлять собой систему хранения или просто декоративный элемент. Подобные конструкции могут иметь раздвижной или поворотный механизм, в их изготовлении применяют стекло, пластик, металл, дерево и другие материалы,

На фото перегородка, изготовленная из стекла в интерьере квартиры-студии.


Для малогабаритных квартир в хрущевке, очень популярна установка прозрачных стеклянных, комбинированных декоративных перегородок, сквозных конструкций или многофункциональных стеллажей до потолка.

Фотогалерея
Дизайн квартиры-студии предоставляет возможность воплощения в жизнь самых оригинальных оформительских идей для преобразования данного пространства в современную и комфортабельную жилую площадь.
design-homes.ru
основные сложности и их преодоление

Дизайн квартир 30 кв. м — один интересней другого!
Дизайн квартир 30 кв. м может быть достаточно оригинальным и функциональным, если отнестись к его проектированию с определённой долей фантазии. Основными проблемами маленьких жилых помещений являются невозможность установки полноценных систем хранения, недостаток освещения и логичные ограничение в выборе мебели.
Однако все эти трудности вполне преодолимы. Доказательством тому служат четыре реальных проекта, о которых мы хотим рассказать вам сегодня.
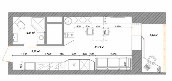
В первом случае одну длинную комнату визуально поделили на три зоны — рабочую, гостиную-спальню и кухню. Сделали это за счёт добавления декоративной ниши и барной стойки. Вместительный шкаф-купе встроили в перегородку, отделяющую от жилой зоны совмещённый санузел. В итоге осталось место даже для небольшой прихожей.
Трансформируемая мебель, светлая цветовая гамма, использование натуральной древесины и ярких декоративных элементов сделали интерьер органичным и живым.

Следующий интерьер, оформленный в светло-кремовых и коричневых тонах, также присутствием минимального числа перегородок, в роли которых выступают только системы хранения. Поэтому даже большая двуспальная кровать и велотренажёр смотрятся здесь вполне уместно. И опять же в этой квартире есть всё, что необходимо для нормальной повседневной жизни.

Рассмотрим третий вариант: комнату увеличили за счёт балкона, на месте которого организовали кабинет. Пространство кухни также ограничено лишь барной стойкой, а вдоль всех стен размещены удобные деревянные шкафы и стеллажи. Другие интересные особенности — надписи на стенах в стиле дорожных указателей, яркие подушки и сложная система освещения.

В последнем примере кухню, оборудованную столом-трансформером, отделили от гостиной белым диваном, а в отделанную деревом нишу поместили большую кровать. Светлая палитра, лёгкие шторы на окнах и правильно подобранная мебель позволили визуально увеличить объём помещения.

Просто невероятные преображения, не правда ли? Может быть, и у вас есть идеи на этот счёт?
interiorsmall.ru
Дизайн однокомнатной квартиры 30 кв. м: 75 уникальных интерьеров
Обустраивать интерьер однокомнатной квартиры особенно трудно. Здесь нужно учитывать все необходимые зоны, стилевое направление, использование политики цвета и др. Особенно сложно, когда помещение имеет небольшую квадратуру. Но и с этим заданием мы справимся, и научимся как максимально выгодно создать дизайн однокомнатной квартиры 30 кв. м.

Дизайн квартир 30 кв. м может быть достаточно оригинальным и функциональным, если отнестись к его проектированию с определённой долей фантазии.
При оформлении маленькой однокомнатной квартиры нужно учитывать множество факторов, которые в последующем помогут создать многофункциональный дизайн.

Основными проблемами маленьких жилых помещений являются невозможность установки полноценных систем хранения, недостаток освещения и логичные ограничение в выборе мебели.
Основной принцип для обустройства малогабаритной студии – ничего лишнего. В квартире не должно быть много деталей, которые мешают друг другу существовать, вместе с тем – и хозяину комфортно себя чувствовать. Поэтому запомните: в комнате должно быть только самое необходимое.

Разработать и тем более осуществить дизайн однокомнатной квартиры 30 кв. м дело крайне трудоемкое и непростое.
Следующий принцип – дизайн должен увеличивать пространство. И ни в коем случае не наоборот. Учитывайте это при выборе каждой детали интерьера. Например, лучше подбирать светлые тона, темные сделают помещение мрачным, и визуально уменьшат пространство. Многоуровневые гипсокартонные потолки также стоит отложить для высоких и больших комнат. Здесь лучше всего подойдут натяжные потолки, покрашенные, или просто оклеенные обоями.

На маленьком пространстве хочется создать полноценные комфортные зоны для отдыха, работы и приема пищи.
Третий принцип – комфорт. Это относится к зонированию помещения. Все должно быть гармонично и иметь свое место. Лучше отдельно обустроить рабочую, спальную, игровую зоны и т.д. В этом поможет правильно подобранный дизайн однокомнатной квартиры.

Иногда кажется, что это нереально, однако, воплотить современные идеи дизайна однокомнатной квартиры, все-таки возможно.
На что обратить внимание
Первое, на что следует обратить внимание при подборе дизайна – планировка квартиры. От этого зависит последующее зонирование. Как расположена ванная комната и входная дверь по отношению к остальной части помещения – важные детали, на которые обязательно обратить внимание разглядывая план.

Вопрос, как создать современный дизайн однокомнатной квартиры 30 кв. м, при этом рационально использовать не то, что метр, каждый сантиметр, чаще всего волнует обитателей хрущевок.
Касательно планировки стоит отметить, что мы рассматриваем дизайн квартиры студии 30 кв. м. Если кухня в квартире отделена, то это значительно упрощает задачу.

Создавая современный интерьер квартиры 30 кв. м, дизайнеры настоятельно рекомендуют особенно внимательно отнестись к выбору мебели.
Расположение коммуникаций не менее важная часть. Где находятся розетки, как расположена проводка, куда подведена канализация и водоснабжение – эти технические характеристики также ответственны за зонирование квартиры.

Самый лучший выход – мебель под заказ.
Обращайте внимание на высоту потолков. Этот фактор определяет дизайн самого потолка, помещения, выбор цветов и материалов для оформления.
Конечно, нельзя оставить без внимания имеющийся бюджет. Он во многом и является отправной точкой и куратором всего ремонта.

Если каждый сантиметр используется рационально, можно увеличить свободное пространство, легче зонировать малогабаритку.
Подбираем дизайн
Каждый дизайн имеет свои особенности, законы, преобладающие материалы и цветовую гамму. Поэтому подбор правильного направления также имеет особое значение. Сделав ошибку в этом выборе, вы рискуете превратить квартиру в место, где совсем не захочется обитать.

Визуально увеличит пространство окно, не перегруженное тканью.
Например, стиль прованс совершенно не подойдет для помещения в 30 квадратов. Несмотря на его легкость, природность и светлые тона, его любовь к различным мелким деталям и большому количеству мебели сделает маленькую квартиру мрачной каморкой. В этом случае наш выбор несколько ограничен.

Зона для отдыха разграничивается обоями или покраской стен.
Предлагаем обратить внимание на наиболее подходящие стили.
| Стиль | Цветовое оформление | Особенности |
| Минимализм | Белый, серый бежевый | Однотонное перекрытие поверхностей |
| Модерн | Черный, желтый, бирюзовый | Контрастные сочетания |
| Лофт | Коричневый, молочный, красный | Элементы урбанистической направленности |
| Скандинавский | Белый, коричневый, синий | Основная деталь – камин |

Для однокомнатной квартиры предпочтителен вариант кухни без дверей.
Главная общая особенность представленных стилей – минимум деталей. С их помощью у вас получится оставить свободным как можно больше пространства и визуально расширить комнату.

Воплощая идеи дизайна однокомнатной квартиры, прежде всего, нужно определиться с зонами в помещении. Для этого потребуется обдумать цветовую гамму всего жилья.
Минимализм
Данный стиль отлично подходит для дизайна однокомнатной квартиры-студии 30 квадратов. Его основной постулат – ничего лишнего. Он позволяет обустроить в комнате все необходимые зоны при этом оставить много свободного пространства.

Минимализм, функциональность – это то, что нужно для таких помещений.
Минимализм отличается спокойными красками, отсутствием лишних деталей, преобладанием натуральных элементов. Еще одной его особенностью является однотонное перекрытие поверхностей. Потолок часто отдается покраске, побелке или оклеиванию обоями с использованием светлых цветов. Эта особенность поможет «поднять» низкие потолки в комнате. Стены также перекрываются однотонными красками. Из дополнительных деталей минимализм приветствует только торшер необычного дизайна и одно-два мягких кресла.

Комнату не нужно перегружать декором.
Лофт
Изначально чердачный стиль. Для него характерна некая небрежность и присутствие урбанистических деталей. Например, часто можно встретить перекрытие одной стены декоративным кирпичом или досками. Такое решение создаст ощущение того, что квартира имеет открытый доступ вод двор, что сделает ее существенно свежее и просторнее.

Сейчас очень популярны квартиры-студии.
Несмотря на использование темных красок, таких как коричневый и темно-красный, этот стиль не делает помещение мрачным или маленьким, а даже наоборот. Такой эффект эти цвета дают вследствие того, что они отображаются в природных материалах таких как дерево, кирпич, камень. А несколько светлых деталей, например, белый диван или яркая картина соответствующей направленности удачно разбавит обстановку.

Нужно учесть, что такое жилье рассчитано для проживания не больше двух человек.
Вместе с тем для оформления квартиры в стиле лофт используются и светлые краски для полного перекрытия любой поверхности.
Скандинавский
Холодный и сдержанный. Он сделает маленькую квартиру студию свежей и просторной. Этот стиль использует холодные тона (белый, синий) в качестве основы, и теплые (коричневый, желтый), чтобы добавить чуточку тепла. Деталью, по которой вы обязательно узнаете скандинавское направление является камин. Он также привносит в строгость белых снежных цветов немного тепла.

Между комнатами отсутствуют перегородки, а жилье делится на функциональные зоны.
Для оформления данного стиля достаточно приобрести диван, покрыть пол темным ламинатом и положить на него светлый ковер с длинным ворсом. Стены необходимо сделать в белом цвете в комбинации с голубым, добавить камин – и все готово.

Никаких лишних деталей, и масса свободного пространства.
Зонирование помещения
В однокомнатной квартире необходимо уместить все нужное для комфортной жизни. Комнату можно разделить на зону для отдыха, сна, рабочую, игровую и др. Однако условно можно выделить 2 самые необходимые «комнаты»: это спальня и кухня. Обратим внимание на условия их создания.

Создавая дизайн малогабаритной однокомнатной квартиры, самое пристальное внимание специалисты уделяют двум зонам, которые примыкают одна к другой – гостиная и кухня.
Спальня
Спальную зону желательно отделить (хотя бы символически) от остальной части пространства. Вы можете сделать это с помощью занавески, перегородки или шкафа. Согласитесь, кровать посреди комнаты будет выглядеть неуютно и для гостей, и для хозяина. Так, обязательно выделите отдельное место для кровати, которое будет отделено от остального пространства.

Важно подбирать цвета, которые сочетаются между собой.
Также спальная зона может представлять собой диван. Это меняет ситуацию. В таком случае исходите из планирования общего пространства. Но такой вариант менее удобен для сна. Поэтому советуем найти в однокомнатной квартире место для кровати, по желанию расположите в ней также и диван.

Если преобладает белый цвет, то внедрение любых ярких будет выглядеть гармонично, главное – не «переборщить».
Кухня
Расположение этой зоны определяется местом проведения коммуникаций. Но есть несколько советов по оформлению и этой зоны. Обязательно позаботьтесь о качественной вытяжке. Если вы планируете готовить в домашних условиях, эта деталь необходима. Она препятствует распространению запахов по всей квартире, что очень важно для студии.

Кухня-студия с преобладанием белого цвета.
Также следует обустроить обеденную зону. Если есть балкон, вы можете совместить его с кухней, и обустроить под столовую. Но в этом случае необходимо узаконить перепланировку. Еще один вариант – барная стойка. Она подходит лучше всего, так как выполняет одновременно две функции: отделение кухонной зоны и замена столовой.

Кухню от гостиной можно отделить барной стойкой, которая одновременно может служить обеденным столом.
Мы рассмотрели общие законы оформления квартиры студии в 30 кв. м. Используйте эти знания, и у вас получится создать максимально комфортный и красивый дизайн.

В такой квартире будет всё, что необходимо для нормальной повседневной жизни.
ВИДЕО: Дизайн проект однокомнатной квартиры 30 кв.м.
50 современных идей дизайна для однокомнатной квартиры 30 м2:
dizainvfoto.ru
