Бесплатные программы для дизайна интерьера – 10 лучших бесплатных программ для создания виртуального интерьера квартиры
Программы для дизайна интерьера бесплатно на русском
Сегодня для создания современной и интересной обстановки в квартире, доме, вовсе не обязательно приглашать профессионального дизайнера, услуги которого стоят обычно недешево. В сети можно найти программы для дизайна интерьера бесплатно, с их помощью каждый сможет создать свою особую атмосферу, подобрав детали до мельчайших подробностей. К тому же сейчас и дизайнеры пользуются специализированным софтом для выражения своих идей. Познакомимся с самыми популярными и проверенными продуктами, которые предлагают широкий функционал.

СОДЕРЖАНИЕ СТАТЬИ:
SketchUp
В первую очередь, хотелось бы отметить именно эту программу. Вы можете воспользоваться бесплатным вариантом, а для профи разработана утилита с более объемным инструментарием. При этом бесплатный продукт вовсе не ограниченный и им можно полноценно пользоваться.

Здесь можно делать 3D проекты, менять планировку, цвет, мебель. Небольшой недочет – ассортимент объектов небольшой, но их легко можно найти в сети. После скачивания SketchUp, можно сразу начинать работу, оформление простое и доступное даже для новичков. Стоит отметить, что есть возможность указывать размеры некоторых объектов.
Готовый проект скидывают в Интернет или используют для вдохновения чужие материалы. Удобно, что в приложении можно не только спроектировать жилое помещение, но и сделать трехмерную модель участка, авто и остальных предметов.
Астрон Дизайн
Эта программа для новичков, в которой можно расставить предметы с конкретными параметрами. Это не мощный инструмент для дизайна, но предлагаемых опций достаточно для создания проектов.

Здесь можно:
- выбирать варианты отделки основных перегородок;
- указывать их размеры;
- расставлять мебель, декор;
- найти место для окон, дверей с размерами.
Полезный контент:
IKEA Home Planner
Сложно найти человека, который бы не слышал о магазине Икеа. И если вы хотите приобрести мебель для своего жилища именно там, то этот бесплатный софт станет отличным помощником. Здесь все просто и понятно, можно продумать интерьер с мебелью от нидерландского производителя. Легко выбирать нужный объект из списка, корректировать размер, цвет или фурнитуру.

Каталог в программе большой — от объемных комплектов до небольших мелочей, что помогает создавать полноценный интерьер, подсчитав при этом стоимость. Приложение позволяет сохранять результат работы и заказать все выбранные предметы. Благодаря высококачественной картинке в 3D-формате легко оценить созданный дизайн в деталях.
Кроме того, Икеа предлагает отдельный софт для проектирования кухни, он носит название IKEA Kitchen Planner. Работает по тому же принципу, что и обычный вариант, но здесь выбор мебели для кухонного пространства намного больше, так что при желании можете воспользоваться и им.

Бесплатная программа для дизайна интерьера: Sweet Home 3D
Скорее всего, этот сервис не подойдет для профи, но простые пользователи останутся довольны. В Свит Хом не получится создать сложные проекты, но свои эксперименты вы легко реализуете. К примеру, если хочется наглядно увидеть, как будет смотреться рядом с диваном шкаф или нужно повесить телевизор на конкретной стене. Все за 5 минут вы создадите план помещения.

Каталог тут не слишком большой, разнообразия фурнитур, размеров тоже нет. Но эту проблему легко решить: скачиваете варианты на сайте разработчика. Это иностранный софт, но есть вариант на русском для начинающих.

Автор рекомендует:
PRO100
Надо сразу отметить, что это не простой онлайн-сервис, здесь нужно потрудиться, чтобы освоить программу. Это скорее приложение для профессионалов, позволяющее менять любую деталь выбранного предмета: от уровня прозрачности до текстуры. В демо-версии инструментарий ограничен, но для создания планировки или эскиза ее хватит.

Особенность программы, которую редко встретишь в аналогах, распространяющихся бесплатно – можно самостоятельно прорисовать любой объект, отрегулировать его размер, форму, фактуру. До того, как начать работу, необходимо указать размеры помещений, а уже после начать проектирование дома своей мечты.
Homestyler
Если вас заинтересовали программы для дизайна интерьера бесплатно, то этот продукт от разработчиков AutoCAD и 3ds Max подойдет идеально.

После запуска Homestyler, следует выбрать одну из предложенный опций:
- создание интерьера с нуля,
- готовая схема;
- готовый проект.
При этом вам будут предложены многочисленные варианты цветов, отделки, мебели от именитых брендов.
Planoplan
Еще один софт для создания интерьеров с настоящей мебелью из магазинов. Можно воспользоваться онлайн-сервисом, бесплатной демо-версией или платным профессиональным продуктом. Программа постоянно развивается, выходят обновления. Удобно, что интерфейс русскоязычный.

Вы можете сами создавать планировку или выбирать предложенные варианты. Популярна функция виртуального тура по конечному проекту, можно даже просмотреть его на мобильном устройстве.
Planoplan подходит не только для продумывания общего плана комнаты, но и для более детальных элементов. К примеру, можно посмотреть движение тени в течение дня, настраивать свет солнца в зависимости от времени суток. На сайте есть специальная видео-инструкция, с помощью которой, легко разобраться в системе управления утилитой.
Дизайн интерьера 3D
В данной программе большой мебельный каталог, множество вариантов цветовых решений и отделки. В пробной версии немного ограничен функционал, но его хватит для создания отличного рендера. Есть возможность создания планировки с указанием точных размеров или выбора типовых, постоянно добавляющихся в базу проги.

Оформление на русском языке, что особенно удобно. По созданному проекту можно «прогуляться», используя функцию виртуальной экскурсии. 3D планировщик предложит сохранить результат, отредактировать его или отправить на печать.
Сервис подходит для тех, кто не желает тратить много времени на ознакомление с новым и более сложным планнером.
Planner 5D
Утилита все время развивается и обновляется. Продукт создали российские разработчики для русскоязычной аудитории, так что освоиться в функционале не составит труда.
Вы можете вдохновляться чужими дизайнами интерьера или воспользоваться ими для создания своего идеального варианта. Например, вам приглянулся какой-то проект, так что вы можете его подстроить под параметры своего жилища.

Готовые рендеры получаются высококачественными, детальными, как будто их создавали профи дизайнеры. Planner 5D имеет мобильное приложение, так что придумать дом своей мечты вы сможете по пути на работу или стоя в пробке.
FloorPlan 3D
Это приложение для настоящих дизайнеров, с ним легко и удобно работать. Программа позволяет сделать планировку сразу нескольких помещений, продумать участок с учетом каждой детали.

Помимо стандартной мебели, вам будет предложен большой каталог заборов, кустиков, клумб, с их помощью легко создать уникальный ландшафтный дизайн возле своего дома.
Картинка в итоге получатся весьма реалистичная, можно даже «пройтись» потом по саду или комнате, чтобы оценить проект.
Выпущен демо-продукт с русскоязычным интерфейсом. Минусы скорее технического плана: весит установленный FloorPlan 3D много, а также имеет высокие системные требования.
Это не все программы для дизайна интерьера, распространяемые бесплатно, но здесь перечислены одни из самых качественных и удобных продуктов. При выборе софта следует учитывать уровень своих знаний и цель его использования.
life-v.ru
Программа для дизайна квартиры: лучшие сервисы для проектирования
Если вы решили кардинально изменить облик своего помещения, воспользуйтесь специальной программой для дизайна квартиры. Во время самостоятельного планирования можно упустить важные детали, например, размещение розеток или правильный подбор и сочетание отделочных материалов по цвету и текстуре. Последствия неграмотного решения устранять сложнее, чем потратить немного времени и спроектировать своими руками с учётом всех мелочей дизайна вашей мечты. Сегодня редакция онлайн-журнала Homius.ru расскажет о лучших ресурсах для новичков и профессионалах и особенностях использования каждого сервиса.
3D-визуализация дизайна квартиры помогает наглядно посмотреть готовый интерьерСодержание статьи
Возможности программы для создания дизайна интерьера
Программа для дизайна интерьера – это целая библиотека, наполненная всеми инструментами для создания интересных композиций. Работа в любом сервисе построена следующим образом:
- Нарисовать план помещения по заданным точным параметрам.
- Выбрать отделочные материалы по цвету и текстуре.
- Визуализировать проект в 3D-изображении и посмотреть, как он будет выглядеть в готовом виде. При выявлении недостатков сразу их откорректировать.
- Рассчитать стоимость материалов.
С помощью программы можно сэкономить личное время и средства на приобретение лишних материалов.
Программа поможет расставить мебель, освещение и техникуШаг 1: планировка и перепланировка квартиры
В каталогах многих программ уже содержатся типовые планировки комнат, которые можно изменить согласно заданным параметрам. В графическом дизайне следует выбрать требуемые размеры и составить точную схему квартиры с обозначением оконных и дверных проёмов. На этом этапе можно видоизменить планировку, убрать или добавить перегородки. В последнее время часто застройщики предлагают квартиры свободной планировки только с несущими стенами. Именно с помощью онлайн-сервиса можно и совершенно бесплатно спроектировать дизайн интерьера и грамотно использовать всю общую площадь.
Это важно! При необходимости согласования перепланировки можно в архитектуру предоставить визуальный проект квартиры.
Во время составления дизайн-проекта можно выбрать готовые типовые планировкиШаг 2: расстановка мебели
Следующий шаг – это размещение мебели, техники, приборов освещения и выбор отделочных материалов. В каждой программе своё наполнение библиотеки необходимыми элементами и оттеночными решениями. Более полный перечень будет в платном профессиональном сервисе.
Можно с помощью онлайн-программы сделать несколько дизайнов комнаты с разным подбором мебельных групп и отделочных материалов и потом из них выбирать лучший. Также можно самостоятельно моделировать мебель, и уже по готовому эскизу заказать её изготовление по индивидуальным размерам.
После расстановки мебели и бытовой техники можно приступать к оптимальному размещению выключателей и розеток и планированию электропроводкиШаг 3: особенности создания в программе 3D-дизайна интерьера квартиры
После того как на проекте разместили все основные предметы и создали дизайн-проект квартиры, приступают к онлайн 3D-визуализации. Это объёмное изображение, которое даёт информацию о новом интерьере, максимально приближённую к реальности. На данном этапе хорошо видно, правильно ли выполнено зонирование жилых комнат. В 3D-изображении можно увидеть, как искусственное и естественное освещение будет влиять на визуальное восприятие цвета в интерьере. Если комната получается тёмной, следует выбирать светлую отделку или добавить несколько светильников для подсветки каждой зоны.
Визуализация проекта квартирыШаг 4: как создать в программе дизайн кухни
При помощи программы можно рассчитать точные параметры кухонной мебели, вывести объёмное изображение, продумать цветовое оформление, выбрать фактуру и внутреннее наполнение. Сервисы дизайна просты в использовании, новички смогут их освоить всего за несколько часов. С помощью удобного сервиса можно сделать перенос основных сантехнических точек и разводку труб. Обязательно нужно предусмотреть удобный доступ к ним на случай аварийной ситуации. Для этого в шкафчиках следует запланировать необходимые отверстия. Это также касается ванной комнаты и туалета.
Это следует знать! Можно спрятать разводку канализации и водопровода за коробом из гипсокартона, который станет самостоятельным предметом интерьера. Газовый прибор учёта нужно переместить в шкафчик.
В последнее время дизайнеры рекомендуют микроволновку устанавливать в открытой нише на верхней линии кухонной мебели на удалении от варочного стола, освобождая полезную зону рабочей поверхности. Желательно продумать расположение всех предметов так, чтобы ничто не мешало беспрепятственному перемещению между ними.
Во время планирования расположения бытовой техники не нужно забывать о золотом треугольнике: плита, холодильник и мойкаШаг 5: возможности 3D-изображения дизайна интерьера онлайн
Онлайн дизайн-проект квартиры в 3D-изображении даёт более полноценную картинку готового варианта. Можно детально рассмотреть интерьер, подобрать все предметы с учётом пожеланий всех членов семьи. Например, где разместить игровую зону для детей, чтобы они не мешали взрослым, или как сделать комфортную комнату для пожилых людей. Ещё одна особенность: как правильно установить двери, если в семье есть левша.
Многие сервисы дополнены виртуальной экскурсией по готовому интерьеру. Проще изменить что-то на этом этапе, чем исправлять после окончания ремонтаКакие бывают программы для создания дизайна квартиры
Сегодня существует множество планировщиков дизайна интерьеров с 3D-моделированием для пользователей любого уровня. Каждая из них имеет свои плюсы и минусы. Новичкам можно воспользоваться простым онлайн-сервисом, для профессионалов доступны лицензионные платные версии. Создать готовый эскиз в программе намного быстрее и проще, чем рисовать его на бумаге.
С помощью сервиса можно точно рассчитать потребность в материалах, создать 3D-визуализацию и передать проект в работу мастерамЛучшие программные сервисы для дизайна интерьеров квартиры, офиса или частного дома
Сегодня выбрать удобную программу проектирования дизайна дома или квартиры несложно. Можно подобрать бесплатный онлайн-сервис, некоторые разработчики предлагают воспользоваться скачанной версией, в которой, помимо планировочного решения, есть возможность объёмного изображения.
В каталогах доступны элементы декорирования и озеленения комнатыУдобные программы для новичков для дизайна интерьера онлайн
Онлайн-сервисы удобны новичкам, в них можно потренироваться создавать различные проектные решения, как небольших комнат, так и квартир, офисов или домов. Практически у всех разработчиков доступна версия объёмного изображения проекта.
Простой интерфейс онлайн-сервиса доступен даже для новичков«Planoplan»
Это прекрасный русифицированный онлайн-сервис для создания дизайна интерьера совершенно бесплатно. В библиотеку добавлена реальная мебель и отделочные материалы. Предварительно нужно сделать план-чертёж помещения или выбрать типовой проект из каталога, и уже в него перетаскивать все предметы.
| Преимущества | Недостатки |
| 1.Можно предварительно пройти обучение по навигации программы. 2.Огромный каталог реальной мебели и отделочных инструментов. 3.Отличное качество картинок. 4.Есть возможность виртуального путешествия по готовому интерьеру. | 1.В онлайн демоверсии ограничены возможности сервиса. При более детальном проектировании будет предложено купить PRO-аккаунт. |
3D дизайн-проект в программе «Planoplan»«Planner 5D»
Онлайн-сервисом можно пользоваться как со стационарного компьютера, так и с мобильной версии для телефона. После разработки эскизного проекта все результаты доступны в объёмном изображении. Специальные знания для проектирования не нужны, разобраться в интерфейсе сможет даже неопытный пользователь. На сайте Planner реализованы три возможности работы с проектом:
- с нуля;
- с готового шаблона;
- с сохранённого ранее эскиза.
| Преимущества | Недостатки |
| 1.Все элементы можно переместить при помощи мышки. 2.Проектное решение можно сохранить для дальнейшей работы. | 1.В бесплатной версии небольшой каталог мебели и отделочных материалов, при этом к просмотру доступны платные позиции. |
Простая навигация программы «Planner 5D», есть подсказки на каждом этапе создания проекта«Roomtodo»
Данный сервис отличается своей простотой и функциональностью, с его помощью разрабатывают дизайн-проекты квартир, домов или офисов. Реалистичная графика, все предметы из каталога доступны в торговой сети. Готовый проект можно импортировать по электронной почте или сохранить у себя на компьютере.
| Преимущества | Недостатки |
| 1.Проектирование возможно в 2D и 3D-изображении. 2.Доступно самостоятельное проектирование помещений, что особенно важно для дизайна дач или частных домов. | 1.Доступна только онлайн-версия. |
Объёмное изображение дизайн-проекта в программе «Roomtodo»Бесплатные программы 3D-дизайна интерьера, доступные для скачивания
Основное преимущество скачанных версий перед онлайн-программами – можно сохранить визуализацию дизайна интерьера, чтобы впоследствии обсудить готовое решение с домашними и изменить некоторые детали.
«Sweet Home 3D»
В программе для дизайна помещений могут работать обычные пользователи. Она русифицирована, имеет простой и доступный интерфейс, библиотека наполнена предметами мебели и интерьера, которые можно мышкой перетянуть на план помещения. Во время создания деталей доступно меню с выбором длины, высоты и толщины всех элементов.
| Преимущества | Недостатки |
| 1.Можно легко и быстро создать объёмный план помещения с расстановкой мебели. 2.Есть интересные функции, например, снимок дизайна, его визуализация, сохранение на компьютер для дальнейшей работы. | 1.В программе небольшой выбор мебели и покрытий. Однако на сайте разработчиков более полная библиотека, при желании можно скачать каталог на ПК.
|
Скачанная версия «Sweet Home 3D» имеет 2 поля: простой план комнаты в верхнем поле и объёмная визуализация в нижнем«IKEA Home Planner»
Если вы планируете покупать мебель в Икеа, воспользуйтесь бесплатной онлайн-программой дизайна помещения на сайте производителя. С удобным сервисом справятся даже обычные пользователи. Можно подобрать интерьер не только жилых комнат, но и прихожей, и санузла.
| Преимущества | Недостатки |
| 1.Удобная навигация. 2.Подробный каталог всех элементов. 3.Можно рассчитать стоимость оформления. | 1.Планировщик настроен только под предметы мебели и элементы, которые предлагает производитель Икеа. |
В каталоге «IKEA Home Planner» все предметы только данного производителя«Астрон Дизайн»
Данный бесплатный сервис сложно назвать полноценной программой, это, скорее всего, планирование дизайна по заданным параметрам помещения. Также в опциях есть возможность выбрать отделочные материалы и цвет, разместить оконные и дверные конструкции.
| Преимущества | Недостатки |
| 1.Возможность воспроизведения довольно реалистичной картинки. 2.Можно изменять расположение мебели. 3.Модель можно распечатать или импортировать мастерам. | 1.Небольшой выбор цветов. 2.Эскиз возможен только в 2D-формате, нет объёмного изображения. |
В программе «Астрон Дизайн» есть неплохая библиотека, которая постоянно обновляетсяПрофессиональные программы для дизайнеров с демоверсией
Лицензионные сервисы предназначены для коммерческого использования, но и у них есть свои особенности. Ознакомится с навигацией и каталогом элементов можно в демоверсии, после чего обязательно поступит предложение от разработчиков о приобретении платного аккаунта.
Каталог данных в профессиональных программах позволяет создать реалистичный интерьер«Chief Architekt»
Удобное приложение для дизайна интерьера с доступным русифицированным интерфейсом является промежуточным звеном между бесплатными ресурсами и профессиональными пакетами. Оно имеет 3 версии различной сложности, можно подобрать для себя более удобный пакет. Предварительно следует пройти обучение, чтобы разобраться со всеми тонкостями сервиса.
| Преимущества | Недостатки |
| 1.Роскошная подборка элементов, предметов дизайна, оконных и дверных конструкций и отделки. 2.Можно моделировать готовые интерьеры. | 1.Для любителей стоимость программы довольно высока, а для профессиональных дизайнеров её функционала недостаточно, поэтому они предпочитают более усовершенствованные комплексы. |
Сервис «Chief Architekt» дополнен опцией многоэтажного архитектурного дизайна«Дизайн интерьера 3D»
Отличный сервис для планирования дизайна помещений, библиотека содержит более 100 элементов мебели и около 450 вариантов отделки. В демоверсии можно только ознакомиться с сервисом, затем последует предложение о приобретении лицензионного ключа. На любом этапе планирования можно изменять размещение мебели, устанавливать или убирать перегородки. Всё, что появляется на эскизе, сразу отображается в трёхмерной визуализации.
| Преимущества | Недостатки |
| 1.Простая навигация. 2.Есть типовые планировки. 3.Доступна опция виртуальной экскурсии. | 1.В бесплатном тестовом режиме небольшой выбор предметов и отделочных материалов. |
В планировщике доступно ознакомительное видео«FloorPlan 3D»
Это программа для самостоятельного проектирования дизайна квартиры на профессиональном уровне. Объёмное изображение поворачивается, чтобы детально рассмотреть всё наполнение проекта. Библиотека содержит максимальное количество отделочных материалов, элементов лестничных маршей, можно выбрать оконные и дверные конструкции. Разработчики постоянно дополняют каталоги, в последней версии появилась возможность выбора элементов для загородного дома и ландшафтного дизайна.
| Преимущества | Недостатки |
| 1.Простое использование. 2.3D-изображение довольно реалистично. 3.В каталоге есть готовые проекты, которые можно взять как основу и доработать по индивидуальным требованиям. | 1.Скачанная версия занимает много места на компьютере. 2.Для профессионалов может быть недостаточно каталога данных. |
В сервисе «FloorPlan 3D» реализована возможность виртуального путешествияЗаключение
Мы рассказали не обо всех сервисах для планирования дизайна интерьера, а лишь ознакомили с основными принципами планирования в 2D и 3D-изображении. Теперь вы сможете протестировать любую программу, выбрать для себя наиболее удобную, чтобы начать самостоятельно готовиться к кардинальным изменениям.
Расскажите нам в комментариях, получилось ли у вас смоделировать своё пространство, и с какими трудностями вы столкнулись. Нашей редакции важно знать ваше мнение. И напоследок предлагаем видеообзор программы дизайна квартиры с объёмной визуализацией «Sweet Home 3D».
Понравилась статья? Сохраните, чтобы не потерять!
ВОЗМОЖНО ВАМ ТАКЖЕ БУДЕТ ИНТЕРЕСНО:
homius.ru
Дизайн интерьера бесплатно – простая программа

Дизайн Интерьера 3D – простая программа для перепланировки и создания дизайн-проектов жилых помещений – квартиры, частные дома и офисы. При помощи программы можно за пол часа создать наглядный дизайн-проект помещения с перепланировкой и расстановкой мебели. Программу можно использовать бесплатно в течении 10 дней, после необходимо приобрести «про версию».
Основные возможности программы
Удобная планировка квартир и офисов

Создание подробного плана помещения, в правильном масштабе. Просто расставляйте мебель в любой комнате, сморите облик интерьера в трех мерном виде и тут же вносите правки. Один из простейших инструментов для создания трех мерных дизайнов помещений.
Быстро и удобно расставить мебель

Передвигайте мебель из комнаты в комнату при помощи мыши. Теперь установить диван, холодильник или зеркало проще, чем когда либо.
Создайте помещение по вашим размерам и легко разместите мебель, в свойствах мебели можно указать произвольные размеры ширины, длины и высоты. При помощи программы вы сможете расставить мебель с точностью до миллиметра. Все размеры и расстояния в удобном видео показываются на рабочей поверхности при перемещении и создании элементов.
Дизайн интерьера это очень просто

Создавайте уникальные дизайны интерьера, даже если вы никогда не занимались дизайном. В программе представлен обширный каталог мебели и техники для разных видов помещений.
Вы сможете менять заливку и текстуру выбранных объектов. В распоряжении разработка самые популярные виды материалов в разных вариантах исполнения: камень, металл, дерево, ткань. Не нравятся обои, пол и стены, просто сделайте несколько кликов мыши и преобразите свое помещение.
Свыше 120 встроенных материалов отделки (различные виды обоев, ламинат, паркет, линолеум, плитка и т.п.)
Встроенный набор типовых планировок

Нет желания или возможности самостоятельно нарисовать планировку квартиры? Можно просто воспользоваться встроенными наборами планировок, которые постоянно обновляются и дополняются разработчиками программы.
В наборах представлены типовые решения от однокомнатных до четырехкомнатных квартир. Выбирайте подходящий вариант типовой планировки, который уже сделан с соблюдением всех пропорций и расставляйте мебель, технику и оформляйте помещение по своему вкусу.
Сохранение и распечатка проектов

Удобство проектирования в программе обеспечивается возможностью просматривать и редактировать охраненные проекты.
Созданные прототипы интерьеров можно сохранять в типовые проекты и распечатывать на принтере. Также, программа умеет экспортировать проекты в jpeg изображения и PDF форматы.
Размер: 66 МБ
Интерфейс: Русский, Английский
Платформа: Windows XP/Vista/7/8/10
Скачать Дизайн Интерьера 3D
Зеркало Дизайн Интерьера 3D
blogosoft.com
Программы для дизайна интерьера

Затеяв ремонт, важно позаботиться не только о покупке новой мебели, но и предварительно подготовить проект, в котором будет детально проработан дизайн будущего интерьера. Благодаря изобилию специализированных программ, каждый пользователь сможет осуществить самостоятельную разработку дизайна интерьера.
Сегодня мы остановимся на программах, позволяющих выполнить разработку интерьера помещений. Это позволит самостоятельно придумать свое видение помещения или целого дома, полностью опираясь на свою фантазию.
Sweet Home 3D

Sweet Home 3D – это полностью бесплатная программа для дизайна комнат. Программа уникальна тем, что позволяет создать точный чертеж помещения с последующим размещением мебели, которой в программе содержится огромное количество.
Удобный и достаточно продуманный интерфейс позволит быстро приступить к работе, а высокая функциональность обеспечит комфортную работу как рядовому пользователю, так и дизайнеру-профессионалу.
Скачать программу Sweet Home 3D
Planner 5D

Отличное решение для работы с дизайном интерьера с очень приятным и простым интерфейсом, в котором сможет разобраться абсолютно любой компьютерный пользователь.
Однако, в отличие от других программ, данное решение не имеет полноценной версии для Windows, но имеется онлайн-версия программы, а также приложение для ОС Windows 8 и выше, доступное для загрузки во встроенном магазине.
Скачать программу Planner 5D
IKEA Home Planner

Практически каждый житель нашей планеты как минимум слышал о таком популярной сети строительных магазинов, как IKEA. В данных магазинах представлен ошеломляюще огромный ассортимент товаров, среди которых достаточно трудно определиться с выбором.
Именно поэтому компанией был выпущен продукт под названием IKEA Home Planner, который представляет собой программу для ОС Windows, позволяющую составить план помещения с расстановкой мебели из Икеи.
Скачать программу IKEA Home Planner
Color Style Studio

Если программа Planner 5D представляет собой программу для создания дизайна квартиры, то основная направленность программы Color Style Studio – это подбор идеального цветового сочетания для помещения или фасада дома.
Скачать программу Color Style Studio
Астрон Дизайн

Astron – крупнейшая компания, занимающаяся производством и реализацией мебели. Как и в случае с IKEA, здесь также было реализовано собственное программное обеспечение для разработки интерьера помещений – Астрон Дизайн.
Данная программа включает в себя огромный ассортимент мебели, которой располагает магазин Астрон, в связи с чем сразу после разработки проекта вы сможете перейти к заказу понравившейся мебели.
Скачать программу Астрон Дизайн
Room Arranger

Room Arranger относится уже к разряду профессиональных инструментов, предоставляя широкие возможности для разработки проекта дизайна помещения, квартиры или целого дома.
Особенностью программы для дизайна дома стоит отметить возможность просмотра списка добавленных объектов с точным соотношением размеров, а также детальную настройку каждого предмета интерьера.
Урок: Как сделать дизайн-проект квартиры в программе Room Arranger
Скачать программу Room Arranger
Google SketchUp

Компания Google имеет на своем счету массу полезных инструментов, среди которых имеется популярная программа для 3D-моделирования помещений – Google SketchUp.
В отличие от всех программ, рассмотренных выше, – здесь вы сами принимаете непосредственное участие в разработке предмета мебели, после чего всю мебель можно использовать непосредственно в самом интерьере. Впоследствии результат может быть осмотрен со всех сторон в 3D-режиме.
Скачать программу Google SketchUp
PRO100

Чрезвычайно функциональная программа для дизайна квартиры и многоэтажных домов.
Программа имеет широкий выбор уже готовых объектов интерьера, но, при необходимости, объекты можно прорисовывать и самостоятельно, чтобы затем задействовать их в интерьере.
Скачать программу PRO100
FloorPlan 3D

Данная программа – это эффективный инструмент как для проектирования отдельных помещений, так и целых домов.
Программа оснащена широким выбором деталей интерьера, позволяя сделать дизайн интерьер именно таким, каким вы его задумали. Единственный серьезный недостаток программы – при всем изобилии функций бесплатная версия программы не оснащена поддержкой русского языка.
Скачать программу FloorPlan 3D
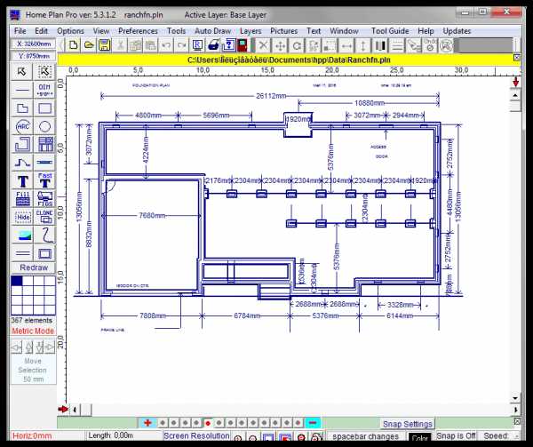
Home Plan Pro

В отличие, например, от программы Астрон Дизайн, которая оснащена простым интерфейсом, направленным на рядового пользователя, данный инструмент оснащен куда более серьезными функциями, которые оценят профессионалы.
Например, программа позволяет создавать полноценный чертеж помещения или квартиры, добавлять предметы интерьера в зависимости от типа помещения и многое другое.
К сожалению, просмотреть результат вашей работы в 3D-режиме не получится, как это реализовано в программе Room Arranger, но зато ваш чертеж станет наиболее предпочтителен при согласовании проекта.
Скачать программу Home Plan Pro
Visicon

И, наконец, заключительная программа для работы с проектированием зданий и помещений.
Программа оснащена доступным интерфейсом с поддержкой русского языка, большой базой элементов интерьера, возможностью детальной настройки цвета и текстур, а также функцией просмотра результата в 3D-режиме.
Скачать программу Visicon
И в заключение. Каждая из программ, о которых шла речь в статье, имеет свои функциональные особенности, но главное, что все идеально подойдут пользователям, которые только начинают постигать азы разработки дизайна интерьера.
Мы рады, что смогли помочь Вам в решении проблемы.Опишите, что у вас не получилось. Наши специалисты постараются ответить максимально быстро.
Помогла ли вам эта статья?
ДА НЕТlumpics.ru
Бесплатные программы для дизайна дома на русском языке
Программа для дизайна дома необходима для того, чтобы визуально посмотреть на то, как будет смотреться планируемый дом с мебелью и определенными предметами интерьера. Рассмотрим бесплатный софт, представленный на просторах интернета, с помощью которого можно без лишних трат спроектировать интерьер жилища.
Пример дизайна дома сделанного в специальной программеБесплатный софт для дизайна интерьера поможет расположить в доме реальные образцы мебели из существующих магазинов, выкрасить стены в нужные цвета, а также дополнить помещения декоративными предметами интерьера. Также с помощью таких программ можно посчитать стоимость используемых материалов, что делает ремонт в доме еще проще.
Вернуться к оглавлениюСодержание материала
Astron дизайн
Программа для создания интерьера Астрон-дизайн поможет начинающим дизайнерам в обустройстве интерьера:
- Правильно расположить дверные и оконные проемы;
- Даст возможность выкрасить пол, стены и потолок;
- Расставить мебель и другие предметы интерьера.
Благодаря тому, что в библиотеках этой программы сосредоточено большое количество образцов мебели, можно без проблем воссоздать облик вашего жилища.
Интерфейс программы Астрон ДизайнВсе что необходимо от оператора это без ошибок задать размеры комнаты и расположение дверных и оконных проемов. После этого остается выбрать определенную мебель и пробовать различные варианты ее расстановки.
Окно программы представляет собой трехмерное изображение планируемой комнаты. Элементы интерьера выбираются из каталога и располагаются на плане с помощью мыши. Само помещение и расположенные в нем предметы можно вращать и перетаскивать как угодно.
Очень важным преимуществом этого программного обеспечения является то, что в его функции входит анимация. С помощью анимации можно открывать и закрывать двери и окна, выдвигать ящики мебели, включать и выключать освещение. Эта функция поможет дизайнерам более точно представить — как будет выглядеть планируемое помещение.
Готовый дизайн гостиной в программе астронВернуться к оглавлениюPRO 100
3d программа PRO 100 в освоении будет под силу даже неопытным пользователям, и в то же время будет интересна для работы профессиональным дизайнерам. Используя эту программу можно существенно сэкономить денежные средства на услугах специалистов, и спроектировать интерьер своего дома самостоятельно.
Стоит отметить, что эта программа для создания будущего интерьера дома отличается очень богатым выбором образцов мебели. Создатели программы PRO 100 прилагают к своему продукту подробную инструкцию по эксплуатации, что будет весьма полезным при изучении.
В функционал программы входит возможность ведения учета всех элементов интерьера, включая фурнитуру.
Дизайн кухни сделанной в программе PRO 100Благодаря этому можно без труда заменить нужный элемент на другой, изменить его цвет. Свет планируемой комнаты легко поддается редактированию, можно менять угол освещения, настраивать тени и отражение от предметов комнаты. В данной программе многие делают проектирование и моделирование кухни.
Для профессиональных дизайнеров будет очень полезна возможность быстро вносить изменения в проект на глазах у заказчика, к примеру, изменять цвет мебели. Программа быстро посчитает стоимость используемых материалов и создаст отчет.
Библиотека элементов может с легкостью обновляться, так как в сети постоянно появляются новые модели. Благодаря этому данный софт получил высокую популярность среди дизайнеров. Это одна из лучших 3d программ для моделирования дизайна интерьеров.
Вернуться к оглавлениюFloorPlan 3D
FloorPlan 3D позволяет оператору в трехмерном режиме рассматривать план своего будущего дома. Существует множество версий этого программного обеспечения, которые можно подобрать практически под любую операционную систему. С помощью этого софта можно спроектировать дом со всевозможными элементами, такими как двери, окна, лестницы, крыши и прочее.
Также для удобства предусматривается создание списка используемых материалов, благодаря чему можно довольно точно рассчитать стоимость будущего ремонта. Эта программа может позволить не только создавать интерьер помещений, но и имеет функцию создания ландшафтного дизайна. Кроме всего прочего, в интерфейсе программы есть функция распределения источников освещения.
Как и в других программах, работа здесь начинается с создания базового чертежа помещения.
Чертеж дома созданного в программе FloorPlan 3DФункциональность программы легко позволяет изменять размеры помещения и редактировать другие элементы дома. Предметы интерьера могут быть выровнены относительно друг друга, а расстояние между ними может быть измерено специальной рулеткой.
Режим осмотра позволяет окунуться в планируемое помещение в трехмерном режиме. С помощью этого режима можно «побродить» по дому и уже на этапе планировки увидеть некоторые недочеты.
Вернуться к оглавлениюGoogle Sketchup
Программа для создания интерьера дома станет отличным помощником для новичков. Стоит отметить, что существуют бесплатные версии для дизайна интерьера и платные версии. Для тех, кто хочет самостоятельно спроектировать интерьер в своем доме будет достаточно и бесплатной программы, потому как функций такая версия имеет предостаточно.
Проект дома смонтированный в Google SketchupНесомненным достоинством Google Sketchup является то, что в сети можно отыскать множество типовых проектов, которые помогут начинающим дизайнерам научиться работать.
Рассмотрим некоторые возможности и особенности этого программного обеспечения:
- Благодаря тому, что область настроек одна, работа с программой дается гораздо легче;
- Существует возможность создания трехмерных элементов из фотографий;
- Функциональность программы позволяет работать с такими эффектами, как объемный текст и водяные знаки;
- С помощью программы можно создавать ландшафт, имитирующий поверхность земли, а также моделировать реальные тени. Такой функцией могут похвастаться немногие бесплатные программы для проектирования;

- Существует возможность вставки в проект реальных зданий и объектов с их реальными размерами;
- Существующая библиотека компонентов может быть обновлена, а также есть возможность создавать собственные компоненты;
- Программа Google Sketchup позволяет просматривать готовый проект в разрезе;
- Пользователей порадует удобный просмотр готового проекта в трехмерном режиме;
- Возможность интегрирования в программу данных из еще одного программного комплекса от Google – Google Earth, позволит создать качественное моделирование будущих построек;
- Существует возможность загружать в программу файлы различных форматов;
- Благодаря адекватной технической поддержке продукта можно легко решить интересующие вопросы о работе программы.
IKEA Home Planner
Это программное обеспечение является разработкой известной компании по производству мебели IKEA.
Кухонный уголок спроектированный в IKEA Home PlannerТакие бесплатные программные комплексы для дизайна интерьера как IKEA Home Planner помогут быстро и легко воссоздать желаемую обстановку будущего дома на экране компьютера.
Для работы понадобится указать размеры помещения, и можно располагать мебель на плане по своему усмотрению. Интерфейс программы будет понятен даже неопытным пользователям персональных компьютеров.
Особенностью этого софта является то, что в его библиотеку загружены только образцы мебели и предметов интерьера, которые можно приобрести в фирменных магазинах IKEA. Это можно отнести к недостаткам этого программного обеспечения, так как дизайнерские решения будут несколько ограничены.
Функции IKEA Home Planner позволяют произвести расчет стоимости подобранных предметов интерьера.
Кроме того, можно оформить покупку через специальный онлайн-сервис.
Home Plan Pro
Эта программа будет интересной как профессиональным проектировщикам, так и начинающим дизайнерам. С ее помощью можно спроектировать не только отдельные комнаты, но и целые дома. Готовые проекты сохраняются в такие форматы, как JPG, GIF и BMP.
Интерфейс программы позволяет отправлять планы домов по электронной почте и распечатывать их на принтере, что покажется удобным для некоторых пользователей.
Вернуться к оглавлениюSweet Home 3D
Такой бесплатный софт для дизайна дома на русском как Sweet Home 3D постоянно обновляется, и в сети можно скачать самую свежую версию.
3D интерьер гостиной созданный в Sweet HomeДаже с учетом того, что разработка дизайна помещений это непростое занятие, с программным обеспечением Sweet Home 3D это будет доступно для всех пользователей. Интерфейс программы создан лаконично и просто, поэтому для изучения не понадобится много времени.
Рабочая область программы разделена на четыре части, размер которых можно регулировать. Первая область необходима для выбора необходимого каталога мебели, вторая для выбора конкретной модели. Третья область отображает план помещения, на котором расставляются необходимые предметы интерьера. Последняя область моделирует комнату в 3D режиме.
Благодаря наличию в интернете постоянно обновляющихся моделей мебели и различных текстур, можно расширять функциональность программы. С помощью этого софта возможно до мельчайших подробностей воссоздать на экране планируемое помещение будущего дома.proekt-sam.ru
Бесплатные программы для дизайна квартир
Программы для проектирования квартиры разработаны для оказания помощи при ремонте или ре-планировке жилого пространства. Цифровые приложения необходимы для того, чтобы визуализировать предполагаемые изменения. Программа для дизайна квартиры может сформировать макет, а также сохранить его в памяти устройства, чтобы наиболее удачные творческие находки не были утеряны. Программные продукты различают по функциональному назначению: одни программы для интерьера квартиры позволяют подобрать элементы декора и лакокрасочные покрытия, иные выбрать мебель отделочные материалы и элементы декорирования. Более сложное ПО может оказать помощь в ре-проектировании пространства и создать 3D-модель модернизируемого помещения.
Актуальные приложения
На текущий момент в интернет-пространстве встречается несколько десятков бесплатных и условно-бесплатных программ для моделирования интерьера квартиры; самые востребованные из них:
- Planner 5D: перепланировка и декорирование жилплощади;
- Sweet Home 3D: программа для 3D моделирования квартиры, дома, дизайна интерьера;
- SKETCHUP: ПО для генерации уникальных 3D-макетов для юзеров любого уровня;
- Асторон Дизайн: предполагает создание качественных и детализированных трехмерных макетов интерьера с возможной проработкой нежилых отсеков квартиры.
Программы 3D моделирования дизайна доступны для бесплатной загрузки на нашем сайте в этом разделе.
Loading…
Google SketchUp 17.0.18899 – это необычайно простой и полностью бесплатный 3D редактор. С его помощью можно разрабатывать различные 3D модели, причем создавать сможет каждый пользователь. Программа располагает удобным и понятным
Скачать Google SketchUp 17.0.18899
Loading…
Приложение Астрон Дизайн представляет собой одну из лучших современных программ для 3D моделирования интерьера различных помещений. Продукт позволяет с максимальной реалистичностью спроектировать любую комнату, в том числе покрасить цвет стены
Скачать Астрон Дизайн 3.0.0.26
Loading…
Она поможет создать оптимальную интерьерную модель для вашего дома или квартиры. Вам вовсе не обязательно быть выдающимся дизайнером – достаточно бесплатно скачать эту программу и начать использовать. Приложение позволяет быстро и
Скачать Planner 5D 1.6
Loading…
Программа Sweet Home 3D версии 5.4 предназначена для проектирования 3D дизайнов помещений, экстерьеров, ландшафтного дизайна и др. Скачайте Sweet Home 3D бесплатно, она поможет, например, расставить виртуально мебель в комнатах дома или
Скачать Sweet Home 3D v5.4poleznyeprogrammy.com
Программы для дизайна интерьеров: выбираем лучшую » Notagram.ru
Иногда к нам приходит вдохновение сделать перестановку в комнате или вообще кардинально изменить свое жилище к лучшему. И вот в порыве чувств, мы начинаем носиться по комнатам с рулеткой в руках и на каких-то обрывках бумаги судорожно набрасываем план будущего интерьера квартиры или отдельной комнаты.
Благо на дворе век современных компьютерных технологий и всю нашу страсть к переменам можно спокойно перенести на плоскость компьютерных 3D-планировщиков интерьера. Как заявляют разработчики программ для дизайна планировки жилых помещений, они предлагают пользователю гибкий и интуитивно понятный инструмент, с которым разберется любой, кто даже никогда не сталкивался с 3D-планированием.
Notagram.ru решил проверить так ли это на самом деле, и насколько сложно новичку разобраться и работать в популярных бесплатных 3D-планировщиках интерьера. Мы решили уделить время каждой программе по дизайну интерьера, и выявить все плюсы и минусы каждого инженерно-проектного решения. В качестве тестовых заданий мы пытались вписать произвольный набор мебели под различный интерьер. О том, что у нас получилось, читайте дальше.
Программы для дизайна интерьеров: выбираем лучшую
Autodesk Homestyler

Компания Autodesk в представлении не нуждается, все ее программы являются эталоном в сфере инженерного 2D и 3D проектирования и визуализации. Решение Autodesk Homestyler позволяет любому, с помощью веб-браузера создать проект дома, квартиры или дачного участка, а также с легкостью расставить мебель в помещении. Программа имеет стандартный интерфейс, с которым можно разобраться за 10-15 минут. Для того, чтобы иметь возможность сохраняться, необходимо пройти простенькую регистрацию.
Достоинства:
- работает через веб-интерфейс
- хороший набор пресетов
- потрясающее качество рендера
Недостатки:
- отсутствие русского языка
- невысокая скорость работы и требовательность к железу компьютера
Подходящее решение для того, чтобы на скорую руку прикинуть расстановку мебели в комнате или, набравшись терпения, заняться проектированием более серьезных инженерных задач.
Sweet Home 3D

Это программное решение для дизайна и моделирования жилых пространств создается и поддерживается энтузиастами со всего мира. Благодаря открытому коду за 12 лет она буквально обросла десятками тысяч шаблонов и вариантов декора. С Sweet Home 3D можно работать как в десктопном варианте, так и онлайн с помощью веб-браузера. Очень приятно, что вы можете загрузить уже готовые варианты интерьеров, которыми поделились пользователи.
Достоинства:
- огромный набор загружаемых пресетов
- дружественный интерфейс
- нетребовательна к ресурсам компьютера
Недостатки:
- «мультяшный» рендер
- некоторые неудобства интерфейса при работе
Sweet Home 3D отлично подойдет вам, если вам необходимо быстро набросать планировку квартиры или офиса. Также с помощью этого ПО можно посмотреть огромную базу уже сохраненных энтузиастами вариантов дизайна и планировки помещений и прикинуть их к своим реалиям.
Planner 5D

Это популярное решение позволяет даже новичку заняться планировкой комнаты, квартиры и целого дома. Интерфейс у программы простой, разобраться что и как можно буквально за 2-3 минуты. Новичку в дизайне интерьера очень удобно с помощью Planner 5D набросать комнату своей мечты и показать профессиональному интерьерщику, что вы вообще хотите и как все представляете. Работает все очень быстро и приятно.
Достоинства:
- простой, понятный и дружественный интерфейс
- приятный глазу рендеринг
- обеспечивает самый быстрый старт для новичка в дизайне
Недостатки:
- очень скудный набор пресетов
- чем сложнее проект, тем требовательнее к ресурсам программа
Planner 5D отлично подойдет вам если вы с компьютером на «Вы» и вообще не знакомы с дизайном. Интерфейс очень простой, в нем нет ничего лишнего для новичка. Для серьезных проектов это решение использовать тоже можно, но вам понадобится мощный компьютер и платная подписка.
Astron Design 3D

Astron Design 3D — это наш ответ программным продуктам по дизайну интерьеров от IKEA. Программа очень простая в использовании и подойдет как новичкам, так и профессионалам. В набор для проектирования входит готовая мебель от производителя. С интерфейсом все тоже хорошо, наглядно и интуитивно понятно, несмотря на множество разнообразных функций. Отличное решение для всех тех, кто решил полностью обновить свой интерьер или подвигать шкафы по периметру комнаты.
Достоинства:
- программа простая в использовании, несмотря на богатый функционал
- приятный глазу рендеринг
- очень удобно сделана работа с источниками освещения и мебелью
Недостатки:
- хотелось, чтобы пресетов было больше
Дом-3D

Очень интересное решение, которое внешне напоминает AutoCAD самых первых версий. Программу сложно назвать простой, но разобраться с ней под силу даже новичку. В Дом-3D заложен огромный инженерный потенциал, который пригодится вам не только при дизайне интерьера, но и трехмерной визуализации домов и проектирования мебели. Востребованное решение для любой домохозяйки и высококлассного инженера.
Достоинства:
- понятный интерфейс, несмотря на достаточную профессиональность ПО
- приятный глазу рендеринг
- очень хорошо сделана работа с визуальными моделями
Недостатки:
- отсутствие русского языка
- 30-дневное ограничение бесплатной версии
Вместо заключения
Однозначно сложно выбрать победителя из пяти программ для дизайна интерьера самую лучшую. Все они обеспечивают комфортное проектирование интерьера любой сложности. Разобраться с каждой из программ по силе любому. Единственное на чем бы мы акцентировали внимание, если вы предпочитаете работать за планшетом — используйте Planner 5D или Autodesk Homestyler. А если вы хотите серьезно, по-инженерному, подойти к дизайну квартиры — устанавливайте на компьютер Sweet Home 3D, Astron Design 3D или Дом-3D.
Если вы нашли ошибку, пожалуйста, выделите фрагмент текста и нажмите Ctrl+Enter.
notagram.ru
