2 х комнатная хрущевка дизайн фото – Дизайн хрущевки 2х комнатной фото
Стильный дизайн квартир хрущевок 2 комнаты
Создать стильное оформление интерьера помещений с ограниченной площадью, сочетая красоту и функциональность, довольно сложно. Потребуется тщательно спроектировать дизайн квартир хрущевок 2 комнаты для достижения желаемого результата. Главным минусом жилища выступает неудобная планировка с нарушенной геометрией комнат. Стандартные варианты часто не подходят для комфортного проживания. Оптимальным решением в таком случае станет ремонт и выполнение перепланировки.
Варианты планировки
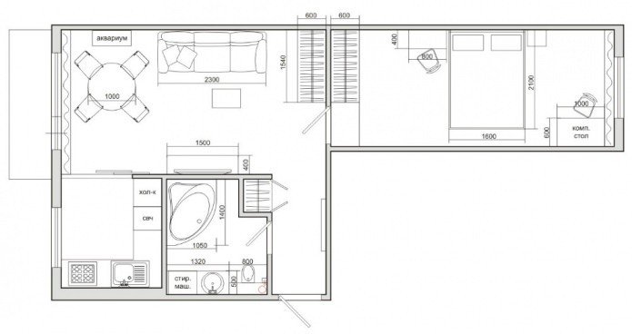
Современные дизайнерские приемы, представленные на фото, позволяют создавать стильные и уютные интерьеры. В двушке хрущевок важно учитывать площадь и геометрию. Планировка, названная в народе «книжка» с общей площадью в 42 квадратных метра, имеет план с жилыми смежными комнатами с одной проходной, считается наиболее неудачной. Комнаты при расположении «трамвай» также смежные, но более удобны для разделения.
Планировка квартир хрущевок в девятиэтажном доме в 44 кв метра отличается улучшенным размещением комнат, но минимальные размеры кухни потребуют принять кардинальные меры и составить план для расширения пространства. Проект планировки с симметричным расположением комнат, имеющих площадь 45 кв метров с маленькой кухней в центре называют «бабочка» или «распашонка».
Несмотря на удобную изолированность жилого пространства, представленная схема и проект подтверждают необходимость в увеличении кухни. Продажа малогабаритного жилья с нестандартной двухкомнатной планировкой не единственный выход из ситуации.
Способы перепланировки
Существует несколько основных тонкостей радикальной перепланировки как на фото во время ремонта, которые помогут сделать жилище стильным, комфортным:
- создание двухкомнатной квартиры студии на 45 кв метрах общей площади предполагает снос всех перегородок, сохраняя при этом несущие стены. После этого оригинальные ширмы и перегородки зонируют целостное пространство по функциональному назначению, воплощая самые невероятные идеи;
- расширение кухни или гостиной благодаря переносу перегородки спальни позволит отделить зону отдыха, увеличив пространство других комнат. В таком случае в спальне устанавливается только кровать, комод, или тумбочки. Основная меблировка, обеденная зона переносится в гостиную;
- идеи по превращению балкона, лоджии в отдельную комнату, или их совмещение с жилым помещением потребует выполнить установку нового качественного окна, утепление внешних поверхностей. Данный эконом план позволит выполнить ремонт, после получив несколько метров пространства, а продажа из-за недостачи полезной площади будет отменена;
- создание совмещенного санузла в квартире 45 кв метров позволит увеличить рабочее пространство, позволив расставить в ванной полноценную стиральную машину, бойлер, необходимую сантехнику, сохранив несущие перегородки. Вариант довольно затратный и трудоемкий ввиду перепланировки системы водоснабжения, замены труб и канализации.
Выбор подходящего варианта перепланировки должен основываться в первую очередь на особенностях геометрии и расположения комнат.
Важно учитывать личные предпочтения, функциональную нагрузку интерьера. Совсем необязательна продажа квартиры хрущевки, при наличии огромного количества вариантов для изменения планировки.
Оригинальные стилистические решения
Выбор стилистического решения для двухкомнатной квартиры хрущевок несмотря на сложности оформления довольно велик. Существует огромное количество стилей уместных для нестандартных помещений, площадь которых ограничена. Особой популярностью для стандартной площади 45 кв метров пользуется современный дизайн в стиле модерн, хай-тек, минимализм. Любителям восточных мотивов подойдет японский стиль, почитателям старины и классики – прованс, ретро, или кантри.
Каждый стиль имеет свои особенности и тонкости оформления. Современный дизайн отличается лаконичностью, строгостью линий, отсутствием лишних деталей. В результате можно получить светлое, просторное помещение. Японский стиль позволит выполнить зонирование при помощи оригинальных аксессуаров с восточными нотками. Уютные варианты оформления в стиле ретро, прованс, создадут по-домашнему теплую атмосферу в планировке «распашонка».
Методы зонирования пространства
Зонирование комнат в квартирах хрущевок является обязательным условием создания функционального интерьера. Организацию пространства можно выполнить, используя визуальные эффекты, или проект радикальных изменений планировки как на фото. Игра цвета и света широко применяется в качестве зрительного расширения пространства, ненавязчиво, тонко выделяя необходимые области. Предметы мебели также могут выступить выгодным методом зонирования. Барные стойки, книжные полки практично разделят план помещения по функциональному назначению.
Кардинальные изменения в расположении комнат, или при создании единого интерьера на 43 кв метрах потребуют тщательно продумать плавные переходы, несущие перегородки, способы размежевания на этапе проведения ремонта.
Оптимальные варианты меблировки
Правильная меблировка двухкомнатной квартиры хрущевок обеспечит комфорт проживания, сделав план обстановки более функциональным. Цвет, форма мебели должны гармонировать с общей стилистической идеей интерьера, соответствуя цветовому решению отделки. Проверенные советы основываются на основных стилистических приемах:
- минимальное количество элементов мебели;
- применение модульных конструкций;
- легкие, складные варианты;
- стеклянные предметы, или зеркальные вставки;
- компактная угловая и подвесная мебель.
Продажа современных барных стоек, оригинальных ширм и перегородок поможет разделить пространство, не утяжеляя его. Мебель должна быть максимально практичной и функциональной. Дизайн и варианты мебельного оформления как на фото при совмещении жилых помещений с кухней, или проходной план, предусматривают выбор предметов с устойчивой обивкой, или поверхностью, устойчивой к влаге, различным воздействиям. Следует подбирать элементы, учитывая легкость чистки.
Тонкости оформления поверхностей маленьких помещений
Отделка и оформление поверхностей поможет не только украсить интерьер, но и создать желаемый эффект расширения пространства. Контрастное оформление белого потолка с легким глянцем и темного пола станет оптимальным решением для небольшой жилплощади 44 кв метра. Подъем пола, или комбинирование различных материалов органично подчеркнут дизайн и раздел помещения на зоны.
План отделочных работ на поверхности стены лучше выполнять, начиная от самого потолка, что создаст зрительное впечатление высоты плоскости.
В качестве отделочных материалов, чтобы декорировать несущие стены, используются камни, жидкие обои, фактурная штукатурка, лепнина. Продажа современных фактур и цветовых вариаций обоев позволяет легко создать красивое оформление. Несмотря на низкие потолки, нестандартный план помещений, допускается использовать натяжные, гипсокартонные потолочные конструкции. Органичные переходы многоуровневых вариантов помогут в зонировании даже проходной комнаты. Во время ремонта, выполняемого своими руками, особенно важно учитывать практичность и качество отделочных материалов.
Цветовые вариации
Белый цвет, несомненно, выступит идеальной основой для дальнейшего оформления, зрительно расширяя пространство, создавая эффект уюта, чистоты. Привнести нотки тепла и натуральности поможет выполнение стены в цвете, имитирующем фактуру, тон натурального дерева. Особенно актуален выбор для эко интерьеров.
Ограниченный размер кухни хрущевок не позволяет обустроить в ней полноценную обеденную зону. Можно применить контрастное сочетание желтых и фиолетовых красок в гостиной, в области расположения обеденного стола, стульев, выполнив оформление своими руками. Обои с мелким цветочным принтом или географическим рисунком на поверхности стены, положительно повлияет на восприятие пространства, поможет сделать его шире, просторнее.
Эффективно применяется прием оформления одной стены в контрастном или яркую вертикальную полоску фото. Таким образом, можно выделить одну из зон, или выполнить визуальное разграничение пространства. В красках должна превалировать лаконичность, простота. Рекомендуется выбрать три основных интерьерных цвета, после чего использовать для оформления игру их оттенков. Цвет мебели должен органично сочетаться с общим оформлением.
Правильное освещение
Правильное освещение в маленьких пространствах квартир как на фото может выступить не только в роли источника света, но и оригинального элемента декора. Важно учитывать количество природного света, при необходимости дополняя дизайн стандартными рекомендациями. Продажа встроенных светильников позволит выбрать оптимальный вариант для центрального освещения, оформления ниш, арок и перегородок.
Центральная люстра на потолке будет выглядеть неуместно, сделает его ниже, заменой может выступить осветительный прибор, максимально прижатый к поверхности.
В качестве дополнительных источников освещения выступят бра, торшеры, оригинальные настольные светильники. Довольно практична идея, использовать световой поток для органичного разграничения зон, выделения области оформления, части проходной стены, или чтобы подчеркнуть стильный аксессуар. Также выгодно использовать подсветку по всему периметру потолка, наполняя пространство достаточным количеством света для создания комфортной и уютной обстановки.
Дизайнерские приемы по увеличению пространства
Опытные специалисты по оформлению применяют исключительно проверенные приемы и дизайн расширения пространства. Ограниченная площадь должна обладать максимальной функциональностью, органично совмещая несколько зон. С особой осторожностью следует подойти к видам планировки и количеству разделительных полос в квартирах хрущевках. Слишком большое количество визуальных разграничений способно перегрузить интерьер.
Пропорциональная гармония предметов в комнатах обеспечит правильное восприятие пространства. Рекомендуется отдавать предпочтение, элементам средних размеров, отказавшись от громоздких, тяжелых вариантов. Замена обычных межкомнатных дверей на раздвижные варианты во время эконом ремонта, создание арочных проемов как на фото являются беспроигрышным методом экономии пространства.
Оригинальные элементы декора
Не рекомендуется загромождать интерьер помещений, площадь которых 44 кв метра, множеством мелких предметов. Важно тщательно изучить план, продумать каждый элемент декора, правильно расставить аксессуары. Громоздкие ковры, покрывала, тяжелый текстиль на окнах, коврики, подушки и сувениры создадут эффект захламленности, уменьшив и без того небольшое пространство. Также нельзя допускать отражения мелких предметов в зеркальных поверхностях, что визуально умножит их количество.
Легкие невесомые ткани в минимальном количестве придадут воздушную невесомость пространству. Яркими акцентами могут выступить несколько подушек, салфетки, или полотенца на кухне. Фоторамки, сувениры лучше использовать в минимальном количестве, отдав предпочтение картинам, выполненным в стиле интерьера. В случае наличия достаточно большого количества книг, можно оформить навесные полки. Устранить излишнюю пестроту, поможет обертка книг бумагой спокойных тонов.
Принцип создания комфортной обстановки двухкомнатной квартиры хрущевки – минимум предметов не несущих функциональной нагрузки. Важно продумать вместительные, компактные и эргономичные системы хранения мебели еще на этапе ремонта. Правильное применение приемов поможет создать красивый и уютный дизайн интерьера даже на небольшой площади жилища.
www.sedmoycanal.com
Дизайн 2 комнатной хрущевки — фото интерьера
Ремонт небольших комнат в 2 комнатной хрущевке с одним окном и неудобно расположенной дверью – настоящее испытание для фантазии. Тем не менее даже комната в хрущевке может стать весьма уютной. Главный враг маленьких комнат – беспорядок и нагромождение. Никакого творческого хаоса, минимум декора, мебели, колорита.
Правила выбора цветовой гаммы
Часто можно услышать, что в скромных помещениях от темных цветовых акцентов лучше отказаться, но это утверждение несколько преувеличено. Преобладать действительно должны светлые оттенки, но если вся обстановка будет выполнена в пастельных тонах, она станет единым блеклым пятном неуютным, неинтересным, без характера. Общая палитра (цвет стен, пола, мебели, текстиль) должны дополнять друг друга.

Схема планировки 2х комнатной хрущевки с проходной комнатойДизайнеры советуют подобрать три цвета: один будет основной, второй – дополнительный, а третий станет связующим звеном между первыми двумя. Он должен играть вспомогательную роль, можно выбрать более яркий, акцентный.

Дизайн гостиной в 2 комнатной хрущевке 42 м2Популярные цветовые решения
Выбор цвета, безусловно, дело личных предпочтений. Также важно учесть, что окружающая обстановка влияет на эмоциональное и психологическое состояние человека даже если этого не заметно на первый взгляд.

Стандартная планировка гостиной в панельном домеВарианты отделки потолка
Самых популярных вариантов отделки можно выделить три. Все они подходят для невысоких потолков спален.
Отделка пола
Чем будет застелен пол зависит от предпочтений и материальных возможностей домовладельцев. Напольное покрытие лучше выбрать не слишком светлое. Ламинат или паркетную доску желательно укладывать по диагонали или поперек узкой стены. Тоже самое правило касается линолеума. Лучше подобрать неоднородный рисунок. Возможно, это будут ромбы или имитация мелкого паркета. Ковролин многие хозяйки обходят стороной из-за непрактичности, но именно этот вариант сделает обстановку более теплой.

Идея современного интерьера в стандартной хрущевкеОтделка стен
Основным вариантом отделки спальни остаются обои. Благо на смену бумажным тонким «газеткам» пришли более современные: виниловые, текстильные, флизилиновые покрытия, обладающие прекрасными эстетическими и практическими качествами. Обои линкруст, которые нынче возвращаются в моду, лучше не использовать.
Альтернативный вариант – жидкие обои. Они отличаются оригинальной текстурой, позволяют создавать бесшовную «мягкую» поверхность, а также интересные крупные рисунки.

На фото гостиная объединенная с залом в двушкеИнтересным решением станет последнее слово дизайна – люминесцентные обои. В темное время суток на них проступает световой рисунок, который постепенно блекнет к утру. Днем покрытие выглядит вполне обычно.
Окрашивание стен самый бюджетный, простой вариант отделки со своими плюсами. Он позволяет подобрать абсолютно любой оттенок внутреннего интерьера. Отлично подходят матовые краски. Нередко их украшают виниловыми наклейками, создавая определенную атмосферу.

Зал объединенный с кухнейВыбор мебели
Говорить о том, чтобы выбрать обстановку комнаты по всем своим требованиям не приходится. Удобно разместить здесь самое необходимое уже удача.
Несколько советов:
- Кровать лучше подбирайте с выдвижными ящиками. Такие модели стоят дороже, но лишнего места, чтобы хранить спальные принадлежности не бывает. Тем более, что громоздкий комод поставить, скорее всего, не получится.
- Изголовье кровати в виде панели-полки позволит удобно разместить подручные вещи и отказаться от прикроватных тумбочек.
- Ценителям неординарных решений, возможно придется по душе идея установки кровати у окна, когда ложе будет занимать все расстояние от стенки к стенке.
- Иногда уместной станет установка угловой двуспальной кровати.

Спальня с отделкой обоями и потолком под деревоСовет! Кровать – это единственная вещь, на которой нельзя экономить. Она должна быть удобной, даже если размер заставляет пожертвовать чем-то другим.
- Все предметы обстановки должны отвечать одному стилю, цвету, временной эпохе.
- Шкаф-купе с высокими зеркальными дверцами визуально сделает пространство больше.
- Если планируется установка телевизора, стоит подумать о тонких ТВ-панелях, которые вешаются на стену.
Планировка
Нередко дизайн двухкомнатной квартиры предполагает перепланировку, снос простенков, объединение. Некоторые планы позволяют увеличить спальню за счет кладовой, если хозяйка не против, но чаще глобальная перестройка сводится к переносу дверного проема.

Спальня с одним окномРасстановка мебели
Любое хорошо спланированное дело можно считать наполовину выполненным, поэтому прежде всего необходимо расставить мебель. Для этого можно использовать специальные компьютерные программы, которые легко освоить даже новичку или же воспользоваться старым проверенным методом: начертить на листе бумаги комнату в масштабе, вырезать предметы мебели из картона, попробовать каждому найти свое место.

Спальня с вместительным шкафом и антресолью над дверьюРасстановку мебели начинают с кровати. Только определив ее местоположение переходят к следующим предметам. В узкой маленькой комнате ее устанавливают поперек, ближе к одной из узких стен, или вдоль длинной стены. Другие варианты непрактичны. Понятно, что для двуспальной кровати желательно обеспечить двухсторонний подход.

Проект ванной комнатыШкаф должен занимать самый темный угол. Туалетный столик ставят вдоль стены перпендикулярно окну. Альтернативой может послужить зеркало с навесной полочкой, под которую прячется узкий пуф.
Дизайнеры рекомендуют расставлять гарнитур таким образом, чтобы между объектами было хотя бы 70 см свободного пространства. Под это правило не попадают только пуфы, прикроватные тумбочки, которые пододвигаются вплотную.

Оригинальная подсветка шкафаОсвещение
Естественное освещение, как бы это ни было парадоксально, играет второстепенную роль. Главный вопрос – как грамотно организовать искусственное.
Освещение разноуровневое. Желательно устанавливать выключатели с регулятором мощности. Стоит отказаться от громоздких абажуров под потолком, торшеров, занимающих полезную площадь, множества точечных светильников. Такая иллюминация бессмысленна, она не заменит грамотного локального освещения, кроме этого лампы дневного света формируют неприятно холодную атмосферу.


Совет! Мягкий рассеянный свет, заполняющий все помещение создаст необходимый визуальный объем и уют.
На площади около 10 кв метров будет вполне достаточно одной плоской люстры, у кровати располагают одну-две бра, еще один осветительный прибор на потолке или стене располагают возле шкафа или туалетного столика. Бра у кровати можно заменить на небольшие высокие настольные лампы. Любители неординарных решений могут подобрать небольшие плафоны, опущенные над тумбами с самого потолка.

Кухня с барной стойкойУбранство и аксессуары
Окно в спальне хрущевки обычно небольшое. Здесь будут более уместны занавески из однотонной ткани, если окно находится на короткой стене – горизонтальная полоса будет кстати. Отказаться стоит от громоздких портьер, балдахинов. На картинках интерьеры выглядят уютно, на практике делают обстановку тяжелой и пыльной. Что касается способа крепления, лучше отдать предпочтение традиционным карнизам. Оригинальным решением может стать полка над окном. Она визуально поднимет стены, подарит немного места для сбора различных безделушек.

Рабочее место на балконе соединенным с гостинойЕсли отказаться от радиатора под оконным проемом, пространство вокруг можно интересно обыграть, к примеру, превратить в мини кабинет или библиотеку. Для этого вокруг устанавливают не глубокий встроенный шкаф, подоконник переделывают под столешницу или непосредственно под окном сооружают небольшую лавку с подушками.
Декора, как уже было сказано, минимум. Открытые полки, лучше оставлять полупустыми, это сделает обстановку более легкой. Очень популярным стало хаотичное развешивание множества фото разного размера, в данном случае лучше заменить их одной большой картиной или подобрать модульную.
В заключение хочется отметить, что дизайн двухкомнатной квартиры в хрущевке – задача не самая простая даже для профессионалов. Тем, кто обходится своими силами, отличными помощниками станут различные компьютерные программы, в которых можно создать практически точную картинку будущего интерьера. А вот цвета, как правило, весьма искаженные, поэтому палитру лучше присматривать на фото в интернете.

Компактная ванная комнатаroomester.ru
Дизайн 2х комнатной квартиры 44м2 хрущевка без перепланировки фото
Дизайн хрущевки без перепланировки
Поэтому ремонт настолько важен: от проекта будущей квартиры зависит, насколько удобно в ней будет жить. Вложенные в проект силы в дальнейшем вернутся сторицей, ведь проживание в грамотно организованной, стильной, пусть и небольшой, квартирке принесет много положительных эмоций.


Финансовая сторона вопроса влияет относительно, и мы это докажем, рассматривая в статье фото удачных вариантов дизайна 2х комнатной квартиры в хрущевке. На площади 44 м2 и без перепланировки по силам создать гармоничное, приятное для проживания пространство.
Открываем двери
Решение обойтись при ремонте «малой кровью» и отказаться от кардинальных изменений в планировке квартиры, ограничивает выбор дизайнерских приемов, которые можно использовать. В таких обстоятельствах дизайнеры уделяют особенное внимание нескольким деталям интерьера, одна из которых – оформление дверного проема, обеспечивающего проход из гостиной в спальню, коридор или в кухню.
Производители дверей радуют разнообразием используемых механизмов, благодаря которому найти подходящую модель, отвечающую личным требованиям, не составляет труда. В двух словах обозначим плюсы и минусы разновидностей для наглядности.
- Распашные. Наибольшее достоинство – высокая степень герметичности, они пропускают минимум посторонних шумов и запахов. Недостаток – в открытом состоянии занимает дополнительное пространство у стены, что критично для небольших габаритов хрущевки.
- Раздвижные. При средней герметичности их достоинство одновременно является и недостатком – в открытом состоянии дверь опять же занимает дополнительное пространство вдоль стены.
- Складные. Две и больше легких подвижных створок свободно отодвигаются в сторону и открывают проход. Занимают меньше места, чем перечисленные выше разновидности. Модели «гармошка» — и вовсе минимум. Но от количества секций зависит звукоизоляция, чем больше сегментов, тем лучше слышно, что происходит за пределами комнаты. К тому же раскладные модели не рекомендуется устанавливать в проходные комнаты, так как механизм быстро приходит в негодность от частого и неаккуратного использования.
- Маятниковые. Такие двери открываются в любую сторону, от себя и на себя. Это их достоинство, а недостатком считается плохая звукоизоляция.


На фото дизайнов 2х комнатной квартиры 44 м2 часто встречаются арки. И не случайно: хрущевки отличаются тесными затемненными помещениями, поэтому арочные проходы – единственный способ без перепланировки немного облегчить интерьер комнаты и увеличить количество поступающего внутрь естественного света. В ненесущих стенах проход также возможно увеличить в высоту или ширину без необходимости согласования работ.
«Одеваем» окна
Продолжаем тему естественного освещения. Рассмотрим, какие дизайнерские решения раскроют окна, чтобы они пропускали больше солнечных лучей. В первую очередь говорим «нет» тяжелым плотным шторам. В небольших хрущевских квартирах они будут поглощать свет и визуально уменьшать помещение. Чтобы добиться противоположного эффекта, обратите внимание на светлый легкий тюль. Невесомые шторы в пол зрительно вытянут комнату в высоту.

Традиционные шторы хорошо смотрятся в любом интерьере. Для стилей минимализм и хай-тек подойдут строгие римские шторы. А в скандинавском стиле окна замечательно смотрятся и без дополнительного убранства. То же самое можно сказать и про лофт-интерьеры.


Не лишним будет и напомнить о порядке на подоконниках – каждый предмет загораживает солнце, поэтому окна максимально освобождают, оставляя только минимум декора – цветок в горшке и пару украшений. Для книг и всего остального лучше присмотреть место в шкафу.
Освещаем комнаты
От естественного переходим к искусственному свету. Для дизайна 2х комнатной квартиры в хрущевке искусственное освещение играет немаловажную роль. 44 м2 – не такая уж большая площадь, поэтому, чтобы визуально увеличить помещения без перепланировки, приходится прибегать к дизайнерским хитростям. Децентрализованное освещение на фото – одна из них. При размещении ламп по всему помещению не остается темных углов, комната освещена равномерно. При этом светильники располагают таким образом, чтобы каждый отвечал за отведенную ему зону. Распространенные варианты освещения:
- В спальне: кровать, рабочее место, гардероб, туалетный столик
- В гостиной: рабочее место, столовая (если есть), рекреационная зона
- В коридоре: прихожая, зеркало, шкаф
- На кухне: обеденный стол, место приготовления пищи

Смотрим на потолок
Низкие потолки – одна из причин нелюбви к хрущевкам. Из-за небольшой высоты помещение будто давит на находящихся внутри. Предлагаем несколько советов, как избавиться от этого впечатления:
- Цвет потолка должен быть всегда светлее, чем у стен. Темные тона подойдут для квартир с большей высотой потолков.
- Визуально отдалить поверхность поможет прием, когда верхнюю часть стен красят в тот же цвет, что и потолки.
- Натяжные потолки скроют дефекты неровной поверхности и отнимут не так много сантиметров от высоты.
- Фигурные многоуровневые потолки за счет разницы в высоте визуально сделают комнату выше.


Выбираем мебель
Предпочтение отдают функциональным моделям, если на небольшой площади необходимо разместить много мебели: диван-кровать, кресло-кровать, стол-трансформер. Если такой необходимости нет, то внимание обращают на внешний вид предметов и то, как они вписываются в интерьер.


Вытянутые в ширину диваны и комоды зрительно увеличивают помещение по горизонтали. Узкие высокие шкафы и стулья, напольные светильники и другая мебель, для которой основной считается вертикаль, наоборот, дают работают на высоту.


И напоследок отметим, что для небольших 2х комнатных квартир 44 м2 остро стоит вопрос хранения вещей. В дизайне хрущевки без перепланировки не обойтись без вместительного шкафа-купе во всю стену. У некоторых моделей на дверцах есть зеркальные вставки, а то и вся поверхность – это одно большое зеркало, как на фото. Выбор такого шкафа решит сразу несколько проблем: отпадает необходимость покупать отдельное зеркало, а комната визуально ощущается больше и светлее.
Поделитесь в соцсетях или сохраните ссылку:
smallflat.ru
Дизайн двухкомнатной хрущёвки: оформление, планировки, дизайн
Ссылка на статью успешно отправлена!
Отправим материал вам на e-mail
Чтобы не говорили о сносах привычных глазу хрущёвок, стоят они и стоят, а люди в них живут и живут. Вместо того, чтобы ждать десятилетиями улучшения условий и жить в ветхом ремонте, не лучше ли позаботиться о себе самостоятельно, создав креативный дизайн двухкомнатной хрущёвки? Редакция HomeMyHome с удовольствием представляет различные проекты и решения для превращения родных пенатов в нечто прекрасное и уютное!

Красота любимой квартиры зависит от нашего желания её таковой сделать
ФОТО: dizainvfoto.ru
Содержание статьи
В чём заключаются особенности планировки двухкомнатной хрущёвки
Тот, кто хоть раз забегал в квартиру хрущёвской планировки, тот помнит и сравнительно низкую высоту потолков в 2,5 м, и совсем небольшие комнаты.
Есть несколько типов планировок хрущёвки в 2 комнаты:
- книжка;
- трамвай;
- распашонка.
Вся площадь «книжки» состоит из маленькой кухни, санузла, двух смежных комнат. Вариант проблематичен для проживания и перепланировки, ведь решая проблемы изоляции спальни и гостиной, сталкиваются с солидным уменьшением их площади.

По площади планировка «книжка» равна 41 м²
ФОТО: elanvist.com
А проблема для проживания очевидна, ведь одна комната будет проходной, а санузел совмещённым. Если решено будет расширить санузел, придётся делать это, уменьшая коридор, или же устанавливая душ вместо ванны.
Планировка с названием «трамвай» напоминает собой это транспортное средство. Комнаты располагаются друг за другом, причём одна будет проходной.

Метраж равен 48 м², в наличии имеется ванная, туалет, прихожая и кухня. Допускаются решения с перегородками
ФОТО: elanvist.com
«Распашонка» как планировка самая удачная, так как комнаты здесь уже не смежные. Единственное, это проблема с увеличением комнат или кухни: всё придётся делать за счёт уменьшения и без того не огромного пространства.

Планировка «распашонка»
ФОТО: stroyday.ru
Бывают редкие планировки двухкомнатных хрущёвок с наличием кладовки. Санузел может встречаться раздельный или совмещённый. Наличие небольшого балкона, скорее, правило, чем исключение.
Что из материалов подходит для ремонта двухкомнатной хрущёвки (с фото отделки)
Если запланирован ремонт в двухкомнатной хрущёвке, следует начать изучать рынок строительных и отделочных материалов. Правильная отделка не украдёт лишние сантиметры и позволит сделать интерьер оригинальным и красивым.
Ремонтируем полы, потолки и стены
Так как высота помещений небольшая, следует сразу отмести все материалы, которые способствуют её уменьшению. Сюда относится система подвесных потолочных конструкций. Можно запросто перемудрить с таким, казалось бы, благим решением.

Чем проще, тем лучше
ФОТО: dizainvfoto.ru
Потолок визуально можно «поднять», выбрав светлые обои, или же расцветку стен «градиент» с тёмным цветом по низу комнаты с переходом в светлый к потолку.
Можно смело брать обои для стен с вертикальным рисунком, экспериментируя с разным форматом полосы.

Комната покажется выше, если она в светлых тонах
ФОТО: dekoriko.ru
Деревянные панели, 3D-панели забирают лишнее пространство, лучше отдать предпочтение фактурным или текстильным обоям, с имитацией дерева, кирпича. Стены можно покрасить или покрыть декоративной штукатуркой.
Потолки лучше оставлять белыми, не обязательно приобретать навесную конструкцию, ведь никто не отменял красоту побелки или простой окраски.

Пол укладывают под стать будущему интерьеру: здесь нет особенных требований, главное, соблюсти тематику стиля
ФОТО: mirdizajna.ru
Двери и окна
Межкомнатные двери не помешают в столь тесном пространстве, если они будут открываться по типу купе. Возможно, не везде нужны двери, кто-то с удовольствием обойдётся кисейной шторкой.
Двойные двери имеют узкие створки, но прежде чем покупать такой вариант, нужно прикинуть, удобно ли будет ходить по квартире, когда двери распахнуты.

Цвет двери может сыграть роль акцентной детали в интерьере
ФОТО: stroy-podskazka.ru
Окна традиционно оформляют в виде пластиковых стеклопакетов, но можно выбрать расцветку «под дерево», что будет выглядеть более благородно.
Как выглядит дизайн разных помещений в хрущёвке без перепланировки
Подходя к вопросу о дизайне двухкомнатной хрущёвки, следует оговориться об общем тематическом замысле для всей квартиры. Помещение менее 50 м² не предполагает резкого деления на стили. Договариваются о таком заранее, решая всей семьёй, каким направлениям можно довериться. Главное, чтобы не было резкой смены стиля — лучше оформить помещения так, чтобы всё жильё казалось единым целом, хоть и с вариациями в разных комнатах.
Интересные идеи для ремонта коридора в хрущёвке
Чтобы любоваться оригинальным дизайном в традиционно узком коридоре хрущёвки, потребуется немало усилий. Небольшое пространство подразумевает не только повышенные требования к выбору отделочных материалов, но и к их компоновке, а также тщательно продуманную систему хранения. Если в квартире проживает семья, а не один человек, то потребуется вместительный шкаф для верхней и сезонной одежды.

Красивый дизайн маленькой прихожей в хрущёвке
ФОТО: trizio.ru

Лаконичный интерьер только приветствуется
ФОТО: tass-sib.ru

Оригинальный дизайн прихожей в хрущёвке на фото
ФОТО: trizio.ru
Очаровательный дизайн зала в хрущёвке
Гостиная может использоваться в качестве зала, а в ночное время суток как ещё одна спальня. В этом случае здесь не устанавливают двуспальную или полутораспальную кровать, а покупают раскладывающийся диван. Телевизор обычно размещается на стене напротив. Есть отличные современные изделия, представленные модульной мебелью: можно целиком обставить гостиную в едином стиле, при этом, получится сразу готовый интерьер.

Превосходный интерьер гостиной в хрущёвке с отличным решением для рабочей зоны
ФОТО: dizainvfoto.ru
Ремонт зала в хрущёвке подкидывает массу задачек, ведь нужно умудриться не испортить внешний облик комнаты при таком небольшом метраже.

Цвет отделки очень важен, только благодаря удачно подобранной палитре, можно решить большую часть проблем с дизайном гостиной
ФОТО: etotdom.com
Дизайн уютной спальни в хрущёвке
Чтобы расслабиться и хорошенько отдохнуть в спальне «хрущёвского дома», там должен быть прекрасно обустроенный интерьер. Даже в небольшой комнатке можно поставить двуспальную кровать, сделав её центральной достопримечательностью.
Совет! Приветствуется глянцевый натяжной потолок, который добавит спальне лоска и пространства.

Если располагать кровать вдоль одной стены, то останется больше свободного места
ФОТО: mirdizajna.ru
Для дизайна спальни в такой квартире хороши однотонные текстильные вещи или материал в мелкий узор. Из осветительных приборов подходят небольшие бра, прикроватные светильники на тумбу и небольшая люстра.

Кровать на подиуме предоставляет больше места для хранения
ФОТО: berkem.ru
Если нужно ещё место для вещей, то идеален шкаф-купе любой формы, настенные полки, стеллажи.
Дизайн маленькой кухни в хрущёвке
Чтобы сделать очаровательную и комфортную кухню в хрущёвке, понадобится найти самый оптимальный вариант планировки.
Кухоньки в таких квартирах не балуют метражом, да и перенести её проблематично. Довольствуются тем, что есть, потому упор делают на мебельном гарнитуре и его размещении.

Следует отказаться от параллельного размещения мебели, выбрав угловой вариант
ФОТО: diz-kitchen.ru

Хорошо бы задействовать подоконник в качестве стола
ФОТО: diz-kitchen.ru
Дизайн ванной (санузла) в хрущёвке
С раздельным санузлом проблем не бывает, каждое маленькое помещение отделывают понравившимися цветами и материалами, а с общим санузлом нужно постараться сделать так, чтобы осталось место для свободного размещения внутри комнатки.

Когда в маленьком пространстве нужно разместить всё компактно
ФОТО: mirdizajna.ru
Компактный дизайн кладовки в хрущёвке с фото вариантов
У кого есть в распоряжении кладовка, тот может считать себя счастливчиком. Посмотрим на фото, как же здорово и удобно оформляют кладовки.
-

- ФОТО: yellowhome.ru
-

- ФОТО: smallflat.ru
-

- ФОТО: bereti.spb.ru
-

- ФОТО: remontonly.ru
Идеи для дизайна балкона
Балкончик оформляют по-разному: здесь показательно, утеплён он или нет. Если нет, то из него можно сделать летнюю резиденцию на манер парижских красивых балконов.

Утеплённый вариант может стать мини-кабинетом или даже спальным уголком
ФОТО: pinterest.com
Проекты дизайна: лучшие идеи для ремонта квартиры в хрущёвке с перепланировкой
Когда хочется кардинальных изменений, а переезда не предвидится, делают перепланировку двухкомнатной хрущёвки. Дело это опасное, оно требует согласования с Жилинспекцией, БТИ. Если всё улажено, проект есть, можно приступать к декорированию помещений.
Как произвести зонирование помещений при сносе всех перегородок
Долгожданная перепланировка двухкомнатной хрущёвки приносит с собой новые вопросы, один из которых заключается в создании правильного зонирования пространства.

Отличная перепланировка кухни в хрущёвке
ФОТО: obustroeno.com
Для зонирования пользуются не только ширмами или гипсокартонными стенками, но и стеклянными перегородками, стеллажами, мебелью.

Получается большое пространство, в отличие от прежних небольших помещений
ФОТО: kursremonta.ru
Дизайн хрущёвки с разделением двух смежных комнат
Когда разделяют две смежные комнаты, то жертвуют жилой площадью. При расположении спальни за залом можно продолжить прихожую, сравняв её по ширине с помещением. Получается, что комната станет меньше, но зато становится возможным размещение отдельного входа в другую спальню.

Этот вариант для «книжки»
ФОТО: comfortoria.ru
А вот с «трамваем» поступают так: нужно снести перегородку между комнатами и разделить коридором. Получится простенок для гардеробной или кладовой.
Идеи дизайна совмещения кухни и зала в хрущёвке с фотопримерами
Чаще всего совмещают именно зал и кухню. Вариант удобный, так как гостиная прекрасно оборудуется как обеденная зона, сюда же можно включить мини-бар.
Реконструируют пространство с помощью сноса стены вполовину и образования там барной стойки. На месте перегородки создают арку, заменяют стену на колонны.

Для любителей создавать простор из комнат маленького размера
ФОТО: roomester.ru

Точка зрения эксперта
Ярослава Галайко
Ведущий дизайнер и руководитель студии Ecologica Interiors
Задать вопрос«Рекомендуется использование монохромных цветов, это зрительно сделает комнату просторнее, а её образ единым».

Вместо двух маленьких помещений – одно большое
ФОТО: obustroeno.com
Совмещение ванной с туалетом
Совместив ванную и туалет, можно получить более комфортное помещение. Современные материалы и креативный подход к дизайну делают совместный санузел удобным и красивым.

Замена ванны на душевую кабину также способствует увеличению свободной площади
ФОТО: vse-postroim-sami.ru

С одной стороны умещается унитаз, с другой – найдётся место для стиральной машинки
ФОТО: dekor.expert
Удачный пример перепланировки хрущёвки на две комнаты с кладовкой
Тёмная кладовая перестанет быть таковой и превратится в удобную гардеробную, если её расширить. Для этого нужно снести перегородку и переместить её на 40 см в соседнее помещение.

Планируя такие перемены, сразу рассчитывают, где будут розетки, как будет использоваться увеличенная площадь, куда нужно будет повесить зеркало
ФОТО: mblx.ru

Можно заказать шкаф-купе с идеальным наполнением под собственные нужды
ФОТО: dizainexpert.ru
Не боимся перемен и ищем подходящие решения для любимой квартиры!
В помощь заинтересовавшимся читателям видео.
Обзор двухкомнатной хрущёвки: видео

Экономьте время: отборные статьи каждую неделю по почте
homemyhome.ru
Перепланировка 2 х комнатной квартиры хрущевки фото, рекомендации
Проблема ограниченного пространства в хрущевках вполне объяснима. Дома строились в то время, когда население городов стремительно увеличивалось, но как организовать быт современному человеку, который живет в квартире с малой площадью и неудобной планировкой? Решить проблему поможет самостоятельная перепланировка 2 х комнатной квартиры хрущевки фото, особенности, достоинства и недостатки которой дальше в материале.
Преимущества и недостатки перепланировки
Особенности планировки мало комфортабельной двух комнатной квартиры в хрущевке довольно ощутимы, а их примеры собраны в небольшой подборке фото. Зачастую это такие негативные моменты, как дискомфорт от неудобного расположения комнат, ограниченность пространства ввиду малой площади комнат. Вот почему владельцы таких квартир стремятся выполнить перепланировку с помощью привлечения наемной бригады строителей. Чтобы сэкономить денежные средства, можно выполнить ремонт своими руками.
Ремонт хрущевки с перепланировкой имеет как преимущества, так и недостатки. Плюсами такого решения являются следующие моменты:
- комнаты становятся более просторными и уютными, а их интерьер — более жилым;
- многие стены в таких домах не являются несущими, поэтому при некотором усердии справиться с их демонтажем можно довольно быстро. Несущие стены не задействуют, а новый дизайн порадует вас сполна;
- новая планировка открывает для владельцев квартир неограниченные возможности. Дизайн помещений может быть разным, что позволяет проявить фантазию, сделать уникальную отделку поверхностей, украсив тем самым интерьер.
Процесс перепланировки имеет такие недостатки:
- сложность ремонта и оформления дизайна, ведь он подразумевает демонтаж и возведение стен и простенков в квартире;
- забирает пространство одной из смежных комнат за счет разделения;
- требует дополнительных капиталовложений на демонтаж стены и дизайн комнат. Однако при выполнении работы своими руками, значение этого недостатка можно несколько приуменьшить;
- более длительный ремонт, повышенная степень загрязнения строительным мусором и пылью после проведения работ.
Согласование работ
Идеи разного рода перепланировок, их дизайн действительно уникальны. Но при выполнении работ часто возникают проблемы: как согласовать ремонт в соответствующих органах городской власти? Необходимо удостовериться, что план ремонтных работ не относится к переустройству. Это понятие предусматривает установку, замену, перенос инженерных коммуникаций, агрегатов санитарно-технических, электрических и так далее. Все эти изменения нужно вносить в техпаспорт жилой квартиры. Если подобных мероприятий не планируется, узаконивать перепланировку не придется. Если же ремонтные работы включают такие операции, их потребуется согласовать и внести в техпаспорт.
Заказать, изготовить необходимые бумаги быстро не удастся, весь процесс может затянуться до 8 месяцев. Сократить это время можно, если напрямую обратиться в жилищный орган. А вот сотрудничество с риэлтерской, строительной компанией будет стоить определенных денежных сумм.
Важно помнить, что не все виды перепланировок требуют согласования. Среди тех изменений, которые не требуют согласования:
- возведение или удаление из легкого материала, к примеру, из гипсокартона;
- перенос межкомнатных перегородок;
- оформление балкона или лоджии пластиковыми панелями.
Но есть ряд процессов, которые невозможно произвести без согласования. К таким работам относятся:
- расширение площади квартиры за счет лестничного пролета;
- удаление несущих конструкций и перемещение инженерных коммуникаций;
- объединение нескольких помещений в одно.
Варианты перепланировок
Квартиры в пятиэтажных домах, именуемых хрущевками, отличаются негативными особенностями, поэтому многие люди стремятся рассмотреть варианты их перепланировки своими руками. Чтобы выбрать один из них, нужно хорошенько разобраться, какая перепланировка хрущевки наиболее актуальна при этом случае, какие проекты, идеи наиболее удачны и не задействуют несущие стены.
Какой бы вид перепланировки ни намечался, в квартире обязательно должны присутствовать три функциональные зоны:
- кухонная;
- для отдыха;
- спальная.
Разделение смежных комнат
Как показывает практика, смежные комнаты в таких домах доставляют много неудобств для проживающих здесь людей. Но выход из такой ситуации есть. Можно разделить две комнаты, несколько уменьшив в одной из них полезную площадь. При этом возможны следующие варианты.
| Характер планировки | Что можно переделать |
| Если комнаты расположены одна за другой | Во многих случаях владельцы неудобных квартир стараются расширить площадь проходной комнаты за счет переноса простенка вглубь меньшей комнаты. Затем в этом уменьшенном помещении они организуют спальню, где в итоге помещается кровать, прикроватная тумбочка и шкаф, как на фото ниже. Но если проявить дизайнерские таланты, и такое маленькое пространство можно сделать очень уютным. Зато, когда ремонт закончен, в гостиной можно собираться огромной семьей |
| Если комнаты расположены одна вдоль другой | Многие просто сносят перегородку между комнатами, заменяя ее колоннами или ширмой. Сложно сказать, что такая переделка предназначена для семьи с детьми. Скорее подобную планировку предпочтут молодожены. А вот глава большой семьи, проводя ремонт, скорее оставит простенок между этими помещениями, заложив дверной проход между ними. Затем потребуется уменьшить площадь обеих комнат за счет переноса меньшей стены вглубь. А на образовавшемся простенке можно установить по одной двери на комнату. Таким образом, коридор в квартире удлинится, но комнаты станут раздельными, как на фото ниже. |
Совмещение зала с кухней
Зал в хрущевке чаще всего соединяют с кухней, скудные квадратные метры которой не позволяют вместить в такое пространство все актуальные здесь предметы техники, мебель и так далее. За счет удаления части межкомнатной стены в квартире появляется больше места. А при правильном зонировании полученного пространства, применении методов визуального расширения пространства можно создать действительно функциональный, удобный и привлекательный интерьер. Возьмите на вооружение идеи опытных декораторов.
Ремонт имеет такие достоинства:
- совмещение зала с кухней позволяет выделить отдельную зону для приготовления пищи, столовой и отдыха, не обремененные лишними стенами. Разграничить описанные зоны можно при помощи отделки стены, пола и потолка, посредством сооружения передвижных этажерок, а также при помощи легких занавесей из ниток и так далее;
- подобный прием позволяет придать квартире максимальную функциональность;
- эстетически совмещение зала и кухни выглядит очень оригинально. Сегодня такой дизайн очень моден.
Оригинально выглядит такое пространство в хрущевке, где зоны гостиной, кухни разделены барной стойкой. Подобный интерьер одновременно функционален и интересен на вид, о чем свидетельствует приведенное ниже фото.
Если к кухне примыкает балкон, его пространство можно использовать для увеличения кухонной площади. Простенок между балконом убирается, кухня расширяется, а на дополнительных полезных метрах площади размещают обеденную зону, как на фото ниже. Только в данном случае понадобится выполнить работы по утеплению балкона, чтобы в зимнее время года находиться на кухне было уютно, а неудобств из-за пониженной температуры воздуха не возникало.
Совмещение ванной с туалетом
Каждый сам решает, какая перепланировка двухкомнатной хрущевки будет для него наиболее комфортна, уютна, но и к мнению специалистов лучше прислушиваться. Пространство ванной также можно увеличить за счет его соединения с туалетом, как на фото ниже. Это удобно, практично, к тому же выглядит весьма оригинально.
За счет этого дизайнерского шага можно сэкономить несколько квадратных метров площади, куда поместится стиральная машинка или корзина для белья. При этом сохранятся несущие стены, а это такое достоинство перепланировки, важность которого сложно переоценить владельцам неудобной квартиры в хрущевке.
Однако не стоит думать, что подобные идеи позволяют разместить в ванной в хрущевке огромную ванну. Ванну лучше заменить душевой кабинкой, тогда пространство будет функциональным, привлекательным одновременно. К тому же, иные недостатки у подобного решения также имеются. Как и любая перепланировка жилого помещения, совмещение двух комнат тянет за собой более высокие материальные затраты на ремонт с перепланировкой.
Зонирование пространства
Что еще поможет сэкономить пространство в хрущевке и сделать его более уютным? Идеи опытных дизайнеров, удачный дизайн. После перепланировки и перенесения стены, можно применить дизайнерские методы для создания функционального интерьера в подобных жилых помещениях. Одним из путей достичь комфорта является правильное зонирование пространства при помощи мебели, отделки, декора.
В первую очередь нужно тщательно подобрать мебель для хрущевки, которые вписались бы в общий дизайн. Лучше предпочесть встроенные модели шкафчиков, шкаф купе, диван кровать. Такие предметы одновременно высоко функциональны, не занимают много места, привлекательны по своей эстетике и украшают интерьер.
Необходимо подумать над отделочными материалами, которые планируется применить. С их помощью можно отделять одну зону от другой, делать акцент на достоинстве помещения, прятать его недостатки, изменять дизайн.
Правила, которые нельзя нарушать
Задумавшись о перепланировке квартиры, важно помнить, что существуют определенные правила, которые не следует нарушать:
- ванная и санузел расширяются только за счет кладовки или коридора, но не за счет кухни или жилого помещения;
- нельзя трогать несущие стены, единственно, что допустимо, это обустройство в таких стенах дверного проема;
- нельзя перемещать кухню в ванну, санузел или жилую комнату;
- при объединении комнаты с газифицированной кухней должна быть предусмотрена хотя бы легкая перегородка или другой вид разделения пространства двушки.
www.sedmoycanal.com
Дизайн 2 комнатной хрущевки — фото интерьера
Ремонт небольших комнат в 2 комнатной хрущевке с одним окном и неудобно расположенной дверью – настоящее испытание для фантазии. Тем не менее даже комната в хрущевке может стать весьма уютной. Главный враг маленьких комнат – беспорядок и нагромождение. Никакого творческого хаоса, минимум декора, мебели, колорита.
Правила выбора цветовой гаммы
Часто можно услышать, что в скромных помещениях от темных цветовых акцентов лучше отказаться, но это утверждение несколько преувеличено. Преобладать действительно должны светлые оттенки, но если вся обстановка будет выполнена в пастельных тонах, она станет единым блеклым пятном неуютным, неинтересным, без характера. Общая палитра (цвет стен, пола, мебели, текстиль) должны дополнять друг друга.
Схема планировки 2х комнатной хрущевки с проходной комнатой
Дизайнеры советуют подобрать три цвета: один будет основной, второй – дополнительный, а третий станет связующим звеном между первыми двумя. Он должен играть вспомогательную роль, можно выбрать более яркий, акцентный.
Дизайн гостиной в 2 комнатной хрущевке 42 м2Популярные цветовые решения
Выбор цвета, безусловно, дело личных предпочтений. Также важно учесть, что окружающая обстановка влияет на эмоциональное и психологическое состояние человека даже если этого не заметно на первый взгляд.
Стандартная планировка гостиной в панельном доме
Варианты отделки потолка
Самых популярных вариантов отделки можно выделить три. Все они подходят для невысоких потолков спален.
Отделка пола
Чем будет застелен пол зависит от предпочтений и материальных возможностей домовладельцев. Напольное покрытие лучше выбрать не слишком светлое. Ламинат или паркетную доску желательно укладывать по диагонали или поперек узкой стены. Тоже самое правило касается линолеума. Лучше подобрать неоднородный рисунок. Возможно, это будут ромбы или имитация мелкого паркета. Ковролин многие хозяйки обходят стороной из-за непрактичности, но именно этот вариант сделает обстановку более теплой.
Идея современного интерьера в стандартной хрущевке
Отделка стен
Основным вариантом отделки спальни остаются обои. Благо на смену бумажным тонким «газеткам» пришли более современные: виниловые, текстильные, флизилиновые покрытия, обладающие прекрасными эстетическими и практическими качествами. Обои линкруст, которые нынче возвращаются в моду, лучше не использовать.
Альтернативный вариант – жидкие обои. Они отличаются оригинальной текстурой, позволяют создавать бесшовную «мягкую» поверхность, а также интересные крупные рисунки.
На фото гостиная объединенная с залом в двушке
Интересным решением станет последнее слово дизайна – люминесцентные обои. В темное время суток на них проступает световой рисунок, который постепенно блекнет к утру. Днем покрытие выглядит вполне обычно.
Окрашивание стен самый бюджетный, простой вариант отделки со своими плюсами. Он позволяет подобрать абсолютно любой оттенок внутреннего интерьера. Отлично подходят матовые краски. Нередко их украшают виниловыми наклейками, создавая определенную атмосферу.
Зал объединенный с кухней
Выбор мебели
Говорить о том, чтобы выбрать обстановку комнаты по всем своим требованиям не приходится. Удобно разместить здесь самое необходимое уже удача.
Несколько советов:
- Кровать лучше подбирайте с выдвижными ящиками. Такие модели стоят дороже, но лишнего места, чтобы хранить спальные принадлежности не бывает. Тем более, что громоздкий комод поставить, скорее всего, не получится.
- Изголовье кровати в виде панели-полки позволит удобно разместить подручные вещи и отказаться от прикроватных тумбочек.
- Ценителям неординарных решений, возможно придется по душе идея установки кровати у окна, когда ложе будет занимать все расстояние от стенки к стенке.
- Иногда уместной станет установка угловой двуспальной кровати.
Спальня с отделкой обоями и потолком под дерево
Совет! Кровать – это единственная вещь, на которой нельзя экономить. Она должна быть удобной, даже если размер заставляет пожертвовать чем-то другим.
- Все предметы обстановки должны отвечать одному стилю, цвету, временной эпохе.
- Шкаф-купе с высокими зеркальными дверцами визуально сделает пространство больше.
- Если планируется установка телевизора, стоит подумать о тонких ТВ-панелях, которые вешаются на стену.
Планировка
Нередко дизайн двухкомнатной квартиры предполагает перепланировку, снос простенков, объединение. Некоторые планы позволяют увеличить спальню за счет кладовой, если хозяйка не против, но чаще глобальная перестройка сводится к переносу дверного проема.
Спальня с одним окном
Расстановка мебели
Любое хорошо спланированное дело можно считать наполовину выполненным, поэтому прежде всего необходимо расставить мебель. Для этого можно использовать специальные компьютерные программы, которые легко освоить даже новичку или же воспользоваться старым проверенным методом: начертить на листе бумаги комнату в масштабе, вырезать предметы мебели из картона, попробовать каждому найти свое место.
Спальня с вместительным шкафом и антресолью над дверью
Расстановку мебели начинают с кровати. Только определив ее местоположение переходят к следующим предметам. В узкой маленькой комнате ее устанавливают поперек, ближе к одной из узких стен, или вдоль длинной стены. Другие варианты непрактичны. Понятно, что для двуспальной кровати желательно обеспечить двухсторонний подход.
Проект ванной комнаты
Шкаф должен занимать самый темный угол. Туалетный столик ставят вдоль стены перпендикулярно окну. Альтернативой может послужить зеркало с навесной полочкой, под которую прячется узкий пуф.
Дизайнеры рекомендуют расставлять гарнитур таким образом, чтобы между объектами было хотя бы 70 см свободного пространства. Под это правило не попадают только пуфы, прикроватные тумбочки, которые пододвигаются вплотную.
Оригинальная подсветка шкафа
Освещение
Естественное освещение, как бы это ни было парадоксально, играет второстепенную роль. Главный вопрос – как грамотно организовать искусственное.
Освещение разноуровневое. Желательно устанавливать выключатели с регулятором мощности. Стоит отказаться от громоздких абажуров под потолком, торшеров, занимающих полезную площадь, множества точечных светильников. Такая иллюминация бессмысленна, она не заменит грамотного локального освещения, кроме этого лампы дневного света формируют неприятно холодную атмосферу.
Совет! Мягкий рассеянный свет, заполняющий все помещение создаст необходимый визуальный объем и уют.
На площади около 10 кв метров будет вполне достаточно одной плоской люстры, у кровати располагают одну-две бра, еще один осветительный прибор на потолке или стене располагают возле шкафа или туалетного столика. Бра у кровати можно заменить на небольшие высокие настольные лампы. Любители неординарных решений могут подобрать небольшие плафоны, опущенные над тумбами с самого потолка.
Кухня с барной стойкой
Убранство и аксессуары
Окно в спальне хрущевки обычно небольшое. Здесь будут более уместны занавески из однотонной ткани, если окно находится на короткой стене – горизонтальная полоса будет кстати. Отказаться стоит от громоздких портьер, балдахинов. На картинках интерьеры выглядят уютно, на практике делают обстановку тяжелой и пыльной. Что касается способа крепления, лучше отдать предпочтение традиционным карнизам. Оригинальным решением может стать полка над окном. Она визуально поднимет стены, подарит немного места для сбора различных безделушек.
Рабочее место на балконе соединенным с гостиной
Если отказаться от радиатора под оконным проемом, пространство вокруг можно интересно обыграть, к примеру, превратить в мини кабинет или библиотеку. Для этого вокруг устанавливают не глубокий встроенный шкаф, подоконник переделывают под столешницу или непосредственно под окном сооружают небольшую лавку с подушками.
Декора, как уже было сказано, минимум. Открытые полки, лучше оставлять полупустыми, это сделает обстановку более легкой. Очень популярным стало хаотичное развешивание множества фото разного размера, в данном случае лучше заменить их одной большой картиной или подобрать модульную.
В заключение хочется отметить, что дизайн двухкомнатной квартиры в хрущевке – задача не самая простая даже для профессионалов. Тем, кто обходится своими силами, отличными помощниками станут различные компьютерные программы, в которых можно создать практически точную картинку будущего интерьера. А вот цвета, как правило, весьма искаженные, поэтому палитру лучше присматривать на фото в интернете.
Компактная ванная комната
Читайте также: Дизайн квартиры 70 кв. м: советы и идеи
thewalls.ru
Дизайн двухкомнатной «хрущевки» — интересные идеи (124 фото): 2-х комнатные квартиры 44 м2 и 43 кв. м, кухня и зал, идеи оформления для комнаты

Ремонт «хрущевки» – настоящее испытание, особенно если из старой квартиры неудачной планировки хочется сделать современную и удобную. Главный враг старых квартир – узкий коридор, маленькая кухня, неудачное расположение дверей, проходные комнаты и, конечно, небольшая квадратура. Но на сегодняшний день можно реализовать даже самый смелый и необычный проект, и для этого совсем не обязательно быть профессиональным дизайнером. Достаточно проанализировать особенности квартиры, изучить ранее реализованные проекты и составить дизайн-проект.
Особенности
Построенные в середине прошлого столетия дома до сих пор остаются единственным жильем для миллионов семей. И на сегодняшний день кирпичные и крупнопанельные дома до пяти этажей считаются наихудшим архитектурным решением. Зачастую самым простым способом усовершенствовать удручающую планировку квартиры является снос межкомнатных перегородок. При некоторых планировках возможно объединить кухню и комнаты, прихожую и комнату, ванну и туалет. Это позволит расширить площадь квартиры, добавить несколько необходимых метров. Также в некоторых квартирах есть кладовая, которую можно объединить с жилой комнатой.
Размеры коридора обычно наводят тоску. Узкая и темная прихожая в редких случаях может вместить шкаф-купе, поэтому необходимо делать акцент на функциональности, по возможности избавиться от не несущих стен. Если санузел изначально раздельный, его стоит объединить. Тогда можно будет выделить место для стиральной машины и большой угловой ванны. Чтобы сэкономить пространство, можно отказаться от раковины или от ванны в пользу душевой кабины. Любая перестройка стен должна быть согласована со специалистом, независимо от того, в каком доме она проводится: крупнопанельном или кирпичном.
Особенности квартиры не дают возможности перенести кухню в другое место, но зато можно вынести обеденную зону в гостиную. Для этого можно снести перегородку между кухней и комнатой или сделать арочный проем. Такой широкий проход визуально разделит пространство и создаст эффект увеличения площади. Вместо большого вместительного стола можно оставить место на кухне для барной стойки, за которой могут комфортно разместиться до 4 человек.
Размеры
На маленькой площади очень хочется обустроить красивую и комфортную для жизни квартиру. Современные дизайнерские идеи позволяют создать уютный интерьер, поэтому дизайн-проекты для квартир до 43 кв. м по-прежнему пользуется популярностью. Все типовые двухкомнатные «хрущевки» имеют схожую планировку и площадь:
- Общая площадь составляет 41-48 квадратных метров.
- Квартиры площадью до 41 кв. м имеют смежные комнаты.
- Высота потолка – 2,5-2,6 м. В некоторых сериях домов потолки достигают 2,7 м.
- Площадь кухни варьируется от 4,9 до 8 м2.
Планировка квартиры в 42 кв. м называется в народе «книжка». Она считается наиболее неудачной, потому что имеет небольшие комнаты, одна из которых проходная. Квартира площадью 44 кв. м имеет уже раздельные комнаты, но небольшая кухня доставляет определенные неудобства и требует кардинальных решений. В квартире метражом в 45 кв. м комнаты расположены симметрично, поэтому они получили в народе названия «распашонка» или «бабочка».
Комнаты
Вариантов обустройства двухкомнатной «хрущевки», на самом деле, не так уж много, но делать квартиру с неудачной планировкой и низкими потолками комфортной и удобной вполне реально. Для этого, в первую очередь, необходимо понять, какой вид ремонта стоит провести: капитальный с заменой всех инженерных и коммуникационных сетей и сносом перегородок или простой косметический ремонт без перепланировки.
Существует три распространенные планировки двухкомнатной «хрущевки»: «книжка», «трамвай» и «полуторка» с улучшенной планировкой. Самое маленькое помещение в любой квартире – это прихожая. Расширить ее площадь можно только за счет увеличения дверного проема. Так будет поступать больше естественного света, и прихожая визуально расширится. Если же прихожая длинная, но узкая, ее можно поделить на две части. Первая будет стандартной прихожей возле входной двери, а вторая станет переходом в комнату.
Пожалуй, самый интересный вариант можно получить только путем полной трансформации квартиры, при этом важно использовать эффективно каждый квадратный метр. Для этого можно снести межкомнатные перегородки и обустроить квартиру по типу «студии», сделав акцент на свободе и просторе. Такой способ увеличит жилую площадь и расширит пространство. Также можно отказаться от узкого проходного коридора и расширить санузел. Перед началом работ необходимо составить план будущей квартиры и согласовать перепланировку. Самые распространенные варианты объединения зон:
- зал-кухня-столовая. Для объединения трех зон в одном помещении необходимо снести перегородки или оборудовать арочный дверной проем. На линии разделения комнаты и кухни или в комнате располагается обеденная зона с мягким диваном или барная стойка с высокими стульями.
- Спальня-гостиная. Распространенный вариант обустройства квартиры, если в семье есть ребенок, и одна комната отводится для детской. При таком способе зонирования необязательно сносить межкомнатные перегородки, можно использовать разные способы зонирования помещения.

- Кабинет-гостиная. Самый оптимальный способ отделить рабочую зону – приподнять ее на подиум. Также можно использовать мобильные перегородки или стеллаж с открытыми полками. Однако следует помнить, что громоздкие перегородки способны визуально уменьшить пространство.
- Кабинет-спальня. В таком случае, рабочий стол можно расположить поближе к окну, использовать гипсокартонную стену или стеллаж. Также при помощи освещения можно поделить комнату на две независимые функциональные зоны.

Зонирование
Главный враг маленьких квартир – хаос, беспорядок и нагромождение. При составлении плана «двушки» важно учитывать несколько основных моментов:
- у каждого члена семьи должна быть личная зона, и размер этой зоны, как правило, не играет особой роли.
- Ну кухне обязательно должна быть выделена вместительная и функциональная рабочая зона с плитой, посудомоечной машиной и раковиной. Если используется газовая плита, то объединять кухню с комнатой нельзя, но можно расширить дверной проем, использовать раздвижные двери. И в тоже время, категорически запрещается менять положение газовой плиты и закрывать доступ к ней.
- Вторая комната может выделена под спальню или детскую комнату. В ней можно разместить большую систему хранения, кровать, туалетный столик или рабочий стол.
- Если в комнате будет жить ребенок, то можно поставить кровать, рабочий стол и шкаф, при этом останется свободное пространство для игр. Если в комнате будут жить двое детей, то лучше выбрать функциональную трансформирующуюся мебель или двухъярусную кровать. Место у окна можно оборудовать под рабочий стол, чтобы для каждого ребенка была отдельная зона для учебы.
Способов зонировать пространство много. Самые распространенные и востребованные:
- использование разных способов отделки стен;
- дополнительные фальшстены из гипсокартона;
- мобильные перегородки и ширмы;
- шторы, занавески и шторы-нити;
- предметы мебели, шкафы, диваны;
- разные уровни пола и потолка.
Еще одна хитрость зонирования «хрущевки» – это большое светлое пространство. Если снести стены возможности нет, то можно отказаться от привычных дверей в пользу раздвижных. При помощи таких «номинальных» дверей можно создать единое пространство или скрыть от посторонних глаз отдельную зону.
Отделка
Мнение о том, что в интерьере небольших квартирах необходимо использовать исключительно светлые цвета, несколько преувеличено, ведь пастельные тона могут превратить квартиру в больничную палату. На самом деле, можно сочетать яркие и насыщенные оттенки, просто делать это надо аккуратно и умеренно. Выбор цвета – безусловно, индивидуальное решение, но стоит помнить, что оттенки оказывают особое влияние на настроение человека:
- бежевый, светло-серый, кремовый, бледно-желтый и другие пастельные оттенки являются самыми популярными во всех современных стилях. Разнообразить такой интерьер можно при помощи черного, коричневого или любых ярких цветов.
- Вся палитра зеленого отлично сочетается с белым и коричневым, отлично подходит для эко стиля и при этом создает особое расслабленное настроение.
- Яркие и насыщенные цвета можно использовать в интерьере квартиры даже при оформлении стен, но важно разбавлять краски светлыми оттенками, которые могут присутствовать в мебели, занавесках и текстиле.
- Синий и голубой в интерьере отлично сочетаются с белым и серым. Также можно добавить солнечных красок, разбавив холодные оттенки желтым или зеленым.
Важно уметь сочетать цвета и оттенки, не бояться смелых решений и объединить отделку пола, стен и потолка в одном направлении. Тогда даже старая 2-х комнатная квартира может стать уютным и современным жильем.
Полы
Варианты отделки пола зависят от предпочтений и финансового состояния владельца квартиры. Можно выбрать стандартный линолеум, ламинат, плитку или ковровое покрытие, но все же любое покрытие лучше делать в светлых тонах или в максимально приближенной к ним цветовой палитре. Это могут быть серые, бежевые, белые оттенки или рисунки, имитирующие натуральное светлое дерево.
Ламинат и паркетную доску лучше укладывать вдоль длинной стены. Проблема двухкомнатных «хрущевок» состоит в том, что могут возникнуть трудности при ремонте пола и сохранении единого рисунка, потому что комнаты могут находиться по разным сторонам здания, иметь разную форму. Поэтому лучше выбрать доски с неоднородным рисунком, который нет необходимости подбирать. Ковролин редко используется во всей квартире из-за своей непрактичности, но это отличный способ утеплить холодную комнату.
Потолки
Самый простой способ отделки потолка в малогабаритной квартире – использовать натяжной вариант. Он скроет все изъяны, неровности и трещины. Также можно использовать многоуровневые потолки с дополнительным светодиодным освещением. Дополнительное освещение по периметру потолка визуально увеличит длину комнаты.
Цвет потолка обязательно должен быть приближен к белому. Темные оттенки психологически будут давить, визуально уменьшат высоту потолка. Также отлично смотрится многоуровневый потолок с точечными встроенными светильниками. Яркое освещение и сложные конструкции визуально «приподнимут» потолок и расширят пространство.
Стены
Самый распространенный способ отделки квартиры – выравнивание стен при помощи шпаклевки и оклеивания обоями. Несмотря на кажущуюся простоту работы, на самом деле, процесс очень затруднительный, потому что стены «хрущевки» не считаются ровными, а поклеить обои встык при этом получится не всегда. Местами разница между полотнами может достигать 2 см, поэтому потратить время и силы на идеальное выравнивание стен все же стоит. Существует несколько способов отделки стен:
- обои остаются самым распространенным вариантом. Можно использовать дорогие полотна с шелкографией. Лучше отдавать предпочтение обоям с вертикальными небольшими узорами и рисунками. Они помогут достичь эффекта высокого потолка.
- Отлично в небольшом помещении смотрятся фотообои с перспективой: городские пейзажи или природный ландшафт украсят любую комнату и создадут иллюзию присутствия.
- Отличная альтернатива – жидкие обои. Они легко наносятся и скрывают все изъяны неровных стен. Текстура позволяет создавать бесшовную поверхность, разнообразить интерьер необычными узорами.
Мебель
Разместить всю необходимую мебель в «хрущевке» – уже удача, но если вы хотите создать уникальный современный интерьер, то нужно выбирать стильную и компактную мебель. Все габаритные предметы (шкаф, диван, комод) стоит убрать в самый темный угол подальше от окна. Использовать лучше раскладные столы, раздвижные диваны, многофункциональные комоды. В качестве системы хранения стоит выбирать встроенную мебель с глянцевыми, светлыми или стеклянными дверцами, поскольку темные цвета сделают мебель более громоздкой и тяжелой. Мягкая мебель может быть яркого и насыщенного цвета.
Кровать в спальню лучше выбрать с внутренними ящиками для хранения вещей и текстиля. Как будет осуществляться доступ – каждый решает сам. Существует два варианта: выдвижные ящики или подъем спального места. Каждый из них имеет плюсы и минусы. В выдвижных ящиках помещается меньше вещей, но доступ к ним облегчен, возможен в любое время. С подъемным механизмом дела обстоят абсолютно противоположно: места для хранения в разы больше, но доступ к ним может быть ограничен, если в это время на кровати спит человек. Цены на обе модели отличаются.
Также лучше выбирать кровати с мягким изголовьем, они значительно облегчат быт, сделают отдых более комфортным и расслабляющим. Не стоит экономить на покупке кровати. Она должна быть большой и удобной. Даже если придется пожертвовать прикроватными тумбочками, все же стоит выбирать самую большую модель, которую может вместить спальня.
Декор
В маленькой квартире должно быть минимум декора. Открытые полки стеллажа лучше оставлять полупустыми, так как это создаст более легкую атмосферу. Не стоит использовать большое количество мелкого декора. Он будет дробить помещение на части и создавать ощущение захламленности и бардака.
Все же при ремонте двухкомнатной «хрущевки» стоит отдавать предпочтение простым формам, многоуровневому освещению, делать акцент на пространстве, потому что смелые дизайнерские идеи не всегда требуют большого количества декоративных элементов в интерьере. Главный акцент в гостиной лучше сделать на мягкой мебели и текстиле. Из-за дефицита декоративных элементов обивка мебели, напольное покрытие и занавески станут главной составляющей квартиры, поэтому подходите более тщательно к выбору ковра, дивана, штор и других деталей, таких как картины, лампы и вазы.
Стили
Обе комнаты и кухня должны отвечать одному стилю, выдерживаться в одной цветовой гамме и соответствовать временной эпохе. Сочетание разных стилей в маленькой «хрущевке» будет смотреться неуместно и даже нелепо. Ценителям свободы и открытого пространства стоит обратить внимание на современные стили оформления квартиры, они идеально подходят для квартир-студий. При этом акцент ставится на функциональности и свободе пространства.
- Для небольшой квартиры самый подходящий стиль – минимализм. Светлые оттенки, легкие занавески и минимум декора – все это создает эффект расширения пространства и позитивно влияет на состояние человека.
- Скандинавский стиль сочетает в себе особенности минимализма и игру цветов. В данном стиле также преобладают светлые оттенки в интерьере, но допускается дополнительный декор в виде картин, декоративных предметов и цветов. При этом главный акцент делается на функциональности и комфорте.
- Высокотехнологичный хай-тек отлично подойдет для современных и активных молодых людей. По сути, в интерьере воплощается эра высоких технологий. К тому же, такой стиль отлично подойдет и для оформления комнаты подростка. Предпочтение отдается светлым оттенкам и металлическому глянцевому блеску. Исключены объемные люстры и необычные декоративные элементы, но допускается использование картин, постеров и фотографий в тонких металлических рамках. Освещение должно быть хорошо продумано, предпочтение отдается простым геометрическим формам светильников.
- Стиль прованс пришел к нам из южной провинции Франции. Отличительные особенности – флористические мотивы, пастельные и природные оттенки: бежевый, бирюза, оливковый, голубой, зеленый, розовый, лавандовый, желтый и подобные, при этом интерьер не должен быть ярким и насыщенным. Основной светлый цвет разбавляется естественной природной палитрой. Мебель может быть состаренной, с облупленной краской или сколами на дереве. Дополнить интерьер можно уникальными предметами: сундуком или старым комодом. Шторы и занавески должны быть легкими и полупрозрачными, допускается средняя длина до подоконника. В качестве декора приветствуется большое количество рюшей, кружева, скатертей и керамических статуэток.
- В маленькой тесной «хрущевке» можно использовать разные стили, но ни в коем случае нельзя оформлять интерьер в шикарно и праздно украшенном барокко.
Независимо от того, какой стиль интерьера вы выберете, главное, чтобы пространство было эстетичным, функциональным и практичным.
Советы профессионалов
Дизайнеры советуют сочетать в интерьере не более трех цветов. Один из них обязательно должен быть нейтральным и спокойным, а что касается остальных, то они могут быть смелыми и насыщенными, главное – не слишком кричащими, не перегружающими комнату. Дополнительные цвета уместно использовать в качестве акцентов. Это могут быть яркие картины, текстиль, шторы, обивка мебели или необычная авторская ваза. Главное, чтобы второй цвет был дополнительным, а третий – связующим звеном между первыми двумя.
Определитесь заранее, где будет установлен телевизор. Лучше выбирать плоский экран, и устанавливать его на стену при помощи поворотного кронштейна. Следует сразу позаботиться о том, чтобы провода были спрятаны.
Окно в «хрущевке» обычно имеет небольшие размеры, поэтому лучшим вариантов штор будут легкие полупрозрачные занавески. Таким образом, комната будет наполняться дневным светом и воздухом. Стоит отказаться от плотных портьер и штор с ламбрекенами, поскольку они могут смотреться гармонично при составлении дизайн-проекта, но на практике сделают обстановку тяжелой, сжатой и пыльной.
Удачный дизайн «хрущевки» не может обойтись без качественного освещения. Главное, чтобы в квартире не оставалось темных углов. В зависимости от стиля в качестве основного потолочного освещения лучше выбирать встроенные светильники по всему периметру потолка, можно сочетать их с потолочной люстрой. Для индивидуального освещения стоит использовать локальные светильники на полу и стенах. Это могут быть всевозможные торшеры, бра и настольные лампы. Грамотно продуманное освещение поможет расставить акценты в квартире, выделить важные зоны и скрыть недостатки.
Варианты в интерьере
Большое зеркало в красивой раме способно преобразить интерьер «хрущевки» до неузнаваемости.
Для зонирования небольшой комнаты отлично подходят шторы-нити. Данный вариант относится к эконом-классу. Они отлично пропускают воздух и свет, занимают немного места, и в любой момент их можно убрать, сделав помещение еще больше.

Выигрышно смотрится интерьер комнаты, когда цвета мебели, стен и занавесок совпадают.
При работе над обустройством кухни не стоит бояться смелых решений. Гарнитур с округлой формой сочетает в себе удобство, функциональность и стиль. При этом он располагается на площади 8 квадратных метров.
Сочетание бежевого, коричневого и насыщенного синего смотрится гармонично и привлекательной в интерьере кухни-гостиной.
Неплохой способ – расширить площадь кухни за счет прихожей.
Захватывающие фотообои смотрятся невероятно даже в маленькой комнате, создавая потрясающий эффект присутствия.
О том, как сделать перепланировку двухкомнатной «хрущевки», увидите в следующем видео.
dekoriko.ru



