Детский домик из фанеры своими руками чертежи: Детский домик для дачи своими руками: фото, чертежи, пошаговая инструкция
Детский игровой деревянный домик своими руками
Все свое свободное время дети проводят на улице. Свежий воздух придает им силы, здоровье, радостные и положительные эмоции. Чтобы ребенок проводил как можно больше времени на воздухе, необходимо смастерить для него детский деревянный домик. Он обязательно станет излюбленным местом, в котором ребенок может спрятаться и оборудовать собственный мир.
Совместное строительство строения позволит провести время со своим ребенком весело и задорно. Любому мальчику или девочке это занятие доставит море положительных и незабываемых впечатлений.
На сегодняшний день в магазинах представлен широкий выбор летних домиков для детей, но не каждый человек может позволить его покупку. Создание конструкции своими руками по индивидуальному эскизу, который придумал ребенок, будет лучшим решением.
Важно: прежде чем начать строительство сооружения, следует учесть все пожелания собственного ребенка.
Оформить избу необходимо в яркие оттенки.
На сооружении можно нарисовать любимых персонажей из сказок и мультфильмов. К этому процессу следует приобщить и ребенка, с помощью которого он может проявить свои таланты и способности. Домик, который сделан руками ребенка, станет для него особенно ценным.
Какой домик из дерева можно построить для ребенка
Детский домик изготавливается из различных материалов, которые доступны каждому человеку. Если после строительства дома остались строительные материалы, то можно, вообще, ничего не покупать. Изготовить детские деревянные домики можно из ДСП, ДВП, брусьев, фанеры и любых других материалов из дерева.
Игровой домик для ребенка из фанеры
Перед тем как начать строительство, нужно создать рисунок, макет или эскиз. Это позволит оценить строение, определить, где расположить дверь и окна. Располагать его желательно так, чтобы его было видно родителям, поэтому ребенок всегда будет на виду.
Самые лучшие места, в которых ребенку можно уединиться и помечтать – это деревянные детские домики, фото которых представлены здесь.
Чтобы создать летнюю хижину из фанеры, потребуется 2-3 листа материала. Количество используемой фанеры зависит от габаритов и величины сооружения. Материал можно использовать любой толщины. В магазине он продается толщиной 8-12 мм. Окна должны быть расположены в 60 см от пола, а дверной проем – на 30 см выше роста детей. Но не стоит забывать о габарите двери, так как взрослый человек, в случае необходимости, должен попасть в него беспрепятственно.
Строение должно быть большим, чтобы в нем было просторно и вместительно. Крыша устанавливается под 45-градусным углом. Листы фанеры сбиваются гвоздями между собой, затем вырезаются оконные и дверные проемы. Верхушка изготавливается из того же материала, что и стены. Когда конструкция возведена, необходимо ее отшлифовать наждачной бумагой или специальной шлифовальной машиной. Это позволит избежать заноз и повреждений кожи.
Следующим этапом является декорирование и установка мебели.
Внимание: покраска конструкции должна осуществляться безопасными для ребенка эмалями и лаками.
Оформлять избушку желательно по пожеланию ребенка. Цвета нужно выбирать яркие, красочные, насыщенные. Для девочки конструкцию можно покрасить в ярко-розовый цвет, как на представленном фото.
Детский домик для ребенка из деревянных досок
Строение из деревянных досок практически не подвергается износу. Поэтому в построенной хижине будут играть несколько поколений детей. Сначала в нем будет хозяйничать сын или дочь, а через некоторое время – внук или внучка. Для большой семьи важно построить большую времянку, чтобы в него вмешались все ребята. Видео-инструкцию строительства конструкции из досок можно посмотреть ниже.
Чтобы соорудить каркас строения, понадобятся брусья с сечением в 5 см.
Детский конструктор – деревянный домик получится крепким и долговечным, если обработать его поверхности палубным лаком. Для окон и дверей делаются специальные вставки, которые размещают в вертикальном положении. Сооруженный каркас для усиления прочности оббивается более тонкими деревянными дощечками, толщина которых должна составлять более 2 см.
Крышная конструкция изготавливается из бруса того же сечения. Установить ее следует на уже готовые стены. На крышу набивают тонкие доски от 2 см.
Предупреждение: чтобы крыша не протекала, кровлю необходимо укрепить гидроизоляцией.
Поверх гидроизоляционного материала можно установить пластиковый колпак. После окончания строительства, сооружение окрашивается в заранее выбранной гамме цветов и покрывается палубным лаком. На фото представлено детское сооружение для мальчиков.
Избушка на ножках для ребенка
Очутиться в сказочной стране поможет интересный домик – избушка на ножках. Сказочный домик может быть различных размеров, формы, цвета.
На фотографии представлен один из интересных, креативных дизайнов детского домика для игр.
Чтобы построить избушку, ножки могут быть выполнены из деревянных брусков, металлических труб, камней, а также можно использовать другие декоративные материалы.
Важно: Домик предназначен, в первую очередь, для детей, поэтому не нужно делать ножки слишком высокими.
Высота ножек не должна превышать 70 см. При этом необходимо установить небольшую лестницу или несколько ступенек. Если ножки создаются из труб, то следует столбы вкопать в землю 1/3 трубы. Основание ножек нужно зафиксировать. Например, залить бетоном.
На верхнюю часть каждой трубы забивается брус дерева, к которому прикрепляется основание избы. Фундамент можно изготовить из дощечек с сечение примерно 4 см. Затем сооружается конструкция из досок. Полученный каркас обшивается тонкими досками, после чего возводится крыша. Кровля изготавливается из тех же материалов, что и все строение.
Вход в избушку на ножках оснащается удобной лестницей с перилами.
Перила должны быть высотой приблизительно от 50 до 70 см. Их высота определяется возрастом и ростом ребенка. Ступеньки должны быть не менее 20 см, чтобы было удобно подниматься по ним, а ноги полностью в них помещались.
Детский деревянный домик для дачи можно дополнить оригинальной песочницей, турниками для физических упражнений, игровым комплексом из игровых и спортивных снарядов. Все элементы необходимо покрасить в яркую цветовую гамму. Рядом можно разбить цветник или клумбу. Ребенок будет ухаживать за ней, и развивать свои таланты и способности.
Кукольный домик для ребенка
Мечта любого ребенка – это красивый, вместительный домик для его игрушек и кукол. Маленькие дети очень любят играть с игрушками, разбрасывая их в каждом углу. Кукольный домик, сделанный своими руками, решает эту проблему раз и навсегда.
Огромный домик для кукол величиной со шкаф может соорудить любой родитель. Для этого нужно проявить немного фантазии и умения. Детский деревянный кукольный домик можно изготовить из ДСП или любых других аналогичных материалов.
Для создания строения потребуется электролобзик, клей, листы ДСП. Построить его может каждый человек, так как конструкция настолько легка, что с ней справится даже сам ребенок.
Важно: кукольный домик из дерева необходимо мастерить из безопасных для ребенка материалов.
Короб собирается очень просто. На стенах можно вырезать небольшие окошки и застеклить их тонким прозрачным стеклом, плотной, разноцветной пленкой или использовать пластиковые бутылки. С помощью карманного фонарика можно электрифицировать конструкцию. Декорировать домик для кукол можно рисунками, тонкими дощечками, наклейками, шнурками, лентами. Для того чтобы сделать уникальный домик, нужно всего лишь проявить фантазию.
Кукольный домик своими руками
Перед тем как начать сооружение, необходимо начертить план или эскиз будущего строения, а также продумать, где будут располагаться окна, двери и лестница. Необходимо учитывать мельчайшие детали и пожелания собственного ребенка.
Чтобы создать многоэтажный шкаф для игрушек и кукол, то без подробного чертежа не обойтись.
Проще переделать чертеж, в случае возникновения изменений, чем разбирать построенную конструкцию.
Важно: Размер домика должен соответствовать росту кукол и габаритам игрушечной мебели.
В домике обязательно должны быть окна, дверные проемы, лестница, ванная комната, свет. Оснащая проводкой домик, необходимо продумать изоляцию всех кабелей, чтобы они не представляли опасность.
Предупреждение: Нельзя использовать лампы, которые нагреваются.
Если электроустановочные работы представляют сложность, то можно обойтись и без освещения. Деревянные детские домики для кукол оформляются цветной бумагой, обоями, кусочками разноцветных тканей. Максимальной реалистичности можно добиться с помощью штор на окнах, картин на стенах, ковриков. Окружить готовое строение следует заборчиком, а также соорудить гараж, веранду, бассейн.
После окончания строительных работ, важно убедиться, что из него не торчат шурупы, гвоздики и другие острые элементы. И тогда деревянная конструкция для кукол станет любимой игрушкой для ребенка.
строительство избушек из фанеры и бруса
Собственный домик, пусть даже самый небольшой – предмет желания многих мальчишек и девчонок. Да и родители рады предоставить своему чаду безопасное и увлекательное место для игр на свежем воздухе, обеспечив себе несколько часов свободного времени на отдых или работу. Однако, поинтересовавшись ценой готовых изделий, многие отказываются от выполнения детской мечты. И совершенно зря – ведь можно сделать детский домик из дерева своими руками, да еще и привлечь к его оформлению всю семью.
Основные правила безопасности в строительстве мини-хижины
Любой игровой элемент должен быть безопасным – эту аксиому родителям повторять не надо. Но далеко не всегда можно предусмотреть, куда в этот раз занесет подрастающего сорванца, и каким таким важным делом он уже второй час занимается в домике. Чтобы не переживать лишний раз, рекомендуется заранее изучить основные моменты, важные для сохранения здоровья ребят:
- Нужно осмотреть исходный материал для изготовления домика, нет ли на нем сучков и трещин, способных привести к занозам.
Эти дефекты необходимо тщательно отшлифовать и обработать влагостойкой краской или лаком. - Применяемые лакокрасочные материалы обязательно должны иметь сертификаты качества и технические характеристики, в которых указано, что данный ЛКМ может применяться для обработки детских изделий.
- Если домик планируется поднять над землей, место под ним особенно важно покрыть мягким настилом – песком, искусственным или натуральным газоном, специальными рулонными или модульными материалами.
- Углы и кромки нужно скруглить и зашлифовать или заказать у профессиональной фирмы распил деталей с кромлением.
- Нельзя допускать, чтобы концы болтово-гаечных соединений и гвоздей выступали над поверхностью.
- Все крепежи и несущие части следует регулярно проверять на надежность.
Домик на безопасном покрытии из резиновой крошки
Опоры для укрепления домика рекомендуется заглубить в землю не менее чем на 0,5 м. Это придаст устойчивость во время детских игр и обезопасит конструкцию от порывов ветра.
Также важно серьезно подойти к выбору места: нельзя располагать игровой элемент поблизости бассейна, электрооборудования и вольеров с животными. Выбранное пространство в течение дня должно находиться в полутени и хорошо просматриваться взрослыми.
Какие материалы пригодны для мини-домика
Выбор материалов напрямую зависит от функциональности домика, которая, в свою очередь, обусловлена возрастом маленьких хозяев. Простейшие сооружения, рассчитанные на детей 1–3 года, представляют собой квадратный короб с символической крышей и декоративными проемами вместо окон и дверей. Для такого варианта подойдет водостойкая фанера ФСФ или ламинированная ДСП толщиной 12–15 мм.
Конструкция с дверями, окнами и дымоходом
Ребятне постарше предлагается соорудить своими руками для детской площадки деревянный домик с застекленными окнами и дверями на завесах. Столь основательная конструкция требует тщательного расчета материалов и их соединений на несущую способность, монтажа качественной фурнитуры, безопасных стекол и дополнительного оборудования – горки, лесенки, каната, качели.
Если фанерный особнячок при наступлении холодов можно легко перенести в укромное место, то тяжелое строение остается под воздействием негативных погодных условий. Это может привести к растрескиванию и разрушению поверхности, что недопустимо. Поэтому следует отдавать предпочтение пиломатериалам из натуральной древесины высокой плотности – горбылю, брусу или доске.
Домик со спортивными элементами
Вполне возможно, что дети захотят заняться обустройством внутреннего пространства, и им понадобится помощь в изготовлении и установке столов, стульев или лавочек. Покупная пластиковая мебель для использования детьми на улице не годится, так что стоит запастись материалом для них заранее, например, приобрести его вместе с основным либо не выбрасывать крупные обрезки после раскроя. Для отделки интерьера пригодится и плотная ткань, и картины, и старая посуда.
Фанерный домик – пример конструкции
Как построить фанерную избушку – легкая и быстрая технология
При нехватке времени, материальных средств или просто нецелесообразности (например, домик будет оставлен на неохраняемой даче) лучше сконструировать фанерную избушку.
Необязательно ее делать на земле – можно построить прочный деревянный каркас с лестницей, на который поднять конструкцию. В тени под детским домиком из дерева своими руками можно обустроить песочницу, как на фото.
Хижина на втором ярусе
Простой способ сборки основания и каркаса для стен
Естественно, что для такой маловесной конструкции фундамент как таковой не нужен, но оградить пиломатериалы от прямого контакта с землей все-таки необходимо. Для этого на предварительно убранной площадке нужно выкопать траншею по периметру будущего строения.
Ее глубина должна быть равна толщине песчано-керамзитной подушки (около 5 см) и высоте кирпича, который будет заменять ленточный фундамент. Кирпич следует уложить в один ряд вровень с землей. Все пространство желательно застелить слоем рубероида или листовой резины.
Основа маленького здания
Из 4 досок сечением 50х200 с помощью шуруповерта и саморезов нужно сбить раму. Внутри нее следует расположить и закрепить на равном расстоянии поперечные доски, необходимые для создания жесткости.
Более тонкими досками (оптимальное сечение 25х150) нужно выложить на рамной конструкции дощатый пол, после чего крепко закрепить его с помощью гвоздей или саморезов. Неровные концы досок, выступающие за габариты рамы, лучше сразу спилить.
Каркас для стенок мини-домика представляет собой такую же рамную конструкцию из досок размером 30х70. Сбивать их рекомендуется на ровной поверхности, постоянно контролируя параллельность сторон. Устанавливая ребра жесткости, нужно сразу отметить планируемое место расположения окон и установить по их краям поперечины. Готовую обрешетку следует накрепко присоединить к основе саморезами и металлическими уголками.
Монтаж рамы для фанерных стен
Советы по грамотному монтажу стен и крыши
С готовой рамы необходимо снять размеры и как можно точнее перенести их на фанеру (ее толщина обычно составляет 10–12 мм). Объединив точки, следует прочертить линии разметки, по которым и проводится раскрой материала. С этой операцией легко справиться, если использовать электролобзик.
Рекомендуется пилить фанеру максимально осторожно – оставшиеся фрагменты могут впоследствии пригодиться.
Готовые элементы требуется закрепить на обрешетке саморезами. Важно подобрать длину метизов, чтобы их концы не выходили с другой стороны. После обшивки с помощью монтажной пены нужно устранить нечаянно образовавшиеся щели, а также обработать стыки фанерных листов. Это позволит избежать образования сквозняков.
Крышу лучше сделать двускатной – односкатные, хоть и проще строить, но больше подвержены риску скопления осадков. Кроме этого, у детей наверняка возникнет желание протестировать ее прочность, что в случае с двускатной кровлей более проблематично, а значит, и более безопасно. После сборки каркаса его следует обшить листами фанеры и легким кровельным материалом, например, мягкой черепицей, после чего можно приступать к обустройству интерьера.
Простейший вариант обустройства кровельного навеса
Солидная конструкция – постройка маленького здания из дерева
Двухуровневый домик для детской площадки, своими руками выполненный и оформленный должным образом, имеет все шансы стать предметом гордости его создателя, а также украшением ландшафтного дизайна всего участка.
Его конструкция, конечно, сложнее и требует некоторых строительных навыков. Однако, построив его один раз, уже не придется задумываться о качественном досуге для ребятишек.
Порядок действий в его возведении выглядит так:
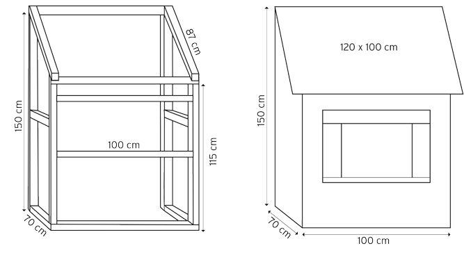
- Из бруса сечением 105х105 нарезать по размерам вертикальные стойки и балки для верхней и нижней обвязки, как это показано на чертеже внизу (при желании домик можно поднять выше на 1–1,5 м).
- Саморезами и металлическими уголками соединить детали в крепкий каркас.
- «Ноги» каркаса установить в предварительно выкопанные ямы, выровнять по уровню и засыпать.
- На нижнем основании сбить дощатый пол, используя доски толщиной не менее 20 мм.
- Боковые стены обшить досками такой же или меньшей толщины.
- По единому лекалу сбить стропильные фермы и закрепить их на верхней обвязке.
- Кровельный каркас обшить фанерой, досками и уложить битумную черепицу.
- Из отшлифованных балок и перекладин сбить лестницу нужной длины и пристроить ее к крыльцу.

Чертеж домика с крыльцом
К дальнейшему оформлению можно привлечь детей, развивая тем самым их творческие способности и умение принимать решения. Ребятам постарше можно поручить несложные работы, а младшим отдать роль дизайнеров. Как видно, сделать домик для детской площадки – это, возможно, и непросто, но зато этот процесс замечательно сплачивает всю семью.
как сделать, чертежи, идеи, схемы
Каждый ребенок мечтает иметь собственный укромный уголок, где можно было бы заниматься любимыми занятиями и обустраивать личное пространство по своему усмотрению. Самый лучший вариант в этом случае — небольшой и уютный детский домик, построенный руками отца или дедушки.
Содержание статьи
Выбор конструкции
Соорудить пусть даже крошечный по размерам домик в квартире, скорее всего, не позволят квадратные метры. А вот при наличии дачи или частного дома такая задача вполне осуществима. Если вы решили построить своему непоседе собственный домик, то стоит заранее продумать, как он будет выглядеть.
К наиболее распространенным вариантам таких конструкций можно отнести:
- Избушка — по внешнему виду напоминает уменьшенную копию обычного дома.
- Шалаш — является одной из самых простых сооружений, которое занимает минимум места и представляет собой Л-образную конструкцию.
- Двухуровневый домик — для его изготовления потребуется больше времени и строительных материалов. На нижнем уровне можно поместить стулья со столиком или песочницу, а на верхнем — игровую комнату. Рядом с лестницей на второй этаж соорудите наклонный настил — по нему ребенок будет забираться наверх.
- «Зеленый» домик — представляет собой одну из разновидностей шалаша, в качестве стен и крыши которого используют вьющиеся растения, например, виноград или клематис.
- Домик на дереве. Главное требование, которое необходимо соблюдать при построении такого домика — безопасность. Конструкция должна крепиться на дереве максимально прочно, и выдерживать большие нагрузки, например, прыжки или вес нескольких детей.
Также следует позаботиться, чтобы ребенок случайно не выпал из домика, расположенного на высоте. Во избежание этого рекомендуется снабдить конструкцию высокими перилами.
Какие материалы можно использовать?
После того, как вы определились с конструкцией будущего домика, следует подумать о материалах изготовления. Часто идея о создании домика для ребенка возникает у родителей в связи с недавно оконченным ремонтом, после которого остались лишние строительные и отделочные материалы.
Наиболее подходящими материалами для строительства на улице, под открытым небом, являются:
- Пластик;
- Дерево;
- Фанера.
Из перечисленных материалов лучше всего остановить выбор на дереве — оно отличается экологической безопасностью, прочностью и долговечностью. Фанерный домик обойдется дешевле, но он может быстро испортиться из-за дождей и снега. А конструкцию из пластика маленькие непоседы могут сломать, хотя выглядит этот материал привлекательнее по сравнению с деревом и фанерой.
Если же вы решили сделать небольшой домик в квартире, то можно использовать с этой целью:
- Фанеру;
- Ткань.
В последнем случае изделие изготавливается по типу магазинных детских игровых палаток. Для изготовления каркаса лучше всего использовать дерево — работу с этим материалом возьмут на себя отец или дедушка, а пошивом занавесок, проемов окон и дверей и самого домика — мама или бабушка.
Следует позаботиться о том, чтобы пол в тканном домике был выполнен из теплого и мягкого материала — сидеть ребенку должно быть тепло и удобно.
Изготовить комнатный домик можно и из обычного картона.
Изготовление домика из дерева
В первую очередь необходимо сделать чертеж будущей конструкции. Его можно набросать по своему усмотрению, или воспользоваться нижеприведенной схемой.
Материалы
Для работы потребуются следующие материалы:
- Брусья (из них делается каркас).
Желательно использовать брусья с сечением 50/50. - Доски, ОСБ или фанера для обшивки. При использовании ОСБ нужно учитывать, что этот материал стоит дешевле, но не отличается долговечностью. Поэтому он требует дополнительной обработки.
- Шифер, ондулин, металлическая или керамическая черепица или профнастил для крыши.
- Кирпич.
Советы по выбору материалов
Окна в детском жилище лучше не застеклять — это позволит предупредить возможные травмы из-за случайно разбитого стекла. Однако из-за открытых оконных проемов внутри помещения может возникнуть сквозняк. Поэтому при выборе места для домика необходимо найти участок, защищенный от ветра и сквозняков.
При использовании ОСБ нужно учитывать, что этот материал стоит дешевле, но не отличается долговечностью. Поэтому он требует дополнительной защиты.
Самым лучшим кровельным материалом для детского домика считается прозрачный шифер из акрила или поливинилхлорида. Такие материалы выглядят эстетично и хорошо пропускают солнечный свет, благодаря чему внутри помещения будет светло даже в пасмурную погоду.
Изготовление фундамента
Разумеется, детский домик не требует заливки крепкого фундамента. Однако для надежности рекомендуется установить конструкцию на подстилку из кирпича. Для её изготовления необходимо выкопать в земле углубление, глубина которого должна равняться высоте кирпича (8-10 см), а ширина и длина соответствовать размеру домика. В вырытое углубление закладывается кирпич таким образом, чтобы он лежал как можно ровнее.
При отсутствии необходимого количества кирпича можно воспользоваться более бюджетным и быстрым вариантом: сделать раму из деревянных брусьев и установить её на кирпичи.
Пол и стены
Для изготовления пола можно использовать деревянные доски или листы ОСБ. Каркас стен делают из брусьев, а стены обивают тем же материалом, который использовался для полов. При изготовлении каркаса из брусьев следует сформировать проемы для дверей и окон.
Крыша
Кровельный материал укладывают на фронтоны.
Они изготавливаются из того же бруса, что и каркас. Внешние треугольники зашиваются плитами ОСБ или досками. Количество фронтонов зависит от вида используемого кровельного материала.
Отделка
Чтобы домик долгое время имел привлекательный вид и прослужил как можно дольше, необходимо принять меры по защите древесины. Её обрабатывают специальными растворами, предотвращающими повреждение дерева жучками и гнилью, а после красят или покрывают лаком.
Внутренние поверхности перед обработкой необходимо зашкурить мелкой наждачной бумагой, чтобы ребенок не пострадал от заноз.
Как видно, изготовление детского домика вполне посильная задача даже для человека, не имеющего большого опыта в подобных работах. А радость и благодарность в глазах ребенка сторицей возместят любящим родителям материальные и временные затраты.
Видео «Детский домик своими руками»:
Похожие статьи
Дом из фанеры своими руками: чертежи и инструкция
Счастливое детство — это полная интересных игрушек комната.
На смену советскому дефициту пришло разнообразие и широкий ассортимент, так что каждый малыш может найти себе игрушку по вкусу. Девочки особенно любят кукольные домики: большие или компактные, укомплектованные мебелью или пустые, сказочные замки или реалистичные жилища.
Покупные дома для кукол – это всегда красиво, часто качественно, но нередко дорого. У любящих родителей есть отличный шанс немного сэкономить и одновременно подарить своей малышке неповторимую игрушку.
Сделать кукольный домик своими руками не так сложно, ведь в сети можно найти десятки мастер-классов, советов и рекомендаций по изготовлению такого строения из любого материала. Достаточно лишь выбрать подходящий для себя вариант и приложить немного усилий.
Кукольные домики для детей: мастерим сами
Уникальность сделанных своими руками кукольных домиков состоит не только в их неповторимости, но и в возможности стать ближе со своим ребенком.
Мастерить такое строение лучше вместе с малышкой: интересоваться ее мнением, вместе рисовать план дома, выбирать мебель, обустраивать жилище, как настоящее.
По общему мнению психологов такая совместная деятельность пойдет на пользу и родителям, и ребенку.
Сделать домик для куклы несложно, а впечатлений у ребенка будет на целый год. Кукольным домом, сделанным родителями, можно хвастаться перед друзьями, к тому же играть в него значительно интереснее.
Классический кукольный домик не имеет передней стены, чтобы ребенку было удобнее играть с расположенными в нем куклами. Самодельный домик может быть разным: без стены, с имитирующей стену шторкой, с настоящей открывающейся стенкой.
Выбор того или иного варианта зависит от размеров дома и комнаты, в которой будет стоять игрушка, возраста малыша и конструктивных особенностей самого строения. Деревянные или картонные дома можно снабдить эффектной закрывающейся стеной, а вот жилище из ткани традиционно делается открытым.
Размеры будущего кукольного дома также зависят от ряда факторов. Следует учитывать возраст малыша, который будет играть с куклами: маленьким детям сложно пользоваться громоздкими изделиями, тогда как подросшие дети любят крупные игрушки с большим количеством деталей.
Обязательно учитывайте размеры детской комнаты или того помещения, в котором будет стоять игрушка. Массивный домик может оказаться слишком громоздким, будет мешать и в конце-концов отправится на балкон.
- Маленький кукольный домик в коробке
- Компактная игрушка – идеальный вариант, который не слишком хлопотно и долго делать, он не занимает много места, а играть с таким домом для кукол не менее интересно.
- Большой кукольный домик
Дома для кукол делают из всего – от дерева до картонных папок для бумаг. Широта возможностей дает родителям шанс создать для своего малыша уникальный, оригинальный продукт, который будет учитывать интересы и предпочтения конкретного ребенка.
- Малышам больше подойдут компактные мягкие домики из ткани, детям 3-6 лет – легкие картонные дома, а младшим школьникам – солидные строения из фанеры или старой мебели.
Но недостаточно сделать красивый дом – необходимо еще и обустроить его: декорировать стены и пол, расставить мебель, добавить аксессуары, поселить кукол.
Самостоятельно сделанный кукольный дом – это постоянное творчество: поиски новых решений, добавление оригинальных деталей и заселение новых жителей, которые нуждаются в новых комнатах и дополнительной мебели.
- Психологи советуют использовать создание и обустройство такого кукольного дома в качестве идеального средства общения с ребенком, ведь в процессе игры можно найти точки соприкосновения и лучше понять друг друга.
- Из картонных коробок
К кукольному домику предъявляют много требований: ребенку нужно яркое и интересное изделие, мама заботится об экологичности игрушки, а папа – о прочности конструкции. Именно ненадежность – основная проблема покупных кукольных домов, которые не всегда выдерживают активные игры подвижных малышей.
- Кукольный домик из дерева
- Сделать домик для кукол из ламината или фанеры – значит получить оригинальный, креативный и прочный вариант жилища для всех кукол малышки.
- Домик-конструктор из фанеры
СОВЕТ.
Качественно сделанный по найденным в сети схемам домик с аккуратной отделкой будет выглядеть не хуже покупного. А его неповторимость и необычные детали и вовсе сделают такую игрушку поводом для гордости.
- Игрушечный домик домик из ламината
- Чтобы сделать прочный и красивый домик для кукол, ламинат или фанеру (не менее 7 мм толщиной) раскраивают по заранее подготовленным схемам и надежно скрепляют незаметными уголками и маленькими гвоздиками, затем проклеивают столярным клеем для обеспечения прочности всей конструкции.
Клей также поможет устранить все щели, которые могут выглядеть непривлекательно и стать местом потери мелких деталей игрушек. После того, как корпус дома собран, можно приступать к отделке: идеальный вариант для стен, пола и потолка – это самоклеющаяся пленка.
Домики для кукол из фанеры
Десятки доступных цветов и текстур дают возможность создать домик мечты в любом стиле. Такой дом весьма прочен, поэтому способен выдержать не только легкую картонную или пластмассовую мебель, но и более надежные деревянные детали.![]()
Домики из коробок или картона
Идеальный вариант для совместного творчества – это создание домика для кукол из картонных коробок. Размеры его могут быть любыми: крохотным фигуркам будет уютно в коробке из-под обуви, куклам побольше подойдет коробка из-под пылесоса, а если желаете кукольный особняк – ищите коробку из-под стиральной машины или холодильника.
Домик для кукол из коробок
СОВЕТ. Большой дом можно сделать не из одной, а из нескольких небольших коробок, тщательно скрепленных между собой. Такое строение может иметь несколько этажей и комнат, просторный чердак и даже подвал.
Картонный кукольный домик
Работа с коробкой начинается с удаления одной из стен, а также монтажа перегородок между комнатами. Полая коробка становится заготовкой для будущего дома: стены, пол и потолок декорируют бумагой, по комнатам можно расставить пластмассовую мебель, которую выдержит домик.
- Такое жилище для кукол привлекательно своим легким весом, так что переставить его в другую комнату или вынести летом на улицу совсем несложно.

Кроме того, в таком кукольном домике легко сделать ремонт: достаточно приобрести несколько листов дизайнерской бумаги и уже готов новый интерьер. Обычно такое строительство так увлекает, что взрослые и дети начинают мастерить мебель и декор для кукол без остановки.
- Мастерить домик можно не только из готовых коробок, но и из листового картона: понадобятся выкройки, клей, ножницы и цветная бумага, а также фантазия и желание превратить скучный коричневый картон в настоящий сказочный замок.
- Кукольные домики из картонных коробок своими руками
Сделать домик для кукол проще всего, когда в квартире идет ремонт. Огромное количество строительных материалов позволяет без особых затрат соорудить вполне привлекательное жилище для кукол любого размера.
- При этом кукольный дом будет напоминать уменьшенную копию квартиры, ведь для его отделки можно использовать остатки настоящих обоев, ламината, линолеума и даже плитки.
Чтобы сделать полноценный дом из гипсокартона понадобится схема деталей и сам материал.
Аккуратно раскроенный гипсокартон соединяют небольшими уголками, а затем стены шпаклюют и красят (или оклеивают обоями). Такой домик выглядит как настоящий, особенно если соблюсти планировку комнат, как в настоящем жилье.
Домики из старой мебели
Сделать отличный кукольный домик для своего ребенка можно из старой мебели, которая давно пылится в гараже или на балконе. Старый комод, деталь кухонного гарнитура или часть книжного шкафа после несложных преобразований может превратиться в привлекательный и интересный дом для кукол.
СОВЕТ. Весомым преимуществом такого дома становятся его размеры, дающие возможность задействовать крупные игрушки, а также наличие дверей: все куклы будут сидеть в шкафу, а в комнате будет идеальный порядок.
Для превращения старого шкафа в стильную игрушку понадобится помощь папы или дедушки, ведь необходимо будет вырезать лобзиком окна, переставить полки или изменить конфигурацию содержимого шкафа, добавив перегородки.
Для максимального комфорта играющего ребенка все поверхности затирают тонким слоем шпаклевки, которая также позволяет домику выглядеть привлекательнее.
Финальная отделка готового дома поручается маме, которая совместно с малышом выбирает обои для всех комнат, покрытие для пола, мебель и декор. Стены дома можно просто покрасить, можно заклеить обоями, цветной или упаковочной бумагой.
- В интерьере такого кукольного дома отлично смотрится готовая или самостоятельно сделанная мебель: шкафы из коробочек, диваны из пакетов из-под сока, стеллажи из картона и ванна из мыльницы.
- игровой домик в чемодане
Домики из ткани или канцелярских папок
Тканевые кукольные домики – это отличный вариант для малышей 2-5 лет. В таком возрасте ребенку нужны познавательные и безопасные игрушки, а жилище для кукол из ткани абсолютно безопасно. Тканевый домик может быть двух видов: подвесной вариант с откидными полками или домик-сумочка, который раскладывается в полноценное жилище.
Оба варианта выглядят достойно и заслуживают внимания.
- Тканевые домики
- Тканевый дом крепится на стену и не занимает места в сложенном виде, так что его выбирают для небольших детских комнат или малогабаритных квартир.
- Игровой домик из папки для бумаг
- Сшить такой дом под силу даже новичку:
- нужно изготовить плотную заднюю стенку с тематическим рисунком,
- предусмотреть место для будущих полок-комнат,
- сшить «пол комнаты» и поместить внутрь картон,
- пришить импровизированный пол одним краем к основе и закрепить с помощью тесемок или лент в горизонтальном положении,
- подобрать легкую мебель, мягких кукол и заселить дом.
- Сшить дом для кукол в виде сумочки чуть сложнее: для этого понадобится схема деталей, разноцветная ткань, наполнитель для стенок, декор для украшения и умение работать со швейной машинкой или ручной иглой.
Поскольку стенки такого дома должны быть твердыми, роль основы играет пластиковая сетка или картон, который следует обмотать мягким материалом (ватой, тонким поролоном или листовым синтепоном), а следом обшить выбранной тканью.
Стенки домика можно декорировать лентами, пуговицами, аппликацией, вышивкой – сделать игрушку интересной для ребенка любого возраста.
Чуть более простой способ создания занимательного дома – это использование канцелярских папок в качестве основы дома. Такое жилище для кукол напоминает книгу с яркими картинками, которые могут стать площадкой для активных детских игр.
Сделать такую игрушку легко: папку изнутри обклеивают красивой бумагой, имитирующей обои, сверху наклеивают мебель – вот и готова комната. 3-4 вертикально стоящих папки уже похожи на настоящий дом, в который можно поселить кукол.
Любой кукольный дом, который могут сделать родители для своего малыша, будет оригинальным творением, подходящим для игры и развития ребенка. Большой или компактный, прочный или мягкий, сказочный или реалистичный, такой домик – отличный подарок дочери или сыну на любой праздник.
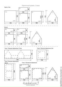
Домик для кукол своими руками: чертежи с размерами
- Вы можете поделиться или сохранить для себя:
- Комментариев пока нет, но вы можете написать свое мнение или задать вопрос.

Adblockdetector
Источник: http://www.magic-charm.ru/semiya-deti/kykolnyi-domik-svoimi-rykami.html
Домик из фанеры: чертеж + инструкция по изготовлению
Ассортимент магазинов детских товаров богат и разнообразен. В числе популярных игрушек – куклы и аксессуары к ним: домики и мебель, от настоящей которую отличает только размер. Можно купить кукольный домик из фанеры или изготовить его самостоятельно, потратив на это минимум средств и времени.
Домик из фанеры
Плюсы самостоятельного изготовления
К преимуществам изготовления домика для кукол своими руками из фанеры можно отнести следующее:
- Изделие, изготовленное по индивидуальному чертежу, предполагает применение собственных размеров, дизайна и функциональности. Основное преимущество такой игрушки заключается в ее уникальности и возможности учесть пожелания ребенка при расположении и оформлении комнат, выбора планировки и мебели, аксессуаров и декора.
- Домик может иметь необходимый и удобный размер, который выбирается с учетом свободного пространства в детской комнате и пожеланий ребенка.
Это может быть настольная или напольная конструкция. - К декорированию и обустройству внутреннего пространства еще на стадии разработки чертежа можно привлекать ребенка – совместная работа сближает, позволяет раскрыть творческий потенциал малыша, учит его принимать самостоятельные решения и нести за них ответственность.
- Работа с фанерой – творческий и занимательный процесс, в котором может участвовать вся семья.
При самостоятельном изготовлении можно придать домику любой внешний вид
Преимущества фанеры
Для самостоятельного изготовления кукольного домика могут применяться любые материалы, но фанера используется чаще, так как имеет ряд преимуществ:
- Целая категория игрушек для детей изготавливаются из дерева, в частности из фанеры, благодаря ее приятной на ощупь, теплой поверхности.
- Небольшой вес материала позволяет создавать крупные конструкции, которые сможет переставлять с места на место даже ребенок.
- Фанера – прочный материал, поэтому конструкции из него получаются надежными и долговечными.

- Материал обладает доступной стоимостью, что позволяет изготовить игрушку ничем не хуже той, что продается в магазине, но за гораздо меньшие деньги.
- Работать с фанерой легко, она проста в обработке и не требует применения специальных инструментов или наличия профессиональных навыков.
- После сборки, домик можно покрасить или оставить таким, какой он есть, покрыв прозрачным лаком – поверхность фанеры ровная, с приятным природным рисунком и оттенком.
Фанера имеет привлекательный внешний вид и природный оттенок
Цены на листовую фанеру
Фанера листовая
Обратите внимание! Фанера марки Е0 – экологически чистый и безопасный материал. При изготовлении товаров для детей применяется именно эта разновидность материала.
Подготовительные работы
На первом этапе потребуется определиться с размерами конструкции. Для этого следует учесть размер куклы, которой играет ребенок – игрушка должна свободно помещаться в полный рост с запасом нескольких сантиметров до потолка.
Также должно быть достаточно места для расстановки игрушечной мебели – кроватки, стола со стульями, кухонной мебели.
Домики для Барби
Количество этажей в домике зависит от размера игрушек и роста ребенка. Если фигурки не превышают по высоте 20 см, то в доме может быть до 3-х этажей. Если конструкция собирается под стандартную куклу Барби, то больше 2-х этажей сделать не получится – лучше тогда расположить помещения по горизонтали.
Напольный 3-х этажный домик для игры небольшими фигурками
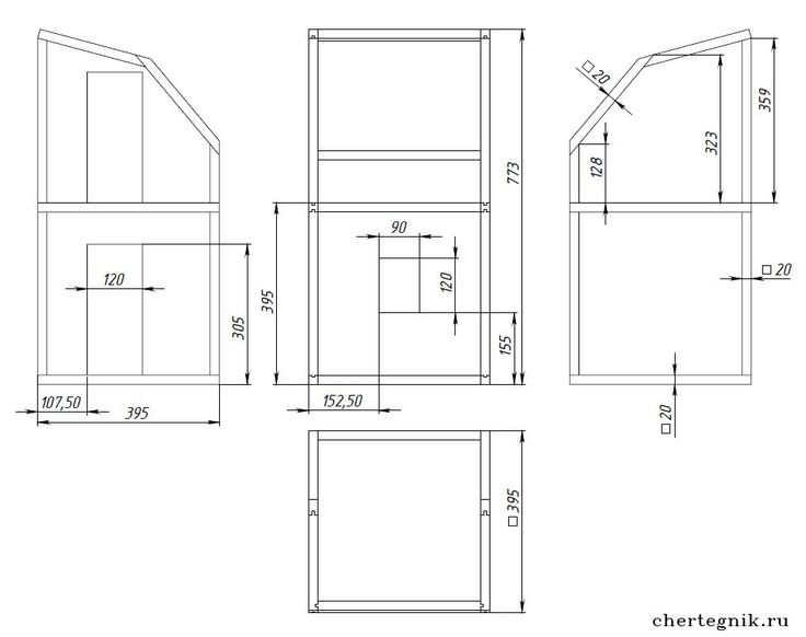
Определившись с концепцией, можно приступать к более детальной проработке проекта, выполнив чертеж конструкции в масштабе на листочке.
Детализация проекта
Чертеж
Чертеж деталей домика необходимо выполнить в масштабе – вычертить его можно на листе бумаги или в специальной компьютерной программе. Это позволит отразить габариты изделия, количество и размеры деталей, определить способы и места креплений.
Также на этапе создания проекта следует определиться с внутренней планировкой, формой и дизайном домика.
Этот этап подготовительных работ пропускать не стоит, так как он позволяет определить необходимое количество материала и последовательность сборки изделия.
Основные элементы кукольного домика
Обратите внимание! Для изготовления домика можно использовать типовой чертеж. При этом стоит помнить, что при изменении (увеличении, уменьшении) одного размера, следует пропорциональное изменение и остальных размеров.
При самостоятельной разработке чертежа потребуется учесть следующее:
- Форма задней стенки – прямоугольник или пятиугольник, который позволяет изготовить двухскатную крышу.
- Чтобы процесс сборки был проще, основание делают несколько шире, чем пространство внутри.
- Перекрытия вышерасположенных этажей должны иметь меньшие, чем у основания, габариты.
- К основным элементам конструкции также относят боковины, межкомнатные перегородки и детали крыши.
Эскизная схема домика
Инструменты и материал
Изготовление домика из фанеры осуществляется в несколько этапов.
Особое внимание следует уделить приобретению необходимого инструмента и материалов.
Перечень материалов и инструментов:
- Фанерные листы, количество которых рассчитывают в соответствии с чертежом, учитывая размер и количество деталей. Полученное значение округляют в большую сторону. В среднем на изготовление кукольного домика уходит 3 листа фанеры.
- Крышу домика изготавливают из фанеры, гофрированного или обычного картона.
- Для обеспечения прочной фиксации фанерных деталей используют быстросохнущий столярный клей.
- Для временной и дополнительной фиксации деталей можно воспользоваться монтажным скотчем.
- Для шлифовки деталей используют наждачную бумагу. Особое внимание следует уделить торцам элементов.
- Раскрой деталей производится при помощи электрического лобзика.
- Фиксация деталей при сборке домика производится при помощи саморезов.
- На этапе подготовки материала к раскрою понадобятся линейка, рулетка, карандаш.

Необходимые инструменты
Цены на популярные модели электролобзиков
Электролобзик
После сборки домика его необходимо декорировать. Для этого используют обрезки и другие остатки отделочных материалов: обоев, пленки, цветной бумаги, кусочков линолеума, ткань, фетр, ламинат. Оконные проемы заполняют прозрачным пластиком или оргстеклом.
Пошаговая инструкция изготовления и сборки фанерного домика
Последовательность изготовления кукольного домика из фанеры выглядит следующим образом.
Таблица 1. Изготовление кукольного домика
| Шаг 1 | В соответствии с чертежом на поверхность фанеры наносят размеры деталей, по которым будет производиться раскрой. |
| Шаг 2 | Фрагменты крупного размера и простой формы раскраивают на станке. |
| Шаг 3 | В соответствии с чертежом вырезают необходимое количество перекрытий. |
| Шаг 4 | Чтобы вырезать более мелкие детали – используют электролобзик |
| Шаг 5 | Место стыковки двух элементов крыши (скатов) с одной стороны проклеивают скотчем.![]() |
| Шаг 6 | Детали переворачивают и промазывают торцы в местах соприкосновения клеем. Детали прижимают и устанавливают в необходимом положении. |
| Шаг 7 | Приклеивают фронтон. |
| Шаг 8 | Для изготовления оконных и дверных проемов используют электролобзик. |
| Шаг 9 | Чтобы вставить пилку от лобзика и начать вырезать оконный проем, сначала высверливают небольшое отверстие. |
| Шаг 10 | Высверлить отверстие придется со всех сторон оконного проема |
| Шаг 11 | Изнутри оконные и дверные проемы шлифуют при помощи наждачной бумаги. |
| Шаг 12 | Для крупных деталей используют шлифовальную машинку. |
| Шаг 13 | Отверстия под саморезы высверливают при помощи зенкерного сверла, чтобы впоследствии шляпка самореза была утоплена в массив детали. |
| Шаг 14 | Детали окрашивают в выбранные цвета. |
| Шаг 15 | Сборку домика выполняют при помощи обычных саморезов, шляпки которых впоследствии окрашивают в цвет детали.![]() |
Обратите внимание! Способ крепления деталей из фанеры зависит от ее толщины и размеров элементов. Когда материал тонкий, а сам домик не большой, то фиксация элементов может выполняться на столярный клей или при помощи специальных пазов.
Сборка небольшого домика
Видео — Как изготовить кукольный фанерный домик
Особенности декорирования изделия
Окрашивают кукольный домик экологически безопасной краской, например, акриловой. Получить яркий, насыщенный или мягкий, пастельный оттенок можно при помощи добавления колеровочной пасты в основной состав.
Материал для окрашивания фанеры
Цены на колеровочную пасту
Колеровочная паста
После того как домик собран можно приступать к внутреннему оформлению стен, пола, расстановке кукольной фанерной мебели.
Внутреннее наполнение кукольного домика
Чтобы придать реалистичности конструкции, ее электрифицируют при помощи автономных светильников, работающих от батареек, которые закрепляют на двухсторонний скотч.
Автономные светильники
Ростовой домик из фанеры
Такая конструкция может использоваться и на свежем воздухе, и в квартире. Домик легко собирается, буквально в течение 5 минут также легко разбирается на удобные фрагменты, которые можно хранить в кладовке.
В жаркий день такой домик на участке обеспечит комфортные условия для игр на свежем воздухе
Игровая конструкция для дома
По сути – это увеличенная копия кукольного домика. Поэтому его изготовление происходит по той же технологии.
Таблица 2. Пошаговая инструкция
| Шаг 1 | Сначала изготавливается чертеж с деталировкой: определением размеров, форм, количества деталей, мест фиксации. |
| Шаг 2 | В масштабе 1:1 изготавливаются лекала отдельных фрагментов, которые переносятся на листы фанеры. После это материал раскраивают. |
| Шаг 3 | Детали шлифуют. |
| Шаг 4 | При необходимости детали окрашивают.![]() |
| Шаг 5 | Домик собирают. |
Особое внимание следует уделить внутреннему убранству домика. Конструкцией может быть предусмотрено наличие скамьи и откидного столика, полки на стене. Мебель также может быть переносной пластиковой или деревянной.
При эксплуатации домика под открытым небом необходимо, чтобы основание было сухим, поэтому конструкцию ставят на подиум или сухую траву
Фанера – часто используется в мебельной промышленности и для изготовления большого количества различных по размерам шкатулок и прочих очень красивых и функциональных поделок. Какие изделия из фанеры можно сделать своими руками? Читайте в специальной статье.
Внутри домика на пол можно постелить мягкий мат или матрас, на котором ребенку будет комфортно.
Видео — Вариант изготовления ростового детского домика из фанеры на придомовом участке
Источник: https://mebel-expert.info/domik-iz-fanery/
Дом из фанеры: технология выполнения строительных работ, укладка фундамента, постройка и отделка
Многие соотечественники полагают, что построить жилье из фанеры либо невозможно, либо нецелесообразно.
На самом деле, это не более чем заблуждение, так как постройки, возведенные с применением таких пиломатериалов, повсеместно эксплуатируются на территории западноевропейских стран и США.
Но нужно помнить о том, что фанера — это материал, изготовленный с использованием древесины, а потому такие дома характеризуется теми же недостатками которые свойственны всем постройкам из дерева.
Коттедж, который себе могут позволить многие Строительство своими руками
Возводя фанерный дом, следует позаботиться о его защите от негативного воздействия факторов внешней среды, так как фанера подвержена разрушению вследствие влияния погодных условий.
Важно: Фанерные постройки — это не лучшее решение с точки зрения безопасности. Такие здания слишком уязвимы для несанкционированного проникновения и краж.
Поэтому, строя каркасный дом, с применением столь экзотического материала, целесообразно задуматься о маскирующей отделке например блок-хаусом или сайдингом.
Особенности возведения малоэтажных каркасных объектов
Каркасные дома из фанеры становятся все более популярными в разных странах по всему миру.
И это неслучайно, так как такие постройки имеют множество преимуществ в сравнении с традиционными методами строительства.
Среди этих преимуществ следует отметить:
- малый вес конструкции и, как следствие, возможность отказа от массивного фундамента;
- отсутствие необходимости в крупногабаритной спецтехнике для подъёма стройматериалов на высоту;
- отсутствие усадки стен постройки за счет небольшого веса и конструкционных особенностей стройматериала;
- сжатые сроки возведения за счет того, что домокомплекты изготавливаются в заводских условиях и поставляются на участок застройки в готовом, но разобранном виде;
- низкая степень теплопроводности стенового материала и, как следствие, высокая энергоэффективность постройки.
Технология выполнения строительных работ
Строительство каркасного дома своими руками — это комплексная работа, состоящая из следующих этапов:
- укладка фундамента;
- установка стеновых комплектов;
- возведение кровельной конструкции;
- отделка экстерьера;
- внутренняя отделка.

Как и для большинства быстросборных конструкций, возводимых с применением пиломатериалов, для каркасных домов достаточно малозаглубленного ленточного фундамента.
Технология укладки фундамента
Схема обустройства ленточного фундамента
- Разравниваем участок, чтобы на нем было как можно меньше рельефностей.
- Роем траншею шириной 0.5 м и глубиной 0.6 м или больше по периметру будущего здания.
- После того как траншея готова, трамбуем ее дно.
- На дно насыпаем подушку из песка шириной 10 см.
- Поверх песчаной подушки насыпаем 15-20 см среднеразмерного щебня.
- После того как щебень уложен, устраиваем опалубку. Для этого используем одноразмерные доски, с тем расчётом, чтобы высота опалубки была на 30-40 см выше поверхности грунта. Для того чтобы опалубка сохранила свою форму, сверху забиваем поперечные деревянные перемычки.
- Далее обустраиваем армирование с применением арматурного прута. На этом же этапе, концы прута выводятся наружу с тем, чтобы облегчить крепление стенового комплекта.

- После этого готовится песчано-цементный раствор из расчета 1 часть цемента к трем частям песка. Для удешевления стоимости фундамента, в раствор можно засыпать мелкий щебень из расчёта 2 части раствора к одной части щебня.
- После того как бетон залит в опалубку, разглаживаем его поверхность для того чтобы исключить образование рельефностей.
Совет: На высыхание фундамента в среднем требуется неделя. Для того чтобы исключить образование трещин, первые два дня следует прикрывать содержимое опалубки полиэтиленовой пленкой или поливать водой.
Постройка дома
Сегодня обзавестись собственным каркасным домом очень просто. Достаточно обратиться в специализированную фирму и готовые стены перекрытия и другие конструкционные элементы будут доставлены на строительную площадку.
- Тут же профессиональные монтажники осуществят сборку «конструктора», после чего вы сможете приступить к обустройству своего нового дома.
- Впрочем, этот рецепт идеален для тех соотечественников, которые готовы инвестировать в возведение загородного коттеджа немалые деньги, так как цена услуг профессиональных монтажников довольно-таки высока.

- Можно ли собрать фанерное жилье своими руками?
- Если решили построить фанерный домик для зимней рыбалки, то это делается следующим образом:
- на поверхность фундамента укладывался брус с поперечным сечением 200*150 мм;
- на основании бруса возводился каркас из досок 200*50 мм;
- на обе стороны каркаса стены набивалась фанера толщиной минимум 8 мм или другой материал в форме плит, в итоге должна была получиться полая конструкция;
- внутрь стены закладывался утеплитель, например минеральная вата или пенополиуретан (толщина утеплителя подбиралась в соответствии с регионом, в котором проводилось строительство).
В итоге, вы получаете утеплённую жилую конструкцию, прочность которой зависит от ваших инженерных способностей и навыков сборки строительных объектов из фанеры.
Каркас готов к обшивке
Для того чтобы результатом строительства стало по-настоящему прочное и надежное жилье, нужны профессионально разработанные чертежи домика из фанеры.
Чертежи, которыми следует руководствоваться в ходе строительства, можно заказать в специализированных организациях или скачать в сети интернет на профильных ресурсах.
Так или иначе, желательно, чтобы это была инструкция и схема к сборке типового дома, чья конструкция апробирована реальными жильцами в реальных условиях.
Многослойная фанера
На данный момент выбор материалов для возведения каркасной постройки широк и помимо многослойной фанеры включает такие материалы как ориентированно-стружечные плиты (ОСП) и ДСП. И та и другая разновидность спрессованного стружечного материала нуждается в специальной обработке для большей надёжности готовой конструкции.
Ориентированно-стружечные плиты (ОСП)
- Чтобы плиты не размокали, применяются специальные паро- и влагоизоляционные пленочные покрытия, которые предупреждают намокание и разрушение стенового материала.
- Стены, в соответствии с современными чертежами каркасных построек, имеют многослойную структуру.

- Сборка стен здания пригодного для всесезонного проживания осуществляется следующим образом:
- Под каркас заготавливается сухая древесина, преимущественно хвойных пород, оптимальным вариантом являются доски 150*50. Размер доски, а, следовательно, толщина стены может варьироваться в соответствии с климатическими особенностями региона.
- Из досок, по периметру заранее заготовленного ленточного фундамента, выкладывается нижняя обвязка.
Совет: чтобы исключить вероятность загнивания древесины, поверхность фундамента покрывается слоем гидроизоляции.
- Далее, с шагом в 1 метр монтируются вертикальные стойки и горизонтальные перемычки, чтобы в итоге получилась обрешётка.
- Поверх установленных вертикальных стоек устанавливается верхняя обвязка, которая по своей форме идентична нижней.
На фото готовый каркас с установленной окосячкой
- На этом же этапе делается окосячка дверных и оконных проемов.
Важно: положение вертикальных и горизонтальных конструкционных элементов необходимо проверять водяным уровнем, чтобы не допустить перекосов.
Выставляем временные опоры, пока не собрана потолочная обрешетка Каркас, обшитый ОСП
- Далее, изнутри утепляем стеновую конструкцию минеральной ватой. Желательно использовать маты или плиты. Для того чтобы утеплитель не сбивался в нижнюю часть стены, садим его на клей или на пунктиром нанесенную монтажную пену.
Утеплитель в стенной полости
- После того как утеплитель установлен, крепим плёночную пароизоляцию.
- Крепим фанерные плиты внутри постройки. Зазоры, образовавшиеся между плитами, прошпаклевываются. Зазоры на стыке стены и фундамента заполняем монтажной пеной, которая по мере высыхания выравнивается острым ножом.
- Далее, на верхней обвязке настилается потолочная обрешётка с размерами ячеи не больше 50*50 см.
- Потолочная обрешетка обшивается по тому же принципу что и стены. Важно не забыть про плёнку пароизоляции, как снизу, так и сверху утепления.
Потолочная обрешетка
- Кровельная конструкция строится, как и на обычном доме, но с той разницей, что применяются лёгкие кровельные материалы, такие как мягкая черепица.
В результате, все деревянные элементы можно собрать из бруса и досок, из которых собирался основной каркас.
Калькулятор количества пиломатериалов
Простой калькулятор выглядит так:
[wpcalc-337]
Отделка
Настил дощатых полов осуществляется традиционно на лаги с заполнением пустот керамзитом. Фанерная стена внутри дома отделывается пластиковой или деревянной вагонкой.
Отделка блок-хаусом
В качестве отделки потолка можно использовать виниловые натяжные потолки или гипсокартонные конструкции. Экстерьер дома отделывается виниловым сайдингом или блок-хаусом.
Вывод
Каркасные дома из фанеры называются канадскими. По окончанию Второй мировой войны тысячи эмигрантов переселились на территорию Канады и возникла необходимость в быстросборном жилье. Для того чтобы научить переселенцев, как сделать домик из фанеры, была разработана технология строительства малоэтажных конструкций, пригодных для всесезонного проживания.
По сей день, технология претерпела эволюционные изменения и эти дома стали еще надёжнее.
Теперь эти постройки становятся популярными на территории постсоветского пространства. Построить такой дом сегодня несложно, а заказать и купить еще проще.
Хотите изучить больше информации по этим вопросам, посмотрите видео в этой статье.
ПОДПИСЫВАЙТЕСЬ НА ОДНОКЛАССНИКИ
Друзья, вступайте в нашу группу. Раньше всего новости появляются именно там!
Подписаться
Каждый день полезные советы и маленькие хитрости для квартиры, дома и сада.
Подписаться
Источник: https://fanera-info.ru/podyelki/151-dom-iz-fanery
Кукольный домик из фанеры своими руками: схема, описание работы
Содержание: [скрыть]
- Аргументы в пользу самостоятельного изготовления
- Почему фанера
- На что обратить внимание
- На что обратить внимание
- Принимаемся за работу
- Дополнительные функции
- Подведем итоги
Апартаменты для кукол часто дорого стоят, изготавливаются из пластика — хрупкого, быстро ломающегося материала.
В статье описано, как сделать игрушечный домик своими руками.
Чтобы исполнить мечту ребенка о домике для любимой куклы, вовсе не обязательно идти в магазин. Можно сделать коттедж из фанеры по собственному проекту.
Аргументы в пользу самостоятельного изготовления
Почему следует построить самодельный кукольный домик из фанеры:
- Индивидуальность. Проект будет уникальным.
- Совместная работа с ребенком. Помогает укрепить семейные отношения.
- Развитие творческих способностей, навыков, моторики, приобретение нового опыта детьми.
- Возможность создать дом любого размера.
Почему фанера
Кукольный домик делают из разных материалов. Лучший вариант — фанера:
- Использование фанеры для строительства обеспечивает прочность будущего дома. При хорошем креплении детали не разваливаются, не отламываются.
- Фанера легко обрабатывается обычными инструментами.
- Деревянные игрушки приятны на ощупь.

- Красивый внешний вид дерева позволяет обойтись без дополнительного оформления, дизайна поверхностей.
- Низкая стоимость материала.
На что обратить внимание
При производстве фанеры используют формальдегиды. Они входят в состав пропиточного клея для соединения волокон. Чтобы избежать отравления, попадания опасного материала в детскую комнату, необходимо обращать внимание на маркировку листов:
- Е0 — менее 6 мг формальдегида на 100 г изделия;
- Е1 — 7–9 мг на 100 г;
- Е2 – 10–20 мг на 100 г.
Мебель и ее составляющие должны выполняться из самого безопасного класса фанеры — Е0.
Как сделать
Изготовление дома для кукол из фанеры — многоэтапный процесс. Требуется соблюдать определенную последовательность действий. Для облегчения работы можно воспользоваться пошаговой инструкцией.
Этап 1. Подготовка эскиза
Схема должна отображать планировку, размеры этажей в длину, ширину, высоту.
Можно найти эскиз в интернете, скорректировать его. На фото представлено несколько схем-основ игрушечного жилища.
Самое важное — соблюдение пропорций размеров в масштабе. Это необходимо на тот случай, если в процессе работы габариты изделия захочется изменить.
Дизайн можно продумать заранее, чтобы приобрести и подготовить необходимые материалы для декора.
Этап 2. Подготовка принадлежностей и инструмента
Для сборки потребуется:
- Фанера. Для определения ее количества используют чертеж: обсчитывают количество деталей, их размеры, получают общую площадь поверхности. Исходя из результата, приобретают нужное количество листов. Для настольного домика понадобится 2–3 заготовки, для большого особняка может уйти до 7–10 листов фанеры.
- Гофрированный картон для крыши.
- Инструмент для резки дерева. Рекомендуется использовать электрический лобзик. Он поможет быстро, точно вырезать детали нужных форм, габаритов.
- Столярный клей для фиксации элементов сборки.

- Скотч монтажный как вспомогательное средство для крепления деталей.
- Наждачная бумага мелкой фракции.
- Рулетка, линейка, карандаш для нанесения разметки.
Для оформления понадобятся:
- Клей ПВА или силикатный.
- Обои, цветные пленки.
- Самоклеящаяся пленка для имитации напольного покрытия.
- Цветной картон или бумага для оформления отдельных элементов помещений (по желанию).
Этап 3. Перенос изображения
Для сборки деревянных частей в единое целое их необходимо вырезать из листа-заготовки. Для этого эскизы в масштабе переносят на бумагу, из нее вырезают готовые части, в дальнейшем используют как шаблон.
Если на схемах окна не обозначены, при переносе выкроек их прорисовывают. На домике плоского вида без передней стенки разрезы под окна не нужны.
Этап 4. Сборка
Пошаговая инструкция по сборке:
- Электрическим лобзиком вырезают перенесенные на фанеру детали. Стараются делать это аккуратно, не выходя за линии контуров: при ошибке конструкции могут соединиться неправильно.

- Ошкуривают края, чтобы сделать детали безопасными, избежать травм.
Вырезание и обработка краев должны выполняться взрослыми.
- Сборка начинается с объединения внутреннего пространства. К вертикальным торцевым стенам с помощью клея и монтажного скотча прикрепляют перекрытия и внутренние перегородки согласно схеме. Для усиления соединения внутренние углы проклеивают тонкими рейками. Они придадут жесткость конструкции. На этом этапе в работе может быть принимать участие ребенок.
- Лестничные пролеты выполняют из деревянных линеек. Их ставят в виде горок или разрезают одну, склеивают из нее настоящую лестницу.
- Прикрепляют заднюю стенку.
- Собирают крышу. Из картона можно вырезать цельные скаты и склеить их. Другой вариант — собрать кровлю из отдельных кусков в виде черепицы.
Готовый остов дома оставляют на несколько дней до высыхания клея, приобретения конструкцией достаточной прочности.
После сборки приступают к оформлению.
Этап 5. Дизайн
Готовый каркас украшают и обставляют кукольными принадлежностями. Рекомендации:
- Пол можно оставить в первоначальном виде или украсить. Фанера имеет рисунок дерева, поэтому покрывать ее аналогичным орнаментом нецелесообразно.
- Можно сделать распашные окна, двери. Для этого прилаживают полотна на куски картона или используют маленькие металлические дверные петли. Проходы перекрывают тканевыми отрезами-шторками. Окна иногда заменяют картонными ставнями.
- Потолок, стены можно обклеить цветными пленками, обоями, разрисовать.
- В комнатах расставляют мебель для игрушек.
Дополнительные функции
Важна не только эстетическая, но и практическая сторона домика: игрушки надо где-то хранить, необходимо убирать принадлежности, что-то прятать. Можно сделать дополнительные встроенные ящики в верхнем или нижнем ярусе. Это уместно, если дом большой, занимает значительное место в жилом помещении.
Ящики также делают из фанеры.
В чертеже предусматривают место под хранение вещей. Из фанеры вырезают стороны ящика, склеивают их. Прикручивают ручку, вставляют в отдел.
Можно сделать откидную дверку как на фото. Для этого вырезанное полотно прикручивают на петельки из металла.
Заключение
Домик для игрушек из фанеры, сделанный своими руками, станет хорошим подарком для любого ребенка.
Процесс строительства займет 2–3 дня с учетом составления заготовок, их вырезания, сушки клея. Оформлять помещения ребенок может самостоятельно.
Источник: https://derevo-s.ru/obustrojstvo/mebel/kukolnyj-domik-iz-fanery
Как построить дом из фанеры своими руками
Фанера любого вида — очень достойный, универсальный строительный материал.
Если Вы владеете немного столярным инструментом в виде лобзика, ножовки и наждачной бумаги и решили построить дом из фанеры, результат вас порадует.
Давайте мы также рассмотрим подробнее информацию про виды и производство этого материала, применяемые для него инструменты, чтобы лучше понять весь процесс строительства.
Производство фанеры
Производство фанеры
Что включает в себя работа по производству фанеры? Конечно, это изначальная заготовка древесины, обработка теплом, роспуск на шпон, его прессование и нарезка по нужному размеру.
Кроме того, при обработке фанеры проводится её шлифование, обработка специальными реагентами, упаковка в специальную тару. Существует несколько способов изготовления этого материала:
- элементарное распиливание дерева,
- строгание имеющиеся заготовки,
- склеивание шпона, который снимается небольшим слоем (лущёная фанера).
В России производство фанеры берёт начало с конца девятнадцатого века.
Ранее этот строительный материал использовали практически во всех отраслях производства, начиная от производства инструментов для музыкантов, заканчивая строительством самолётов.
И круг использования этого материала с каждым годом увеличивался. Наша страна находится в числе лидеров по выпуску высокотехнологичной фанеры, в том числе, благодаря богатству древесины и развитому производству.
Виды фанеры
Сейчас мы рассмотрим такие виды фанеры:
- Ламинированная,
- Влагостойкая,
- Строительная,
- ДВП
Ламинированная фанера
Ламинированная фанера
Ламинированная фанера — это строительный материал, который занимает одно из передовых мест в списке строительных материалов, используемых при строительстве домов. Своей популярности этот вид обязан наличию слоя ламината, который наносится на листы фанеры. Данный тип производят из лиственницы, берёзы и других пород древесин. Плюсами ламинированной фанеры являются влагостойкость, ударопрочность, лёгкость в ухаживании.
Влагостойкая фанера
Влагостойкая фанера
Влагостойкая фанера изготавливается путём склеивания специальным клеем, изготовленным с использованием смолы. Данный вид используется для внутренних отделочных работ. В России также производят влагостойкую фанеру с повышенным уровнем влагостойкости. Фактически, она отличается от первого вида фанеры использованием клея, основой которого является другая смола.
Её особенностью является возможность применения не только внутри помещения, но и снаружи.
Строительная фанера
Строительная фанера
Строительная фанера незаменима именно в строительстве. Под строительством понимается возведение различных конструкций с помощью фанеры, будь это потолок, пол, стена и прочее. Как правило, фанера является черновым материалом, обозначающим вид и форму конструкции, затем она подвергается более чистой отделке.
Такая фанера имеет большую толщину, чем другие её виды, для придания ей необходимой жёсткости и надёжности.
Фанера ДВП
Фанера ДВП
Аббревиатура ДВП означает «древесноволокнистые плиты». Этот строительный материал получают в ходе горячего прессования и последующей просушки волокон дерева. В деревообрабатывающем производстве образуется достаточно большое количество отходов древесины, которых измельчают и получают волокнистую массу, из которой и готовят ДВП. В зависимости от того, от какого дерева использовались отходы, материал и получает свой определенный цвет.
ДВП очень распространённый строительный материал, его поверхность гладкая и прочная, в то же время обладает необходимой гибкостью.
Приведем в пример список преимуществ материала:
- хорошо поддаётся распилу,
- благодаря небольшому весу его не сложно крепить к полу и стенам,
- обладает хорошей звукоизоляцией.
Резка фанеры
Резка фанеры
Всем понятно, что фанера продаётся в стандартных размерах, а для работы необходимы её элементы в самых разных формах, и не только прямоугольных. Поэтому человек, использующий этот материал, должен знать, как и чем прямоугольному стандартному листу придать нужную форму.
Самый простой способ — произвести необходимые замеры на месте стройки, посетить столярную мастерскую и заказать нужные фанерные фигуры. Однако данный способ, естественно, потребует дополнительных финансовых затрат, кроме того, он не в полной мере соответствует поставленной задаче, если строить дом своими руками.
Укладка фанеры
Укладка фанеры
Укладка фанеры на пол имеет несколько своих нюансов.
В зависимости от того, на деревянный или бетонный пол происходит укладка, определяется и толщина материала. При укладке фанеры на деревянный пол, дефекты которого скрываются, достаточно приобрести фанеру толщиной около 10-12 мм. Незначительные перепады в уровне расположения досок будут прекрасно скрыты и не будут заметны.
При укладке фанеры на бетонное основание предварительно укладываются лаги, проводится их выравнивание под нуль. В таком случае толщина фанеры должна быть не менее 15 мм, чтобы обеспечить соблюдение нагрузки и отсутствие прогиба.
Лобзик для фанеры
Лобзик для фанеры
В строительстве для придания фанере необходимой формы используют электрорубанок, на который ставят полотно с мелким зубом. После распила лобзиком края фигуры можно дополнительно обработать наждачкой. Вместе с тем, лобзиком практически невозможно выполнить криволинейные фигуры, для этого используют циркулярную плиту.
Домик из фанеры
Домик из фанеры
Вы планируете построить дом для себя или детей? Каждый из нас в детстве строил шалаш, и вы знаете, что ваш ребёнок будет в восторге, если у него будет свой маленький домик для игр.
Конечно, лучше применить качественную фанеру. Начиная строительство, следует составить чертежи будущего дома.
Если строительство происходит для ребенка, то домик лучше строить в детской комнате или рядом с нею, чтобы ребёнок мог находиться под контролем.
Определяясь с толщиной материала, необходимо учитывать нагрузку на фанеру, не допуская её предельно возможный перегиб. При достаточности финансовых средств, можно приобрести и ламинированный тип, который имеет более эстетичный вид и не требует покраски.
После подготовки материала, делаем разметку на листах фанеры, чертим окна и дверь. Планируя размещение окон, необходимо стремиться к их большему размеру, чтобы в доме было светло. Высота дверного проёма должна превышать рост.
Если необходимые линии размечены, можно переходить к выпиливанию заготовок.
Как только стены дома собраны, можно переходить к устройству крыши. Устанавливая эту часть, необходимо соблюсти определённый угол наклона, исключающий возможность нахождения на ней детей.
Если при строительстве использовалась неламинированная фанера, то дом лучше покрасить, придав ему весёлый, привлекательный вид.
Еще несколько советов
Чтобы защитить изделия из фанеры от коробления, протрите ее предварительно 3 раза горячей олифой. Или можно положить ее (если это небольшие изделия) в предварительно нагретую олифу на сутки. После этого фанеру вытрите и просушите примерно за 12 дней.
В процессе распиловки фанеры ее поверхность скалывается. Для того, чтобы ее края в итоге получились гладкими, смочите лист горячей водой по линии распила.
(Еще нет оценок) Loading…
Источник: http://mybuilding.tips/kak-postroit-dom-iz-fanery-svoimi-rukami/
Как сделать домик из фанеры своими руками
Среди множества строительных материалов, которые представлены на строительном рынке, есть универсальные. Их можно использовать на любой стадии работ.
К таким материалам относится фанера. Ее применяют для устройства фундамента, обшивки каркасного дома, мебели любой сложности и назначения. Кроме того, с фанерой легко работать, большинство изделий из нее можно сделать своими руками.
Фанера довольно прочна и долговечна, поэтому дом, построенный из нее, служит долгие годы.
Ее листы можно применять не только для большого и полноценного строительства. Например, маленький дачный дом или домик из фанеры своими руками для игрушек ребенка. Совместное строительство с малышом не займет много времени, но окажется очень полезным.
Кукольный домик из фанеры
Ребенок будет счастлив, если у его игрушек появится красивый дом. Остается только определиться с материалом для его изготовления и технологией, как сделать домик. Наиболее для этих целей подходит фанера, толщина листа которой не более 15 мм.
Чтобы построить домик из фанеры, необходимо иметь следующие инструменты и материалы:
- лист фанеры;декоративные гвоздики с маленькой шляпкой;молоток;герметик;электрический лобзик или пила с мелкими зубцами;линейка и карандаш.
Для сборки фанерного домика используются отделочные гвозди и молоток.
Для начала необходимо на бумаге начертить детали будущего дома. Чтобы идеально все элементы будущего домика подходили друг другу, можно сделать модель из картона.При изготовлении образца возможны изменения. Когда подгонка окончена, можно выполнять раскрой фанерного листа.
Контуры окончательных деталей обводят карандашом и выпиливают лобзиком. Заусенцы или мелкие зазубрины, которые могли образоваться в результате разреза, можно сравнять наждачной бумагой. После этого приступают к сборке.
Скрепление деталей можно выполнить декоративными гвоздиками с маленькими шляпками. Как альтернатива им подойдет клей для деревянных поверхностей. Если применяются клеевые смеси, то необходимо дождаться полного их застывания.
Когда сборка окончена, то домик внимательно осматривают. При наличии больших зазоров, используя строительный пистолет и герметик, заполняют их. Излишки удаляют сразу, не дожидаясь застывания.
После того как герметик застыл окончательно, можно приступать к окрашиванию домика. Для этого подойдут любые типы красок, которые есть в наличии.
Использовать можно любое сочетание цветов. Далее происходит внутреннее обустройство домика: наклеивание обоев, изготовление мебели. По окончании отделочных работ домик из фанеры считается готовым.
Дачный домик: особенности
Дачный дом, если в нем планируется не жить постоянно, а использовать только в весенне-летний сезон, не является большим по размерам. Поэтому самым простым и доступным материалом для этого строительства являются фанерные листы.
Схема дачного домика.
Перед тем как сделать домик, необходимо подготовить материалы и инструменты:
- бетонные фундаментные блоки;цемент, песок, мелкий щебень;брус 150х150 мм;доска 50х150 мм;фанера 2-х типоразмеров: 9 мм и 12 мм;клей;гидроизоляционный и пароизоляционный материал;антисептические растворы;легкий кровельный материал;утеплительные маты;саморезы, шурупы, анкерные болты;электрический или аккумуляторный шуруповерт;электрический лобзик или пилка.

Так как дом будет выстроен по каркасной технологии, фундамент тяжелой, громоздкой конструкции делать нет необходимости. Для дачного домика более всего подходят фундаментные блоки. Их установить можно при помощи крана или вручную, используя систему рычагов и лебедки.
Устанавливать блоки необходимо в заранее выкопанную траншею глубиной 20 см. Для обеспечения гидроизоляции в траншею укладывается подушка из песка и щебня, слои которых утрамбовываются. Чтобы эти материалы лежали плотнее в траншее, песок и щебень в процессе трамбовки поливают водой.
Схема опорных стоек дачного домика.
Далее укладывают блоки. Образовавшееся пространство между блоками можно заполнить бетонным раствором. Он делается из песка, цемента и мелкого щебня в пропорции 1:3:2 соответственно.
После установки фундаментных блоков выполняют бетонную стяжку всего пола. Это будет черновым половым покрытием, а также предотвратит попадание растительности внутрь домика. Бетонная стяжка выполняется раствором, который делается аналогично, как и для фундаментного заполнения.![]()
После того как стяжка застыла, можно продолжать строительство. Выполнение обвязки делают брусом, который укладывают поверх фундамента. Блоки при этом должны быть накрыты гидроизоляционным материалом.
Для этого подходит рубероид. Бруски обвязки крепят анкерными болтами, предварительно отрезав нужный размер. Соединяются они между собой длинными саморезами.
Каркас стен выполняют из досок.
Монтаж блока стены можно делать в горизонтальном положении, а затем блоки устанавливать и закреплять. Отрезают необходимый размер досок и скрепляют между собой саморезами или шурупами. Размер такого блока примерно составляет 60х2500 см.
Схема сборки стен каркасного дома.
Когда блоки собираются, необходимо учитывать расположение окон и двери.
Поэтому блоки с этими элементами выполняются согласно размерам окон и двери. Чтобы каркасный блок обладал дополнительной жесткостью, прикручивают поперечные доски. После того как все блоки сложены, их последовательно поднимают и скрепляют между собой.
Сцепку делают при помощи скоб или длинных саморезов. Все блоки должны выставляться строго по уровню. Для их фиксации используют укосины, которые впоследствии будут удалены.
После этого выполняют обшивку стен фанерой.
При этом нужно следить за тем, чтобы оконные и дверной проемы не были закрыты. Фанеру закрепляют саморезами при помощи шуруповерта. Когда весь дом обшит фанерой, укосины можно убирать.
На фанеру изнутри закрепляют гидроизоляционную пленку.
При этом ее крепят как на бруски, так и на фанеру. Закрепление происходит при помощи степлера. Материал укладывается внахлест, стыки при этом желательно проклеить дополнительно скотчем.
Продолжение процесса: практические рекомендации
Процесс утепления стен дачного домика.
После этого укладывается утеплитель между досками. Его закрепляют при помощи специальных гвоздей с большими шляпками. Это позволяет ему не скатываться вниз в результате эксплуатации.
Поверх уложенных утеплительных матов крепят еще слой пароизоляции, пристреливая его строительным степлером на скобы.
Поверх прикручивают фанерные листы на саморезы, используя шуруповерт. Для внутренней обшивки подойдет невлагостойкая фанера 9 мм.
Пол укладывают на лаги. Они закреплены в нижней обвязке.
Между лагами крепят поперечины, которые позволят полу не прогибаться и сделают его жестким. Если пол планируется делать теплым, то его устройство мало будет отличаться от стенового. То есть на обрешетку пола между лагами укладывают вырезанные по размеру листы фанеры.
Полученную конструкцию накрывают гидроизоляционной пленкой, которую внахлест закрепляют скобами строительным степлером.
После этого укладывают утеплительные маты, которые разрезают по размеру. Поверх идет слой пароизоляции, закрепленный скобами. На него укладывается половая фанера.
Это будет чистовой пол. На него можно укладывать отделочное половое покрытие, например, линолеум, ламинат, паркетную доску. Чтобы пол был еще прочнее, можно уложить фанеру в 2 слоя, при этом стыки фанерных листов не должны пересекаться.
Завершение: обустройство кровли и потолка
Для строительства крыши в качестве стропил используют брус.
Схема кровли каркасного домика.
Его следует закрепить скобами к верхней обвязке. Для жесткости можно использовать укосины.
Стропила должны устанавливаться строго по уровню, иначе крыша будет перекошена. После того как они установлены, выполняют обрешетку. Ее можно делать досками низкого качества.
Эта обрешетка придаст требуемой жесткости конструкции. После этого прикручивают на саморезы листы фанеры. Поверх нее кладут гидроизоляционный материал, который защитит ее от влаги.
Таким материалом может быть рубероид. Его укладывают в 2 слоя, стыки между слоями не пересекаются. Это обеспечит дополнительную защиту.
На рубероид укладывают легкий кровельный материал, например, битумную черепицу. Ее монтаж достаточно прост при хороших эксплуатационных характеристиках. После этого обшивают фронтон домика.
Потолок выполняют путем обшивки балок фанерой. Балки расположены в верхней обвязке и закреплены скобами.
Расстояние между балками 60 см. Это позволяет использовать рулонный утеплитель и надежно закрепить фанерные листы. К балкам на саморезы закрепляют фанеру.
На нее раскатывают утеплитель.
Поверх него кладут слой гидроизоляции. Поверх него фанерные листы. Листы должны располагаться в шахматном порядке, чтобы стыки снизу и сверху не совпадали и не происходило постепенного разрушения утеплительного материала.
У всех маленьких девочек есть любимая кукла. А как же хочется иметь домик для своей Барби: производители игрушек предлагают самые разные игрушечные апартаменты на любой вкус. Но стоимость таких домов для многих непозволительная, и это основной недостаток готовых макетов.
К тому же, в большинстве случаев дома пластиковые, сломать хрупкие крепления или части которых труда не составляет и ребенок тут же приходит в расстройство.
Чтобы исполнить мечту ребенка о собственном домике для любимой куклы, не обязательно идти в магазин – можно сделать свой коттедж из фанеры по индивидуальному проекту и придать ему желаемый внешний вид.
Аргументы в пользу самостоятельного изготовления
Почему следует построить самодельный кукольный домик из фанеры:
- Индивидуальный проект. Дом получится именно таким, какой нужен девочке – планировка, дизайн комнат, форма окон. Особняк точно будет уникальным.Совместная работа с ребенком помогает укрепить семейный контакт, способствует совместному времяпровождению родителей и детей, чего так не хватает в современном мире.
- Развитие творческих способностей и навыков сборки у девочек и мальчиков. А это способствует развитию моторики, приобретению нового опыта.Возможность создать дом любого размера – настольный или в полный рост, габариты ограничены желанием ребенка и свободной площадью в жилом помещении.
Почему фанера
Кукольный домик своими руками можно сделать из разных материалов, но лучшим вариантом станет сборка из фанеры. Почему:
- Использование фанеры для строительства обеспечивает прочность будущего дома – при хорошем креплении детали не разваливаются и не отламываются даже при самых бурных шалостях.
Фанера легко обрабатывается обычными инструментами, которые есть в арсенале у любого мужчины.Деревянные игрушки приятны на ощупь – материал всегда теплый.Эстетичный внешний вид дерева позволит обойтись без дополнительного оформления и дизайна поверхностей.Низкая стоимость фанеры не ударит по карману в отличии от готового покупного дома.На что обратить внимание
Для производства фанеры используют формальдегиды – они входят в состав пропиточного клея для соединения волокон. Чтобы избежать отравления и попадания опасного материала в детскую комнату, обращайте внимание на маркировку листов:
- Е0 – менее 6 мг формальдегида на 100 гр. изделия;Е1 – 7…9 мг/100 гр.;Е2 – 10…20 мг/100 гр.
Мебель и её составляющие должны выполняться из самого безопасного класса фанеры – Е0.
Принимаемся за работу
Изготовление дома для кукол из фанеры – многоэтапный процесс. Чтобы все получилось, надо соблюдать определенную последовательность действий. Чтобы облегчить рабочий процесс, ниже приведена пошаговая инструкция, своеобразный мастер-класс по сборке дома из фанеры своими руками.
Этап 1. Готовим эскиз
Домик для кукол своими руками начинается с составления схемы, которая отображает планировку, размеры этажей в дину, ширину и высоту.
Если возникли затруднения, можно попробовать найти приблизительно желаемый вариант в интернете и внести в него коррективы. На фото представлены некоторые схемы, которые станут основой для сборки игрушечного жилища.
Самое важно в составлении схемы – соблюдение пропорций размеров в масштабе на тот случай, если в процессе работы габариты изделия захочется изменить (увеличить или уменьшить).
Дизайн можно продумать заранее, чтобы приобрести и подготовить необходимые материалы для декора или сочинить убранство в ходе мини-строительства из подручных средств.
Этап 2. Подготовка принадлежностей и инструмента
Для сборки основной коробки и ее составляющих потребуется:
Для оформления декора домика понадобятся:
- Клей ПВА или силикатный;Обои, цветные пленки;Самоклеящаяся пленка на пол домика для имитации напольного покрытия;Цветной картон или бумага для оформления отдельных элементов помещений по желанию.

Этап 3. Перенос изображения
Чтобы собрать деревянные части в единое целое, их необходимо вырезать из листа-заготовки. Для этого эскизы в масштабе переносят на бумагу, из которой вырезают готовые части и в дальнейшем используют как шаблон.
Если на схемах окна не обозначены, при переносе выкроек их сразу прорисовывают. На домике плоского вида без передней стенки разрезы под окна не нужны.
Этап 4. Вырезаем и собираем
Далее о том, как сделать кукольный домик:
- Электрическим лобзиком вырезаем перенесенные на фанеру детали. Старайтесь делать это аккуратно, не выходя за линии контуров – при ошибке конструкции могут соединиться неправильно.Ошкуриваем края, чтобы сделать детали безопасными для ребенка и избежать риск травмирования.
Вырезание и обработку краев мастер должен выполнять самостоятельно, детский труд на этих этапах стоит допускать только в случае полного контроля со стороны взрослых.
Сборка дома начинается с объединения внутреннего пространства.
К вертикальным торцевым стенам с помощью клея и монтажного скотча фиксируем перекрытия и внутренние перегородки согласно схеме в логическом порядке. Чтобы усилить соединение, внутренние углы можно проклеить тонкими реечками, которые придадут жесткость конструкции. На этом этапе может быть задействован ребенок.Лестничные пролеты выполним из деревянных линеек: поставим их в виде горок или разрежем одну и склеим из нее настоящую лестницу.
- Прикрепляем заднюю стенку.Собираем крышу. Из картона можно вырезать цельные скаты и склеить их или собрать кровлю из отдельных кусочков в виде черепицы.
Готовый остов дома оставляем на сутки-двое, пока просохнет клей и конструкции приобретут достаточную прочность.
После процесса сборки начинается следующий, более интересный для девочек этап – оформление помещений.
Этап 5. Дизайн
Готовый каркас теперь можно украсить и обставить кукольными принадлежности. Этот этап единственный, инструкции к которому не требуются.
Можно дать несколько рекомендаций:
Пол оставить как есть или украсить – спросите у ребенка. Фанера сама по себе имеет рисунок дерева, потому покрывать ее аналогичным орнаментом нецелесообразно.Если ребенок желает сделать распашные окна и двери, не стоит отказывать ему в этом. Приделать обратно вырезанные фрагменты можно несколькими способами: приладить полотна на куски картона или воспользоваться маленькими металлическими дверными петлями.
Так же проходы можно перекрыть маленькими тканевыми отрезами – шторками. Окна можно заменить картонными ставнями.Потолок, как и пол, можно обклеить цветными пленками, обоями или просто разрисовать: полет фантазии не ограничен. То же со стенами – кусочки обоев, вырезанные персонажи из детских журналов, рисование красками и карандашами.В комнаты расставляем мебель для игрушек.
Дом заселяем любимыми детскими персонажами. Кукольный домик готов.
Для девочек важна не только эстетическая, но и практическая сторона окружающего пространства: игрушки надо где-то хранить, убирать принадлежности, что-то прятать.
Потому можно использовать свободное время и сделать дополнительные встроенные ящики в верхний или нижний ярус. Это уместно, если дом большой и занимает значительное место в жилом помещении.
Ящики могут делаться из той же фанеры, что основной каркас дома.
Для этого в чертеже нужно сразу предусмотреть место под отдел хранения вещичек.Из фанеры вырезаем стороны ящика и склеиваем их. Прикручиваем ручку и вставляем в отдел.Можно сделать откидную дверку как на фото ниже. В этом процессе так же нет ничего сложного: вырезанное полотно прикручиваем на петельки из металла.
Подведем итоги
Зачем просто хотеть, когда можно пойти и сделать? Домик для игрушек из фанеры, сделанный своими руками, станет лучшим подарком для любого ребенка. Кукольный особняк или многоуровневая парковка для машинок – мальчики и девочки точно будут рады новой уникальной игрушке.
Весь процесс строительства займет 2-3 для с учетом составления заготовок, их вырезания и сушки клея.
Дизайном ребенок с удовольствием займется сам – вот и увлекательное развивающее занятие.
Стоимость фанеры невысока по сравнению с готовым кукольным домом, а прочность готовой конструкции значительно выше пластикового аналога.
Включайте фантазию, осуществляйте свои детские мечты и желания своих детей!
Поделка – домик своими руками – порадует любого ребенка. На работу уйдет всего пара дней, а в качестве материала можно использовать фанеру, ОСБ, поддоны или обычные доски.Подробные пошаговые инструкции и чертежи помогут разобраться в процессе даже далекому от строительства человеку.
Выбор материала
Развивающий домик можно выполнить самых разнообразных материалов, и окончательный выбор лучше делать самостоятельно, изучив достоинства и недостатки каждого из них.
Наиболее часто используемые бюджетные варианты:
Также можно построить домик из ОСБ, деревянных досок или ДСП.
Фанера
Фанера — оптимальный выбор, потому что:
- она прочна, и после обработки специальными пропитками способна выдерживать неблагоприятные воздействия окружающей среды (осадки, перепады температур, насекомых)доступна – домик из фанеры своими руками обойдется дешевле сделанного из многих прочих материаловвыглядит эстетичнообладает низкой теплопроводностью, благодаря чему в садовом домике ребенку будет тепло и уютно
Кроме того, работать с фанерой просто: ее можно без усилий распилить, просверлить, покрасить.
Единственный недостаток – токсичность клея, используемого для соединения пластов шпона вместе. При покупке нужно изучать характеристики товара: на фанере должна стоять маркировка Е0 – в таком материале содержится минимальное количество формальдегидов, и продукт считается экологически безопасным.
Поддоны
Сделанный из поддонов домик может стать любимым местом для игр ребенка, однако при подборе материала нужно быть внимательным.
Нельзя использовать:
- поддоны, на которых стоит маркировка IPPC, – для их обработки используются вредные химические вещества, провоцирующие развитие различных болезней;паллеты, бывшие в употреблении на рынках, – после длительной эксплуатации на отрытом воздухе деревянные конструкции, необработанные защитными средствами, могут стать непрочными, и постройка скоро придет в негодность;поддоны, выкрашенные в яркие цвета, – поручиться за качество и безопасность краски невозможно, и лучше не рисковать здоровьем ребенка.

Детский деревянный домик своими руками нужно строить, используя качественный материал без видимых повреждений: трещин, следов гниения, плесени или остатков краски.
Определение размеров
Домик из дерева на дачном участке может иметь любые размеры, и ориентироваться нужно на возраст ребенка. Однако возводить совсем небольшое строение неразумно – через пару лет подросшему ребенку станет в нем тесно.
Оптимальные параметры долговечной избушки из подручных материалов: высота – 2 м; ширина – 2,5 м, длина – 2 м. Внутри такой постройки можно организовать полноценное место для игр: расставить детскую мебель, разместить игрушки.
Сооружение домика из фанеры
Для поделки (домика своими руками) потребуется сначала соорудить каркас, а уже затем обшить его листами фанеры. По этой же технологии можно сделать домик из ОСБ или ДСП.
Размеры будущего строения: длина и ширина – 2 и 3 м, высота стен 1,5 м, в коньке высота домика – 2,2 м.
Чертежи можно выполнить самостоятельно или воспользоваться уже готовыми.
Материалы инструменты
Нужно подготовить:
- для каркаса – доски 5×10 смдля чернового пола – доски 1,2×10 смдля чистового пола и обшивки внешних стен – ОСБ толщиной 9 ммдля внутренней обшивки – фанеру 6 мм (шлифованную)
Чтобы домиком можно было пользоваться не только в летнее время, но и когда похолодает, его рекомендуется утеплить. Для этого можно использовать пенопласт толщиной 10 см. Дополнительно могут потребоваться стекла, рейки и дверца.
Для обработки и отделки деревянного домика, построенного своими руками, нужно будет запастись:
- антикоррозийной и противогрибковой пропиткамиантипиреномакриловой краской желаемого цветалаком на водной основе
Сборка основания
Перед тем как сделать домик, нужно подготовить основание будущего строения:
- Из досок сбивают прямоугольник, стороны которого равны 2 и 3 м.К нему прибивают поперечные доски, которые будут служить лагами пола.
Располагать их нужно на расстоянии 50 см друг от друга.Сверху прямоугольник обшивают тонкими планками – они будут поддерживать утеплитель снизу.Теперь конструкцию переворачивают и кладут в ячейки пенопласт. Щели, оставшиеся между утеплителем и досками, заделывают монтажной пеной.Когда этот этап завершен, конструкцию приставляют к стене и начинают закрывать пенопласт доской для чернового пола.На черновой пол крепят ОСБ.Важно! Между черновым полом и полом из ОСБ должен быть технический зазор размером около 1 см. Если крепить листы вплотную, они могут со временем деформироваться при изменении влажности и температуры воздуха.
Вам будет интересно: Какую мебель можно сделать из поддонов
Монтаж каркаса
Руководствуясь своим чертежом, собирают каркас стен. Для этого используют доски 5×10 см.
Стойки должны располагаться на расстоянии 1 м, в местах, где планируется установка входной двери и окон, стойки должны быть двойными.
Поскольку в качестве обшивки выбрана фанера и ОСБ, то готовая конструкция будет иметь достаточную прочность, и потому наклонные подпорки ставить не нужно.
Они могут потребоваться, если вместо листового материала будут использованы рейки или вагонка.
Устройство фундамента
Фундамент можно сделать своими руками из подручных материалов. К примеру, подойдут старые бревна: их нужно будет обтесать, подровнять и покрыть защитными пропитками.
Подготовленные бревна располагают параллельно на равном друг от друга расстоянии. Сверху прибивают доски. На эту конструкцию помещают уже готовое основание.
Основание крепят к фундаменту, используя металлические скобы.
Следующий шаг – выставление стен. Они должны быть расположены строго вертикально. Для облегчения работы можно сделать временные укосы.
Придав стене нужное положение, ее прибивают к основанию с помощью длинных гвоздей.
Устройство крыши
Сначала монтируют конек – прибивают по центру сооружения доску, она будет формировать скат.
Используя электролобзик, в досках проделывают угловые срезы под стропильные ноги. Сперва делают предварительные углы, затем прикладывают к конструкции и помечают точное место спила.
Сделав одну плотно прилегающую заготовку, переносят форму запила на другие доски, используя карандаш.
Подготовленные доски прибивают к каркасу. Между ними устанавливают поперечные доски. Для обшивки крыши используют тонкие деревянные доски.
Или такой вариант
Обшивка
Домик почти готов – осталось лишь обшить его снаружи и внутри.
Раскраивают листовой материал (фанеру или ОСБ) с таким расчетом, чтобы стыки плит были на стойках. Для фиксации фанеры можно использовать гвозди или саморезы.
Все деревянные элементы обрабатывают защитными средствами. К покраске и нанесению лака приступают только после того, как они просохли. Если проигнорировать этот пункт, домик из дерева быстро придет в негодность – на нем начнет развиваться плесень, будет испорчен насекомыми, начнет гнить.
Строительство домика из поддонов
Дачный домик из поддонов для детей хорош тем, что при порче какого-то отдельного элемента не нужно будет разбирать всю конструкцию – достаточно будет просто заменить прогнившую часть на аналогичную.
Вам будет интересно: Садовая скамейка своими руками для дачи
Материалы и инструменты
Потребуются:
- поддоныДСПметаллическая щетканаждачная крупнозернистая бумага или шлифмашинкагвоздодер, пиладрельмолотокакриловые краскигвозди, саморезыстолярный клейрубероидлак на водной основекисти
Также желательно подготовить полиэтиленовую пленку – ею нужно будет накрывать сооружение в процессе строительства, чтобы защитить от возможного дождя.
Подготовка материала
Поддоны с помощью жесткой щетки очищают от грязи, а затем разбирают на поперечные доски (они будут использоваться для каркаса) и тонкие (для обшивки стен). Проще всего проводить эту операцию с помощью гвоздодера и пилы.
Все доски тщательно обрабатывают крупнозернистой наждачной бумагой или шлифовальной машинкой.
Сборка домика
Порядок работ:
В качестве фундамента можно использовать кирпичи или камни.Из поперечных досок от поддонов сколачивают основание.
Укладывают лаги.Настилают на лаги тонкие доски от поддона. Для обустройства пола можно использовать не доски, а ДСП.Из поперечных досок, сколоченных вместе, собирают каркас домика.Устанавливают конек.
Подробнее процесс описан в руководстве по сборке домика из фанеры.Готовый каркас обшивают тонкими досками. Для крепления используют гвозди или саморезы по дереву.Используя пилу, обрезают торчащие доски.На крыше укладывают ДСП, затем покрывают рубероидом. Для финишной отделки можно использовать металлочерепицу или любой другой материал.
Детский домик из поддонов почти готов – осталось вставить окна и покрасить его.
Сборка окна
Если конструкция более основательная, то можно и вставить окна.
Окна также делают из дерева своими руками. Для этого берут доску поддона, пропиливают по центру канавку, после чего одну из частей скалывают. Можно сделать заготовку и по-другому: сточить лишнюю древесину рубанком.
Для одного окна потребуются 4 заготовки.
Каждую подготовленную доску с обоих концов спиливают под углом 45 °, после чего собирают вместе, промазав столярным клеем и стянув саморезами.
Когда окна и двери вставлены, все деревянные элементы конструкции сначала обрабатывают защитными пропитками, а когда они просохнут – окрашивают в желаемый цвет.
Ознакомившись с процессом создания детского домика, можно приступать к реализации проекта. Такая затея потребует минимальных финансовых вложений, зато ребенок будет счастлив и сможет играть на свежем воздухе.
Источники:
- dekormyhome.ru
- derevo-s.ru
- 1pomebeli.ru
Как сделать детский домик для игр из фанеры и бруса своими руками | by Anastasia Singaevskaya
Строить детский домик для игр увлекательнейшее занятие. На некоторых этапах нашего строительства можно было остановиться, но в нас было слишко много идей и желания попробовать что-то новое.
В итоге, у меня собралась небольшая коллекция проектов для детских домиков с разной степенью здавого смысла и затрат на ресурсы. Своими наработками поделюсь в следующей статье, а пока на примере нашего домика покажу как сделать каркас.
Мне повезло, что мой отец поддержал мою идею и помог её осуществить, поэтому очень советую мастерить домик с кем-нибудь
с опытом подобной работы. В остальном, если у вас руки на месте, то за пару дней можно вполне виртуозно освоить электролобзик, шлифовальную машинку, дрель и шуруповёрт.
Содержание:
Прототип (задачи, идеи, поиск формы)
Подготовка (чертёж, смета)
Основание. Часть 1 (подготовка досок)
Каркас (пол, стены)
Основание. Часть 2 (скрепляем доски)
Крыша
Отделочные работы (сшиваем конструкцию изнутри, ставим двери и перегодки, далее облицовка, шпаклёвка, покраска)
Уют
Перед тем как приступить к чертежам вашего идеального домика, нужно понять что должен представлять собой домик.
Для этого стоит определить задачи и набрасать идеи, пусть даже сумасшедшие.
Задачи
Для начала выписивыем функции, которые должен выполнять домик:
- Быть домиком, то есть с которым можно играть в дом (принимать гостей, ухоживать за растениями, следить за порядком)
- Место, где удобно на свежем воздухе рисовать, лепить, плести и тд
- Активные игры (где можно полазить, повисеть, побегать).
Идеи
Затем мы набрасывали идеи, как должен выглядеть наш идеальный домик, вот что получилось:
- Там должна быть кухонька, чтобы домик был похож на домик))
- Должен быть большой стол и чтобы вокруг было свободное пространство
- Балкончик, чтобы повесить растение
- Шведская стенка
- Большая доска для мела
- Гамак
Идей было много, думали и про горку, и про террасу и ещё много про что, по разным причинам не вошедшее в список must have для нашего идеального домика.
Поиск формы
Чаще всего самые интересные идеи появляются когда ты сталкиваешься с проблемой и ищешь её решение.
В нашем случае проблемой была дыра 1м² у половины фанерных листов что у нас были. Пришлось использовать одну из них в качестве стены (целых листов на тот момент не оставалось). В итоге это послужило тому, чтобы сделать гараж и небольшой второй этаж над ним.
Второй вход (гараж)Вход в гараж расположили напротив двери, чтобы можно было бегать через дом без препядствий. Но главное, на втором этаже расположить стол для рисования, чтобы он не крал слишком много места и не был припёрт к углу или стене.
Чтобы забираться на второй этаж, мы использовали крепежи для полок. Можно соорудить шведскую стенку, это будет проще.
Лестница на второй этажЧертёж
Когда появилось четкое представление внешнего вида домика, пора приступать к чертежам. Чтобы правильно расчитать все расстояния, а также иметь примерную смету для покупки всех материалов, хорошо иметь чертёжы 6 сторон по отдельности: 4 стены + вид сверху и снизу.
Мои чертежи скорее всего понятны только мне. Но зато с ними всё получилось.
Главное, чтобы вы сами себя понимали))
детский игровой домик для дачи своими руками
Увлечь ребенка самостоятельной игрой, причем на продолжительный срок – задача, прямо скажем, не простая, даже на свежем дачном воздухе. Но что же делать, если вам очень нужно освободить определенное время для очень важных дел, а бабушек, дедушек и гувернанток на горизонте не наблюдается? Выход есть!
Постройте детский игровой домик для дачи своими руками, и ваш маленький непоседа больше не будет грустить или висеть на маминой юбке, требуя поиграть с ним. Мини-домик станет очень удачным решением вопроса. Это будет одновременно и уютное место для забав, и пусть небольшое, но личное, детское пространство.
Виды детских домиков
«Двухуровневый дом – предел мечтаний»
Сложность и тип конструкции дачного развлекательного центра будет зависеть от буйства детской фантазии. Архитектура домика может быть любой. Ему можно придать простецкий вид одноэтажной коробки или выстроить как шедевр зодчества, с башенками, лесенками, мансардами и горками.
Двухэтажный домик- мечта любого ребенка
Естественно, размах строительства будет зависеть от размера свободной территории на дачном участке, но все же есть несколько проектов домиков для детишек, которые наиболее импонируют нашим сорванцам:
1. Для небольшой дачи лучше остановиться на строительстве домика в форме шалаша. В этой простейшей конструкции можно предусмотреть окошко, а внутри поставить скамеечки, чтобы детям было, где посидеть и куда посмотреть.
Детский домик-шалаш для небольших участков
Но гораздо больший восторг, по крайней мере, у мальчишек, вызовет такой же миниатюрный домик-палатка. Его экстерьер должен быть пропитан духом свободной жизни индейских племен, кочевников и Робинзонов. На постройку такого проекта понадобятся не только деревянные балки конструкции, а и ветки, ткань, камыш плюс другие природные материалы.
Детский домик-палатку не трудно сделать своими руками
2.
Дом Хоббита. Экранизация популярного романа очень ярко представила жизнь фэнтезийных лесных обитателей именуемых Хоббитами и теперь немало ребятишек не прочь пожить в аналогичных постройках странной округлой формы. Точное сходство с оригиналом не просто подарит кучу радости, но и параллельно растормошит детскую фантазию. И вот уже дачный сад трансформируется в мир Толкина, где просто некогда скучать.
Фантазийный детский домик хоббита
3. Дом-фрегат. Этот проект в равной степени заинтригует и юных корсаров, и будущих великих мореплавателей. Архитектура дома, в этом случае, будет аналогична внешнему виду корабля любого класса, хоть под парусами, хоть современной постройки.
Оригинальный дом-корабль
4. Наиболее простой вариант – «зеленый» дом. Он органично впишется в дизайн любого ландшафта. Для его сотворения нужно установить сетчатый каркас и пустить по нему ветви вьющихся и ползущих растений.
Внутри такого домика всегда будет прохладно и свежо.
Зеленый детский игровой домик
5. Избушка на опушке. По сравнению с остальными – это более монументальное строение. Его преимущества смогут оценить ребятишки школьного возраста. Аналог егерского домика – место для серьезных занятий: чтения книг, рисования или просто размышлений о тяготах и прелестях детской жизни.
Деревянный игровой домик для детей
6. Двухуровневый дом – предел мечтаний. Это не просто зона игры, это целая игровая страна. Нижний ярус стоит оставить под игровую комнату, оснастив его лавочками и столиком, а верхний отдать под зону отдыха, поставив там кровать или мини-диванчик. Возле дома такой конструкции просто просится разместиться спортивная площадка: с различными приспособлениями для попадания на второй этаж, канатами, горкой и качелями.
Двухэтажный детский домик с террасой и балконом
7.
Сказка на участке. Поставьте домик на опоры, а не на землю и задекорируйте их под курьи ножки. Жилище бабы Яги готово! Такой тип домиков тоже пользуется у детишек огромной популярностью.
Сказочный детский игровой домик
8. Отличным проектом для активных и спортивных детей будет домик, спрятанный в кроне дерева. Это очень необычная и занимательная конструкция, развивающая ребенка во многих аспектах, однако, отношение родителей к ее появлению неоднозначно, ввиду повышенной травмоопасности. К тому же, детский игровой домик для дачи, висящий в воздухе, своими руками сделать будет проблематично, потому что его надо очень надежно закрепить. Без помощи профессионалов качественно выполнить работу действительно сложно.
Детский игровой домик на дереве
к оглавлению ↑Определяемся с габаритами
Какого размера строить домик, в принципе, зависит от возраста малыша, однако, если сделать конструкцию слишком маленькой, то уже на следующий сезон появится необходимость ее реконструировать или вообще перестраивать, так что дайте запас изначально.
Размер игрового домика напрямую зависит от возраста детей
Высота долговечного домика определяется двумя метрами и это без учета крыши, так что для фасадной части нужно закупать листовую фанеру в 2,5метров. Не боковые стены хватит двухметровых листов в высоту, но здесь надо добавить ширину. Домика с габаритами 2х2,5 м будет достаточно, чтобы ребенок чувствовал себя внутри комфортно. В нем даже можно будет разместить нехитрую мебель и поселить игрушки.
План детского игрового домика
к оглавлению ↑Нюансы проектировки
Разрабатывая проект домика надо учесть несколько обязательных моментов. Размеры постройки и вид материалов для ее монтажа будут напрямую зависеть от того, планируется ли домик строить стационарно или выбор пал на мобильную версию.
Мобильный вариант детского домика
Следующим немаловажным параметром для этих же показателей станет сезонность конструкции.
Капитальный домик для круглогодичной эксплуатации будет отличаться от построек для игры летом. В нем надо остеклять оконца, утеплять стены, и возможно, даже предусмотреть установку обогревателя. Дверь, ведущая в такой дом, должна быть солидной, плотно закрываться. Может просидеть целый зимний день в своей обители ребенку и не удастся, но выпить чаю с дачными друзьями будет волне комфортно.
Утепленный детский игровой домик
В домике любой архитектурной формы непременно должны быть окна, причем как минимум два. Это не столько вопрос хорошего освещения, сколько возможность удаленного контроля над происходящим внутри. Располагать окна нужно на полуметровой от пола высоте.
Детский игровой домик с окнами
Двери делаются сантиметров на 20 выше нынешнего роста малыша. Но правильнее будет сделать их поболее, ведь вас наверняка позовут в гости и вы должны будете как-то войти в домишко.
Залогом детской безопасности станут гладкие стены, так что продумайте, из чего и как вам лучше их выводить. И ни под каким предлогом не делайте плоскую крышу, чтобы не провоцировать у ребенка желания взобраться на нее.
При строительстве детского домика лучше откажитесь от плоской крыши
к оглавлению ↑Материалы
После создания эскиза будущего творения дачного зодчества самое время заняться подборкой расходных материалов. А что вообще может использоваться в таких работах?
Пластик
Основные преимущества этого современного материала:
1. Его травматическая безопасность.
2. Легкость.
3. Гигиеничность.
4. Широкий цветовой спектр.
Практичный пластиковый детский игровой домик
Пластиковые дома часто продаются уже в готовом виде, так что если нет времени на сборку его самостоятельно, то можно приобрести готовый вариант.
Вид у него, правда, будет стандартный, но придать экзотичность идее можно дополнительным декором или необычно обустроив прилегающую территорию.
Готовый детский домик из платика
Фанера
Материал легкий, дешевый и отлично подходящий для постройки маленького детского игрового домика для дачи незатейливой конструкции своими руками.
Простой игровой домик из фанеры
Дерево
Это оптимальный вариант для дачного строительства. Благородный материал натурален, безопасен, нетоксичен, прочен и тяжел. Детям, даже при сильном старании, вряд ли удастся разнести конструкцию по бревнышку, а значит и об их безопасности при активных играх там, беспокоиться не придется. Если вы хотите сделать ребенку «подарок» на несколько последующих лет вперед, то дерево – это ваш материал.
Детский домик из натурального дерева
к оглавлению ↑Где вам стоит дом построить
«Зона установки домика не должна быть временной»
Задача выбора места под детский домик сложна.
Вам нужно исхитриться поставить его так, чтобы он оказался скрытым в тени деревьев и в то же время – остался на виду. Ребенок не должен пропадать из поля вашего зрения, так что ищите хорошо прогретую, без сквозняков, полянку перед домом в обрамлении крон деревьев.
Крона дерева убережет детей от прямых солнечных лучей
Зона установки домика не должна быть временной. Если это, конечно, не мобильный вариант, то ставить строение надо так, чтобы его не пришлось сносить в ближайшее время. Не планируйте его постройку на местах возможного пролегания садовых дорожек, будущих скважин или заезда в гараж. Просчитайте ситуацию на годы вперед и поставьте домик под теми деревьями, которые не придется корчевать в ближайшую осень.
Стационарный игровой домик в тени деревьев
к оглавлению ↑Строим детский игровой домик для дачи своими руками
Как только все будет готово к началу строительства, можно начинать и сам его процесс.![]()
Разметка стройплощадки
Безусловно, вы, занимаетесь возведением личного пространства малыша, но это не лишает вас права следить за его безопасностью в ходе игр, так что на просматриваемой площадке домик надо поставить так, чтобы вы могли видеть кроху через окошки или дверь.
Площадка для домика должна хорошо просматриваться
Оформлять домик надо ярко. Это приведет ребенка в восторг, ведь ему так нравятся сочные жизнерадостные цвета. А еще море счастья у вашего чада породит разрешение лично поучаствовать в процессе стройки, поэтому не гоните его из рабочей зоны.
Яркий игровой домик
Начинать работы надо с разметки присмотренной территории. Для этого у вас должна быть приготовлена веревка или бечевка и колышки. Оградите участок требуемой формы и приступайте к выравниванию почвы, оказавшейся внутри площадки и утрамбовке грунта на ней.
Разметка участка для детского домика
По углам приготовьте двадцати сантиметровые углубления. В них будут помещены брусья. Надземная часть их должна выступать на 15 см. Такого же размера углубления делаются и по центру всех сторон постройки. Туда также будут вкопаны направляющие брусья. На готовые опоры укладываются доски. Именно к ним вы затем будете крепить полноценные полы.
Строительство детского игрового домика
Стены
Вывести стены можно листами ДСП, закрепленными на восьми брусьях. Один конец брусьев надо заострить. К каждому фанерному листу с боковых сторон крепим по брусу, причем делаем это так, чтобы тупой конец находился вровень с нижней кромкой листа, а заостренный выступал за предел верхней. 1 лист с прикреплёнными двумя брусьями = 1 стенке. В такой заготовке можно сразу же выпилить дверной проем или окошко. Готовые стены нужно плотно прикрепить к полу, постоянно контролируя уровень ровности установки.
Между собой стены скрепляются уголками, посаженными на шурупы. В местах стыков не должно оставаться ни зазоров, ни щелей.
Возведение стен игрового домика
Ставим крышу
Тип крыши будет зависеть от архитектуры домика. Она может иметь пологие или высокие скаты. Для высокой крыши нужно будет заготовить четыре бруса. Концы каждого элемента обрезаются под острым, в 45о, углом.
Чертеж крыши для детского домика
Брусья крепятся попарно. Делается это так, чтобы внутренний угол на их пересечении получился прямым. Данное место требует дополнительного укрепления уголками. Готовые вехи станут несущими опорами кровли. Их расставляют по краям чердака и соединяют горизонтальной балкой. Готовый каркас фиксируется уголками к стенам.
В качестве кровельного материала могут выступить:
1. Шифер.
Крыша из шифера для детского домика
2.
Рейки.
Реечный игровой детский домик
3. Фанера.
Крыша из фанеры для детского домика
4. Ламинат.
Можно проявить фантазию и сделать кровлю похожей на черепичную. Для этого достаточно будет вырезать соответствующий узор на листе пенопласта и для пущей достоверности выкрасить его в подходящий теме, цвет.
Освещение
Игра в домике может затянуться до позднего вечера, поэтому не лишним будет обустроить его пространство искусственным освещением. Сделать это можно, проведя скрытую проводку и повесив в комнатке лампу в плафоне, или пустив по периметру потолка светодиодную ленту. Второй вариант более безопасен и экономичен.
Детский игровой домик с освещением
Наличие света очень порадует малыша, да и у зимнего типа домика появится возможность подключения электрокамина, который, кстати, в бревенчатом срубе можно встроить стационарно.
Строительный этап завершен. Осталось только сделать завершающие штрихи в декоре дома и благоустроить его. Обязательно позовите в помощь ребенка. Дайте ему кисти и краски – пусть творит! Особую прелесть придадут домику трафаретные росписи мультяшными героями.
Дети могут сами раскрасить свой игровой ломик
Процесс совершенствования домика может быть вечным. Со временем вы можете добавить к окошкам резные ставни и оформить их шторками, водрузить на крышу флюгер, сменить плоские балясины точеными и т.д.
Текстиль сделает детский домик уютнее
Внутри комнат всегда будет место для столика и стульев, небольшой кроватки. На их пощади даже удастся расположить мастерскую юного техника или кухню для маленькой хозяюшки. Перед домиком есть смысл обустроить веранду или крылечко, а над входом повесить резной козырек.
Детский домик с небольшой верандой
к оглавлению ↑Заключение
Надеемся, вы убедились в том, что детский игровой домик для дачи своими руками построить несложно и ненакладно, главное иметь желание сделать это.
И, как показывает практика, труды ваши не станут напрасными, потому что более любимого уголка на даче у ваших сорванцов не будет!
Фотогалерея – детский игровой домик для дачи своими руками
к оглавлению ↑Видео
Автор: Михаил Бонд
Рейтинг:
Загрузка…
Понравился пост? Поделись с друзьями!
Детский домик из фанеры своими руками по чертежам. Детские деревянные домики: варианты дизайна, проекты и этапы монтажа. Домик из картона своими руками: пошаговая инструкция
И эта покосая и непрочная хижина казалась вершиной совершенства и лучшим убежищем в мире. Но повзрослев, практически все родители задумываются об обустройстве прочного, комфортного, а главное — надежного дома для своего ребенка, особенно если это загородный дом или дачный участок.
А построить его довольно легко, нужно лишь обзавестись стройматериалами, продумать конструкцию и запастись терпением.
Сейчас в продаже есть различные готовые пластиковые домики, но самыми популярными были и остаются детские деревянные домики, которые можно сделать своими руками с учетом пожеланий малыша и с его посильной помощью. Совместно построенное здание станет настоящим пристанищем для ребенка, местом для игр, мечтаний или просто тихим уютным уголком, где можно спрятаться, посидеть, подумать или даже поплакать.Ведь каждому нужно свое личное пространство, и дети не исключение.
Домики ручной работы не только интереснее, оригинальнее и доступнее, но и несут в себе частичку любви и заботы родителей, поэтому ребенку в таком приюте будет особенно уютно и комфортно. А если к изготовлению постройки приложится еще и малыш, то радости его не будет границ. Игровые домики для детей можно создать из подручных средств, как правило, это фанера, листы ДСП или доски, а раскрасить естественные тона помогут яркие цвета.
Перед тем, как построить детский деревянный домик, необходимо изначально продумать будущую конструкцию, обращая внимание на следующие особенности:
- открытый или закрытый вид на дом;
- высота и площадь;
Чертеж детского домика из фанеры
- материалы необходимые для строительства;
- размещение — дом должен располагаться на сухом и солнечном участке сада, двора или дачи, в пределах видимости, кроме того, нужно учитывать, будет ли постройка касаться земли, так как изготовление наземная или приподнятая конструкция существенно отличается;
- количество окон и дверей, их размеры;
- добавление декоративных элементов в дом, горки, навесы, заборы, качели, лестницы или песочницы, как на фото;
- вид внутренней отделки.
По ходу этих размышлений лучше составить примерные рисунки, в которых будут учтены все пожелания родителей и самого ребенка. При разработке плана строительства необходимо учитывать, что:
- в доме должно быть не менее 2 окон, чтобы взрослые могли видеть играющих детей;
- для удобства нижняя граница окон должна быть на высоте примерно 50-60 сантиметров от пола дома;
- двери нужно оборудовать минимум на 25-30 сантиметров выше роста малыша, но лучше сделать их с запасом, чтобы при желании взрослые могли навестить ребенка;
- внешние и внутренние стены лучше сделать ровными и безопасными, чтобы не травмировать детей во время игры;
- крышу лучше сделать крутой, чтобы ребенку не хотелось на нее лазить.

Чертежи можно разработать самостоятельно, полагаясь только на свои желания и возможности, а можно пойти более простым путем и использовать чертежи, уже разработанные, проверенные и испытанные на практике, которые можно найти в Интернете.
Рассмотрим основные типы детских домиков и особенности их строительства:
- Детские игровые домики из фанеры
Такой вариант наиболее быстро строится в саду или во дворе коттеджа, а фасады можно оформить яркими красками, чтобы защитить фанерные листы от атмосферных осадков и ветра, как на фото.Для изготовления фанерного дома по готовым чертежам на поверхность листов наносятся контуры стен, окон и дверных проемов. Сами листы фанеры должны быть толщиной около 10 мм, чтобы их хватило на длительный срок службы. Для этого типа домов можно сделать легкий фундамент или вообще обойтись без него. Для прочности нужно закопать землю по углам опорных балок, предварительно обработав древесину от гниения.
Выбор типа фанерного дома
Далее переходят к изготовлению стеновых панелей, для этого из деревянного бруса толщиной сечения 5 на 5 см сбивают каркас с помощью гвозди или шурупы, к которым прибивается вырезанная по чертежу фанера.
Так делают все стены, которые прочно прибивают к опорным балкам. Крышу тоже можно сделать из фанеры, а для прочности советуют сверху перекрывать кровельные доски. Для сохранности все углы и края необходимо отполировать наждачной бумагой — а можно украсить дом разноцветными красками. Но нужно помнить, что все лаки и красители должны быть предельно безопасными, ведь в этом доме ребенок будет проводить много времени и постоянно вдыхать испарившиеся вещества.
- Детские деревянные домики из массивной доски
Дом из прочных высококачественных досок прослужит намного дольше, чем его фанерный аналог, потому что хорошо обработанное дерево может сохранять свою форму веками. Поэтому такой детский дом будет обслуживать не только детей, но и внуков, и даже правнуков. И подобный домик на территории загородного дома или дачи выглядит очень красиво и нарядно (как на фото) — что не повод выбирать именно этот вариант детского приюта.
Рассмотрим несложный вариант детского дома своими руками из деревянных досок.
Как и любая конструкция, деревянным игровым домикам нужна качественная опора. Фундамент под здание можно сделать деревянным, отказавшись от долгой и кропотливой заливки бетона. Но для увеличения срока службы лучше на месте будущей постройки выкопать яму глубиной около метра и выложить основания из кирпича. Также кирпич можно заменить террасной доской, но ее стоимость будет существенно выше.Самый простой и быстрый фундамент — это несколько кирпичных столбов и прикрепленная к ним обвязка из дерева. Ознакомиться с особенностями такого фундамента вам помогут рисунки.
Каркасная конструкция dlma
После создания основания можно приступать к изготовлению пола, для этого потребуются хорошие половые доски. Сначала к обвязке крепят бревна, которые накрывают плотно прилегающими друг к другу досками. Для экономии можно обойтись OSB или двойным слоем фанеры, как на фото.
Дальше очередь стен. Для их строительства необходимо закопать опорные балки в землю по углам и в местах будущего размещения окон и дверей, предварительно обработав древесину защитными средствами.
Далее стены зашиваются досками. Крыша из бруса, технология строительства аналогична предыдущему варианту фанерного дома.
После окончания работ по изготовлению кровли можно переходить к внутренней отделке.Древесину необходимо защитить от влаги и вредителей, покрыв ее специальными средствами, а затем лаком или морилкой. Для удобства внутри постройки нужно оборудовать столы, скамейки подходящих для ребенка размеров. Ниже представлены чертежи подобного деревянного дома.
Видео строительства детского домика на даче
Интересный вариант детдома — избушка на куриных ножках, как из сказки Бабы Яги. Особенностью возведения такой конструкции своими руками является наличие высоких опор, которые могут быть выполнены из кирпича, толстых деревянных бревен или толстых стальных труб.Высота опоры должна быть не более 70 сантиметров для безопасности детей. Опоры должны быть прочными и хорошо заделанными в почву, создавая прочный фундамент для детского дома. Особенности такой постройки видны на фото.
Далее к основанию крепится деревянный брус, который будет служить каркасом дома. Укладываются прочные половицы встык на квадратный каркас — и настил готов. Далее можно приступить к монтажу стен, который проводят по аналогии с фанерными и деревянными домами — сначала делают деревянный каркас из бруса, а затем обшивают листами фанеры или досками.Основание кровли делается из бруса, на который укладывается металлочерепица, шифер, фанера или ламинат.
Поскольку дом возвышается над землей, вход в него необходимо оборудовать прочной деревянной лестницей, для безопасности лучше дополнить ее хорошими высокими перилами, как на фото. Такое необычное и сказочное сооружение придаст дизайну коттеджа изумительный волшебный колорит.
- Дом на дереве
Дети постарше будут в восторге от укрытия, построенного на ветвях дерева, ведь забираться в него — само по себе приключение.Сделать его своими руками тоже довольно просто, нужно только найти высокое дерево крепких пород (больше всего подходит дуб) с высотой нижних ветвей около 7 м, высотой основания кроны 5 м и диаметр ствола не менее метра.
После выбора дерева нужно внимательно рассмотреть чертежи в соответствии с индивидуальным расположением веток. Часто такие дома строятся из досок, имеют различную конфигурацию, и вход в них предусмотрен с помощью лестниц или веревочных лестниц, пример можно увидеть на фото.Такая конструкция станет не только надежным пристанищем для ребенка, но и необычным украшением дачи.
Строим стены дома
Детские деревянные игровые домики имеют настолько красивый и разнообразный дизайн, что станут не только любимым местом для игр и времяпровождения любого ребенка, но и прекрасно украсят сад или двор любого летний коттедж.
Изготовление домика из фанеры
Для маленьких детей можно сделать легкий и простой домик своими руками, используя готовые чертежи, как на фото.
Для квадратного здания с длиной стен 1,7 метра потребуется:
- ДСП, 4 листа размером 2 на 1,7 м;
- брус 2,5 на 2,5 см длиной 35 сантиметров 8 штук;
- брус 2,5 на 2,5 см.
Длиной 2,5 метра для изготовления стен 13 штук, из них 8 нужно спилить сверху до угла; - доски 5 х 15 см длиной 2 метра для усиления пола, 4 шт .;
- доски сечением 15 на 5 см длиной 2 метра для изготовления напольного покрытия 13 шт .;
- гвозди, шурупы, металлические уголки, ножовка по металлу, молоток и другие инструменты для деревообработки.
Когда все материалы будут готовы, можно приступать к строительству дома своими руками.
Сначала при помощи веревки и кольев нужно измерить участок 2 на 2 метра, тщательно выровнять, очистить от камней и мусора, утрамбовать. Далее в углах квадрата нужно выкопать ямки диаметром около 20 сантиметров, в которые плотно вкапываете угловые опоры, чтобы на поверхности осталось 15 см бруса. Таким же образом вкапываются дополнительные опоры посередине каждой стороны.Далее с помощью уровня определяются места стыковки половиц, здесь нужно соблюдать осторожность, чтобы не было перекосов. Эти 4 доски прибиваются к опорным брускам в виде короба, который потом нужно забить сверху половицами — и настил готов.
Готовый деревянный дом
Далее можно переходить к возведению стен, для этого берется лист ДСП и две заостренные бруски по 2,5 метра, их прибивают к длинным сторонам листа так, чтобы ровная край был на одном уровне с листом, а заостренный выступал.Так делают все четыре стены, но в двух нужно вырезать окна, а в третьей — дверной проем. После этого полученные стены забивают молотком в землю прямо рядом с деревянным ящиком и соединяют между собой с помощью уголков и шурупов, чтобы избежать появления трещин.
Когда стены готовы, можно смело начинать строительство крыши. Для этого нужно взять две балки и вырезать из них уголки под углом 45 градусов, при желании можно увеличить угол наклона крыши и сделать небольшую покатую крышу.Две балки следует скрепить между собой с помощью металлического уголка и шурупов. Таким же образом делается второй треугольник для крыши. После этого следует прикрепить треугольник к передней стене постройки и на бруске разметить углы, в которых будет крепиться крыша, их нужно вырезать ножовкой.
Сделайте то же самое с противоположной стеной. Далее треугольники соединяются между собой при помощи поперечной планки и крепятся к постройке с помощью уголков и саморезов. Для покрытия кровли подойдет металлочерепица, ламинат, шифер или даже фанера — все, что есть в хозяйстве или больше всего вам нравится.Особенности конструкции кровли показаны на фото.
Осталось только покрасить фанеру выбранными красками — и дом готов. Как видите, сделать детский домик из фанеры своими руками на территории сада или дачи — дело простое и недолговечное.
Как вариант такого тихого уголка можно рассмотреть детский домик из дерева.
Детский домик из дерева
Детские дома условно можно разделить на две большие группы: одни предназначены для детей от 2 до 6 лет, другие — для детей старше 6 лет.
А вот построить деревянный детский дом своими руками — это полдела. Другой вопрос, как это оформить?
Дом для самых маленьких может иметь очень маленькие размеры 1,7 * 1,7 в плане и 2,5 м в высоту.
Размеры: 1,7х1,7 м по периметру и 2,5 м в высоту, что вполне достаточно для малышей 2-6 лет.
Здание для детей постарше должно быть побольше, например, по габаритам может быть 2 * 3 м, а высота около 2 м.
Дети без ума от домов, построенных на ветвях деревьев. Если такой прямой возможности нет, то можно просто поднять на определенную высоту. Кстати, в этом варианте дом может защитить полено дров.
При строительстве приюта из дерева все его детали необходимо тщательно отполировать. Это необходимо для того, чтобы его жители не поцарапались и не подобрали занозу. Кроме того, они должны быть покрыты льняным маслом хотя бы в два-три слоя.
Конечно, кроме дерева, допустимо использование и других материалов, например, фанеры.
Нет необходимости заказывать отдельный проект на строительство детского дома. Чтобы рассчитать необходимое количество материала, и завершить работу, вполне достаточно самодельного эскиза. На нем должны быть отражены все основные размеры.
Желательно использовать материал, из которого строится «взрослый» дом.Кстати, для детского дома можно использовать отходы, оставшиеся после завершения строительства большого дома. Для того, чтобы построить детский деревянный домик своими руками, вам будет востребовано:
- Ножовка по дереву;
- Рулетка, отвес, уровень, квадрат;
- Долото;
- Электроинструмент — дрель, лобзик, шуруповерт;
- Крепежные изделия.
Для проведения отделочных работ можно использовать лакокрасочные материалы и инструменты для работы с ними, конечно, нельзя сбрасывать со счетов фанеру, толщина которой должна быть не менее 10 мм.Непосредственно для строительства дома может понадобиться брус 50х50.
Нельзя забывать о кровельных материалах, кирпиче и т. Д. Для повышения безопасности такого дома имеет смысл устанавливать готовые пластиковые окна и двери.
Строительство деревянного детского домика своими руками
Деревянный домик для детей на даче можно построить в той же последовательности, что и «взрослый».
Т.е.:
- устройство фундамента;
- строительство капитальных стен;
- Устройство кровли.
Да, в целях экономии дом можно просто покрасить, но речь идет о безопасности детей, поэтому есть смысл обшить стены листовым материалом, например, фанерой. Это снизит вероятность получения травм в салоне автомобиля.
Безопасность детского дома
Имеет смысл сделать входную дверь во всю высоту стены. Это убережет ребенка от ударов о верхний косяк, а взрослым будет легче войти.Во избежание травм стены дома необходимо обшить фанерой или ДВП. То есть они должны быть гладкими. Крыша в таком домике должна исключать возможность того, что ребенок захочет забраться на нее.
План проекта, особенности
При составлении плана работы имеет смысл учесть специфику детского дома. Итак, расстояние от напольного покрытия до потолка должно быть не менее 1500 мм. При строительстве дома имеет смысл установить как минимум два окна.
Такой подход обеспечит достойное освещение внутри. Кроме того, через эти окна родители всегда могут увидеть, что происходит внутри, и в случае необходимости немедленно вмешаться.
Подготовка к работе
Для строительства необходимо провести определенные приготовления, то есть закупить необходимый материал (брус или бревно), цемент, доски, отделочные материалы. Объем закупок станет ясен после составления дизайна.
Строительство фундамента
Такая конструкция легкая и поэтому особой необходимости возводить ленточный, даже неглубокий фундамент не требуется.Можно обойтись маленькими, двумя-тремя кирпичами с колоннами, которые будут установлены по углам периметра будущего дома. При их установке необходимо следить за тем, чтобы вершины столбов располагались в одной плоскости. Как вариант, можно рассмотреть реализацию монолитной плиты.
Эту конструкцию необходимо будет оборудовать, если в качестве фундамента использовался столбчатый фундамент. Это нужно для равномерного перераспределения нагрузки, создаваемой домом.
В качестве цокольной конструкции можно использовать соединенные между собой балки, на которых будут возводиться элементы стен. При подъеме стен не следует забывать об укладке слоя гидроизоляционного материала.
Если детский дом построен как уменьшенная копия «взрослого», то, скорее всего, его, возможно, потребуется подключить к канализации. Для этого придется проложить трубопровод от дома до входа в основную канализацию.
Необходимо учитывать, что все действия по изоляции труб и т. Д.необходимо выполнять по-взрослому.
Для создания перекрытия необходимо установить лаги. Если дети планируют использовать свой дом зимой, то, скорее всего, им придется оборудовать пол соответствующим утеплителем. Для этого необходимо выполнить все необходимые операции, а именно закрепить необрезные доски снизу к лагам, уложить пароизоляционный материал, утеплитель. Поверх чернового пола можно устроить бетонную стяжку. На него можно будет нанести финишное покрытие позже.
Если принято решение о строительстве дома по каркасной технологии, то потребуется возведение стенового каркаса.
Например, для стены, в которой будет установлено окно, потребуется конструкция каркаса, состоящего из нескольких балок. Две по краям, две прямо в том месте, где планируется установка окна. Кстати, под ней необходимо будет установить два турника. В получившийся проем будет установлено окно.
Для глухих стен достаточно установить четыре вертикальных перекладины.Если принять ширину изоляционного мата 600 мм, то расстояние между стойками должно быть на 10 мм меньше, это позволит установить мат с натягом и не допустить образования мостиков холода.
Для детского домика имеет смысл предусмотреть установку окон из металлопластика. Просто так безопаснее. Самостоятельно изготовить такие окна достаточно сложно, поэтому есть смысл пригласить специалистов, которые занимаются производством и установкой таких изделий.
Утепление можно производить всеми доступными способами. Например, с помощью матов из минеральной ваты. Но можно использовать эковату. Это безвредный материал, не вызывающий аллергии.
При его укладке необходимо использовать специализированное оборудование.
Необходимо помнить, что лестница является источником повышенной опасности как для детей, так и для взрослых, поэтому при ее возведении необходимо особенно тщательно и желательно изучить необходимую для этого случая документацию (ГОСТ, СНиП и т.).
Как вариант, можно рассмотреть лестницу на тетиве.
Несколько слов в заключение
Строя детский дом на территории загородного дома, всегда нужно помнить о безопасности тех, кто будет им пользоваться, то есть о детях.
Все острые углы необходимо зачистить, для этого можно использовать как руку, так и электроинструмент.
Видео своими руками на детский деревянный домик
1 Строим домик для ребенка своими руками.
2 Домик детский
( 19 оценок, среднее: 4,21 из 5)
Ни для кого не секрет, что малышам не нужно так много, чтобы быть счастливыми. Полет детской фантазии дает возможность превратить любой предмет обихода в космический корабль или автомобиль, поэтому несложно представить себе восторг ребенка, получившего построенный на даче деревянный домик для игр.
Лучшим выбором станет детский домик, специально созданный для мальчика или девочки.Обладая таким домом, ребенок с большим желанием покинет черту города , зная, что на даче его ждет уютный уголок. К тому же поможет родителям заняться дачным хозяйством, не отвлекаясь на невыносимое поведение скучающего ребенка.
В наши дни приобрести готовый дом легко, обратившись в компанию, которая занимается строительством компактных деревянных домов. Специалисты будут рады не только подобрать дизайн, но и доставить и собрать дом. Такие изделия обычно хорошего качества, но стоимость работы иногда отпугивает покупателей.
С другой стороны, деревянный дом намного дешевле, если вы построите его самостоятельно. Что нужно для того, чтобы на даче построить детский домик? В этом случае потребуется покупка расходных материалов и необходимых инструментов. Проведя два выходных дня , своими руками вполне можно построить домик для любимого чада.
Домик для детей своими руками: преимущества деревянных домиков
Порядок строительства детского домика на даче своими руками
В первую очередь нужно уточнить, в каком плане будет будущий домик, определился с ее внешним видом .
.. Для этого предварительно составляется схематический чертеж, позволяющий определить тип здания.
Характеристики детского загородного домика, которые необходимо определить перед началом строительных работ:
Разработка плана детского игрового домика из дерева
Изначально требуется детальный план строительства, а также эскизов и чертежей . .. Важно учитывать специфику будущего сооружения:
- Расстояние между полом и потолком должно быть не менее полутора метров.Однако делать комнату слишком высокой нежелательно.
- Будет правильным решением установить как минимум два окна. Во-первых, такая мера обеспечит достаточное освещение в комнате дома. Во-вторых, нужно помнить о безопасности детей, нуждающихся в постоянном присмотре. За детьми можно наблюдать через окна.
- Дверь рекомендуется делать до уровня потолка. Так что шишка на лбу у ребенка точно не появится, более того, не исключено, что взрослым когда-нибудь придется навестить малыша.
- Чтобы избежать ненужных травм, все стены внутри и снаружи должны быть гладкими.
- Кровлю лучше делать скатной, так как плоская может привлечь детей, и они рано или поздно заберутся на крышу, что создаст травматическую ситуацию.
Инструменты и материалы для строительства
Перед тем, как начать строительство небольшого загородного домика для детей, необходимо приобрести следующие инструменты:
Перечень материалов, которые потребуются для строительства:
- Деревянные балка для каркасного дома.Строители рекомендуют использовать балку сечением 50Х50.
- Обшивка пиломатериалами. Выбирайте фанеру толщиной не более 10 мм. Также используются ориентированно-стружечные плиты. Они дешевле фанеры, но более прочные. Все остается на усмотрение владельцев.
- Рубероид.
- Кирпичи.
- Стекла для оконных рам. При этом следует учитывать, что стекло небезопасно для ребенка, поэтому, если есть желание увеличить доступ света в дом, лучше установить пластиковые окна.
Как сделать детский домик: технология строительства
Фундамент и перекрытие
Подобно строительству больших домов, детские игровые домики начинают строительство с закладывания фундамента … Основание может быть грунтовым, гравийным, цементным или дробленым камень.
Существуют разные варианты укладки деревянных досок. Некоторые снимают верхний слой почвы, сверху присыпают его щебнем, выравнивают участок, а затем кладут на участок опорные бруски. Можно поступить иначе: каждый угол конструкции следует вымостить на специальном бетонном блоке, а опоры поставить на песчаную подушку.Таким образом, углы конструкции разместятся на глубине до полуметра. Почву из углублений следует удалить, а в них насыпать смесь песка и гравия. Затем ямки тщательно утрамбовываются.
Блоки устанавливаются на подготовленные места, которые должны находиться на одном уровне. Чтобы каркас не был кривым, следует использовать строительный уровень .
Дом не может долгие годы стоять без гидроизоляционного слоя. Чаще всего в качестве утеплителя выступает рубероид или современная битумно-полимерная мастика.Некоторые люди предпочитают естественную вентиляцию. В этом случае домик строится на металлических прутьях или кирпичных столбах высотой не более 20 см.
Стены
Разобравшись с фундаментом и полом, можно переходить к устройству стен. Для изготовления стен необходимо построить каркас из балок, который на следующих этапах соединяется с тонкими досками обшивки или досками. Не забываем про двери и окна. Первым делом следует установить в каждом углу брус, сечение которого, как правило, составляет 50Х50, а длина — три метра … Изделие разрезают на три равные части или пополам. Затем крепятся балки под дверные и оконные рамы.
Чтобы закрепить основную планку, ее прибивают к полу гвоздями. Главное, чтобы тогда эти гвозди можно было легко выдернуть. Эта мера объясняется тем, что обеспечить прочное соединение строительных элементов можно только с помощью специальных уголков крепления, которые устанавливаются в будущем.
Между стропильными балками в обязательном порядке устанавливают вспомогательные подкосы, выполняющие роль крепежа.Учтите, что сверху балки соединяются каркасом, который выступает в качестве основы для кровли. После того, как основание для стен подготовлено, гвозди вытаскивают, а на их место монтируют металлические уголки … Домик будет стоять прочно и не развалится только тогда, когда все уголки и стыки будут скреплены угловыми креплениями.
Штанги, установленные в горизонтальной плоскости, обозначают оконные проемы и дверь. Их высота рассчитывается заранее. Расчеты производятся исходя из ширины обшивки.Такие размеры следует укладывать так, чтобы при обшивочных работах не было необходимости обрезать доски по их ширине или скрывать половину каркаса. Короче говоря, нужно прикинуть, сколько твердых досок поместится в оставшийся верхний и нижний проем. На этом уровне следует закрепить горизонтальные распорки.
Крыша
Крыша небольшого домика для игр своими руками может быть высокой и покатой. Дизайн крыши — дело личных предпочтений. Классическое исполнение требует следующего алгоритма действий:
Обшивка и отделка дома
Завершающий этап строительства включает в себя облицовку и отделку конструкции.Для создания стен используются вагонка, щиты или деревянные доски. Облицовка позволит сократить время облицовки , так как нет необходимости без проблем подогнать элементы, которые стыкуются между собой. Так как стояла задача сделать детский домик, не лишним будет украсить его разноцветными рисунками. Сами дети могут быть вовлечены в творческий процесс. Окна можно украсить резными наличниками, которые приобретаются отдельно, либо изготовлены вручную.
Внутри небольшого дома делают скамейку и стол, но, конечно, это не единственные предметы интерьера, которые могут украсить комнату.Небольшая веранда придаст дому более благородный вид.
Главное, чтобы построенная игровая конструкция не представляла опасности для здоровья ребенка. Речь идет о правильном креплении элементов деревянной конструкции. Важно, чтобы дети не поранились и не поцарапались во время подвижных игр. Доски нужно аккуратно посадить и нанести защитный слой лакокрасочного вещества.
Саморезы, гвозди и металлические скобы не должны выступать и торчать, закрываются специальными заглушками.
Дети любят подвижные игры и ведут активный образ жизни. И, конечно же, даже самый маленький хотел бы иметь свой игровой уголок. Постройка может иметь вид тканевого сарая или картонного замка. Сделать детский домик своими руками можно по готовым чертежам конструкции игровой комплекс фото … За неделю можно построить миниатюрную крепость или крытую беседку. Такое сооружение станет не только детской площадкой, но и архитектурным украшением.
Детский домик своими руками на участке
Каждый взрослый в прошлом был ребенком. И все помнят, как хотели поскорее стать взрослыми, чтобы все было как у родителей — свой дом, машина и так далее. Но если детскую машинку для ребенка купить несложно, то построить дом, пусть и игрушечный, несколько сложнее. Но если такое желание назрело, в первую очередь нужно оценить свои возможности.Все детские дома делятся на несколько групп:
- по расположению (отдельно стоящее, пристроенное к стене, домик на дереве)
- по материалам — дерево, пластик, металл, кирпич
- по этажности по проекту (каркас, щиты сборные и др.)
Небольшой готовый домик из местного супермаркета будет стоить не менее пяти тысяч рублей, а если сделать его самостоятельно, то будет стоить намного дешевле.
На заметку. Если вы построите дом самостоятельно, дети помогут вам, принеся инструменты и участвуя в процессе.Мероприятие запомнится надолго и приблизит вас к вашим детям. Таким образом, образовательная цель также будет достигнута.
Детский домик можно сделать своими руками из дерева
- Это самый важный шаг. Решите, какую площадь вы готовы выделить под строительство. Если он будет расположен на дачном участке, то дом может быть большим, а если в маленькой квартире, то угловым домиком в виде замковой башни.
- Подумайте, нужен ли для конструкции фундамент. В любом случае постройка должна быть достаточно устойчивой, а также защищенной от грунтовых вод. Если дом на сваях, необходимо для устойчивости заглубить их на определенную глубину.
- Учитывайте склонности и увлечения вашего ребенка. Нужен ли ему дом, чтобы спокойно почитать книгу или поиграть с игрушками, или он приведет туда толпу друзей. Поскольку у младенцев много энергии, конструкция должна выдерживать их бег и подвижные игры.
- Придумайте дизайн будущего сооружения, посоветуйтесь с домочадцами и детьми. Может быть, это будет подобие пиратского корабля или домика хоббита, а может быть, традиционный деревянный дом, только в миниатюре.
- Далее укажите бюджет и сроки строительства, то есть сколько времени вы можете посвятить строительству.
- Создайте чертеж здания. Проверьте все будущие размеры. В строительном магазине вполне можно заказать не только материал, но и его раскрой на нужный вам размер.Потом вам принесут готовые балки, элементы стен и т. Д., И возиться с циркулярной пилой не нужно.
- Сделайте оценку, включите весь материал, включая гвозди и шурупы.
- Еще раз взгляните на рисунок, оцените и оцените, насколько осуществима идея, потому что, если у вас не будет достаточно времени или энергии, это будет оскорбительно не только для вас, но и для детей.
Детский домик — лодка — отличная игровая площадка и простор для детской фантазии
Для начала нужно спланировать чертеж детского домика, определить размеры домика
Примечание Необходимо продумать все до мелочей, в будущей конструкции не должно быть острых углов, торчащих гвоздей, шатких конструкций.Деревянное строение нельзя располагать рядом с легковоспламеняющимися объектами, такими как камин или площадка для барбекю. Желательно после строительства пропитать дом антипиреновой пропиткой.
Самый бюджетный вариант — изба
Самый простой и быстрый способ построить небольшую хижину. Для этого пригодятся обрезные доски, балки, шлифованные стволы деревьев. Ветки размещены в виде конуса, сверху плотно завязаны, чтобы конструкция не развалилась от ветровых нагрузок.Накройте его куском брезента или другой прочной ткани. Часть опор желательно вкопать в землю для устойчивости конструкции.
Самый простой вариант детского домика в виде избы
Несмотря на кажущуюся простоту конструкции, она имеет определенные преимущества. Ее можно быстро разобрать и перенести на другое место, а если она надоест ребенку, то постройку легко разобрать и при этом использовать материал для других целей.
Детский домик в виде шалаша можно разместить даже в квартире
Уличный детский домик в виде избы должен быть немного прочнее квартирного
Сборный панельный дом
Быстрая и удобная технология строительства. Отдельно собраны 4 стены, крыша, затем собраны на месте. Для постройки дома размером 2 на 3 метра вам понадобятся 2 деревянных каркаса размером 3 метра * 1.5 метров и 2 деревянных каркаса размером 2 метра на 1,5 метра, эти заготовки собираются на земле, затем кто-то участник стройки держит каркас вертикально, другой соединяет их отверткой. Крыша дома собирается отдельно, а затем поднимается наверх. Этот метод строительства очень удобен для небольших и легких конструкций. За несколько часов из готовых деталей собирается прочная конструкция. Стены зашивают вагонкой, фанерой или даже ДВП.
Каркасный дом
Эта технология — одна из самых популярных у дачников и в коттеджном строительстве. Основу конструкции составляет деревянный каркас из бруса необходимой толщины. Чем толще брус, тем большую нагрузку выдержит конструкция. Найдите необходимую информацию о толщине бруса в справочниках по зданиям. Если конструкция имеет два этажа, необходима балка толщиной не меньше, чем требуется для перекрытий, чтобы она могла выдерживать вес пола и динамические нагрузки.
Конструкция каркасного детского домика своими руками состоит из каркаса и плит между ними
Каркасную конструкцию давно не возводят — сначала боковые стойки, потом проверка уровня, потом поперечная, потом промежуточная. Когда каркас постройки готов, то стены можно зашить доской, блок-хаус, окна и двери можно навесить. Крыша покрывается битумной или металлочерепицей яркого цвета. При желании такой дом можно утеплить минеральной ватой или другими материалами.
Бревенчатый домик
По возможности ребенок может использовать дом, стилизованный под хижину, или средневековую башню с маленьким окном и кованой дверью. Заказ бревенчатого дома для игрового дома на заказ обойдется недешево, но результат будет смотреться эффектно, особенно если вы хотите удивить гостей или соседей.
Домик для городской квартиры
Сюда подходят доски сечением, например, 5 * 5 см, из которых делается каркас дома или башни.Сверху с помощью мебельного степлера или шпильки прикрепляется красивая яркая ткань, соответствующая задумке. Не забудьте отшлифовать доски, чтобы не было заноз.
Любой дом можно украсить индивидуальным декоративным элементом — например, круглым окном или оригинальной дверью. Возле дома можно поставить скульптуру сказочного персонажа, это подчеркнет колорит. Например, приведем расчеты для небольшого дома.
Простой детский домик в квартире можно сделать из обычного картона
Проект дома «Загородный»
Начинающим строителям необходимо спланировать ход работ на начальном этапе.Сначала следует поговорить с детьми. Девочки обязательно захотят жить в волшебном замке, а мальчики предпочтут пиратский корабль или космическую станцию. Компромиссным вариантом станет одноэтажный дом с комнатой и верандой. По конструкции она не отличается от беседки или маленькой бани, поэтому возведение не потребует особых усилий.
По расчетам, комната займет площадь 2 м2, а терраса — 3 м2. Высота потолков — 1,8 метра. Делать низкие потолки бессмысленно, дети быстро вырастут, а через несколько лет жилище станет маловато.Родители могут войти в просторный приют и присмотреть за малышами.
Детский домик в стиле кантри выглядит очень мило и нарядно
Предусмотрена установка двух окон с восточной и западной стороны. Дверь одностворчатая. Вход с юга. Технология строительства — каркасная. Фундамент — 9 прямоугольных блоков. Крыша — деревянная обрешетка, покрытая двумя листами ондулина. Полы деревянные. Пол деревянный. У входа на террасу устанавливаются две бетонные ступени.
Перечень необходимых материалов
Фирмы, специализирующиеся на производстве товаров для дачи, в том числе игрушечных домиков. Цены на такую продукцию высокие. Заботливые родители просматривают каталоги и журналы, чтобы построить дом без посторонней помощи. Расчет стоимости материалов поможет составить бюджет заранее. В данном случае считаем затраты на возведение деревянного дома в миниатюре:
- брус шлифованный — 10000 руб. Винты
- — 300 руб.
- листов ОСБ — 2000 руб.
- вагонка — 4000 руб.
- ондулин — 1000 руб. Доска пола влагостойкая
- — 3000 руб.
- 2 маленьких окна — 2000 руб.
- дверь с фурнитурой — 1500 руб.
- фундаментных блоков — 4 500 руб.
- доски черновые — 2000 руб.
Детский домик может быть частью большого игрового комплекса
Итого 30 000 руб. Сумма немаленькая, но дом получится почти как у взрослых.Электричество опасно для детей, поэтому лампочки заменяют на лампы с батарейным питанием. Дополнительные расходы потребуются на покупку элементов декора — подушек, ковриков и других мелочей.
Мальчики отлично умеют играть в доме пожарных
Фантастические постройки
Сказки и мультфильмы завораживают своей красочностью. Порадовать детей, построив дом сказочному герою, несложно. Например: положить в комнату картонную коробку от стиральной машины.В боковых стенах прорезаны окна и дверной проем. Вместо дверей над нишей ставят веревочный карниз, на который транслируется толстая штора. Сверху некрасивый картон оклеен подарочной бумагой или расписан акриловыми художественными красками.
Картонный домик можно сделать в виде ракеты
Для отдыха на природе несложно выложить каменную башню или собрать деревянный сарай. Чтобы не мучиться с рисунками, можно поставить старый стол и прибить к ножкам деревянные доски.Получается небольшой дом с плоской деревянной крышей. Когда строительных материалов не хватает, используются даже ненужные шторы. В землю вбиваются четыре столба, которые затем покрываются тканью.
Совет. Если в детском домике установить спортивный инвентарь — лестницу или горку для ребенка, он получит не только личное пространство, но и возможность постоянных тренировок.
Внутренняя отделка
Игровой домик не следует перегружать мебелью.Для комфортного размещения достаточно поставить пару деревянных скамеек вдоль стен и стол посередине комнаты. Желательно прибить ножки к полу, чтобы малыши не уронили тяжелую мебель. Помещение не может быть меблировано. Во избежание травм устанавливайте мягкие пуфы. Для ночных летних посиделок оборудованы гамаки.
Необходимо продумать интерьер детского дома
Пожарная безопасность
Деревянные постройки легко воспламеняются, если не соблюдать осторожность с огнем.Обработайте деревянные детали огнезащитной краской или обтяжите сайдингом. Кирпичный дом считается надежным, но позволить себе этот материал может далеко не каждый. Вышеупомянутый деревянный дом прослужит не один год, если с ним бережно обращаться. Из соображений безопасности нельзя оставлять детей на даче без присмотра.
Детский дом лучше покрыть антипиреном
Детские домики своими руками
Детский домик своими руками 40 фото:
Пока взрослые заняты уходом за садом и его благоустройством, детям не должно быть скучно: позвольте им увлечься веселой игрой поблизости.Комплексно продуманные деревянные коттеджи для дачи могут стать центром внимания детей, ведь их инфраструктура отвечает всем запросам подрастающего поколения. Чтобы локализованная игровая площадка всегда вызывала волнение, ее можно спроектировать как иллюстрацию интересов ребенка — в виде корабля для юного мореплавателя, дворца для принцессы, научной лаборатории для увлеченного исследователя. В общем, при желании можно реализовать любой проект детского домика для дачи, главное вооружиться фантазией.
Детский домик из дерева, стилизованный под корабль Источник admvol.ru
Но нельзя исходить исключительно из эстетических соображений: конструкция должна быть безопасной и удобной. В этом аспекте поможет профессиональное вмешательство — специалисты подскажут, какие материалы будут уместны, воспользуются приемами эргономичного зонирования, а также проследят за соблюдением всех технических и санитарных норм при строительстве.
Выбор места и оптимального материала
Для строительства детского деревянного домика следует найти участок, который будет одинаково хорошо виден со всей территории участка — тогда родители смогут постоянно следить за ребенком.Не рекомендуется высаживать по периметру деревья, кустарники, разбивать клумбы: из-за неизбежного полива повысится влажность почвы, что чревато поражением древесины грибком и плесенью. Не менее опасны фонтаны и искусственные водоемы.
Если на участке уже есть площадка для барбекю, домик для игр не следует размещать поблизости: сочетание открытого огня и порывистого ветра может привести к пожару, а обильный дым от барбекю не принесет пользы молодому организму.
Все деревянные конструкции нуждаются в тщательной пропитке противопожарными составами.
Чаще всего детские домики устанавливают на ровной местности, вдали от других хозяйственных построек Источник optolov.ru
Почему в качестве основного строительного материала рекомендуется дерево? Секрет в натуральном происхождении и минимальном риске спровоцировать аллергические реакции. Дерево, в отличие от пластиковых и металлических поверхностей, не нагревается, не выделяет в воздух вредных химических компонентов (при условии, что все покрытия и пропитки были выбраны с особой тщательностью).Фурнитура может быть изготовлена из аналогичного материала, пластика, металла.
Уникальная текстура, приятный цвет и естественный рисунок — залог эстетичности готовой конструкции, она не требует дополнительной отделки, достаточно указать в рабочем плане нанесение нескольких слоев защитного лака. Если же вы наоборот хотите создать яркую композицию, дерево легко раскрасить в любом масштабе.
Как заказать дом из дерева: модели из фанеры, доски, бревна
Это экологически чистые материалы, простые в сборке и обработке, поэтому они взяты за основу при возведении конструкций, предназначенных для досуга малышей.
Рядом с домом легко сделать полноценную детскую площадку Источник kinfolks.info
Конструкция из фанеры
Чтобы построить детский домик из фанеры, мастера обводят на листах шаблоны деталей в натуральную величину и вырезают из них заготовки. Обычно используется материал, устойчивый к влаге. Далее подготовленные «полуфабрикаты» закрепляются на каркасе из толстых балок с помощью саморезов. Все эти манипуляции предшествуют сборку опорной ленты заделывает в почве из большого бара или закладки полноценного фундамента.
Фанерный домик — это еще и дополнительный повод рисовать вместе с ребенком. Источник captivatist.com
На нашем сайте вы можете ознакомиться с наиболее популярными проектами деревянных домов от строительных компаний, представленных на выставке домов «Малоэтажная Загородка».
Хижина простая из досок
Все детали предварительно пропитаны антисептическими составами, защищающими древесину от гниения, поражения грибком и плесени. Толщина досок должна превышать 40 мм, из них вырезаются детали по шаблону.Каркас, как и в предыдущем случае, оборудуют толстыми балками, обшивают, соблюдая отмеченные в проекте оконные и дверные проемы.
Для устройства двускатной кровли можно использовать доски той же марки, ее дополнительно укрепляют рулонными или сайдинговыми кровельными материалами, черепицей.
В такой «хижине» можно поиграть в «Белоснежку и трех поросят» Источник okidoki.ee
Сказочный бревенчатый домик
Простой проект детского домика из дерева может превратиться в сказочную избушку.В этом случае сложность строительства сравнима с кладкой сруба на полноценное жилище: в результате образуется небольшая, крепкая, устойчивая постройка. Внутреннее пространство оборудовано оконными проемами с трех сторон; здесь могут быть поставлены полные ставни.
Входная зона также может иметь «изюминку»: мини-террасу или крыльцо без фасада закрывают под одной крышей с домом, собирают узорчатые перила, ставят стулья и компактную столешницу. Эту импровизированную летнюю кухню легко превратить в зону для рисования или настольных игр.
Немного фантазии и «в гостях у сказки» — это не просто телешоу Источник finmatrix.ru
На нашем сайте вы можете найти контакты строительных компаний, которые предлагают строительство конструкций. Вы можете напрямую пообщаться с представителями, посетив выставку домов «Малоэтажная страна».
Загородный дом на дереве
От такого проекта будет в восторге каждый ребенок, даже взрослые с энтузиазмом будут участвовать в детских играх.Логическим связующим звеном в этой категории является одно раскидистое старое дерево или несколько соседних деревьев, на которых «застроен» дом с минимальным ущербом для природы. Детская площадка может быть закрытой, то есть с полной крышей (а в некоторых случаях — стенами), или открытой, оснащенной высокими перилами.
Лестница бывает винтовой, приставной (при желании ребенок поднимет), стационарной, интересно смотрится специальная тренировочная сетка, натянутая на каркас. На свободное пространство под полом можно повесить веревочные тренажеры и аттракционы, актуальны будут банджи и качели с одной перекладиной.В крупномасштабных проектах два и более объекта соединяются системой мостов.
Построив такой домик, вы можете посетить ребенка Источник urloplandia.pl
Домик на столбах для детей с песочницей
Это решение отлично вписывается в небольшие дачные участки, так как песочница находится на первом этаже — прямо под днищем избы. Помимо лестницы наверх может вести миниатюрная стенка для скалолазания и шведская стенка. К домику прилагаются качели и горка.Рекомендуется оборудовать песочницу ящиком для игрушек и скамейками.
При разработке всех моделей, размещенных на высоте, особое внимание уделяется элементам, нивелирующим фактор травматизма. Заказывая такой домик у профессионалов, вы можете быть уверены в его устойчивости, продуманности и всесторонней безопасности для ребенка.
Такой дом легко заменит полноценную спортивную площадку для ребенка. Источник pinterest.com
Составление плана и определение будущих размеров детского домика из дерева
При разработке проекта детского домика для дачи необходимо учитывать несколько факторов:
фундамент значительно продлит срок эксплуатации здания.Он защитит древесину от постоянного контакта с влажной почвой, что предотвратит преждевременное разрушение материала;
тип здания … Хижины могут быть закрытыми и открытыми; в первом случае в план нужно включить как минимум 2 окна и дверь. Открытые конструкции выглядят как мини-беседки, крышу поддерживают вертикальные опоры, по нижнему краю вводят заборы;
габариты устанавливаются в зависимости от параметров свободного места на придомовой территории;
мобильность … Конструкцию можно переносить с места на место, если изначально придерживаться разборной конструкции.
Чтобы снизить риск получения травм, специалисты предлагают обратить внимание на конструкцию односкатной или двускатной крыши: рано или поздно прямые горизонтальные вариации кровли становятся объектом интереса детей — на них взбираются, пытаются спрыгнуть.
Двускатная крыша позволит стационарным конструкциям естественным образом освободиться от снега во время зимовки.
Такая крыша очень красивая, но мало кто из детей не захочет на нее залезть Источник коомелк.com
Для открытий установлены конкретные границы:
высота двери должна превышать рост ребенка минимум на 25-30 см;
Окнадолжны быть на высоте не менее 50-55 см от пола.
Окончательные размеры хижин, возводимых непосредственно на фундаменте, определяются эксплуатационными потребностями и возможностями участка. Что касается домов на деревьях, столбах, высота их этажа относительно уровня земли должна превышать 1,2 м, высота жилой части до верха крыши — от 1.6 м. С учетом горок, лестниц, аттракционов необходимо освободить площадку не менее 4х4 м. Этого места хватит для игр дошкольников; для детей постарше все параметры нужно увеличить примерно в 1,5 раза.
Этапы строительства деревянного детского дома
По чертежу детского дома строители рассчитывают необходимое количество материалов и после их доставки на территорию заказчика приступают к сборке.
Ключевые шаги:
Формирование фундамента из кирпича или профнастила.По желанию заказчика кладку можно дополнить обвязкой из бруса. Специфика конструкции не предполагает заливки полноценного бетонного основания.
Детский домик на столбчатом фундаменте Источник yandex.ru
Пол создают по классическому сценарию: сколачивают бревна, обшивают их паркетной доской. В некоторых случаях допустимо использование фанеры в несколько слоев со смещенными швами.
Рама выглядит как вкопанные в углы фундамента балки, прошедшие предварительную антисептическую и водоотталкивающую обработку.На участках, где в будущем будут располагаться проемы, устанавливаются дополнительные опоры. Металлические уголки придают каркасу устойчивость.
Стены из фанеры, доски.
Двускатная крыша опирается на фронтоны — треугольники из толстого бруса, закрепленные на двух противоположных стенах. Если планируется габаритная конструкция, не помешает установка дополнительных фронтонов между основными. Конструкция набивается брусом и обшивается рубероидом — досками, соломой, битой, толью и т. Д., в зависимости от бюджета мероприятия.
Обработка в самом простом виде заключается в тщательном шлифовании всех поверхностей, к которым будут дотрагиваться дети, с нанесением на дерево защитных составов.
Тщательная отделка и покраска — залог сохранности конструкции Источник valeriaburda.com
Последние необходимы для предотвращения процессов гниения и повреждения насекомыми. Далее елка вскрывается лаком, морилка при необходимости красится.Мебель, которая будет размещаться как внутри, так и снаружи, изготавливается из остатков материала и также обрабатывается.
Строительство домика на дереве начинается с поиска подходящего образца древесины лиственных пород. Профессионалы отмечают, что форма дерева будет меняться пропорционально его естественному росту, поэтому они проектируют модели, расположенные в основном на нижних ветвях.
Опоры и пол собираются в выбранном месте, при этом предварительная сборка стен и крыши выполняется на земле, затем заготовки поднимаются и фиксируются.Самая безопасная и простая лестница — деревянная с поручнем, чтобы заинтересовать детей, также можно предоставить веревку для быстрого спуска.
Описание видео
И еще несколько красивых детских домов хорошо видно на следующем видео:
Выбираем проект вместе
Чтобы ребенок всегда радовал посещением дачи, пусть он тоже примет участие в составлении эскиза. В этом случае деревянный детский дом станет излюбленной площадкой и отправной точкой для развития творческих способностей подрастающего поколения.Далее совместные семейные разработки передаются профессионалам, которые рассчитают проект с учетом эстетических и эксплуатационных требований заказчика, составят смету, привезут материал и приступят к строительству.
75 Планов Dazzling DIY Playhouse [Бесплатно] — MyMyDIY
Детские игровые домики — это веселые крытые и открытые пространства, где дети могут развлечься. В приведенном ниже списке собраны 75 дизайнерских планов игровых домиков, которые вы можете построить самостоятельно.Прокрутите и ознакомьтесь с разнообразными планами проектов. Есть множество стилей.
Хотите ли вы минималистский квадратный домик для игр в углу вашего заднего двора или полномасштабный пиратский корабль с вороньим гнездом и трапом — вы можете скачать и распечатать планы работы с деревом.
Некоторые из наших фаворитов включают точную копию кокпита из «Звездных войн», это забавное убежище, построенное под лестницей, складную картонную хижину и даже кукольные домики для игр, где ваши дети и их друзья могут разыгрывать театральные представления, не выходя из вашего лужайки.
75 Планы дизайна игровых домиков
1. План уличного игрового домика в деревенском стиле
Этот домик для игр на открытом воздухе состоит из двух этажей, открытого крыльца, окон, двери и перил для безопасности. Ваши дети будут бесконечно весело проводить время с лестницей и стенкой для скалолазания, а вы даже можете добавить горку для быстрого спуска. На крыше есть окно в переднем двускатном конце, которое добавляет характер этому деревенскому деревянному домику для игр на открытом воздухе.
ПРОСМОТРЕТЬ ПЛАНЫ
2.Деревянный игровой набор для улицы с крытой направляющей
Если вы ищете для своих детей нечто большее, чем просто деревянный игровой домик, то этот набор для игр на открытом воздухе станет реальностью. Здесь есть мост, две башни, пергола, водная горка и домик для игр. Кроме того, вы можете добавить два набора качелей. Есть видеоролики и планы по созданию этого игрового набора, так что это не должно стать проблемой даже для начинающего строителя.
ПРОСМОТРЕТЬ ПЛАНЫ
3. Модернизированный дизайн игрового домика из поддонов
Этот простой домик для игр сделан из поддонов с тремя стенками и без двери.Открытый дизайн пола сначала кажется немного странным, но домик из поддонов легко чистить, и вы можете установить мебель в будущем, чтобы оживить обстановку. Кроме того, крыша покрыта стальными оцинкованными панелями, а пол — прочной ковровой плиткой, чтобы она не развалилась.
ПРОСМОТРЕТЬ ПЛАНЫ
4. Сиренево-фиолетовый дизайн уличного игрового домика
Это план простого уличного игрового домика для детей с окнами и дверью. Вы можете сделать его из одного листа фанеры (внешняя фанера 1/4 дюйма) и даже использовать то, что от него осталось, для двери.Вам понадобится столярный клей Emerson, дверные петли и стяжные винты для крепления стен. Это простая конструкция, которая не займет много времени.
ПРОСМОТРЕТЬ ПЛАНЫ
5. Сборка вигвама из лома ткани
Этот индийский вигвам, конечно же, не традиционный игровой домик, но летом он может стать отличной игровой площадкой для ваших детей. Он сделан из восьми деревянных кедровых шестов (пятнадцать футов длиной), обернутых тканью и обернутых вокруг них. Вы можете сделать это настолько высоко, насколько захотите, и вам понадобится степлер и скобы, чтобы закончить проект.
ПРОСМОТРЕТЬ ПЛАНЫ
6. План внутреннего форта из ПВХ труб
Для людей с ограниченным бюджетом недорогой детский форт — отличное решение. Вам понадобятся только трубы из ПВХ, соединительные элементы и ткань (6 цветов, 45 ″). В этом красочном игровом домике для дома удобно то, что вы можете разобрать его для хранения и собрать позже. К тому же этот закрытый форт рассчитан на троих детей.
ПРОСМОТРЕТЬ ПЛАНЫ
7. Домик для игр с фрамугой. Конструкция
В тот момент, когда вы увидите этот деревянный домик для девочек, вы влюбитесь в окно с фрамугой и симпатичную цветочную коробку.Более того, вы сможете построить его из недорогих досок с пазом под шпунт всего за два дня. И если вам не хватает места внутри, вы можете переместить этот домик на улицу.
ПРОСМОТРЕТЬ ПЛАНЫ
8. Открытый садовый домик, постройка
Строительство уличного садового игрового домика наверняка понравится вашим детям, и этот дизайн игрового домика прост в исполнении с его подробными инструкциями и схемами. Его уникальность заключается в том, что вы можете покрыть крышу битумной бумагой, а затем установить одиночные асфальтовые покрытия.Помните, что для крыши, стен и пола необходимо использовать фанеру толщиной 3/4 дюйма, чтобы обеспечить долговечность.
ПРОСМОТРЕТЬ ПЛАНЫ
9. Дизайн детского игрового домика для мальчиков Дикого Запада
Этот театр Дикого Запада — мечта каждого маленького мальчика, но это сложный проект, на завершение которого уйдет как минимум несколько месяцев. Однако когда он будет готов, этот домик в западном салоне с крытым крыльцом и черепичной крышей будет выглядеть как что-то из ковбойского фильма. Вы можете использовать забор из переработанной сосны и кедровое дерево, чтобы построить домик, и попросите своих мальчиков помочь вам с простым задачи.
ПРОСМОТРЕТЬ ПЛАНЫ
10. Идея игрового набора «Деревянный домик на дереве для девочек»
Даже маленькие девочки любят иметь свой собственный большой игровой домик, и вы можете использовать этот подробный дизайн игрового набора, чтобы построить его для своей маленькой принцессы. В деревянном домике для девочек два этажа, есть лестница и каркас для подвесных качелей. При желании можно добавить лестницу и горку. Опять же, это не тот проект, который вы сможете завершить за выходные, так что наберитесь терпения и попросите кого-нибудь помочь вам.
ПРОСМОТРЕТЬ ПЛАНЫ
11. Обновленные качели Play Fort Build
Если у вас есть старые качели, которые больше никто не использует, вы можете использовать этот план, чтобы превратить их в игровой форт. Вам просто понадобится малярная ткань, английские булавки, клейкая лента и нитки. Чтобы добавить персонажа коренного американца, строитель использует заплатки из крафтовой руды и прикрепленные ленточки для раскатывания двери вверх и вниз.
ПРОСМОТРЕТЬ ПЛАНЫ
12. Дизайн убежища в летнем уголке для чтения
Открытый игровой домик / уголок для чтения размером 5 х 8 футов — отличный выбор, если у вас нет большого опыта работы с деревом.Это простая конструкция — четыре стойки, одна крыша, одна задняя сторона и деревянный настил в качестве фундамента. Единственное, что вам может показаться сложным, — это прикрепить решетку к задней стене, но это того стоит.
ПРОСМОТРЕТЬ ПЛАНЫ
13. Домик для детских игр в помещении, сборка
Если вы хотите удивить своего ребенка чем-то необычным и необычным, вы можете попробовать этот план домашнего игрового домика. Что в нем уникально, так это то, что домик для игр находится внутри туалета, поэтому, если ваш шкаф достаточно большой, вам не придется ничего строить.Довершают милую картину веранда с креслами-качалками и крыша.
ПРОСМОТРЕТЬ ПЛАНЫ
14. Построенный крошечный домик с утилем
Этот небольшой домик для игр отлично впишется в любой задний двор. Дизайн довольно прост и позволяет работать с любым материалом, который вам удастся найти. Вы можете персонализировать дом по вкусу своей семьи, добавив мебель. Готовый крошечный домик для игр имеет размеры 6 футов 0 дюймов на 8 футов 0 дюймов, так что вы можете использовать его в качестве садового сарая, когда дети этого не хотят.
ПРОСМОТРЕТЬ ПЛАНЫ
15. Детский форт со слайд-планом
Для бесчисленных часов веселья вы можете использовать этот пошаговый дизайн, чтобы построить для ваших детей форт. Его размеры 6 x 6 футов, поэтому убедитесь, что у вас достаточно места для него. Как и в любом деревянном форте, в этом есть люк, стена для лазания, качели из покрышек и место для горки. Более того, этот детский домик-форт крепится болтами, чтобы его можно было разобрать.
ПРОСМОТРЕТЬ ПЛАНЫ
16.Декоративный план дома Венди
Этот игровой домик Венди для девочек имеет размеры 78 дюймов в высоту, 92 дюйма в длину и 48 дюймов в ширину. Вдоль фасада есть палуба шириной 28 дюймов с перилами. Несколькими прикосновениями вы можете превратить этот простой декоративный дом в дом мечты вашей маленькой девочки. Благодаря особым растениям у вас не возникнет проблем со строительством этого красивого игрового домика, даже если у вас нет опыта работы с деревом.
ПРОСМОТРЕТЬ ПЛАНЫ
17.Идеальный дизайн детского игрового домика на заднем дворе
Не хотите возиться с традиционным квадратным домиком для игр? Затем вы можете построить треугольный игровой домик на заднем дворе благодаря diynetwork.com. Что делает этот детский домик на открытом воздухе таким крутым, так это люк на крыше, который ведет в двухэтажный домик с местом для хранения вещей под полом. Вашим детям обязательно понравится чердак с лестницей.
ПРОСМОТРЕТЬ ПЛАНЫ
18. Крутой деревянный домик для игр План форта
Этот деревянный домик для игр подходит для маленьких детей.В нем нет рабочих дверей, чтобы вы могли следить за своим ребенком, пока он играет. Еще одна хорошая вещь в этом крутом домике для игр — гофрированная пластиковая крыша, которая пропускает свет, но не пропускает дождь.
ПРОСМОТРЕТЬ ПЛАНЫ
19. Простая идея домика плотника
Эти планы показывают вам, как построить игровой домик для детей из обычных материалов и инструментов. На самом деле, они настолько просты, что это может сделать даже тот, у кого две левые руки. Вам просто понадобятся пропитанные под давлением пиломатериалы и листы фанеры.И не забудьте покрасить и нанести лак, чтобы защитить от гниения.
ПРОСМОТРЕТЬ ПЛАНЫ
20. Деревянный план гостиной Raspberry DIY
Эта гостиная Raspberry представляет собой удобное лофт, где ваши дети могут играть и спать. Он имеет два этажа, перила для подъема и спуска, остроконечную крышу и окна. Еще одна особенность, которая наверняка понравится вашим девочкам и мальчикам в этом классном игровом домике, — это секретная дверь с левой стороны. Этот двухэтажный деревянный домик для игр имеет высоту 230 метров, поэтому убедитесь, что у вас достаточно места.
ПРОСМОТРЕТЬ ПЛАНЫ
21. Круиз по джунглям в стиле Диснея. Дизайн театрального домика
Этот деревянный домик на открытом воздухе построен по образцу круиза по джунглям Диснея. Здание сложное, но оно того стоит, особенно если у вас есть мальчик. Театр Диснея имеет размеры 8 x 6 футов, и у него есть крыльцо размером 3 дюйма с наклонной крышей. Внутри просторно, но, возможно, вам придется нырнуть через вход.
ПРОСМОТРЕТЬ ПЛАНЫ
22. План игрового домика из бревенчатой хижины за 300 долларов
Этот игровой домик из бревенчатой хижины представляет собой прочную конструкцию, которая выдерживает дождь и снег.И вы можете построить его из материалов стоимостью менее 300 долларов. Его размеры 5 x 8, если включить крыльцо. У вашего ребенка будет много места для игр в этом домике для игр на открытом воздухе.
ПРОСМОТРЕТЬ ПЛАНЫ
23. Клубный дом Fort Castle Design
Этот большой уличный игровой домик впечатлит любого ребенка или взрослого. В нем есть форт, мост, стена для скалолазания сзади, секретный выход, пожарный столб из нержавеющей стали и качели из покрышек. Конечно, домик форта не обходится без веревочной лестницы, так что она у нас тоже есть, плюс два обычных качеля.Это ни в коем случае не простой театр, поэтому на его создание придется потратить несколько месяцев.
ПРОСМОТРЕТЬ ПЛАНЫ
24. Игровой домик в балийском стиле, сборка
Этот игровой домик в малайском стиле имеет дизайн, который сразу бросается в глаза. Я говорю о ступеньках, ведущих к домику для игр, о замысловатых перилах на окнах и о длинных ставнях с жалюзи. Он покоится на четырех бетонных блоках, которые добавляют характер конструкции, а его основание имеет размеры 5 х 5 футов.
ПРОСМОТРЕТЬ ПЛАНЫ
25. Идея классного игрового домика из натуральной переработанной глины
Этот детский игровой домик идеально подходит для жаркого и сухого лета, когда детям нужно прохладное место, чтобы спрятаться от жары. Вот почему у этого дома живая крыша (глубина 5 дюймов), а дерево сначала покрывают морилкой, затем гудроновой бумагой и, наконец, несколькими слоями грязи. Еще одно преимущество этого классного игрового домика — его огнестойкость.
ПРОСМОТРЕТЬ ПЛАНЫ
26.План игрового домика для малышей The Fun Pallet
Этот забавный игровой домик из поддонов очаровательного пурпурно-желтого цвета идеально подходит для маленькой девочки. И вы можете сделать это за 31 шаг, используя поддоны и вторичную древесину. В нем есть черный ход и симпатичная веранда с забором. Завершают картину квадратные окна и ромбовидный иллюминатор.
ПРОСМОТРЕТЬ ПЛАНЫ
27. План кукольного домика из переработанных поддонов
Для маленьких девочек этот кукольный домик из переработанных поддонов подарит бесчисленные часы веселья.Модель домика имеет веранду с белым штакетником. Более того, крыша с волнистыми досками для поддонов придает уникальный вид этому игровому домику для девочек. Его размеры 260 см x 260 см, поэтому убедитесь, что у вас есть место.
ПРОСМОТРЕТЬ ПЛАНЫ
28. Дизайн деревянного домика пиратского корабля
Если вы хотите удивить своих мальчиков, этот деревянный пиратский корабль непременно вам подойдет. В этом пиратском домике есть винтовая лестница, качели и место для горок.И поскольку это не был бы пиратский корабль без трапа, он у нас тоже есть. И секретный вход для любопытных мальчиков, любящих приключения.
ПРОСМОТРЕТЬ ПЛАНЫ
29. План игрового домика с надстройкой
Первое, что вы заметите в этом домике-хижине, — это то, что он возвышается над землей на столбах, уложенных в бетон. Есть также крыльцо с перилами и лестницей, по которой можно подняться в дом, который понравится вашим детям. Вы также можете добавить слайд, чтобы оживить изображение.Этот приподнятый домик с горкой легко построить, а на рисунках показан процесс строительства.
ПРОСМОТРЕТЬ ПЛАНЫ
30. Строительный форт для дома с веревочной лестницей
Этот детский домик для игр на открытом воздухе может сначала показаться слишком сложным, чтобы его построить, но вы можете быстро его подготовить благодаря 9-шаговым инструкциям. Ваши мальчики могут провести целый день, поднимаясь по веревочной сети для лазания, пересекая мост и спускаясь по горке обратно на землю. Не забыты и дети младшего возраста — под игровым фортом подвешены качели.
ПРОСМОТРЕТЬ ПЛАНЫ
31. План театра истребителей Звездных войн
Вы можете использовать этот план, чтобы превратить любой игровой домик в игровой домик в стиле Tie Fighter Star Wars. Двумя наиболее отличительными чертами этого театра Диснея являются восьмиугольное окно порта и шестиугольные крылья. Когда вы добавите восьмиугольный светильник с вращающимся светодиодом, ваш мальчик будет чувствовать себя настоящим бойцом с галстуком.
ПРОСМОТРЕТЬ ПЛАНЫ
32. Идея старинного черепичного домика принцессы
Этот домик принцессы станет отличным подарком на день рождения вашей дочери.Есть такие классные вещи, как встроенная книжная полка, встраиваемый телевизор, старинные светильники, витражи и сеть. Но вишенка на торте — интерактивное Волшебное зеркало, которое очарует вашу маленькую девочку часами.
ПРОСМОТРЕТЬ ПЛАНЫ
Домик с длинной горкой подойдет любознательному ребенку. Строитель использует древесину балау для настила и горки, а остальное — из меранти. Конструкция имеет размеры 4 x 4 x 4 ′ с 1.5 футов высоких перил и 1,5 ступеньки сбоку.
ПРОСМОТРЕТЬ ПЛАНЫ
34. Открытый детский домик из ели, сборка
Этот деревянный домик для детей на открытом воздухе предоставлен строителем компании Instructables. Это небольшой вариант, созданный для племянницы плотника. В планах дизайна содержатся инструкции по созданию окон и каркаса, подготовке деталей, выполнению основной работы и даже демонстрация того, как они использовали прицеп-сцепку, чтобы перевезти его на задний двор родителей его племянницы.Для его сборки он использовал древесину и еловые доски и потратил много времени на изготовление небольших клееных деталей для сайдинга.
ПРОСМОТРЕТЬ ПЛАНЫ
35. Пряничный театр Старого Света, сборка
Этот дом для игр с пряниками предоставлен Библиотекой Конгресса. Это исторический дом для игр на открытом воздухе, построенный в 19 веке в Теннесси. Джон Хандверкер — строитель. Он создан по образцу конюшни на его территории. Привлекательный вариант в имбирной панировке с башней-башней, это очень большой дом для детей, который может соперничать со всеми современными роскошными игровыми домами, которые мы видели в своих амбициях.
ПРОСМОТРЕТЬ ПЛАНЫ
36. Чертеж мини-лофта «Великая сосна»
Madewithhappy.com опубликовал инструкции для игрового дома в стиле платформер. Он был построен из переработанной сосны. Его сборка стоит около 300 долларов, а в инструкциях вы узнаете, как они спроектировали и построили каркас и бас, пол, крышу, окна и стены.
ПРОСМОТРЕТЬ ПЛАНЫ
37. Творческий детский домик с искусственным дымоходом. Дом
Сообщение Рона Хазелтона «Как построить игровой домик для детей» представляет собой серию полезных видеодокументов о том, как он использовал основные строительные материалы для создания творческого открытого пространства для детей.
Действительно, это привлекательный вариант с черепичной крышей, открытой верандой с приветственным ковриком и горшечными растениями, окружающими экстерьер, дополненными забавным маленьким почтовым ящиком. Как это принято на веб-сайтах Рона Хейзелтона, он делает все, чтобы работать долго. Этот конкретный вариант, по его словам, разработан, чтобы противостоять обычным подвигам детей, склонных к приключениям, а также переносить суровые погодные условия.
Его письменные и видеопланы содержат инструкции, как построить каркас пола в домике для игр, выровнять фундамент, установить стойки крыльца, объединить доски пола, обрамить стены, установить защитное покрытие, построить балки крыши, заделать окна и добавить несколько забавных штрихов, которые сделают его по-настоящему особенным.
ПРОСМОТРЕТЬ ПЛАНЫ
38. План американского готического театра на заднем дворе
Этот американский готический театр любезно предоставлен Southernpine.com. Готовый для печати план, этот шатровый игровой домик напоминает лесную церковь. Большой и вместительный вариант с внутренним пространством 35 футов² и шириной крыльца 2 фута.
Он построен из обработанной под давлением южной сосны, поэтому он разработан, чтобы выдерживать погодные условия на открытом воздухе и усилия игривых детей.Кроме того, интерьер можно обставить детской мебелью, которая должна быть легкой и переносной.
Индивидуальные декоративные элементы, включая почтовый ящик и номер улицы, еще больше приукрашивают жилую атмосферу этого исторического и декоративного варианта. Инструкции проведут вас через список прочных материалов, который включает балки, опорную раму, угловые стойки, настил крыльца, сайдинг, рейки, стропила и отделку.
Что касается инструментов, которые вам понадобятся, они говорят, что вам нужно иметь под рукой пару вещей, включая молоток, торцовочную пилу, дрель, угольник, уровень, циркулярную или поперечную пилу, а также экскаватор для копания почтовых ям.
ПРОСМОТРЕТЬ ПЛАНЫ
39. Крыльцо и детский домик из гальки, строение
«Сегодняшние планы» содержит инструкции по проектированию привлекательного желтого игрового дома на крыльце. Он построен из сосны с окнами из оргстекла. В комплекте с исчерпывающим списком материалов, есть 20 шагов для создания, установки и сборки этого декоративного наружного проекта. Приятные дополнительные штрихи включают дополнительные оконные ставни и ящик для цветов, которые вы можете установить, которые действительно сделают этот предмет популярным.
ПРОСМОТРЕТЬ ПЛАНЫ
40. Дети играют на улице Дизайн коттеджа
Build Eazy предоставляет руководство по проектированию этого детского игрового коттеджа. Более деревенский вид, крыша имеет несколько интересных угловых размеров с треугольными карнизами, которые делают ее действительно уникальной. Они расскажут вам о требованиях к материалам и спроектируют планы, в которых описывается, как построить и собрать все панели, стены, пол, двери и крышу. Строитель отмечает, что крыша, наверное, самая сложная часть.Он говорит, что это потребует некоторой предусмотрительности и измерений, но если вы внимательно будете следовать пошаговым инструкциям, это не должно быть слишком сложно.
ПРОСМОТРЕТЬ ПЛАНЫ
41. Чертеж астрономического навеса обсерватории на заднем дворе
Столяр на Instructables.com предоставляет инструкции по сборке этого уникального варианта — он рекламируется как обсерватория на заднем дворе, построенная из планов навесов. Итак, если вы и ваши дети увлекаетесь астрономией, этот план поможет вам построить бетонную опору для телескопа с адаптером, который находится внутри этого наружного блока.Еще более уникально то, что внутри него находится телескоп с электрическим приводом, и вам придется проделать некоторые работы с электричеством, чтобы обеспечить его питание.
ПРОСМОТРЕТЬ ПЛАНЫ
42. План «Классного комнатного детского игрового домика»
Еще один вариант Instructables — это домашний игровой домик для детей. Он был построен одним из родителей, который обнаружил, что у них есть дополнительное пространство внутри дома, которое они могут использовать, чтобы создать веселую маленькую игровую площадку для своих детей.
Он поставляется в комплекте с лестницей и горкой и устанавливается у двух стен, что означает, что вам нужно будет встроить в конструкцию только две стены.Некоторые уникальные особенности включают внешнюю поверхность классной доски для забавных художественных каракулей и распашную дверь. Строитель предупреждает, что вы должны принять во внимание дизайн и безопасность, чтобы домик не представлял опасности для ваших детей.
ПРОСМОТРЕТЬ ПЛАНЫ
43. План игрового домика «Сокол тысячелетия» из «Звездных войн», сделанный своими руками,
Следующий вариант поистине потрясающий. Это театр, созданный по образцу кабины «Сокола тысячелетия» из «Звездных войн». Планы предоставлены плотником, дети которого одержимы «Звездными войнами».Основной материал — ПВХ плита. Строитель говорит, что предпочитает его, потому что он особенно легко адаптируется. Вы можете нагреть его, приклеить клеем ПВХ, отшлифовать, разрезать и легко покрасить распылением.
Это особенно подробное руководство, строитель даже дает некоторые мысли о своих начальных сеансах мозгового штурма. От начальных набросков, он перешел к дизайну Adobe Illustrator, чтобы начать определять углы и размеры этого завершенного космического корабля.
Поистине потрясающий вариант, красивый черный салон с приборной панелью управления.Не выходить на улицу, лучше расположить его внутри дома, где дети могут весело провести время, представляя, как они перемещаются по межземным галактикам.
ПРОСМОТРЕТЬ ПЛАНЫ
44. Идея нестандартного игрового домика для мальчиков Firestation
Строитель Instructables демонстрирует готовую пожарную станцию мечты Playhouse с американским флагом и завершенной крышкой платформы. Этот большой двухэтажный игровой домик не поставляется с инструкциями на момент публикации, но дает некоторые идеи относительно того, что вы можете построить в помещении, чтобы развлекать и занимать своих детей.
ПРОСМОТРЕТЬ ПЛАНЫ
45. Домик из пряников и конфет, сборка
Еще один невероятно уникальный и крутой вариант — это пряничный домик. Это игрушечный домик для малышей по размеру, меньше, чем некоторые другие варианты, которые мы видели. Он предназначен для использования внутри помещений с конструкцией из цветной папиросной бумаги / картона, снабженной внутренним освещением. Он украшен декоративными конфетами, в том числе палками из сахарного тростника и восхитительной черепицей.
ПРОСМОТРЕТЬ ПЛАНЫ
46.Дизайн складного детского игрового домика
Следующий вариант — складной и переносной игровой домик, который был адаптирован по чертежам для аварийного убежища. Строитель из Техаса сказал, что хотел создать игровой домик на открытом воздухе, который был построен из цельного куска материала, легко воспроизводился и был устойчив к дождю. Что касается материалов, которые вам понадобятся, вы захотите купить коропласт, изоленту, зажимы для бумаг, переходники для сантехники, трубы из ПВХ, хомуты для шлангов, колья и шнур.
ПРОСМОТРЕТЬ ПЛАНЫ
47. План игрового дома из переработанной картонной коробки для детей
Если вы стремитесь к простоте и у вас есть большая картонная коробка, эта изобретательная конструкция может доставить вашим детям некоторое развлечение. Хотя, очевидно, что он не такой прочный, как деревянный вариант, если вы его правильно спроектируете, все сложится, и вы сможете воскресить его снова и снова, к радости ваших детей.
Изготовлен из картона с двойными стенками, который намного более эластичен, чем его аналог с одинарными стенками.Эта простая конструкция требует только рулетки, ножа и маркировочного устройства. В планах проекта показано, как измерить и разметить его, вырезать крышу и пол, создать двери и окна и собрать их вертикально.
ПРОСМОТРЕТЬ ПЛАНЫ
48. Чертеж переносного сборного куполообразного иглу
Еще один портативный вариант — это передвижной сборный купольный домик для игр. Строитель говорит, что это отличное место для детей, но при этом достаточно просторно для взрослых, чтобы их можно было использовать в качестве забавного укрытия на заднем дворе.Однако, чтобы конструировать все детали, вам понадобится хорошо работать с лазерным резаком. После вырезания кусков елового дерева они пересекаются вместе, образуя этот привлекательный купол, который можно использовать даже в корпоративных офисах в качестве забавного, медитативного пространства для людей с 9 до 5.
ПРОСМОТРЕТЬ ПЛАНЫ
49. План игрового дома из переработанного лома и поддонов для дома
Этот деревянный домик из переработанных поддонов напоминает ферму на обочине дороги, где продают овощи и фрукты.Строитель искал проект, который позволил бы собирать существующие материалы на его чердаке.
Он использовал старинный каркас кровати, пару поддонов, переработанный стол и несколько полок для металлолома, чтобы создать этот забавный детский форт. Рельсы кровати были обрезаны и использовались в качестве опор крыши, а сама крыша была сделана из дверей гардероба.
ПРОСМОТРЕТЬ ПЛАНЫ
50. Идея для игрового домика из поддонов и гвоздей из переработанных материалов
Еще один игровой домик из поддонов, он напоминает функциональный деревянный навес для хранения инструментов для озеленения.У него даже есть удобная небольшая аппарель и фиксатор. Он облицован металло-полиэфирной фольгой и скреплен сотнями шурупов с использованием плиты OSB толщиной 9 мм для крыши.
ПРОСМОТРЕТЬ ПЛАНЫ
Это причудливое убежище на заднем дворе продается как очень большая собачья будка или, возможно, маленький детский игровой домик, построенный из подручных материалов. Он окрашен в светло-черничный цвет и имеет забавную распашную дверцу с прикрепленным наружным светом.
Строитель говорит, что построила его для своего немецкого короткошерстного пойнтера, который был немного невротичным.Что действительно делает его особенным, так это вся отделка: его любящая отделка, продуманные окна, мягкая собачья кровать, высококачественный дубовый пол и надежная защита от атмосферных воздействий.
Эта женщина-плотник предоставляет подробный список материалов, который включает инструкции по типу стропил, чернового пола, фундамента, обшивки, строительного покрытия, кровельного покрытия и изоляции, которые вы хотите приобрести.
ПРОСМОТРЕТЬ ПЛАНЫ
52. Холст, парус, пиратский домик, дизайн
Еще одно потрясающее творение — этот домик пиратского корабля на заднем дворе.Это оригинальное сооружение, на создание которого у строителя ушло все лето. Строитель пишет, что он плотник-любитель, который работает в офисе, но имеет опыт работы в береговой охране.
Он построен на пожертвованной цементной брусчатке и из остатков палубной древесины. В инструкциях вы узнаете, как создать черновой пол и палубу, как собрать мачту и воронье гнездо, а также как завершить квотерку с рулевым колесом в натуральную величину.
ПРОСМОТРЕТЬ ПЛАНЫ
53.Дизайн игрового домика для пляжного навеса
Еще один привлекательный вариант — это игровой домик на берегу моря. Он окрашен в мятно-синий цвет и снабжен видео, помогающим описать процесс его строительства.
ПРОСМОТРЕТЬ ПЛАНЫ
54. Идея театра и кукольной сцены из ПВХ
Это домик из ПВХ, который можно использовать как кукольную сцену. Он действительно выглядит немного грубоватым по краям, но если вы ищете импровизированный детский театр под открытым небом, это отвечает всем требованиям.Строитель говорит, что его вдохновили построить эту кукольную сцену, чтобы мотивировать троих своих детей больше играть на улице.
Кроме того, поскольку ассоциация его домовладельца запрещает ему строить постоянные конструкции на заднем дворе, этот небольшой передвижной театр под открытым небом является удобным компромиссом.
Когда он размышлял о том, что построить, некоторые из критериев включали поощрение творчества, наличие достаточного места для нескольких детей, простоту сборки, удобство хранения, надежность и доступность.
ПРОСМОТРЕТЬ ПЛАНЫ
55. Чертеж солнечной качели и фотоэлектрического домика
Еще один уникальный вариант — игровой домик с качелями на солнечных батареях. Строитель старается сказать, что солнечные батареи не питают качели. Вместо этого детская игровая площадка функционирует как наземное крепление для поддержки панелей.
Из-за конструкции его дома было трудно найти подходящее место для установки солнечных панелей, поэтому он решил, что «два зайца одним выстрелом», он мог бы просто установить их на импровизированной конструкции на заднем дворе.Этот целеустремленный плотник фактически купил готовый игровой набор на Craigslist, а затем разобрал и перестроил его в соответствии со своими требованиями.
ПРОСМОТРЕТЬ ПЛАНЫ
56. План переделанного микроавтобуса
Еще один совершенно уникальный вариант — это переоборудованный автобус с двухъярусной кроватью. Очевидно, вам захочется накрыть верх крышкой, если вы хотите хранить его на открытом воздухе, или просто снимите матрас сверху. Интерьер функционирует как игровая площадка, а верх — как спальная поверхность.Хотя, как отмечает создатель, вы действительно можете адаптировать его, чтобы создать что-то совершенно уникальное для ваших личных нужд.
ПРОСМОТРЕТЬ ПЛАНЫ
57. Домик для горок и качелей, постройка
В этом красивом деревянном домике для игр на дереве есть горка, качели, стена для лазанья, лесная лестница и широкая крыша, а также внутренняя песочница.
ПРОСМОТРЕТЬ ПЛАНЫ
58. Двухэтажный игровой домик с балконом чертеж
Этот двухэтажный игровой домик с балконом был спроектирован парой компьютерных инженеров, которые, по общему признанию, не имеют опыта работы с деревом или строительства.Их видеообзор документирует их процесс, а также предоставляется подробный список материалов, чтобы вы могли воспроизвести этот необычный проект.
ПРОСМОТРЕТЬ ПЛАНЫ
59. План доктора Сьюза Вэки снаружи театра
Instructables предоставляет руководство по проекту для этого дурацкого домика причудливой формы, вдохновленного доктором Сьюзом. Как видите, у него много разрозненных и странных углов, которые придают ему странный, почти галлюцинаторный вид. Строитель говорит, что он решил использовать нарисованные от руки планы, чтобы набросать свои идеи, в отличие от компьютерного программного обеспечения, которое не могло соответствовать его причудливому видению.
ПРОСМОТРЕТЬ ПЛАНЫ
60. План домика деревянного пиратского корабля
Это второй деревянный домик пиратского корабля, который мы видели в этом списке. Строитель говорит, что на строительство у него ушло около 37 часов, и это обошлось ему примерно в 1200 долларов. По сравнению с предварительно настроенными вариантами, которые стоят более 5000 долларов, он говорит, что рад, что сделал это самостоятельно. Он включает в себя воронье гнездо, распродажу, прогулочную доску и прикрепленные качели.
ПРОСМОТРЕТЬ ПЛАНЫ
61. Кровать-чердак для игрового домика с кладовой. Идея
Ана Уайт предоставляет инструкции по созданию этого двухэтажного розового игрового дома в стиле лофт.На самом деле это тоже двухъярусная кровать, и ее можно адаптировать под разные размеры. По ее оценкам, стоимость составит около 350 долларов, а сборка у новичков займет около 20 часов.
ПРОСМОТРЕТЬ ПЛАНЫ
62. План уличного домика из фанеры и кедра
В этом доме для игр на открытом воздухе есть горка, стремянка, огороженная веранда с детскими стульями Adirondack и веревкой для белья. Окна сделаны из оргстекла, и некоторые дополнительные декоративные элементы включают солнечный свет, дверной звонок и некоторые внутренние удобства, включая скамейку, стол и стеллажи.Предполагается, что его строительство будет стоить около 900 долларов и требует навыков среднего уровня. Он расположен в просторном заднем дворе и действительно обладает всеми элементами детского дома для развлечений.
ПРОСМОТРЕТЬ ПЛАНЫ
63. Детский домик с конструкцией скалодрома
В этом детском игровом домике есть небольшая стена для скалолазания. Он построен между деревьями, которые помогают обеспечить дополнительную структурную поддержку, и его строительство стоит около 850 долларов.Особенно симпатичный вариант, он покрыт слоем грунтовки и двумя слоями краски.
ПРОСМОТРЕТЬ ПЛАНЫ
64. Дизайн кровати-чердака The Indoor Playhouse
Еще одна комбинация игрового домика с кроватью-чердаком — это бело-голубой вариант с лестницей и горкой. Строитель говорит, что они хотели переделать спальню своего сына в тематике «Истории игрушек». Говорят, они заставили Home Depot вырезать всю фанеру до нужных размеров — это значительно упростило им весь процесс строительства.
ПРОСМОТРЕТЬ ПЛАНЫ
65. Чертеж игрового домика с остроконечными качелями
Еще один вариант игрового форта в виде домика на дереве, он поставляется с прилагаемым набором качелей и включает в себя горку, а также стремянку. Клуб игрового дома расположен на усиленной палубе, и если вы изучите детали проекта, эта конкретная постройка была установлена на склоне крутого холма.
ПРОСМОТРЕТЬ ПЛАНЫ
66. Персиково-розовый дизайн мини-дома
Эта мастерица по дереву решила создать забавный и милый домик для своего ребенка.Имеет нежную желто-розовую окраску. Вместо того, чтобы покупать комплект и строить что-то, что выглядело бы предварительно собранным, они погрузились в онлайн-исследования, чтобы узнать о планах проекта маленького игрового домика в стиле типичного парня. На создание готового продукта ушло около двух недель, и он стоил чуть меньше 350 долларов.
ПРОСМОТРЕТЬ ПЛАНЫ
67. План наружного лофта «Закрытая песочница»
Еще один красивый домик на заднем дворе с некоторыми творческими и декоративными деталями — это вариант с веб-сайта Аны Уайт.Внизу находятся песочница и классная доска, а на палубе есть рулевое колесо. Строитель оградил песочницу проволочной сеткой, чтобы кошки не попадали внутрь. Строитель комментирует, что они использовали краску Dunn Edwards для крыши — она называется Louisiana Mud, а стены игрового дома были покрыты белоснежной краской от Lowe’s.
ПРОСМОТРЕТЬ ПЛАНЫ
68. Сарай Дворца принцесс, постройка
Еще один очаровательный вариант — деревянный замок этой девушки. Он расположен на возведенной платформе-настиле и украшен красивой черепицей и некоторыми оригинальными украшениями.Список инструментов помогает сформулировать, что вам нужно иметь под рукой для сборки, и включает в себя молоток, карандаш, скоростной угольник, дрель, торцовочную пилу, гвоздезабиватель, рулетку и степлер.
ПРОСМОТРЕТЬ ПЛАНЫ
69. Роскошный дизайн игрового домика под лестницей
Этот вариант оформления в рождественской тематике находится под лестницей и включает красивую отделку из черепицы, дверь, разрезанную пополам, и вешалки для цветов, установленные под прорезными окнами. Столяр говорит, что, поскольку они живут в холодном климате, имело смысл создать для детей игровое пространство, которое не занимало бы ненужной площади на полу.Работник по дереву говорит, что их вдохновили несколько разных планов проекта — они получили мотивацию из разных источников для создания этой полностью индивидуализированной конструкции.
ПРОСМОТРЕТЬ ПЛАНЫ
70. План детского игрового домика под лестницей
Другой вариант под лестницей — это прибрежный таунхаус с подвесной кормушкой для птиц, гирляндами, прорезью для почты и подвесным фонарем. В интерьере есть дополнительный ламинат и карнизы с красивыми дверями сарая и поистине старомодный вид.Кедровая черепица покрыта тенью темного ореха, и мастеру по дереву среднего уровня на завершение работы потребовалось около 20 часов.
ПРОСМОТРЕТЬ ПЛАНЫ
71. Игра в спальне для девочек Fort Plan
Эта очаровательная кровать-чердак в виде домика для игр окрашена в персиковый, розовый и светло-желтый цвета, что делает ее идеальным дополнением спальни принцессы в спальне девушки. Строитель говорит, что они использовали 6-дюймовые доски, а не фанеру, чтобы придать ему вид доски. Несмотря на то, что он похож на игровой форт для девочек, плотник говорит, что ее дети мужского пола тоже любят на нем играть.Это проект среднего уровня, на создание которого потребуется более 20 часов самоотверженной работы.
ПРОСМОТРЕТЬ ПЛАНЫ
72. Проект дома для патриотических игр
Этот патриотический дом для игр на открытом воздухе имеет настоящую черепичную крышу с белым забором на крыльце, на котором изображен американский флаг. Строитель говорит, что местная государственная школа его сына попросила его построить что-нибудь для их ежегодного аукциона, и это то, что он придумал. Он купил несколько планов в Вудкрафте.com, и он решил не использовать кедровую древесину, потому что она не так хорошо окрашивалась. В общей сложности, по его словам, он стоит около 800 долларов, построен из сосны и обычной фанеры, и на его завершение у него ушло около 20 часов.
ПРОСМОТРЕТЬ ПЛАНЫ
73. План каркаса игрового домика с тканевой драпировкой
Уникальный вариант — это всего лишь каркас домика. С ним можно делать много творческих вещей — например, задрапировать его одеялом или занавесками для создания забавных атмосферных эффектов. Это действительно дешево в строительстве — планировщик проекта говорит, что строительство стоит менее 20 долларов и действительно подходит для украшения дома.Это особенно доступный и простой в сборке вариант, он имеет минималистичный внешний вид.
ПРОСМОТРЕТЬ ПЛАНЫ
74. Дизайн коттеджа маленькой детской
Этот следующий игровой домик разработан для небольших помещений и включает в себя кровать-чердак, а также небольшую внутреннюю зону, которую можно оборудовать детскими стульями и другими принадлежностями. Строитель говорит, что у них была запасная кладовая размером 6 футов на 13 футов, которую они хотели превратить в игровую площадку для своей дочери.
Строитель говорит, что они изменили существующие планы проекта, чтобы приспособить небольшое пространство, с которым ему пришлось работать, и использовали планки на трех стенах, чтобы удерживать его.Поскольку чердак необычного размера, он вырезал из пеноматериала специально для этого места, и теперь это любимое место его дочери и ее друзей для просмотра потоковых фильмов на Netflix.
Это действительно потребовало большой подготовки — плотник говорит, что он использовал Sketchup для создания планов проекта, и это действительно был пример того, как дважды отмерить один раз.
ПРОСМОТРЕТЬ ПЛАНЫ
75. Дизайн кровати-чердака «Домик королевского размера»
Кровать-чердак в домике размера «queen-size» — это забавный и немного дурацкий вариант, который включает в себя закрытую лестницу и миниатюрную горку с внутренним пространством для полок.Строитель говорит, что на его завершение ушло четыре недели, но это потому, что они могли посвятить работе только один выходной в неделю.
Строитель тщательно сконструировал его так, чтобы его было относительно легко разобрать, если он переедет в будущем. Пройдя через это трудное строительство, плотник рекомендует потратить много времени на планирование, сначала вырезать всю древесину, покрасить ее, прежде чем она будет собрана, и убедиться, что вы придерживаетесь плана, а не допускаете диких отклонений.
Хотя строители впечатлены тем, что они создали, они говорят, что горка слишком узкая, шириной всего в фут — они рекомендуют сделать ее шириной не менее полутора футов. Кроме того, горка слишком крутая под углом 45 °, они рекомендуют иметь более пологий уклон, чтобы снизить риск падения, когда ваш ребенок спустится с нее.
Строитель потратил много времени на декоративные элементы и даже дополнил их забавной табличкой с именем над внутренней дверью игрового домика.
ПРОСМОТРЕТЬ ПЛАНЫ
Общие вопросы строителя
Проведя обширное исследование того, как планировать, строить и иным образом собирать игровой домик, мы столкнулись с некоторыми общими вопросами и проблемами, которые возникают у перспективных строителей. Подводите итоги и планируйте заранее — так вы сможете предвидеть потенциальные препятствия.
- Какова точная высота этажей внутри игрового домика?
- Нужны ли для их изготовления циркулярные или поперечные пилы?
- Можете ли вы добавить туда раковину или плиту?
- Каковы точные внутренние размеры?
- Какой высоты дверной проем? Поместится ли внутрь шестилетний ребенок ростом 40 дюймов?
- Где лучше всего купить открытый, устойчивый к погодным условиям игровой домик, если вы не хотите его строить?
- Какие инструменты необходимы для постройки полностью собранного дома на открытом воздухе?
- Какова его высота от пола до крыши?
- Как построить пластиковый домик для игр и хранить его внутри или снаружи?
- Можно ли покрасить пластиковый домик для игр?
- Стоит ли красить уличный игровой домик?
- Пол в домике голый и обращен к земле или у него деревянный пол?
- Сколько в среднем стоит построить простой игровой домик на открытом воздухе?
- Могу ли я построить домик на лужайке или мне нужно закрепить его на земле с помощью опросов?
- Можно ли утеплить игровой домик или оставить его неизолированным?
- Как лучше всего осветить интерьер игрового домика?
- Можно ли превратить неиспользуемый домик или сарай в открытое пространство для игр детей?
- Какое решение для наружного отопления лучше всего обогреть интерьер игрового домика?
31 Бесплатные планы для создания игрового домика своими руками для тайного убежища ваших детей
Вы когда-нибудь представляли, как круто было бы иметь тайное убежище в детстве?
Ну, угадайте, вы, дети, тоже.
Игровые домики могут быть очень интересными для детей. Они могут часами играть в нем со своими игрушками и друзьями вместо того, чтобы лежать дома с новейшими гаджетами.
В наши дни это роскошь.
Кроме того, домик для игр — это увлекательный проект по деревообработке, которым можно заниматься всей семьей. Итак, если вы ищете легкий проект, который можно завершить за выходные, то вот он.
Для начала у нас есть коллекция из 31 бесплатного плана игрового дома «сделай сам» с изображениями и пошаговыми инструкциями, которым нужно следовать.
Приступим.
1. Простые планы комнатного игрового домика
Ужасает ли вас мысль о постройке миниатюрного домика? Я бы сказал, что вы не одиноки. И после этой дизайнерской идеи вам больше не придется пугаться этой мысли.
Потому что этот игровой домик имеет очень простой и уникальный дизайн. Но это все еще на открытом воздухе, и, похоже, вашим детям будет весело и модно гулять на заднем дворе.
Постройте этот игровой домик ›
2.Летний уголок для чтения
Ваш ребенок книжный червь? Что ж, тогда вознаградите их за отличное поведение, предоставив им уголок для чтения на открытом воздухе.
И этого можно довольно легко достичь с помощью этого замечательного плана. Затем они могут украсить его и позволить ему стать их личным пространством.
Постройте этот игровой домик ›
3. Планы игрового домика принцессы
Этот игровой домик просто очарователен. Если у вас есть маленькие или девочки, которые любят притворяться принцессами, то это может быть то, что им абсолютно нравится.
И это, безусловно, добавит яркости вашему двору. Кажется, что он довольно подробный, но если вы опытный строитель, он может быть вам подойдет.
Постройте этот домик для игр ›
4. Игровой домик в стиле гвоздик
Вам нравится дом в стиле глыбы? Что ж, я лично большой поклонник этого. Мне нравится, насколько это естественно. И выглядит очень прихотливо.
Итак, если вам нравится внешний вид в стиле початков, почему бы не использовать его в качестве источника вдохновения для создания игрового домика? С травяной крышей и ее естественным внешним видом ваш ребенок обязательно будет чувствовать себя запертым в лесу независимо от того, где он находится.
Постройте этот домик для игр ›
5. Замок Форт
У вас есть маленький рыцарь, который сидит за вашим кухонным столом? Что ж, если да, то почему бы не отдать ему собственный замок?
Но я не говорю о строительстве ему буквального замка. Вместо этого я думаю о миниатюрной версии как о игровой крепости. Таким образом он сможет бегать, играть и притворяться целый день. Я знаю, моим мальчикам это понравится!
Постройте этот игровой домик ›
6. Клубный дом Sleep-N-Play
Это действительно изящный игровой домик.На самом деле это домашний игровой домик. Но в этом тоже есть свои преимущества.
И главное, этот домик для игр можно использовать и как домик, и как кровать. Так что, если вы думаете, что у вас нет места снаружи для игрового домика, вам действительно стоит присмотреться к нему.
Постройте этот домик для игр ›
7. Убежище
Это убежище такое классное. На фото они одеты так, будто это больше для девушки. Но и его можно было легко перекрасить и под мальчика.
А в этом домике для игр даже есть горка как дополнительный выход.Это кажется достаточно простым в сборке. Так что, если вы ищете изящный проект для своего ребенка, возможно, вам стоит присмотреться к нему поближе.
Постройте этот домик для игр ›
8. Счастливый домик на дереве
Этот домик на самом деле представляет собой домик на дереве. Однако он не такой обширный, как может показаться домиком на дереве. Вместо этого у него есть база, на которой он построен, и набор шагов для входа в него.
Так что, если вы хотите домик для игр, который немного отличается от традиционного стиля, то обратите внимание на этот.Дизайн действительно симпатичный. И, честно говоря, я хочу себе такую.
Постройте этот игровой домик ›
9. Треугольный игровой домик
Этот игровой домик очень отличается. Это треугольник по сравнению с традиционным игровым домиком в стиле коробки. И крыша фактически служит дверью. Это удобно, потому что помогает защитить все, что внутри, от элементов.
Но что уникально, так это то, что этот домик двухэтажный. Таким образом, он был бы достаточно большим, чтобы вместить несколько детей. Но тоже очень уникальный.
Построить этот домик для игр ›
10. Домик из поддонов
Звучит ли идея иметь домик дорого? Что ж, тогда внимательно рассмотрите эти планы. Ведь этот домик для игр сделан из поддонов.
И я не могу сказать достаточно о том, насколько хороши поддоны для сборки. Они прочные и недорогие. Поэтому, если вы работаете с ограниченным бюджетом, не откажитесь от идеи построить домик для игр. Просто поищите такие планы.
Постройте этот игровой домик ›
11.Планы игрового домика в деревенском стиле из поддонов
Последний домик, построенный из поддонов, который я вам показывал, выглядел так, как будто он идеально подходит для девчушки. Но что, если у вас есть мальчик или девочка, которым не нравится розовый цвет?
Ну вы посмотрите на этот домик! Изготавливается из поддонов. И он немного более открытый, чем некоторые другие показанные игровые дома. Кроме того, это тоже похоже на простую сборку.
Построить этот домик для игр ›
12. Домик с высокими потолками
Этот домик для игр похож на многие традиционные игровые домики.Основное отличие в том, что этот домик находится над землей.
Так что, если у вас есть ребенок, который хотел бы почувствовать себя «королем или королевой мира», присмотритесь к этим планам игровых домов поближе. Похоже, этот домик понравится большинству детей.
Постройте этот домик для игр ›
13. Кукольный домик
Если вашим детям нравится идея иметь портативный игровой домик, то этот кукольный домик может легко подойти им. Однако для создания этого кукольного домика потребовалось бы немного больше усилий.
Итак, если вы тот, кто любит создавать небольшие проекты. Тогда это может подойти. И вашему ребенку, надеюсь, понравится кукольный домик ручной работы, который он сможет носить с собой.
Постройте этот домик для игр ›
14. Игровой домик из бревенчатой хижины
Я люблю бревенчатые домики. Поэтому я мог только представить, как был бы взволнован, когда был ребенком, если бы кто-то построил мне игровой домик из бревенчатой хижины.
И если вы или ваш ребенок любите бревенчатые домики (или Lincoln Logs), им тоже может понравиться этот домик.Кроме того, на этом сайте говорится, что вы можете построить его менее чем за 300 долларов!
Построить этот театр ›
15. Театр из поддонов 1950-х годов
Вы когда-нибудь смотрели« Чудесные годы »? Что ж, я был большим поклонником этого шоу. И как только я увидел этот дом, он напомнил мне дом, который можно было увидеть в пригороде примерно в 1950-х годах.
Итак, если вы хотите построить для своего ребенка домик в классическом стиле в качестве игрового домика, взгляните на эти планы игрового домика. Кроме того, он может быть построен из поддонов, что должно помочь снизить стоимость проекта.
Постройте этот домик для игр ›
16. Домик со слайдом
Вспомните, как здорово было в детстве иметь место, которое принадлежит вам. Я знаю, что чувствовал то же самое на своих старых качелях.
Итак, насколько круче этот игровой набор, если к нему прикреплен слайд? Я думаю, что большинству детей действительно понравился бы этот домик, если бы по той причине, что это было их собственное пространство.
Постройте этот домик для игр ›
17. Playhouse Fort
В детстве есть что-то забавное в домике для игр, который был выше всего остального мира.Вы чувствуете, что находитесь на своей земле.
И это то, что делает этот домик таким особенным. Дело в том, что это форт с крутыми входами и выходами, который создает забавное пространство, чтобы дать волю вашему воображению.
Постройте этот игровой домик ›
18. Планы игрового домика пиратского корабля
Этот игровой домик потрясающий! Кто бы не хотел иметь это большое игровое пространство, похожее на пиратский корабль.
И я не думаю, что имеет значение, есть у вас мальчики или девочки.Я почти уверен, что любой из полов хотел бы иметь этот пиратский корабль как свой собственный.
Постройте этот игровой домик ›
19. Театр, вдохновленный тем салуном
У вас есть ребенок, который любит изображать из себя ковбоя или старого западного шерифа? Что ж, в таком случае вам обязательно захочется ознакомиться с планами этих игровых домиков.
И что делает его таким крутым, так это то, что он спроектирован в стиле старого западного седана. Так что, если ваши дети очарованы диким западом, то это вполне может стать для них домом для игр.
Построить этот домик ›
20. Планы домика Сарая
Мне очень нравится этот домик. Думаю, это потому, что у моей прабабушки был крошечный сарай такого размера на заднем дворе.
И я много играл там в детстве. Итак, по моему опыту, это выглядит как действительно потрясающий игровой домик. И я надеюсь, что ваши дети отлично проведут время в своем домике для игр, как и я в сарае моей прабабушки.
Постройте этот игровой домик ›
21.Дом Венди
Я кое-что узнал, когда увидел эти планы домиков. Я никогда не слышал об этом стиле домиков, именуемом «Дом Венди».
Но это правильное название для него. По сути, это игровой домик с некоторыми женскими чертами. Так что, если вам нужен более женственный дом для игр, это может быть хорошим выбором для вас.
Построить этот домик ›
22. Планы театрального домика в американском готическом стиле
Это красивый кукольный домик. Если вы поклонник готического стиля, то наверняка вам понравится этот дизайн.Это действительно напоминает мне старую деревенскую церковь.
Так что, если вы меньше о современном дизайне, а больше о возвращении старых дизайнов, вам определенно захочется проверить этот.
Постройте этот домик для игр ›
23. Деревянный домик для игр
Итак, допустим, вы не профессионал в строительстве. И вам действительно просто нужен простой дизайн с простыми материалами, которые вы можете попробовать.
Ну, это обычный деревянный домик для игр. Дизайн кажется достаточно простым.И с некоторой помощью у вас, вероятно, будет успешная сборка.
Постройте этот игровой домик ›
24. Игровой домик в малайском стиле
Я не настолько глуп, чтобы думать, что каждый, кто читает этот блог, живет на юге (как и я). Я знаю, что некоторые из вас, счастливчики, должны жить островная жизнь где-то.
Имея это в виду, я представляю вам этот красивый дом для игр, вдохновленный островом. Похоже, он идеально впишется в дом вашей гавайской мечты. Или даже на заднем дворе, окруженном несколькими растениями.
Построить этот домик для игр ›
25. Маленький желтый домик для игр
Мне нравится этот домик в традиционном стиле. Мне всегда нравились маленькие желтые домики. В них есть что-то, что я нахожу абсолютно восхитительным и просто очень приветливым.
Поэтому неудивительно, что я думаю, что этот игровой домик очень гостеприимен для детей. Это просто похоже на идеальное место для игры в воображаемый дом.
Постройте этот домик для игр ›
26. Игровой коттедж
Этот коттедж определенно привлек мое внимание.Он выглядит очень просто в сборке, потому что это всего лишь дерево и основные пропилы.
Но именно мелкие детали делают его таким особенным. Обожаю деревянный штакетник. Это просто похоже на место, где дети могут собраться и отлично провести время.
Постройте этот домик для игр ›
27. Форт из ПВХ-труб
Этот форт такой аккуратный. Вы можете установить его внутри или снаружи. И вы можете использовать любой материал, который хотите покрыть снаружи. Это означает, что он может быть таким уникальным, как вы этого хотите.
Но что замечательно, так это то, что этот форт кажется таким простым в строительстве.Так что, даже если вы думаете, что ничего не можете построить, вам нужно проверить этот план.
Постройте этот домик для игр ›
28. Домик для игр в помещении
Такой классный дизайн. И, честно говоря, я бы никогда не придумал сам. Так что слава дизайнерам!
Но они построили парадное крыльцо кукольного домика напротив туалета. И тогда шкаф — настоящий домик для игр. Я взрослый человек, и мне бы это понравилось, как вступление в мой офис! (Просто шучу….что-то вроде!)
Постройте этот домик для игр ›
29. Детский форт
Когда я увидел это, это мгновенно вызвало у меня отклик, как то, что понравится моим мальчикам. И мы, вероятно, построим для них.
Но что мне нравится, так это то, насколько он простоват. И это похоже на то, в чем вы могли бы быть в какой-то мере (что, уверяю вас, мои мальчики).
Постройте этот игровой домик ›
30. Ковбойский домик
Мне нравится термин« ковбойский конструированный »и вот как дизайнер сказал, что они построили этот красивый домик для игр.Они не могли придумать никаких планов.
Итак, они просто пошли на лесной склад и начали строить. А затем вернулся и запечатлел планы театрального домика на бумаге, чтобы другие могли почерпнуть из того, что они сделали. Должен сказать, они проделали большую работу, потому что это красивый домик для игр.
Постройте этот игровой домик ›
31. Дизайнерский игровой домик
Я буду честен. Хотел бы я сделать так, чтобы мой дом выглядел так хорошо. Этот домик для игр красив, но в то же время деревенский.
И все прекрасные цветы, которые они поставили вокруг него, просто пошлите их наверх.Так что, если вы ищете простой дизайн, который понравится вашим детям, вам стоит проверить эти планы игрового домика.
Постройте этот игровой домик ›
Была ли эта статья полезной?
Да Нет ×Мы ценим ваши полезные отзывы!
Ваш ответ будет использован для улучшения нашего содержания. Чем больше отзывов вы дадите нам, тем лучше будут наши страницы.
Следуйте за нами в социальных сетях:
Facebook Pinterest
|
Строительство детского форта | HGTV
4 2x6s
10 настил 5 / 4x6x8
4 стойки 4×4
4 1x6s для перил
6 листов фанеры 1/2 «
20 2x4s
краска
12 подвесов для балок 2×6
4 пакета быстросхватывающегося бетона
зажимов
гофрированный пластик
угловая коробка
циркулярная пила
сабельная пила
лобзик
молоток и гвозди или пистолет для гвоздей
уровень
бензопила
фрезерный станок с закругляющим битом
1.Измерьте платформу 4×8, отметив четыре угла. Выкопайте ямки по углам для столбов 4х4.
2. Насухо установите стойки в отверстия. Начните вешать полоски 2×6 по периметру от высокого угла, следя за тем, чтобы доски находились на одном уровне друг с другом. Полоса по периметру будет действовать как граница для пола, а также укреплять стойки, пока бетон схватывается.
4. Залить быстросхватывающийся бетон в отверстия в соответствии с инструкциями производителя.При необходимости добавьте дополнительные распорки. Дайте высохнуть.
3. Дважды проверьте стойки, чтобы убедиться, что они ровные.
5. Пока бетон застывает, постройте дом из фанеры 2х4. Обрежьте фанеру до желаемых размеров и сделайте каркас, соответствующий 2×4. Прибейте фанеру к каркасу. Для этого проекта они вырезали переднюю стену с основанием шириной четыре фута и верхом шириной шесть футов. Задняя стенка имеет ширину четыре фута внизу и пять футов вверху, а боковые стороны подогнаны по размеру.После того, как стены построены, скрепите их зажимами, а затем прибейте.
6. Крыша представляет собой сетку 2х4 с прорезями в стропилах. Прикрепите гофрированный пластик, просверлив отверстия в древесине и прикрутив его.
7. Обрежьте двери и окна там, где нужно. Проведите маршрутизатором с закругленной насадкой вокруг всех отверстий, чтобы защитить пальцы детей.
8.Установите перекрытия пола 2×4, забив гвоздями внешнюю часть периметра. Чтобы закрепить балку, установите подвесы на каждом конце каждой балки.
9. Обрежьте задние стойки заподлицо с балкой пола. Отрежьте передние стойки на высоте 24 дюймов над балкой пола. Эти стойки будут использоваться для поддержки перил.
10. Уложить настил и прибить к балкам перекрытий.
11.С помощью поставьте построенный дом на платформу и закрепите, забив гвоздями нижнюю часть каркаса в настил.
12. Прибейте 1х6 к столбикам, чтобы создать перила вокруг балкона.
13. Постройте угловую стремянку к форту по двум поручням 2х4. Отрежьте три или четыре горизонтальных ступеньки с помощью 2х4 и циркулярной пилы. Прибейте ступеньки к перилам с помощью пистолета для гвоздей или молотка и гвоздей.Прикрепите крышу, забив гвоздь через верх рамы.
43 Бесплатные планы детских домиков, которые понравятся как детям, так и родителям
Заявление об ограничении ответственности | Эта статья может содержать партнерские ссылки, это означает, что мы можем получить небольшую комиссию за соответствующие покупки бесплатно для вас.
Вы когда-нибудь задумывались о том, чтобы развлекать своих детей на свежем воздухе? Вы устали видеть, как они целый день играют в видеоигры и смотрят телевизор? Теперь вы можете подарить своим детям их собственный игровой домик — отличный стимул, чтобы они играли под солнцем прямо у вас на заднем дворе.
Игровой домик — это небольшой клуб или дом для развлечений на заднем дворе, где дети могут играть, читать и вздремнуть. Имея рядом с домом игровой домик, вам не нужно беспокоиться о том, что вы потеряете из виду своих детей. Так что вы тоже можете проверить сейф.
Построить маленький игровой домик для ваших детей и их друзей, где они могли бы проводить время и играть, становится проще, чем домики на деревьях. Поскольку сырье и строительные инструменты доступны по очень экономичным ценам, все, что вам нужно, — это небольшая мотивация, чтобы начать работу над проектом на заднем дворе.
43 Бесплатные планы для игр DIY
Итак, соберите свои инструменты, позвольте своему воображению и инстинкту взять на себя ответственность, и вы получите один из этих прекрасных игровых домиков прямо в вашем саду. Попробуйте эти планы DIY Playhouse.
Легкий домашний игровой домик
Давайте начнем с этого простого и простого плана игрового домика. Это миниатюрный сарайчик простого вида, но вы можете изменить его разными способами. Вы можете вырезать окна любой формы, накрыть их шторами или прикрепить к ним ящики для цветов.Если вы добавите небольшие полки внутрь, то сможете хранить любимые игрушки и игры вашего ребенка. Поскольку это деревянный фасад, вы можете покрасить его в разные цвета. Если повесить на крышу рождественские гирлянды, ночью она будет выглядеть волшебно.
Более подробная информация на jenwoodhouse.com
Простой деревянный домик для игр
Этот игровой домик — действительно потрясающий проект для малобюджетного и компактного плана. Для сборки используются обычные базовые продукты, поэтому вам вряд ли нужно покупать сырье.Поскольку этот игровой домик имеет небольшие размеры, он вполне подходит для малышей и подростков.
Кажется, что крышу, двери и окна построить достаточно легко, так что это не займет у вас много времени или усилий. Дизайнер этого домика использовал самодельную трехмерную стену, которая, честно говоря, придает домику другой вид. В целом этот игровой домик кажется прекрасным местом для времяпровождения маленьких детей.
Более подробная информация на сайте Instructables.com
Простой уличный игровой домик
Это еще один простой домик для игр, который можно построить на заднем дворе.Инструкциям очень легко следовать, с визуальными пошаговыми инструкциями для справки. В нем есть небольшая игровая комната с верандой перед входом. В нем используется одна наклонная крыша, ведущая к главной комнате, а затем к крыльцу.
Мне нравится то, что они использовали каркас настоящего дома и превратили его в домик для игр. Это обязательно вызовет улыбку у ваших детей.
Более подробная информация на сайте howtospecialist.com
Дом Венди
Wendy House — это вышеупомянутый простой дом с женственными элементами.Но не волнуйтесь, эту идею можно использовать как игровой домик для всех детей. Перед домом есть небольшое крыльцо, обнесенное забором, и покатая крыша. Вы можете украсить домик как внутри, так и снаружи так, как нравится вашим детям.
Добавление небольшого стола и стульев на крыльцо будет выглядеть восхитительно. Если поставить вокруг забора горшки с цветами, дом будет выглядеть мило, возможно, детям будет интересно ухаживать за собственным небольшим садиком. Вы даже можете нарисовать героев мультфильмов на стенах, чтобы добавить красок своему маленькому игровому домику.
Более подробная информация на сайте buildeazy.com
Традиционный театр
Если вы планируете построить у себя на заднем дворе традиционный игровой домик без всех тематических дополнений, эти планы — это то, что вы искали. Это что-то вроде миниатюрного домика с огороженной верандой перед входом. Окна большие, пропускают много солнечного света и бриз.
Домашний декор кажется необычным. Это напоминает мне красивые дома из английской деревни.Пастельные тона, нарисованные снаружи, только добавляют свежести дому. Этот домик просто излучает счастье, когда на него смотришь.
Более подробная информация на сайте todaysplans.net
Театр «Сарай»
У вас на заднем дворе стоит сарай, а внутри только хлам? Как насчет того, чтобы превратить весь сарай в игровой домик! Это будет простой план для тех, кто не имеет опыта в строительстве приусадебных участков, но все же хочет взяться за них.
Избавиться от плесени просто. Вы можете сделать окна из местного магазина, починить сломанные деревянные доски, добавить свежий слой краски и т. Д. Ваш основной игровой домик на заднем дворе готов к использованию.
Более подробная информация на aplaceimagined.com
Театр из поддонов
Если у вас ограниченный бюджет и вы не привыкли к детальным конструкциям своими руками, этот дизайн домика идеально подходит для небольшого проекта.Весь игровой домик построен из готовых или переработанных деревянных поддонов. Эти деревянные поддоны легко доступны.
Вы можете перепрофилировать и модифицировать поддоны в соответствии с вашим дизайном. Вы можете экспериментировать с разными формами, повторно использовать старое дерево или использовать разные цвета, чтобы раскрасить этот блестящий игровой домик. Думаю, этот дом будет красивее с подвесными цветочными горшками или виноградной лозой. Твои мысли?
Более подробная информация на сайте Instructables.com
Старый дом из поддонов
Этот игровой домик напомнит вам о детстве, проведенном в деревне у бабушки и дедушки.Это простой дизайн, похожий на образец 1950-х или 1960-х годов. Это необычное место с дверью и большими окнами, сквозь которые много солнечного света.
Изготовлен из деревянных поддонов, так что будет не так дорого. Попробуйте эту идею, и вы увидите, как ваши дети заново переживут ваше детство в доме ваших бабушек и дедушек. Вы можете посидеть у игрового домика, рассказать им старые сказки и удивить их.
Более подробная информация на сайте Instructables.com
Деревенский домик из поддонов
Еще одна простая конструкция поддона для экономичного игрового домика.Этот домик кажется больше по размеру, чем предыдущий. Вы можете использовать деревенскую тему для своего игрового домика с ящиками для поддонов, которые можно использовать как сиденья и столы. Сказочные огни или теплые желтые лампы могут придать домику действительно хороший вид.
Еще одна замечательная особенность этого домика — то, что его могут использовать и взрослые для вечеринок на заднем дворе. Подземная хижина или тема гаража могут выглядеть потрясающе. В конце концов, кому не нравится минималистичная устаревшая обстановка в их садовой пристройке?
Более подробная информация на сайте builtbykids.com
Театр в стиле початков
Из натурального сырья можно построить небольшой домик из глины для самых маленьких. Такое ощущение, что тебя перенесли куда-то из города в лес. Крошечные размеры этого игрового домика делают его похожим на дом в сказочной стране, где эльфы, возможно, предпочли бы жить.
Соломенная крыша из травы придает ему очень эстетичный вид. Использование почвы и камня также регулирует температуру внутри игрового домика, поэтому вам не нужно беспокоиться о том, что ваш ребенок играет на улице в летнюю жару.Если вы позволите лозам расти вокруг дома естественным образом, этот домик будет выглядеть потрясающе.
Более подробная информация на сайте Instructables.com
Игровой домик из бревенчатой хижины
Ваши дети любят ходить в походы по лесу и отдыхать в горных хижинах? Теперь вы можете построить им собственный игровой домик, который даст им ощущение кемпинга в лесу. Вы можете использовать деревянные бревна вместо досок для более аутентичного вида.Вы также можете подумать о строительстве небольшого пруда или костра поблизости.
Это очень экономичный проект на заднем дворе, если у вас ограниченный бюджет. Так что, если ваши дети настаивают на том, чтобы у них был игровой домик, вы можете попробовать эту идею.
Более подробная информация на сайте Instructables.com
Коттедж Театр
Это очень милый домик для игр. Это небольшой деревянный домик с каркасом коттеджа. Его не так сложно построить с помощью основных инструментов.Для этого домика вам понадобятся простые и простые пилки по дереву.
Кажется, маленький, но удобный и уютный. Дети также могут по-настоящему спокойно вздремнуть. Думаю, ночью он будет очень красиво смотреться, когда он украшен сказочными или рождественскими огнями.
Более подробная информация на сайте buildeazy.com
Театр в малайском стиле
Дети любят пляж! Песок, вода и пальмы так восхитительны. Этот игровой домик может заставить вашего ребенка каждый день воплощать мечту об острове.Это простой домик для игр со всеми характеристиками коттеджа с тихих тропических островов.
Длинные оконные ставни, узоры на перилах, маленькие ступеньки и ходули, в особенности, лишь добавляют к теме дома. Соломенная крыша из травы придаст вашему игровому домику естественный вид. Вы можете построить небольшой пруд под домиком и установить рядом песочницу, чтобы он выглядел как настоящий остров.
Более подробная информация на сайте инструкций.com
Открытый форт
Если за вашим домом есть лес или холмы, этот домик может стать вашим. Он соответствует приземленности своего окружения. Этот домик для игр выглядит очень красиво благодаря абстрактной форме и деревенскому виду, который он имеет. Стеклянная крыша придает ему современный контраст, и если над головой будет менее плотный навес, я полагаю, что наблюдение за звездами будет самым интересным по ночам. Вся поддерживающая деревянная рама делает его прочной конструкцией, так что домик для игр не прогибается при грубом использовании.
Более подробная информация на hgtv.com
Игровой форт
Этот игровой домик идеально дополняет замок, который вы строите для своих детей. Это двухэтажный забавный форт, по которому могут бегать ваши рыцари со своими флагами и мечами.
Вы можете изменить декор форта в средневековом или современном стиле с помощью подъемных мостов или камуфляжного брезента. Несколько прекрасных гобеленов, букеты из синтетических цветов, игрушечные мечи, щиты и топоры, маленькие светильники и мини-портреты, висящие внутри, добавят очарования и ощущения форту.Крошечный портативный динамик, который воспроизводит героическую музыку и звуки битвы, пробудит воодушевление. Вы даже можете выкопать длинный круглый ров вокруг форта, чтобы придать ему более эстетичный вид.
Более подробная информация на сайте Instructables.com
Театр принцессы
Этот миниатюрный домик принцессы идеально впишется в ваш задний двор. Вы можете украсить его так, чтобы он напоминал замок, добавив латунный декор в интерьер.Вы можете добавить дракона и плюшевые сказочные игрушки для своих детей.
Это кажется довольно подробным проектом, но если вы знакомы с основами, это руководство может легко вам помочь. Вы можете упростить эту конструкцию для простого строительного проекта. Но есть гарантия, что вашим детям он все равно понравится.
Более подробная информация на сайте Instructables.com
Домик с горкой
Если вы не хотите строить сложный игровой форт, вы можете вместо этого построить этот игровой домик.Это простой уличный домик для игр, поднятый на платформе. К дому можно соорудить ступеньки или лестницу, а также прикрепить горку. Вы также можете прикрепить более длинную туннельную горку, которая огибает домик и приземляется в песочнице.
Более подробная информация на сайте Instructables.com
Форт Театра
В этом игровом форте есть препятствия из полосы препятствий. Вам понравится этот дизайн, если вы хотите, чтобы ваши дети занимались спортом на открытом воздухе.В Интернете можно найти различные варианты дизайна игрового домика с полосой препятствий.
Вы можете прикрепить веревочные лестницы, стены для лазанья, шкивы и горки, чтобы добавить шарма вашему маленькому игровому домику. Вы даже можете построить небольшой пруд в качестве рва для дополнительной задачи. Посмотрите, как ваши дети мчатся к игровому домику, и получайте от этого удовольствие.
Более подробная информация на сайте Instructables.com
Форт Театр
У нас есть еще одна идея для игрового форта на заднем дворе.Он маленький и необычный, но детям он обязательно понравится. Это игровой домик, который может легко построить кто-нибудь, имеющий опыт работы с инструментами. Это небольшая комната с тремя стенами. И еще есть колода!
Вы можете украсить это место, храня в нем игрушки и книги или добавив стулья. Довольно весело будет смотреться домик с горкой в качестве выхода. Раскрашивание форта в яркие цвета обязательно привлечет внимание вашего ребенка и ваших соседей. Вы можете использовать разные перила, чтобы добавить очарования.
Более подробная информация на сайте m.imgur.com
Игровой домик Swing Set
У нас есть комбинация качелей и клубного дома, которую достаточно легко построить. Это высокий настил с перилами, который легко построить. Более сложная часть — это прикрепленные качели, но не волнуйтесь, это возможно.
Покраска колоды в пастельные тона может избавить от монотонного внешнего вида игрового домика.Украсьте его цветочными горшками и держите подушки для большего комфорта. Поскольку это всего лишь площадка без крыши, вы, возможно, не сможете хранить игрушки и книги, но вы можете изменить конструкцию, чтобы приспособить крышу.
Более подробная информация на ourfifthhouse.com
Игровой набор DIY Clubhouse
Как насчет создания всего игрового набора вместе с домиком для игр? Да, это звучит сложно, но, поверьте, эти планы очень просты и всеобъемлющи.Это просто обновленная версия вышеупомянутого игрового дома.
Комфортный большой игровой домик с приставными качелями и туннельной горкой. Он двухэтажный, поэтому дети могут весело подниматься и спускаться по лестнице и спускаться по туннельной горке. Там тоже есть стена для скалолазания! Проверьте это:
Более подробная информация на сайте hertoolbelt.com
Надземный театр
Детям наверняка нравится играть над землей, поэтому у нас так много идей для приподнятых игровых домиков.Он вроде как двухэтажный, с домиком на верхнем этаже и пустым пространством на нижнем. Вы можете добавить туда песочницу. Это сложная процедура, но инструкции просты для понимания, а конструкция проста в работе.
Более подробная информация на canadianhomeworkshop.com
Коттедж Hideaway
Если вы готовитесь к сложному проекту на заднем дворе и не возражаете против подробных деталей, это убежище в стиле коттеджа — блестящая идея.К нему ведет небольшая лестница и спуск для выхода. Внутри есть симпатичный уголок для чтения, уютный, с подушками. Под книгой для чтения находится хранилище игрушек и книг
.Также есть мини-кухня для ваших детей. Весь декор домика кажется таким домашним, как европейские коттеджи. Лучшее в этом домике для игр — это сдвижные оконные ставни ручной работы.
Более подробная информация на сайте thehandmadehome.нетто
Театр High Top
Мы видели несколько конструкций игровых домиков, построенных на высоких платформах или возвышениях. Этот дизайн похож на те, но следует довольно подробному плану. При необходимости вы можете отрегулировать высоту и размер дома в соответствии с доступным пространством на заднем дворе.
Платформа огромная и довольно высокая. Вы можете снизить риск падения детей с края, добавив колоду или горки. Вы также можете построить примыкающую к нему песочницу.В общем, этот игровой домик действительно интересен, если вашим детям нравится играть на свежем воздухе и любоваться окрестностями с высоты птичьего полета.
Более подробная информация на ana-white.com
The Simple Hideaway
Это простой уличный игровой домик, который легко построить и очаровывать своим внешним видом. Он имеет простую внутреннюю отделку, с занавесками, развешанными вокруг балок, полками и небольшими стульями. Кажется, это место, где детям нравится спать или спокойно учиться.Подросткам понравится проводить здесь время в одиночестве, не выходя из дома.
Вы можете построить его на земле или поднять на платформе. Хотя, если вы решите построить его на платформе, вы можете подумать о добавлении слайда для дополнительного развлечения.
Более подробная информация на сайте thehandmadehome.net
Театр на дереве
Как насчет того, чтобы построить домик для игр, который одновременно является домиком на дереве? Это простой домик на дереве, построенный на возвышении напротив дерева.Это несложный проект, и к нему легко подойти новичкам.
Вы можете украсить игровой домик по своему желанию или, что еще лучше, дать своим детям полную свободу действий и дать волю их воображению. Это может быть веселый клуб или домик на дереве, где дети могут проводить время без друзей.
Более подробная информация на сайте madewithhappy.com
Пень
Мы видели так много экономичных и простых в строительстве игровых домиков для вашего двора.Этот дизайн — один из них. Он построен на старом пне, так что не так уж и высоко над землей. Он полностью сделан из переработанных деревянных поддонов и стоит около 30 долларов, согласно сайту.
Вы можете добавить подушки, подушки и одеяла и использовать домик как место для отдыха летом. Либо украсить место светом, либо установить лампу для позднего чтения. Он кажется полностью домашним, и это справедливо.
Подробнее на мастера.org
Крытый клуб
Этот игровой домик станет идеальным компаньоном для нормальной комнаты вашего ребенка. Он используется как домик для игр и как кровать. Нижний уровень работает как игровой домик, а лестница ведет к кровати, что позволяет сэкономить много места. Так что, если у вас нет заднего двора, чтобы построить игровой домик, вы можете воспользоваться этой отличной идеей.
Более подробная информация на сайте ikeahackers.net
Домашний театр
Этот игровой домик действительно единственный в своем роде, и, честно говоря, очень умный.Это переделанный шкаф с очень стильным измененным входом. Если вы присмотритесь, то только крыльцо было построено вокруг ранее существовавшей двери туалета. Так что оформить вход можно по любой понравившейся тематике.
Внутренняя часть туалета может быть достаточно большой, чтобы дети могли играть. В шкафу можно хранить книги, игрушки и игры. Это отличная идея, к тому же экономичная. Теперь вам даже не нужно иметь задний двор, чтобы построить свой собственный игровой домик!
Более подробная информация на сайте allthingsheartandhome.com
Труба ПВХ Fort
Этот игровой домик очень легко собрать и разобрать. Подходит как для внутреннего, так и для наружного применения. Этот дизайн кажется довольно простым в сборке, и, что самое приятное, он довольно портативный.
Каркас игрового домика можно построить очень легко и любой формы. И вы можете покрыть его любым уникальным материалом, который вам нравится. Домик на этой картине представляет собой простой куб, покрытый занавесками разного цвета.Также можно попробовать построить его в виде палатки.
Более подробная информация на indigoamethyst.blogspot.com
Уголок для чтения
Чтение в саду в свежий летний день кажется таким мечтательным. Это такое успокаивающее и расслабляющее занятие. Вы можете привить эту привычку своим детям или побудить своего подростка читать больше, построив им собственную небольшую библиотеку на заднем дворе.
Использование старой палатки или развешивание занавесей на столбах придаст ей по-настоящему домашний вид.Добавление подушек и одеял внутрь может сделать чтение очень расслабляющим. Прикрепите полки к стене, чтобы хранить любимые книжки рассказов или приключенческие романы вашего ребенка, и вы увидите, как он теряется в своем мире фантазий.
Более подробная информация на vintagerevivals.com
Треугольный домик
Вы ищете дизайн игрового домика, который отличается от старого коробчатого? Тогда вам обязательно понравится этот уникальный дизайн.Для создания этого игрового домика не требуется много навыков, и воспроизведение этого проекта не является надуманной идеей, потому что инструкции довольно просты для понимания.
Этот игровой домик треугольной формы маленький и необычный, он может поместиться в небольшом пространстве. В нем есть небольшой чердак, игровая площадка, место для хранения вещей под половицами, а самое главное — складная крыша. Так что вы можете хранить игрушки в игровом домике, не беспокоясь об их повреждении.
Подробнее на diynetwork.com
Современный игровой домик своими руками
Идея довольно гениальная. Дизайнер придумал его самостоятельно, потому что ему не нравились простые игровые домики, и он сделал руководство для всех, кто хотел сделать аналогичный домик. В столярных работах появилась новая тенденция: мебель можно сложить и закрепить в углу для экономии места. Этот игровой дом очень гибко использует эту тенденцию.
Это небольшая деревянная хижина в минималистском стиле, но внутри очень уютная.Для экономии места внутри домика установлен складной столик. Окна сделаны из оргстекла для защиты. Прямо перед домиком для игр есть очаровательный стол для пикника.
Более подробная информация на sweetpotatopeachtree.com
Переоборудованный современный театр
Если вам не нужен готовый комплект для игрового домика ваших детей, вы можете создать свой собственный дизайн с нуля. Использование переработанного материала, такого как деревянные доски, угловые стойки или трубы, может снизить ваши расходы на этот проект.
Вы можете прикрепить слайд и использовать площадку под домиком для песочницы. Интерьер этого игрового домика оформлен в стиле модульного дома. У него даже есть свой почтовый ящик!
Более подробная информация на сайте dirtydiggingsisters.blogspot.in
Театр в форме буквы А
Игровые домики с А-образной рамой — один из традиционных дизайнов, который работает и сегодня. Лучшее в этих типах игровых домиков — это то, что их можно легко модифицировать и переделывать.
В этом игровом домике вместо деревянных панелей используются старые двери с выскакивающими яркими красками. Эти двери можно легко найти в местном магазине по переработке вторсырья. Уже окрашенные цвета добавляют абстрактности игровому домику в стиле фристайл. Его можно сделать уютным с помощью подушек и одеял, занавесив дверные проемы.
Более подробная информация на tinyhouseliving.com
Пиратский театр
Все руки на колоду! Каждый ребенок хочет стать пиратом и представить себе приключения за океаном.Постройте для своих детей игровой домик, который позволит им исследовать свои пиратские приключения. Вы можете прикрепить штурвал к палубе корабля, развернуть флаги на мачте, сражаться на мечах и выпустить Кракена!
Планы на этот домик довольно обширны, поэтому вам понадобится немного опыта в строительстве и плотницких работах. Вы даже можете построить небольшой пруд вокруг своего пиратского домика для дополнительного очарования.
Более подробная информация на сайте инструкций.com
The Saloon Playhouse
Все дети любят быть ковбоями и скотницами. Этот игровой домик выполнен в тематике дикого, дикого Запада. Построить этот салон просто и быстро.
Вы можете использовать старые деревянные предметы, чтобы придать домику неаккуратный вид. Картонные вырезы и рамки для картин Йосемити Сэма или Хитрого Э. Койота просто великолепно впишутся в общую тематику. Не забудьте и о знаменитой распашной двери салона для прохладного входа. Дайте волю своему воображению.
Подробнее на project.theownerbuildernetwork.co
Готический театр
Этот сборочный домик своими руками напоминает средневековую готическую архитектуру старых времен. В нем высокие потолки, высокие двери и окна. За дверью есть небольшая веранда, обнесенная заборчиком. Вы можете украсить игровой домик разного рода цветочными горшками или выложить садовой галькой небольшую мостовую, ведущую к крыльцу.
Более подробная информация на сайте Southernpine.com
Деревенский театр
Посмотрите на этот дизайнерский, но деревенский домик для игр! Выглядит прямо из модных журналов. Детали этого проекта выглядят потрясающе. Похоже на дом, принадлежащий волшебнику из леса.
Здесь есть небольшой камин, красивые окна с цветочными ящиками и крошечные скамейки, окруженные очаровательным садом. Вы можете дополнить декор этого игрового домика, повесив внутри несколько портретов, несколько маленьких стульев на крыльце, чтобы дети могли сесть, и крошечный столик внутри.В этом игровом домике, напоминающем настоящий дом, дети будут чувствовать себя как дома.
Более подробная информация на ronhazelton.com
Сделай сам Hobbit Hole
«Хоббит» — одна из моих любимых книг с детства, как и многих детей. Если ваши дети любят жить в стиле хоббита, этот домик для них идеально подойдет! Оно короткое, поэтому взрослый не может забраться в красивую яму и испортить времяпровождение. Нетрадиционный дизайн приятно смотреть на задний двор и заставит гостей и других детей с благоговением смотреть на ваш маленький проект.
Вы можете немного оживить его, добавив много забавных вещей, связанных с Хоббитом, таких как знаменитое одно кольцо, копии Хоббита и Властелина колец, несколько плюшевых персонажей и, возможно, некоторые тематические пироги Хоббита в качестве сервировка выходного дня! Установка небольшого портативного динамика внутри и проигрывание причудливого саундтрека Хоббитона обязательно перенесет детей в Средиземье!
Более подробная информация на сайте hallmarkchannel.com
Модный дом в Киото
Этот продукт выглядит так, как будто он прямо из каталогов уникальной архитектуры.Он сильно отличается от большинства современных игровых домиков, которые мы видели до сих пор, но выглядит мудро, это действительно завораживает. Вы можете собрать этот стильный домик в любое время и в любом месте.
Абстрактные многоугольные двери и окна заставят вас почувствовать себя в будущем, на чужой планете. Окна закрыты толстым стеклом, поэтому вам не нужно беспокоиться о травмах ребенка. Монохромный свет сделает игровой домик похожим на футуристический космический корабль.
Подробнее на smartplayhouse.com
Дом взаимосвязанных головоломок
Если вы заинтересованы в создании портативного игрового домика, не ищите дальше. Современная архитектура создала этот простой игровой домик, который не требует инструментов или столярных навыков. Вы можете собрать или разобрать его в кратчайшие сроки. Плоские блокирующие панели можно легко транспортировать или брать с собой, что позволяет собирать их в любом месте. Так что, если ваш малыш очень любит играть в домике, вы можете носить его с собой, куда бы вы ни пошли.
Раскрасьте панели в яркие цвета и вы, дети, получите максимум удовольствия. Вешайте игрушки из окон или храните книги в домике для игр. Есть бесконечные возможности.
Более подробная информация на svendnielsendesign.com
Роскошный театр
Домик для игр подходят как детям, так и взрослым. Современный и утонченный вид этого игрового домика очень стильный. Он имеет две комнаты, разделенные внутренней стеной, и шторы могут быть добавлены в соответствии с вашими требованиями.Раздвижные двери и окна действительно дополняют футуристическую атмосферу. Так что, если вы не против потратиться на игровой домик, подумайте о том, чтобы разместить этот уникальный продукт у себя на заднем дворе.
Более подробная информация на smartplayhouse.com
Что вы думаете об этих планах DIY Playhouse? Найдите что-нибудь уникальное и симпатичное? Большинство из них привлекли мое внимание, и я обязательно попробую один из них в ближайшее время.
Что мне больше всего нравится в этих дизайнах, так это то, что вы можете изменять их так, как вам нравится.Вы можете экспериментировать с абсолютно чем угодно: деревом, металлом, стеклом, тканью, всем, чем вы можете сэкономить. Так что даже если у вас ограниченный бюджет, вы можете перепрофилировать старые расходные материалы и сделать что-нибудь новое, что-нибудь освежающее!
Я полагаю, у большинства из вас есть домашние собаки или кошки, а может и то и другое вместе! Так что вы можете построить и соседний питомник. Дети наверняка отлично проведут время, играя со своими пушистыми друзьями в своем уединенном убежище.
Так что приступайте к работе над своими блестящими идеями сегодня и удивите своих малышей их забавным домиком для игр.
Результаты поиска — WoodworkersWorkshop
Результаты поиска — WoodworkersWorkshopРекламное объявление
Эти портативные столики идеально подходят для выполнения детьми домашних заданий. Когда они не используются, вы просто складываете их, как книжный шкаф. Храните все свои бумаги и книги в одном месте. Бесплатные планы вы найдете по ссылке.
Это ссылка на чертеж Google 3D SketchUp для школьного стула размером с американскую куклу. Вам понадобится программа SketchUp, чтобы загрузить этот рисунок и его бесплатно в Интернете.Мы не обеспечиваем поддержку этого программного обеспечения. Большинство чертежей не имеют инструкций, предполагается, что вы можете построить его на основе предоставленного готового чертежа.
Этот настенный откидной стол идеально подходит для детской комнаты. Просто сложите его, когда он не используется.
Этот складной стол идеально подходит для детской комнаты, где пространство обычно ограничено. Его легко собрать и установить, используя бесплатные планы строительства по ссылке.
Это ссылка на чертеж Google 3D SketchUp для детского стола.Вам понадобится программа SketchUp, чтобы загрузить этот рисунок и его бесплатно в Интернете. Мы не обеспечиваем поддержку этого программного обеспечения. Не на всех чертежах отображаются измерения, но вы можете использовать инструмент измерения в SketchUp, чтобы легко и точно определить размеры каждой деревянной детали. Большинство чертежей не имеют инструкций, предполагается, что вы можете построить его на основе предоставленного готового чертежа.
Постройте детский стол в форме домика, идеально подходящий для поделок и раскрашивания.Бесплатные планы по ссылке.
Постройте этот красивый детский стол с местом для хранения, следуя этим бесплатным инструкциям по деревообработке. Вы можете изменить высоту стола, если строите его для старшего (большего) ребенка.
Этот домашний игровой стол с наклонным столом идеально подходит для самых маленьких, чтобы проявить творческий подход. Следите за бесплатными планами деревообработки по ссылке.
Вы можете построить простой стол для своего ребенка, но вы также можете построить этот каркасный стол дома за бонусные баллы.Следуйте бесплатным пошаговым планам по ссылке.
Если ваши дети хотят где-нибудь заниматься своими делами, может быть, вам пора построить им собственный стол. Этот был построен из фанеры. Перейдите по ссылке, чтобы узнать, как он был построен.
Рекламное объявление
Все панели стола можно вырезать из листа фанеры размером 4 фута x 4 фута (1200 мм x 1200 мм), что составляет половину листа стандартного размера. После изготовления стол можно легко разобрать.
Это ссылка на чертеж Google 3D SketchUp для детского стола.Вам понадобится программа SketchUp, чтобы загрузить этот рисунок и его бесплатно в Интернете. Мы не обеспечиваем поддержку этого программного обеспечения. Не на всех чертежах отображаются измерения, но вы можете использовать инструмент измерения в SketchUp, чтобы легко и точно определить размеры каждой деревянной детали. Большинство чертежей не имеют инструкций, предполагается, что вы можете построить его на основе предоставленного готового чертежа.
Создайте стол размером с ребенка, следуя этим бесплатным пошаговым инструкциям по обработке дерева.
Это ссылка на чертеж Google 3D SketchUp для простого стола детского размера. Вам понадобится программа SketchUp, чтобы загрузить этот рисунок и его бесплатно в Интернете. Мы не обеспечиваем поддержку этого программного обеспечения. Не на всех чертежах отображаются измерения, но вы можете использовать инструмент измерения в SketchUp, чтобы легко и точно определить размеры каждой деревянной детали. Большинство чертежей не имеют инструкций, предполагается, что вы можете построить его на основе предоставленного готового чертежа.
Создайте этот компактный, экономящий место стол, используя эти бесплатные планы деревообработки с пошаговыми инструкциями.
Постройте письменный стол детского размера, используя эти бесплатные схемы деревообработки.
Постройте детский настенный складной стол с местом для хранения внутри и классной доской снаружи. Вот бесплатные инструкции.
Стол общежитиябарной высоты предназначен для использования с барными стульями. Добавляет современное хранилище, базовую опору, легко собирается / разбирается.
Эту прикроватную тумбочку детского размера можно использовать как письменный стол. Постройте его с помощью этих бесплатных схем деревообработки.
Вот полное руководство по созданию промышленных полок для труб и стола для детской комнаты.
Рекламное объявление
Каждому — молодому или старому — нужно место, которое он мог бы назвать своим. . . А что может быть лучше для домашнего хозяйства, чем игрушечный сундук, который одновременно служит столом или скамейкой? Этот трансформируемый предмет мебели станет огромным местом для хранения сокровищ.
Этот детский стол своими руками складывается в классную доску! Магазины художественных принадлежностей и даже держатель для бумажных рулонов! Супер легкие пошаговые инструкции по самостоятельному созданию!
Этот стол полностью разбирается без использования каких-либо инструментов. В некоторой степени они удерживаются вместе гравитацией. Но загруженный сверху, он довольно стабилен.
Используя готовые деревянные стойки и немного фанеры, вы можете создать письменный стол нестандартного размера для детей.
Если больше детей работают из дома или у них много домашних заданий, возможно, им понадобится собственный стол. На этом столе есть ящик для дополнительного хранения. Постройте его, используя бесплатные планы деревообработки, доступные по ссылке.
Рекламное объявление
Рекламное объявление
Программное обеспечение: Kryptronic eCommerce, Copyright 1999-2021 Kryptronic, Inc. Время выполнения: 0,173365 секунды Использование памяти: 2,013855 мегабайт
.
Эти дефекты необходимо тщательно отшлифовать и обработать влагостойкой краской или лаком.
Также следует позаботиться, чтобы ребенок случайно не выпал из домика, расположенного на высоте. Во избежание этого рекомендуется снабдить конструкцию высокими перилами.
Желательно использовать брусья с сечением 50/50.

Это может быть настольная или напольная конструкция.







В результате, все деревянные элементы можно собрать из бруса и досок, из которых собирался основной каркас.



Длиной 2,5 метра для изготовления стен 13 штук, из них 8 нужно спилить сверху до угла;